10 mẫu thiết kế biệt thự 2 tầng 100m2 đẹp hiện đại
Mẫu thiết kế biệt thự 2 tầng 100m2 hiện đại với kiến trúc ấn tượng tạo nên một không gian sống tiện nghi. Ngôi nhà 2 tầng 100m2 sử dụng những phong cách thiết kế khác nhau để thể hiện cá tính và cái tôi của gia chủ. Kiến trúc nhà 2 tầng 100m2 ưu tiên mái thái, mái bằng hoặc mái lệch mang vẻ đẹp thẩm mỹ cao. Công ty House Viet mong rằng mẫu thiết kế nhà đẹp 100m2 sẽ giúp quý khách hàng có những ý tưởng độc đáo nhất.
Mẫu biệt thự 2 tầng hiện đại 100m2
Khuôn viên biệt thự tọa lạc trên lô đất rộng rãi, kiến trúc nhà ở chiếm diện tích 100m2 còn lại là sân vườn và cây xanh bao quanh. Mặt tiền bên ngoài rộng rãi với các đường nét, hình khối vuông vắn, khỏe khoắn. Màu sắc tươi sáng phối cùng hệ thống cửa gỗ tinh tế, uyển chuyển.
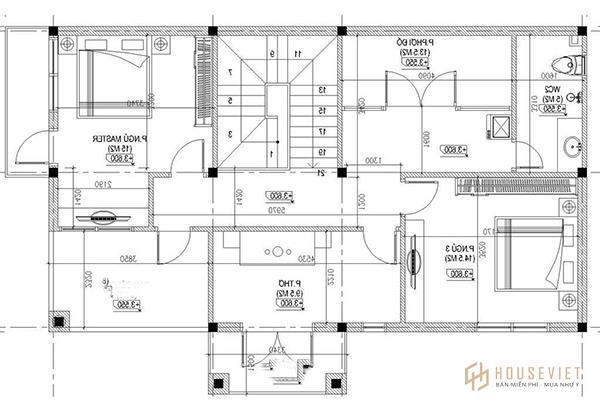
Kiến trúc nhà biệt thự đẹp 100m2 chia 3 gian sử dụng kiểu mái thái sang trọng. Gian giữa có diện tích lớn hơn hai gian bên cạnh và được trang bị mái thái thấp ở tầng một. Màu xám xanh của mái tương phản với màu sơn ngoại thất tạo hiệu quả thẩm mỹ cao.



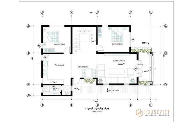
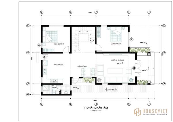
Đang vẽ Biệt thự 2 tầng 100m2 Phần mái được bố trí công năng khoa học mang đến không gian sống tiện nghi. Mặt bằng tầng 1 gồm phòng khách, bếp ăn, 2 phòng ngủ được bố trí gọn gàng. Cầu thang rộng rãi di chuyển lên tầng 2 giúp biệt thự có giếng trời thông thoáng.
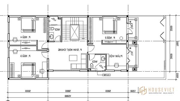
Đất Biệt thự 2 tầng hiện đại bao gồm phòng ngủ, phòng thờ và khu sinh hoạt chung. Khu vực ban công rộng rãi giúp gia chủ tổ chức các hoạt động ngoài trời một cách dễ dàng và thuận tiện.




Mẫu thiết kế biệt thự mini 2 tầng 100m2 sang trọng
Biệt thự mini 100m2 thu hút bởi lối kiến trúc tân cổ điển kiểu Pháp sang trọng và cao cấp. Kiểu dáng mái vòm kết hợp với những đường gờ phào chỉ nhẹ nhàng trên các cột trụ giúp ngôi nhà trở nên rộng rãi và cuốn hút. Mặt tiền biệt thự sử dụng tông màu trắng sáng kết hợp với những ô cửa sổ màu đen ấn tượng. Sự tương phản từ đen - trắng ở mặt tiền kết hợp với mảng xanh trang nhã giúp thể hiện cá tính của gia chủ.




Vật mẫu Biệt thự 2 tầng 100m2 đặc trưng với kiến trúc mặt tiền thoáng mát, gần gũi với thiên nhiên. Chất liệu kính xuất hiện ở cửa sổ, lan can tầng 2 thuận tiện cho gia chủ quan sát khung cảnh bên ngoài. Cây xanh được bao phủ ở tầng 1 và trồng xen kẽ ở tầng 2 tạo nên cảnh quan sân vườn ấn tượng và độc đáo.




Mẫu thiết kế nhà biệt thự 2 tầng 100m2 mái thái
Kiến trúc mái thái đang là xu hướng Thiết kế nhà 2 tầng 100m2 nhận được sự quan tâm từ khách hàng. Mẫu biệt thự 2 tầng mái thái dưới đây sang trọng và hiện đại. Mặt tiền là sự hiện diện của hệ thống cột trụ vững chãi, mái vòm uyển chuyển mang lại hiệu quả thẩm mỹ cao.
Sơn thật bên ngoài sử dụng màu trắng trẻ trung, năng động và màu cam gỗ nổi bật, cuốn hút. Gia đình sử dụng đá ốp chân tường để tránh tác động từ môi trường bên ngoài. Vòng quanh Mẫu nhà đẹp 2 tầng 100m2 được trồng nhiều cây xanh mang đến cảm giác nhẹ nhàng, thư thái.



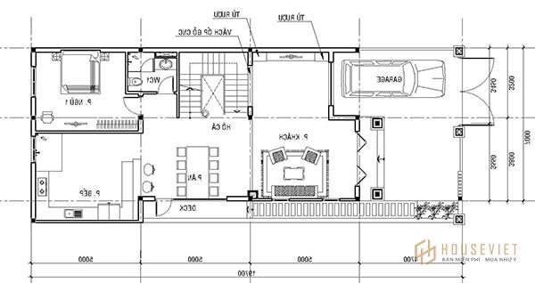
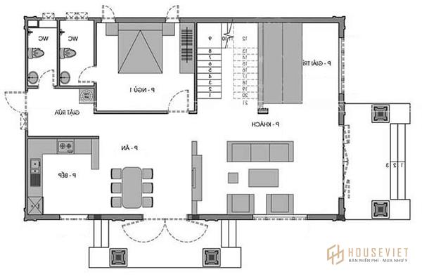
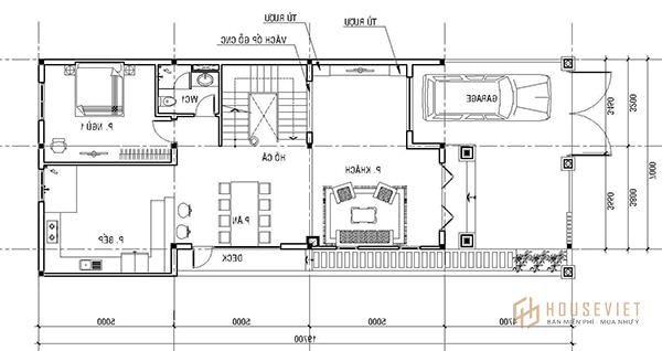
Bản vẽ biệt thự 100m2 dưới đây có sự bố trí các phòng chức năng rất sáng tạo và tiện nghi. Từ cửa đi vào là phòng bếp và bàn ăn giúp quá trình nấu nướng hạn chế mùi thức ăn. Phòng khách được đặt ở vị trí mặt tiền của biệt thự tạo sự thuận tiện khi đón tiếp khách và cân bằng phong thủy. '
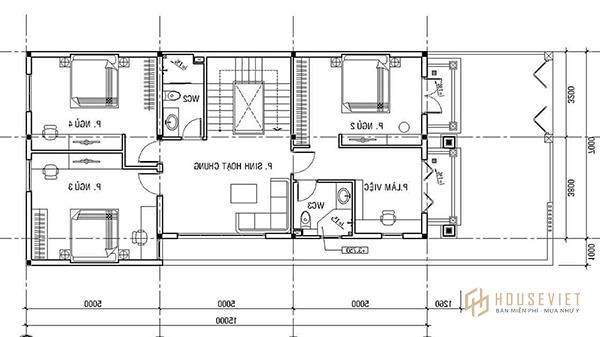
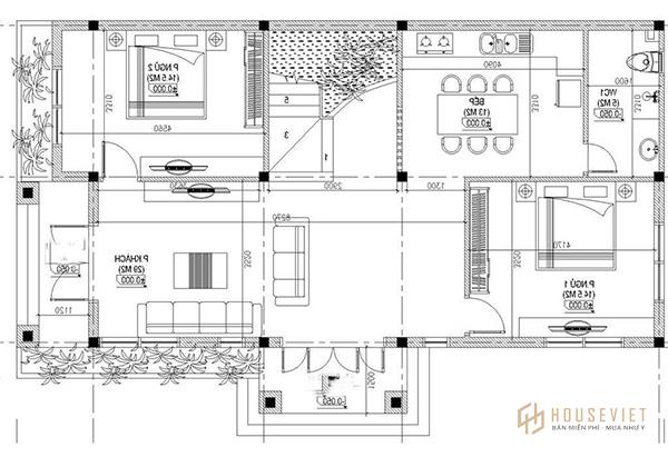
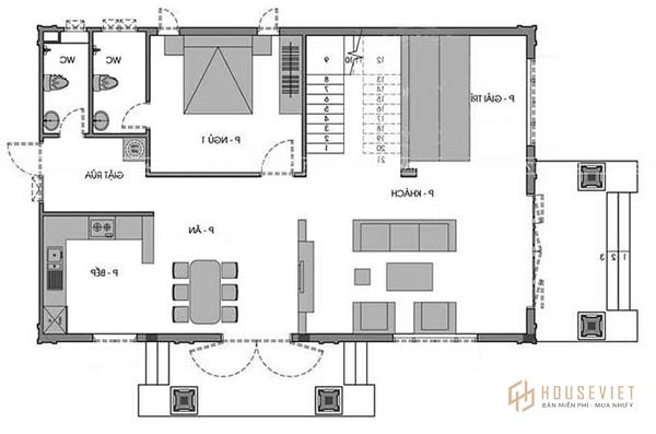
Biệt thự 2 tầng hiện đại 100m2 Bố trí chính là phòng ngủ, phòng thờ và phòng sinh hoạt chung. Các phòng chức năng được bố trí khoa học tạo sự thuận tiện trong sinh hoạt. Tầng 2 là không gian nghỉ ngơi nên được bố trí tạo sự thoải mái, dễ chịu.



Bài viết đã cung cấp đến quý khách hàng mẫu thiết kế biệt thự 2 tầng 100m2 hiện đại và sang trọng nhất. Hi vọng đó là ý tưởng để gia đình bài trí không gian sống ấn tượng và tiện nghi, Quý khách hàng có nhu cầu thiết kế kiến trúc và thi công các hạng mục nhà ở vui lòng liên hệ 1800 6015. Kiến trúc sư giàu kinh nghiệm của House Viet sẽ cho bạn những lời khuyên tốt nhất.
Các bài tham khảo:
- TOP 3 mẫu thiết kế biệt thự 2 tầng có gara hiện đại (kèm bản vẽ)
- 29+ Mẫu biệt thự mini 2 tầng 80m2 hiện đại khiến bạn mê mẩn
- Thiết kế kiến trúc biệt thự cao cấp 2,5 tầng
House Viet - Vững niềm tin