35+Hình ảnh đẹp của mẫu thiết kế biệt thự 3 tầng hiện đại
Thiết kế biệt thự 3 tầng đẹp, hiện đại đang là mục tiêu của nhiều gia chủ thời gian gần đây. Mặt bằng biệt thự 3 tầng mang đến không gian sống tiện nghi đảm bảo giá trị thẩm mỹ. Bên cạnh đó gia chủ thỏa mãn sự sáng tạo, trang trí tổ ấm theo cá tính của bản thân. Nắm bắt được xu hướng đó, Công ty House Viet gửi đến bạn mẫu biệt thự 3 tầng hiện đại, ấn tượng nhất. Cùng tham khảo các mẫu biệt thự dưới đây nhé!
Tiêu chuẩn thiết kế biệt thự 3 tầng đẹp, hiện đại
Sở hữu căn biệt thự 3 tầng đẹp, ấn tượng từ kiến trúc đến nội thất là mong muốn của nhiều gia chủ. Vì vậy trong quá trình thiết kế đến khi hoàn thiện bản vẽ mặt bằng biệt thự 3 tầng nên quan tâm đến một số tiêu chuẩn như sau:
Biệt thự 3 tầng tích hợp công năng
Mẫu thiết kế biệt thự 3 tầng có gara, gác lửng, 3 phòng ngủ đang thịnh hành trên thị trường. Với xu hướng đó gia chủ sở hữu tổ ấm sang trọng mà thực hiện nhiều mục đích khác nhau. Đặc biệt những dấu ấn đó chính là điểm nhấn của biệt thự, tạo nên không gian sống hấp dẫn.

Mẫu thiết kế biệt thự 3 tầng đẹp cần “đảm bảo phong thủy”
Không chỉ mẫu biệt thự 3 tầng đẹp mà biệt thự 2 tầng hiện đại, 1 tầng đẹp khi xây dựng cần đảm bảo phong thủy. Yếu tố phong thủy mang đến tài lộc và gia tăng vượng khí cho gia chủ. Do đó khi xây dựng biệt thự 3 tầng hiện đại cần quan tâm đến hướng đất, cách bố trí mặt tiền và bố cục căn nhà.
Quan tâm đến đất có kiên cố, nhiễm tạp khí hay không để tìm cách hóa giải kịp thời. Như vậy bạn mới sở hữu mẫu biệt thự đẹp, hiện đại 3 tầng đảm bảo cuốc ống an yên.

Đảm bảo không gian xanh
Xây nhà là chuyện trọng đại cả đời người, không chỉ liên quan đến vấn đề kinh tế mà còn hậu vận về sau. Vì vậy xây dựng biệt thự đẹp 3 tầng cần bố trí không gian sống thoải mái, dễ chịu. Trước tình hình môi trường bị ô nhiễm trầm trọng thì không gian xanh là một gợi ý tuyệt vời.

Màu xanh tự nhiên có thể bố trí bằng những chậu cây nhỏ ở không gian chức năng. Điều này vừa cân bằng nội thất biệt thự mà còn tạo cảm giác thư thái, dễ chịu. Ngoài ra, bố trí tiểu cảnh sân vườn, trồng cây xanh tạo sự gần gũi, hòa hợp với thiên nhiên. Chọn biệt thự vườn 3 tầng là cách mang không gian xanh mới mẻ, độc đáo nhất.

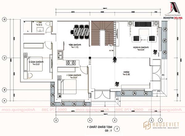
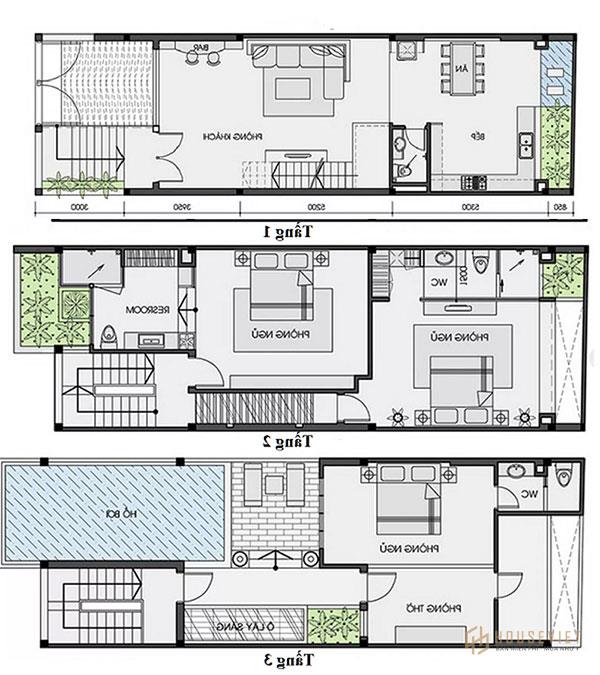
Thiết kế biệt thự 3 tầng gắn kết hoàn hảo về mặt bằng bản vẽ
Một căn biệt thự đẹp 3 tầng 2 mặt tiền hiện đại cần đảm bảo sự logic giữa không gian các tầng. Điều này tạo nên tổng thể hài hòa, phân chia kiến trúc hợp lý. Đặc biệt vị trí kết nối giữa các khu vực chức năng như phòng ngủ, phòng khách, phòng bếp ăn….phải tạo sự liền mạch, thống nhất.

Bản vẽ thiết kế biệt thự 3 tầng là cơ sở để quá trình thi công diễn ra chính xác. Đồng thời đảm bảo cho gia chủ trong quá trình sinh hoạt diễn ra dễ dàng, thuận tiện nhất. Do đó sự gắn kết hoàn hảo trong bản vẽ mặt bằng với các yếu tố khác là tiêu chí tạo nên biệt thự 3 tầng đẹp, hiện đại.

Chi phí xây biệt thự 3 tầng hiện đại là bao nhiêu?
Đây là thắc mắc chung của gia chủ vì nó liên quan trực tiếp đến vấn đề tài chính. Tuy nhiên chi phí thiết kế biệt thự còn phụ thuộc vào nhiều yếu tố. Do đó rất khó để đưa ra mức giá cụ thể của mẫu thiết kế nhà biệt thự 3 tầng hiện đại. Trong quá trình thiết kế, xây dựng biệt thự phụ thuộc vào phong cách thiết kế, diện tích mặt bằng, vật liệu mà gia chủ lựa chọn. Tuy nhiên gia chủ có thể căn cứ vào công thức sau để tính toán mức chi phí cần bỏ ra:
Chi phí đầu tư = đơn giá thi công x tổng diện tích

Trong đó tổng diện tích bao gồm diện tích móng, diện tích sàn và diện tích mái. Căn cứ vào những dữ liệu đó gia chủ có thể ước định khoản chi phí phải bỏ ra. Đồng thời chuẩn bị và lựa chọn vật liệu phù hợp với điều kiện kinh tế của gia đình. Ngoài ra khách hàng có thể tra cứu thông tin cụ thể dưới đây:
Xu hướng biệt thự 3 tầng được ưa chuộng nhất
Xây dựng biệt thự 3 tầng đẹp, hiện đại là yếu tố được gia chủ quan tâm nhiều nhất hiện nay. Cũng giống như mẫu nhà cấp 4, biệt thự 2 tầng, thiết kế nhà ống thì mẫu nhà đẹp 3 tầng với 4 xu hướng như sau:
Mẫu biệt thự đẹp 3 tầng phong cách cổ điển
Đây là xu hướng vẫn được nhiều gia chủ lựa chọn bởi sự tinh tế, sang trọng từ những đường nét. Tính nghệ thuật cao từ chi tiết nhỏ nhất đến việc thể hiện quyền lực, cái tôi của gia chủ. Phong cách này cũng là cách những con người hoài niệm, nhớ về quá khứ.

Thiết kế biệt thự tân cổ điển 3 tầng sẽ lên ngôi
Biệt thự tân cổ điển du nhập tại Việt Nam có chỗ đứng vững chắc trong lòng khách hàng. Người ta ấn tượng với vẻ đẹp trầm mặc mà còn cuốn hút, phá cách với tư duy hiện đại. Chắc chắn thời gian tới đây là ưu tiên hàng đầu của gia chủ trong quá trình xây biệt thự. Những mẫu thiết kế biệt thự 3 tầng đẹp, hiện đại sẽ đánh gục bạn từ các nhìn đầu tiên,.

Mẫu biệt thự 3 tầng hiện đại
Đây là xu hướng dành cho gia chủ yêu thích sự đơn giản, khỏe khoắn trong từng đường nét. Việc vận dụng linh hoạt lối kiến trúc hình học tạo nên thiết kế biệt thự hiện đại 3 tầng thanh lịch.

Biệt thự 3 tầng mái thái đẹp, cuốn hút
Mẫu biệt thự mái thái hứa hẹn sẽ là lựa chọn hàng đầu của gia chủ thời gian gần đây. Không chỉ đa dạng về kiểu dáng mái mà còn thích hợp với nhiều địa hình thời tiết khác nhau. Nhà đẹp 3 tầng mái thái được đánh giá cao về yếu tố thẩm mỹ, giá cả hợp lý. Đặc biệt lối kiến trúc mang đến vẻ đẹp phóng khoáng, đẳng cấp.

Mẫu biệt thự đẹp, hiện đại 3 tầng phổ biến hiện nay
Mẫu nhà biệt thự 3 tầng 2 mặt tiền mái thái
Thiết kế biệt thự 3 tầng 2 mặt tiền là lối kiến trúc dành cho diện tích có nhiều mặt tiền rộng mở. Cách bố trí này mang đến sự sang trọng, hiện đại cho không gian sống của bạn. Đồng thời có thể phân chia để phục vụ công việc kinh doanh và nhu cầu nhà ở.



Mái thái là kiểu dáng mái được ưa chuộng trong nhiều kiểu nhà như: nhà cấp 4, biệt thự 2 tầng, nhà ống. Đối với mẫu biệt thự 3 tầng đẹp, hiện đại thì mái này được ứng dụng linh hoạt. Mẫu nhà biệt thự 3 tầng hiện đại có màu sắc mái thay đổi phù hợp với từng mảng sơn ngoại thất.



Thiết kế biệt thự mini 3 tầng hiện đại
Mẫu thiết kế biệt thự mini vẫn đảm bảo lối kiến trúc hài hòa, tinh tế với tổng thể. Thêm vào đó, công năng và các không gian chức năng vẫn được đảm bảo hoàn toàn. Điều đó giúp du khách có điều kiện sống được nâng cao mà chi phí xây dựng hợp lý.




Ngoài việc tuân thủ những tiêu chuẩn thiết kế biệt thự mini hiện nay. Thiết kế biệt thự tân cổ điển 3 tầng có thể bố trí thêm sân vườn hoặc gara ô tô. Cách làm này giúp mang đến tiện nghi sinh hoạt và môi trường sống có lợi cho sức khỏe. Màu sơn tường hay màu mái lợp cần hài hòa, đồng nhất với nhau.


Mẫu biệt thự đẹp tân cổ điển 3 tầng
Vẻ đẹp tân cố điển xuất hiện trong nhiều thiết kế kiến trúc nhà. Ở mỗi kiểu nhà, vẻ đẹp đó được biến đổi linh hoạt, phù hợp với điều kiện của diện tích đất khác nhau. Thông thường thiết kế biệt thự 3 tầng tân cổ điển chọn gam màu trắng sang trọng và tạo điểm nhấn bằng đường phào chỉ tinh tế. Tất cả mang đến vẻ đẹp hài hòa, độc đáo từ những chi tiết nhỏ nhất.





Mẫu nhà biệt thự 3 tầng kiểu Pháp
Thiết kế biệt thự 3 tầng kiểu Pháp đẹp với dấu ấn độc đáo trường tồn với thời gian. Lối kiến trúc trải qua thời gian dài vẫn không bị lỗi mốt. Bạn hoàn toàn có thể sử dụng những căn biệt thự trong thời gian dài mà vẫn đảm bảo yếu tố thẩm mỹ.



Cách bố trí tiểu cảnh cùng màu sơn ngoại thất giúp căn biệt thự có sức hút mãnh liệt. Mẫu thiết kế biệt thự 3 tầng hiện đại kiểu Pháp còn chú ý đến bố trí ánh sáng. Ánh sang nhân tạo và ánh sáng tự nhiên cần có sự phối hợp nhịp nhàng, uyển chuyển.


Thiết kế biệt thự 3 tầng đẹp, hiện đại đem đến chất lượng cuộc sống và giá trị thẩm mỹ ấn tượng. Đó là những điều mà House Viet và gia chủ cùng hướng tới trong quá trình thiết kế, thi công tổ ấm. Nếu có nhu cầu tư vấn chi tiết về các mẫu biệt thự hiện đại 3 tầng đẹp bạn có thể liên hệ Hotline 1800 6015. Chúng tôi cam kết mang đến cho bạn thông tin hữu ích, cần thiết từ đội ngũ kiến trúc sư giàu kinh nghiệm.
Thông tin thêm:
- 17 Mẫu thiết kế biệt thự Tân Cổ Điển đẹp nhất
- Tham khảo thiết kế biệt thự tân cổ điển 3 tầng 200m2
Nội Thất House Viet – Vững Bước Niềm Tin