35+ mẫu thiết kế nhà cấp 4 mái thái đẹp, hiện đại, giá rẻ
Những mẫu nhà cấp 4 mái thái được rất nhiều khách hàng quan tâm trong thời gian gần đây. Là kiểu nhà mang đến không gian rộng rãi, thoáng mát với kiến trúc xây dựng độc đáo, tiện nghi. Kiểu nhà cấp 4 mái thái này chắc chắn mang đến sự lựa chọn tuyệt vời cho gia chủ trong việc xây dựng tổ ấm gia đình. Cùng House Viet khám phá mẫu nhà độc đáo qua bài viết dưới đây nhé!
Đặc điểm của những mẫu nhà cấp 4 mái thái là gì?
Thực ra Nhà cấp 4 mái thái đẹp là một trong những loại hình nhà ở phổ biến tại Việt Nam. Về cơ bản, mẫu nhà này có kết cấu và diện tích như những mẫu thiết kế nhà cấp 4 thông thường. Tuy nhiên, nhờ sự đa dạng về màu sắc và kiểu dáng nên nó đã trở thành sự lựa chọn trong xây dựng nhà. Vậy làm sao để nhận biết nhà mái thái so với các kiểu nhà thông thường khác?

Hầu hết các mẫu nhà cấp 4 mái thái đều là kiểu kiến trúc thấp tầng, gồm một trệt hoặc thêm một tầng lửng. Với đặc điểm là mái dốc có nhiều chi tiết nhỏ, tỉ mỉ tạo nên dấu ấn đậm nét trong tổng thể kiến trúc.
Các khuôn chỉ gấp đôi hoặc gấp 3 lần mẫu nhà cấp 4 đơn giản khác. Chính vì vậy, kiểu mái này còn được ứng dụng nhiều trong các không gian như biệt thự, nhà phố, .. tạo hiệu quả thẩm mỹ rõ rệt.

Ưu nhược điểm của mẫu nhà cấp 4 mái thái
Tích hợp nhiều tiện ích
Phần mái có kết cấu cao và rộng nên mặt mái hạn chế tối đa việc đọng nước. Kiểu mái thái khi có nước sẽ Trượt theo rãnh nghiêng trên mái để rơi xuống đất. Điều này giúp loại bỏ tình trạng đọng nước trên bề mặt mái giúp kéo dài tuổi thọ cho công trình.

Đặc biệt với những đoạn dốc cao, nước hoàn toàn chảy xuống, không có hiện tượng thấm xuống mái. Ngoài ra, độ khuếch đại cực cao, vì vậy Nhà cấp 4 mái thái Đảm bảo không gian thoáng. Ánh sáng mặt trời được phân tán xung quanh làm cho ngôi nhà của bạn mát mẻ hơn vào mùa hè.

Đa dạng về mẫu mã
Yếu tố thẩm mỹ của Mẫu nhà cấp 4 mái thái đẹp được khách hàng đánh giá cao. Với màu sắc bắt mắt và kiểu dáng đa dạng tạo nên ấn tượng riêng biệt. Hiện nay kiểu nhà cấp 4 mái thái được sử dụng là mái bằng và các đợt lớn với màu sắc đa dạng.

Tùy theo sở thích và nhu cầu mà bạn có thể lựa chọn mẫu thiết kế phù hợp nhất. Bên cạnh đó, nhà cấp 4 có thời gian thi công nhanh chóng và đi kèm với chi phí xây nhà cấp 4 Mái Thái được tiết kiệm hiệu quả. Vì vậy, đây là một trong những lựa chọn hàng đầu của các gia chủ trong việc xây dựng tổ ấm.

Có tính thẩm mỹ cao
Mẫu nhà cấp 4 mái thái nằm trong danh sách những mẫu nhà có tính thẩm mỹ cao. Vì thiết kế dài và rộng nên bạn liên tưởng ngay đến tầng áp mái trong các lâu đài cổ tích. Nhấn mạnh rằng thiết kế nhà cấp 4 tạo nên vẻ đẹp quyến rũ mà không kém phần hiện đại.

Bên cạnh đó, bạn sẽ nhận được nhiều ý tưởng khi Trang trí nhà cấp 4 mái thái. Do đó, chỉ cần bớt chút thời gian là bạn có thể tìm được nhiều món đồ trang trí ấn tượng và thu hút. Bạn có thể bố trí không gian thu nhỏ kết hợp với màu sơn ngoại thất hợp lý. Hoặc bạn có thể bố trí không gian nội thất với những họa tiết ấn tượng.

Phong thủy ổn định
Các Thiết kế nhà cấp 4 | Mang yếu tố phong thủy ổn định và hiệu quả. Kiểu nhà có độ dốc cao, kết cấu hình chóp để tránh tích tụ hung khí. Bên cạnh đó, ổn định quá trình tích tụ vượng khí trong nhà tạo nên vận khí tốt cho gia chủ.

Không tốn kém
Kiểu nhà mái thái được đánh giá là kiểu nhà có giá thành xây dựng cao. Trong quá trình xây nhà, nếu không tỉ mỉ trong khâu xây dựng và lựa chọn thì mái tôn có tuổi thọ ngắn. Bên cạnh đó, mẫu thiết kế nhà cấp 4 hiện đại này có phần mái nặng nên cần gia cố phần móng, bệ, cột chắc chắn.
Mẫu thiết kế nhà cấp 4 mái thái đẹp
Với sự đa dạng về màu sắc và phong cách xây dựng, con người có thể biến tấu thành nhiều kiến trúc khác nhau. Các không gian dù được biến tấu nhưng vẫn thể hiện được những nét đặc trưng của ngôi nhà cấp 4 truyền thống. Có thể liệt kê những kiểu nhà được xây dựng phổ biến trong thời gian gần đây như:
Mẫu nhà cấp 4 mái thái có gác lửng
Kiến trúc gác lửng hiện đại giúp tăng diện tích sử dụng cho ngôi nhà. Cùng với đó, ngôi nhà vừa cân bằng phong thủy vừa có giá trị thẩm mỹ. Các gia đình có thể tận dụng tầng lửng để bố trí phòng ngủ, bố trí nơi để đồ tiện lợi.





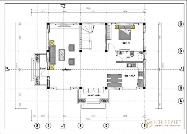
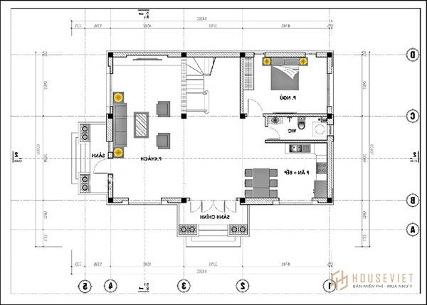
Mẫu nhà cấp 4 mái thái 3 phòng ngủ
Mẫu nhà cấp 4 đẹp được bố trí 3 phòng ngủ giúp ngôi nhà có chiều sâu. Hầu hết các mẫu nhà cấp 4 có gác lửng 5 × 20 là diện tích phổ biến được nhiều gia chủ lựa chọn. Với diện tích như vậy gia chủ sẵn sàng sở hữu những mẫu nhà cấp 4 đẹp giá rẻ. Đặc biệt, bạn có thể tự do trang trí ngôi nhà của mình theo các phong cách thiết kế khác nhau.




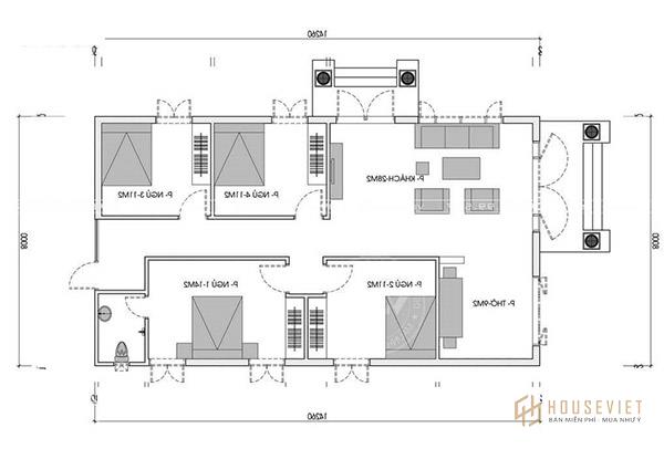
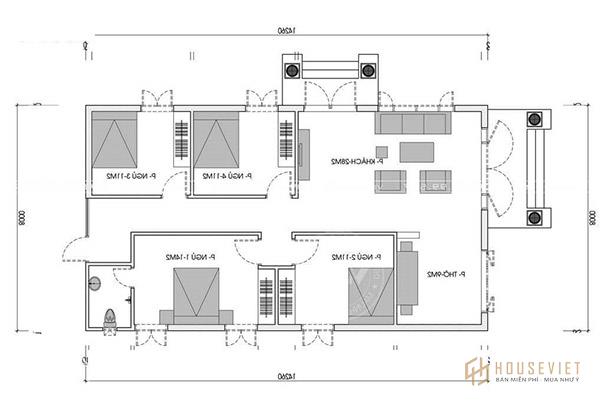
Mẫu nhà cấp 4 mái thái đẹp 4 phòng ngủ
Nhà cấp 4 4 phòng ngủ Đây là kiểu công trình được ưa chuộng nhất trong thời gian gần đây. Không chỉ mang đến không gian sống rộng rãi. Đồng thời tạo thêm không gian cho những gia đình có nhiều thành viên. Đặc biệt với những gia đình có người già để tiện cho công việc chăm sóc.



Kết cấu 4 phòng ngủ dường như gây khó khăn cho việc xây dựng và bố trí không gian. Tuy nhiên, chỉ cần khéo léo bạn vẫn có thể bố trí căn phòng hợp lý mà không ảnh hưởng đến tổng thể ngôi nhà.



Hy vọng bài viết đã cung cấp cho bạn những mẫu nhà cấp 4 mái thái đẹp, ấn tượng nhất. House Viet Hi vọng dựa trên những thông tin đó bạn sẽ chọn được mẫu thiết kế ưng ý nhất. Chúng tôi sẵn sàng tư vấn thiết kế, thi công và xây nhà theo phong thủy. Quý khách hàng vui lòng liên hệ 1800 6015 để đội ngũ kiến trúc sư giàu kinh nghiệm sẽ hỗ trợ nhiệt tình cho bạn.
Tham khảo thêm các mẫu nhà cấp 4 khác:
- Tổng hợp những mẫu nhà cấp 4 hình chữ L đơn giản đẹp giá rẻ gần đây
- Những mẫu nhà cấp 4 đẹp 5 × 20 có 2-3 phòng ngủ
Nội địa Đó House Viet - Vững niềm tin