4 Bản vẽ thiết kế nhà 2 tầng 5x15m đáng chiêm ngưỡng An Lộc
Bản vẽ nhà 2 tầng 5x15m đẹp được xây dựng dựa trên nhu cầu của khách hàng và cập nhật xu hướng mới nhất trên thị trường. Mẫu thiết kế nhà 2 tầng mặt tiền 5m được xây dựng đa dạng về phong cách thiết kế giúp gia chủ có một không gian sống ấm cúng và hiện đại. Để giúp khách hàng có nhiều ý tưởng thiết kế độc đáo, An Lộc gửi đến bản vẽ thiết kế nhà 2 tầng 5 × 15 đang làm mưa làm gió trên thị trường.
Mẫu thiết kế nhà 2 tầng mặt tiền 5m.
Bản vẽ mẫu nhà 2 tầng 5 × 15 đẹp ghi điểm với mặt tiền tận dụng tối đa ánh sáng tự nhiên tạo sự thông thoáng cho không gian sống. Cây xanh trên ban công tạo nên vẻ đẹp ấn tượng cho mẫu thiết kế nhà 2 tầng mặt tiền 5m. Điểm nhấn ở phần mái và phần ban công nhô ra của bản vẽ mặt bằng nhà phố 5m chính là gam màu cam nổi bật trung hòa giữa gam màu trắng - xanh của mặt tiền.
Bạn đang xem: 4 Bản vẽ thiết kế nhà 2 tầng 5x15m đáng chiêm ngưỡng An Lộc




Mẫu nhà đẹp 2 tầng 5x15m Ghi điểm với phần mái bằng chắc chắn tạo nên vẻ đẹp khỏe khoắn. Các ngăn của tầng 2 được phân chia hiệu quả để phát huy công năng trong quá trình sử dụng.
>>> Tham khảo thêm mẫu nhà phố 2 tầng mặt tiền 5m hiệu quả cao về mặt thẩm mỹ và phong thủy tại đây: https://anlocgroup.com/nha-pho-mat-tien-5m/



Bản vẽ nhà ống 2 tầng 5 × 15 đẹp và tiện nghi
Xem thêm: Tư vấn thiết kế nhà 2 tầng 9x10m mái thái 4 phòng ngủ
Mẫu nhà đẹp 2 tầng 5x15m dạng ống sử dụng mái bằng truyền thống tạo nên vẻ đẹp vững chãi và cá tính. Khu vực tầng 1 với điểm nhấn ở phần hiên trước là mái Thái nhằm tăng yếu tố thẩm mỹ. Mẫu thiết kế nhà ống 2 tầng 5x15m sử dụng màu sơn ngoại thất kết hợp màu vàng trắng lạ mắt.


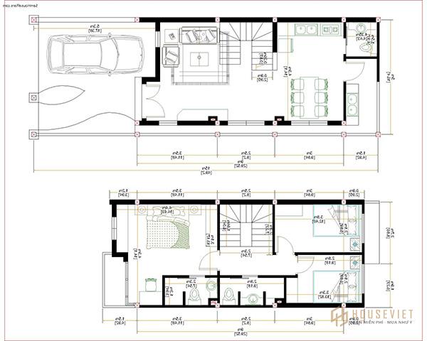
Cách bố trí các chức năng trong mẫu nhà đẹp 2 tầng 5x15m gồm phòng khách, bếp, phòng ngủ và khu sinh hoạt chung. Bản vẽ nhà 2 tầng 5 × 15 mô tả tầng 1 là nơi để xe rộng rãi kết hợp với phòng khách rộng mở thông với bếp ăn hiện đại. Tầng 2 chủ yếu gồm các phòng ngủ và khu sinh hoạt chung để các thế hệ trong gia đình sinh hoạt thuận tiện.


Bản vẽ thiết kế nhà 2 tầng 5 × 15 Phân chia công năng linh hoạt với 3 phòng ngủ tiện nghi. Sân trước để xe của gia đình với diện tích rộng rãi thoải mái. Phòng ngủ tiếp giáp với sân sau để có tầm nhìn thoáng đãng và dễ chịu. Tầng 2 bố trí 2 phòng ngủ và phòng thờ kết hợp với khu sinh hoạt chung của gia chủ.

Bản vẽ thiết kế nhà phố 2 tầng 5 × 5 3 phòng ngủ
Bản vẽ nhà 2 tầng 5 × 15 được thiết kế với mặt tiền thoáng qua hệ thống cửa kính trải dài từ tầng 1 đến tầng 2. Trang trí ban công nhà phố mặt tiền 5m bằng cây xanh giống như một bức rèm thiên nhiên. tiện nghi, thoải mái cho ngôi nhà. Kiến trúc mái bằng theo xu hướng xéo giúp diện tích mái Mẫu nhà phố 2 tầng 5 × 15 không có nước đọng.



Bản vẽ nhà 2 tầng 5 × 15 Căn nhà gồm phòng khách, bếp và 3 phòng ngủ tiện nghi. Khu vực tầng 1 là không gian xanh kết hợp để xe, phòng khách, bàn ăn, 1 phòng ngủ. Tầng 2 gồm 2 phòng ngủ, quầy lễ tân và khu sinh hoạt chung. Không gian xanh vẫn được ứng dụng một cách hiệu quả và ấn tượng.

Bản vẽ mẫu nhà lệch tầng 5 × 15 đẹp, hiện đại
Xem Thêm: Mẫu Nhà Phố 1 Trệt 2 Lầu Sân Thượng Đẹp Hiện Đại Diện Tích 5x20m - Song Phát Construction
Mẫu nhà lệch tầng 5 × 15 ghi điểm với kiến trúc mặt tiền độc đáo giúp tăng tính thẩm mỹ cho không gian sống của gia chủ. Trang bị hệ thống cửa kính, đèn chiếu sáng tạo nên mặt tiền nhà phố 5m ấn tượng. Cây xanh được bố trí trên ban công với mức độ vừa phải không tạo cảm giác khó chịu cho mọi người trong quá trình sử dụng.


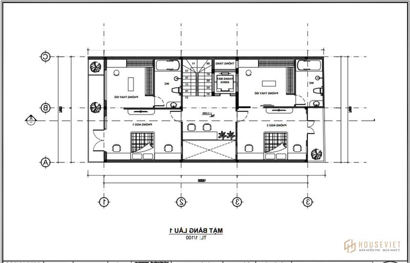
Mẫu nhà đẹp 5x15m được bố trí công năng tầng 1 với các khu vực phòng khách - bếp - để xe khoa học đến từng chi tiết. Vị trí tầng 2 gồm 2 phòng ngủ và 2 phòng thay đồ hiện đại phát huy được công năng khi sử dụng. Giữa 2 phòng ngủ là không gian sinh hoạt của các thành viên trong gia đình tạo sự kết nối liền mạch.


Bài viết cung cấp bản vẽ mẫu nhà 2 tầng 5x15m mà chúng tôi đã thực hiện trong thời gian qua. Hi vọng với ý tưởng độc đáo đó, bạn có thể có được một mẫu thiết kế nhà 2 tầng đẹp 5x15m tiện nghi. An Lộc sẵn sàng hỗ trợ khách hàng trong việc thiết kế và thi công nhà ở các kiểu. Hãy liên hệ với kiến trúc sư giàu kinh nghiệm của chúng tôi 0966 176 288 để được hỗ trợ.
Các bài viết khác:
- Bản vẽ chi tiết thiết kế nhà 3 phòng ngủ 2 tầng 4 × 16 đẹp, hiện đại
- Mẫu thiết kế nhà 2 tầng mặt tiền 5m đẹp siêu hấp dẫn
Nội thất An Lộc - Vững niềm tin
Nguồn: https://menhadep.com Hạng mục: Nhà 2 tầng