4 bộ bản vẽ thiết kế nhà mặt tiền 6m 3 tầng có giếng trời
Mẫu nhà phố mặt tiền 6m 3 tầng đẹp vừa bàn giao đầy đủ hồ sơ thiết kế. Để anh Kỳ có thể tối ưu không gian nhà phố hiện đại với không gian mở, hãy tham khảo những thông tin cập nhật của chúng tôi.
- Mẫu biệt thự tân cổ điển 3 tầng đẹp mặt tiền 15m sâu 10m
 - Mẫu biệt thự rộng 15m 2 tầng mái ngói
 
Hồ sơ bản vẽ nhà mặt tiền 6m 3 tầng 90m2
Bản vẽ thiết kế nhà mặt tiền rộng 6m dài 15m được xây dựng trên mảnh đất hướng Tây 6 × 22. Trong đó diện tích sàn xây dựng là 90m2 gồm sảnh và ban công. Thông số mẫu thiết kế nhà ngang 6m dài 15m 1 trệt 2 lầu sân thượng như sau
- Hồ sơ thiết kế nhà phố ngang 6m 3 tầng năm 2021
 - Chủ nhà: Ông Lê Xuân Kỳ
 - Năm sinh 1975 Ất Mão
 - Phong thủy Đới Kim - Tông màu trắng xanh
 - DT đất: Ngang 6m, dài 22m
 - DTXD: 270m2
 - Chi phí xây dựng phần thô: 1,2 tỷ đồng
 - Năm xây dựng: 2022
 - Bản quyền thiết kế kiến trúc: Công ty cổ phần tư vấn thiết kế NHÀ MỚI ĐẸP
 - Thời gian thi công phần thô là 2,5 tháng
 - Thời gian hoàn thành 1,5 tháng đưa vào sử dụng
 

== >> Xem thêm những mẫu nhà ống đẹp năm 2022 vừa qua. Vừa thiết kế 2,5 tầng rộng 6m bàn giao hồ sơ công ty chúng tôi.
Hình ảnh mặt tiền mẫu nhà phố 3 tầng mặt tiền 6m đơn giản
Vật mẫu nhà mặt tiền 6x15m 3 tầng mặt tiền đơn giản Thiết kế có ngoại thất sơn màu trắng kim loại. Ngõ trước nhà rộng 6m trang trí ban công view đẹp. Sử dụng kính cường lực màu trong suốt dày 10mm. Thiết kế kết hợp với những chậu cây nhỏ và tiểu cảnh để tăng thêm mảng xanh cho kiến trúc nhà phố 1 trệt 2 lầu hiện đại hơn.
- Mẫu nhà 1 trệt 2 lầu có sân thượng giá rẻ xây trên đất ngang 6m dài 20m
 - Kiến trúc nhà 3 tầng mái thái, mặt tiền kiểu pháp
 

Mẫu nhà phố mặt tiền 6m 3 tầng 90m2 thiết kế với màu sơn và vật liệu nhẹ dễ thi công. Hệ thống cửa nhôm kính Xingfa giúp lấy sáng và thông gió tối ưu hơn cho nội thất nhà mặt tiền 6m Sâu vào trong 15m. Mẫu nhà phố mặt tiền 5m 6m thiết kế theo hướng chính Tây. Tương sinh với mảnh đất hiện tại của anh Kỷ cũng như chọn màu sơn tường nhà theo Thủy - Ngũ hành Đoài Kim.
xem thêm: Những mẫu nhà đẹp có mặt tiền làm mê đắm lòng người Việt 2022
Bản vẽ thiết kế nhà mặt tiền 6m 3 tầng mặt tiền phố đẹp
Mẫu nhà 6x15m 3 tầng thiết kế hiện đại với hơn 135 bản vẽ chi tiết từ mặt bằng kiến trúc, điện nước, kích thước cửa sổ, cửa chính .. bản vẽ móng băng, bản vẽ xử lý mái, chống thấm, kích thước cầu thang, dự toán chi tiết đầy đủ. Để gia đình Kỳ chuẩn bị tài chính đón Tết, xây dựng sự thoải mái

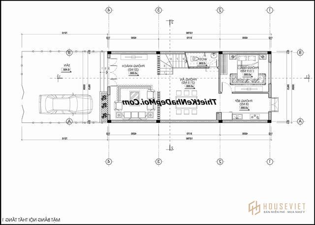
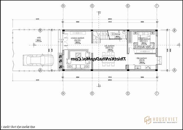
Kích thước mặt bằng bản vẽ nhà mặt tiền 6m tầng 1
Mặt bằng nhà phố ngang 6m dài 22m thiết kế chừa sân trước, cổng rào 7m. Có khoảng trống phía sau và giếng trời 2m để trồng lan và chuồng chó tùy theo sở thích. Bản vẽ thiết kế nhà mặt tiền 6m Sâu 15m bao gồm cả sảnh chính bên ngoài. Diện tích xây dựng 90m2, xây dựng trệt, mẫu nhà đẹp 2022, anh Kỷ phân lô
- Phòng khách 22m2
 - Phòng ăn rộng 21,5m2
 - Diện tích bếp 8m2
 - Phòng ngủ 14m2
 - Phòng tắm chung 4m2
 

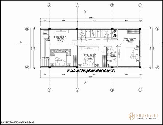
Bản vẽ nhà phố mặt tiền 6m dài 15m tầng 2
Tầng 1 có bản vẽ thiết kế nhà ngang 6m dài 15m anh Ký có ban công trước nhà 1,3m để ngắm cảnh. Bên ngoài cùng phòng ngủ có cửa sổ 4 ô thoáng, mặt tiền hướng ra phố tây. Kích thước các phòng mẫu nhà phố 6x15m tầng 2 như sau
- Phòng ngủ lớn ngoài mặt tiền 29m2
 - 2 phòng ngủ cuối 18m2
 - Phòng ngủ 3 13m2
 - Phòng tắm có bồn tắm chính xác 4,5m2
 

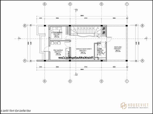
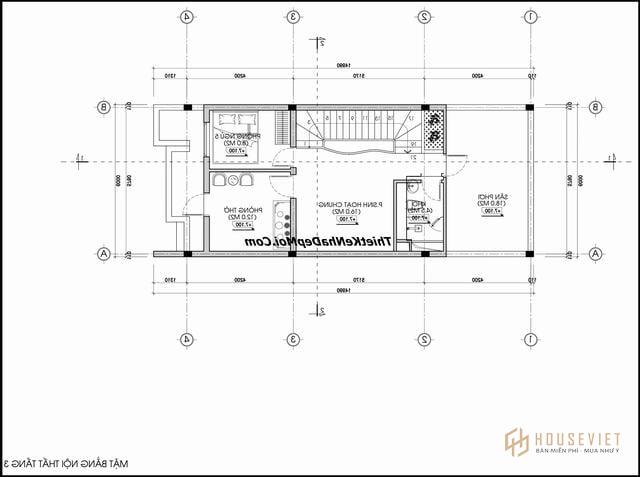
Bản vẽ thiết kế nhà mặt tiền 6m tầng 3
Không gian nhà phố 6m2 tầng 2 của anh Kỳ được thiết kế theo yêu cầu có thêm phòng ngủ 5. Ban công kết hợp sân thượng không cần quá rộng. Một phòng thờ có hướng nhìn ra mặt tiền chính Tây và có cửa thông ra ban công bên ngoài. Phía sau bản vẽ thiết kế nhà ống ngang 6m có sân phơi, máy giặt. Phòng sinh hoạt chung và một phòng tắm. Kích thước các phòng trên tầng 3 của mẫu nhà phố 3 tầng hiện đại mặt tiền 6x15m như sau
- Phòng thờ: 12m2
 - Phòng ngủ dự phòng cho khách 8m2
 - Phòng sinh hoạt chung 16m2
 - Ban công 6.8m2
 - Toilet 4,5m2
 - Sân phơi 18m2
 

Tham khảo thêm bản vẽ nhà đẹp mặt tiền 6m 1 trệt 2 lầu 90m2 này
Đây là bản vẽ thiết kế nhà mặt tiền 6m hiện đại tối ưu theo phong cách nhà ống đẹp đơn giản. Giải pháp cầu thang sát tường để tối ưu hóa không gian. Do gia đình đông con nên phương án phòng ăn được thiết kế rộng rãi ở tầng trệt nhà phố 6m. Không gian phòng khách được thiết kế liên thông với phòng ăn bằng vách ngăn gỗ.
Ngoài công ty thiết kế nhà đẹp chúng tôi còn có hơn 30 mẫu thiết kế nhà phố khác. Mẫu thiết kế nhà ngang 5m với kích thước và nhà mặt tiền 6m mái đẹp. Những không gian vừa kinh doanh vừa để ở hoặc có ô tô vào nhà các bạn có thể tham khảo các link bên dưới
- Tư vấn thiết kế nhà mặt tiền 6m 1 trệt 1 lầu 1 sân thượng anh Thiện Biên Hòa
 - Mẫu nhà mặt tiền 6m 2 tầng hình chữ L mái thái đẹp
 - Mẫu thiết kế nhà đẹp 6x15m có gara trong nhà
 

- Nếu bạn thích mẫu nhà mái thái thì hãy xem mẫu nhà của chị Hà trong hình ảnh này nhé
 
Lý do bạn nên xây mẫu thiết kế nhà phố mặt tiền 5m 6m 3 tầng đẹp
Mẫu nhà lệch tầng hiện đại thiết kế 6x15m lấy sáng chủ yếu ở sân trước và giếng trời sau 2m. Ở giữa cầu thang mái có thiết kế mái kính. Có hình chữ nhật nằm ngang làm giếng trời. Bạn có thể kéo ngược lên trên bản vẽ thiết kế nhà mặt tiền 6m 3 tầng này quan sát kỹ hơn sẽ rõ. Ngoài ra. Trên nóc có trần hở bằng tôn che nắng. Đối với bể chứa nước và năng lượng mặt trời cũng như lối thoát hiểm

Hình ảnh nhà phố mặt tiền 6m kinh doanh
Bản vẽ thiết kế nhà phố mặt tiền 6m 3 tầng hiện đại thoáng mát. Có bãi đậu xe hơi. Kiến trúc nhẹ nhàng, không cầu kỳ và tối ưu những đường nét phóng khoáng đơn giản nhẹ nhàng. Mặt tiền trang nhã với thiết kế đẹp và hài hòa. Quy mô hình khối tiêu chuẩn và tối ưu hóa không gian xanh. Rất thích hợp cho nhà phố liền kề tim tường 6m.

- Cần xây nhà có tầng hầm vừa ở vừa kinh doanh, xem thêm hồ sơ nhà phố mặt tiền 6m anh Sang
 
Ngoài hồ sơ bản vẽ nhà mặt tiền 6m Đẹp 1 trệt 2 lầu 2022. Chúng tôi còn hơn 87 mẫu thiết kế nhà phố rộng 6m 4 5 tầng. Ngay cả ngôi nhà có chiều sâu ngắn hơn ngôi nhà đẹp này, hãy cùng tham khảo để biết thêm thông tin nhé. Yêu và quý!