4 mẫu biệt thự 3 tầng 2 mặt tiền đẹp phù hợp với xu hướng hiện nay
Mẫu biệt thự 3 tầng 2 mặt tiền là một trong những kiến trúc nhà ở được ưa chuộng nhất hiện nay. Không chỉ sở hữu vẻ đẹp nổi bật, bắt mắt về chiều sâu của ngôi nhà mà biệt thự 2 mặt thoáng giúp không gian sống trở nên thoáng đãng, nâng tầm giá trị thẩm mỹ cho ngôi biệt thự. Đây là một số Mẫu biệt thự 3 tầng 2 mặt tiền xinh đẹp CHÚNG TÔI LÀM muốn giới thiệu để bạn tham khảo.
Mẫu biệt thự 3 tầng 2 mặt tiền phong cách hiện đại
Mẫu biệt thự 3 tầng 2 mặt tiền Được thiết kế với phong cách hiện đại, toát lên vẻ đẹp vô cùng cuốn hút và có cá tính riêng. Ngôi nhà có sự kết hợp hài hòa giữa các màu sắc. Với gam màu trắng chủ đạo kết hợp với nhiều gam màu tự nhiên khác mang đến cho không gian sự khác biệt và mới lạ. Thiết kế biệt thự có kiến trúc mở với toàn bộ hệ thống cửa và ban công bằng kính. Nhờ đó, mọi không gian trong nhà đều nhận được ánh sáng tự nhiên. Ngoại thất biệt thự còn được tô điểm bởi hệ thống hành lang bằng kính cao cấp cũng như cảnh quan xanh mát mang đến thiên nhiên trong lành cho ngôi nhà.

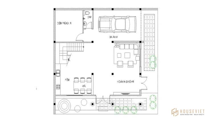
Tầng 1 của biệt thự có phòng khách rộng rãi, phòng bếp kết hợp phòng ăn. Ngoài ra còn có bãi đậu xe với một cửa phụ dẫn đến phòng khách. Đối diện là phòng của người giúp việc.

Tầng 2 của Mẫu biệt thự 3 tầng 2 mặt tiền Đó là không gian riêng tư của các thành viên trong gia đình. Gồm 3 phòng ngủ. 1 phòng ngủ chính. Phòng ngủ chính được thiết kế tách biệt về một phía, có phòng thay đồ, phòng làm việc và khu vệ sinh độc lập.

Tầng 3 Mẫu biệt thự 3 tầng 2 mặt tiền 3 phòng ngủ tiện nghi. 1 phòng thờ có cửa thông ra ban công rộng trước nhà nên không gian thờ cúng linh thiêng này luôn thông thoáng.

Mẫu biệt thự 3 tầng mặt tiền mái thái sang trọng
Được thiết kế sang trọng với lối kiến trúc độc đáo, mang tính thẩm mỹ riêng biệt, Mẫu biệt thự 3 tầng 2 mặt tiền mang đến vẻ ngoài tinh tế và đường nét cơ thể độc đáo nâng tầm đẳng cấp. Tiếp nối phong cách tân cổ điển sang trọng, mẫu biệt thự 3 tầng thể hiện trọn vẹn vẻ đẹp quyền uy, bề thế, tôn lên vị thế của gia chủ. Các chi tiết thiết kế, hoa văn và đường gờ được chạm khắc tinh xảo và ấn tượng, mang đến một tổng thể ngoại thất cuốn hút. Sát tường rào bao quanh mẫu nhà đẹp là sân vườn xanh mát để gia chủ có thể thư giãn, tiếp khách và nghỉ ngơi khi làm vườn.

Mặt bằng nội thất tầng 1 được thiết kế gồm phòng khách rộng, không gian mở liên thông với phòng trà và bếp ăn, hầm rượu và 1 phòng ngủ khép kín, 1 vệ sinh chung. Để tạo sự liên hoàn với sân vườn, một chòi được thiết kế cạnh hồ nước tạo không gian thơ mộng.

Chức năng giai đoạn 2 Mẫu biệt thự 3 tầng 2 mặt tiền nội thất 3 phòng ngủ. Ngoài khu vực thư giãn chung của các thành viên khác còn có khu vực phòng sinh hoạt chung, phòng hát karaoke và sân chơi có thể bố trí nhiều hoa và tiểu cảnh đẹp mắt.

Không gian tầng 3 được thiết kế phòng thờ chuẩn phong thủy của gia chủ. Ở tầng này cũng được bố trí 1 phòng ngủ độc lập, 1 khu sinh hoạt chung, sân chơi và khu phơi đồ.

Thiết kế biệt thự 3 tầng 2 mặt tiền 4 phòng ngủ
Quan điểm toàn cầu Mẫu biệt thự 3 tầng 2 mặt tiền Hiện đại với những đường nét góc cạnh nhưng tinh tế và cuốn hút. Vật liệu chính được sử dụng là những thanh nhôm màu đen tạo nên sự năng động và ấn tượng trở thành điểm cao thu hút mọi ánh nhìn của du khách và người qua đường. Tông màu được sử dụng là màu trắng kết hợp đá và nâu gỗ tạo sự riêng tư và ấm cúng cho ngôi nhà. Có 2 mặt tiền nên thuận tiện cho gia đình có không gian đi lại, có không gian phía trước rất thoải mái. Xung quanh biệt thự là những mảng xanh mang đến cho chủ nhân một không gian sống thoáng mát hài hòa với thiên nhiên và mang lại cảm giác thoải mái sau một ngày làm việc mệt mỏi.

Ở tầng 1, kiến trúc sư đã bố trí không gian sinh hoạt chính của gia đình gồm có gara, phòng khách, phòng làm việc và khu vực sân thượng. Cuối nhà là khu vệ sinh riêng, có lối ra khi vườn có người.

Trên tầng 2 Mẫu biệt thự 3 tầng 2 mặt tiền Có 2 phòng ngủ, nhà bếp và phòng tắm riêng cho mỗi phòng ngủ. Cách bố trí bếp ở đây cũng khá hợp lý vì tầng này có ban công và không gian thoáng mát. Do đó, không khí luôn được lưu thông, không bị ám mùi thức ăn.

Tầng 3 của Mẫu biệt thự 3 tầng 2 mặt tiền gồm 2 phòng ngủ, 1 phòng thờ có cửa thông ra ban công rộng trước nhà. Giúp tạo sự thông thoáng cho nơi thờ cúng linh thiêng.

Mẫu thiết kế biệt thự 3 tầng 2 mặt tiền mái thái
Biệt thự 3 tầng 2 mặt tiền mới phô diễn được hết những nét đẹp tinh xảo của kiến trúc. Không quá đồ sộ nhưng mẫu biệt thự này lại có thiết kế vô cùng cuốn hút với những đường nét kiến trúc thẳng thắn, phá cách. Thiết kế không gian của mặt tiền theo lối kiến trúc mở rộng kết nối với thiên nhiên. Nhờ vậy, nhìn từ mọi góc độ, ngôi biệt thự luôn thể hiện được nét duyên dáng và hiện đại. Ngoài những gam màu trung tính của vật liệu lát nền độc đáo, kiến trúc sư còn tinh tế kết hợp một số gam màu tương phản như đen, nâu gỗ để cân bằng lại sự hài hòa cho kiến trúc. Hơn nữa, hệ thống đèn được bố trí hợp lý giúp ngôi nhà lung linh hơn về đêm.

Mặt bằng tầng 1 gồm phòng khách, phòng bếp + ăn, phòng ngủ, 2WC, sân vườn. Sân trước tầng 1 khá rộng rãi chừa một bên để xe thuận tiện cũng như lắp thêm cửa tạo sự thông thoáng cho khách. Biệt thự 3 tầng 2 mặt tiền. Từ cửa chính là phòng khách rộng rãi nối liền bếp và phòng ăn tạo sự liên thông liền mạch giúp tiết kiệm diện tích. Sân sau gồm nhà vệ sinh chung thoải mái. Kết hợp với hầm để xe có cửa ra vào từ mặt tiền còn lại.
Tầng 2 gồm 2 phòng ngủ rộng rãi có vệ sinh độc lập bên trong giúp bạn nghỉ ngơi thoải mái. Ở tầng này còn có phòng sinh hoạt chung để gia đình có không gian trò chuyện, vui chơi cùng nhau. Mặt bằng tầng 3 gồm phòng thờ, phòng ngủ, WC. Thiết kế phòng thờ hướng ra cửa chính phù hợp với yếu tố phong thủy.

Nếu bạn muốn biết thêm về bản vẽ thiết kế và chi tiết thi công, Mẫu biệt thự 3 tầng 2 mặt tiền ở trên gọi ngay bây giờ CHÚNG TÔI LÀM Theo hotline 0938896767 - 02438168888 để được tư vấn nhanh nhất! Chúng tôi sẽ tư vấn chi tiết cho bạn từ công năng, hình thức đến phong cách kiến trúc phù hợp nhất với gia đình bạn.