5 mẫu nhà 4 tầng 8 × 12 2-3 phòng ngủ nguy nga và sang trọng
Mẫu nhà cấp 4 8 × 12 2-3 phòng ngủ đang là xu hướng lựa chọn của các gia đình hiện đại. Bằng việc sử dụng phong cách thiết kế hiện đại, sang trọng kết hợp với những gam màu trẻ trung, các kiến trúc sư đã tạo nên một không gian sống ấm cúng, tiện nghi và sang trọng cho gia đình. Hãy cùng WEDO khám phá những mẫu nhà cấp 4 đẹp trong bài viết dưới đây nhé!
Mẫu nhà cấp 4 8 × 12 2 phòng ngủ mái bằng có sân vườn
Mẫu nhà cấp 4 8 × 12 2-3 phòng ngủ Vẻ đẹp kiểu nhà vườn này toát lên một hình thái kiến trúc khỏe khoắn. Sự độc đáo ở phần mép mái thon dài đóng vai trò như một tán cây che nắng cho hội trường mà khi đứng hay ngồi ở mọi góc đều mang lại cảm giác bình yên, dễ chịu. Phong cách thiết kế nhà ống hiện đại trẻ trung với chi phí xây dựng tiết kiệm nhất nhưng vẫn đảm bảo sự khác biệt độc đáo so với những mẫu nhà cấp 4 ở nông thôn khác. Với gam màu trắng sang trọng và trang nhã là một trong những kiến trúc sân vườn hiện đại để bạn tham khảo.

Nhà được thiết kế 2 phòng ngủ trong đó có 1 phòng ngủ thường và 1 phòng ngủ chính rộng rãi có WC độc lập. Ngoài ra, phòng khách rộng kết hợp với bàn thờ. Nội thất nhà vườn đẹp với phòng bếp và bàn ăn liên thông tầng trệt ở trung tâm nhà vừa thiết thực vừa hợp phong thủy, có cửa sổ thoát mùi bếp bằng cửa phụ bên hông. Lối ra của ngôi nhà, khu vườn phía sau và cửa sổ kính cường lực giao thoa giữa thiên nhiên và bầu trời.

Mẫu nhà cấp 4 8 × 12 2 phòng ngủ sang trọng và tinh tế
Nhìn từ xa, ngôi nhà tuy đơn giản nhưng nổi bật với gam màu nhẹ nhàng, các mảng khối cao, hứa hẹn là không gian sống lý tưởng cho gia đình 4 người. Phần chân tường của tầng hầm được lát gạch xám. Tam cấp và hiên chính được ốp bằng đá tự nhiên, vân xám kết hợp tông màu vàng mang đến sự hài hòa, khiến ngôi nhà trở nên ấm cúng và sang trọng. Phần mái được thiết kế theo kiểu giật cấp nhẹ, phân chia chính - phụ, kết hợp với các đường viền trang trí tạo nên sự kiên cố, vững chãi. Ngôi nhà cấp 4 mái thái kiên cố với hai cột trụ vuông vắn, ốp đá tự nhiên màu vàng trang trí trên thân và chân cột. Trụ cột này không chỉ đảm nhận kết cấu chịu lực cho phần mái trước mà còn giúp lò sưởi trở nên thoáng và đẹp hơn.

Mẫu nhà cấp 4 8 × 12 2-3 phòng ngủ Được thiết kế hiện đại, khoa học, cân đối và tính toán kỹ lưỡng theo nhu cầu sử dụng của gia đình. Phòng khách và phòng bếp, phòng ăn được thiết kế ngăn cách với nhau bằng vách ngăn, các phòng ngủ được bố trí theo không gian phù hợp với nhu cầu sử dụng của từng phòng cũng như không gian sử dụng để nghỉ ngơi, thư giãn được tốt nhất.

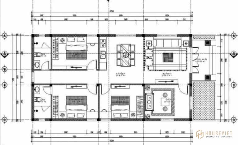
Mẫu nhà cấp 4 8 × 12 3 phòng ngủ mặt tiền rộng rãi
Mẫu nhà cấp 4 8 × 12 2-3 phòng ngủ tự hào với kiến trúc sang trọng với thiết kế tinh tế, màu sắc bắt mắt. Hơn hết, hệ thống mái thái màu xanh dương nổi bật giữa không gian càng khiến ngôi nhà trở nên ấn tượng hơn. Thêm vào đó, hệ thống mái thái với độ dốc lớn và tràn được lợp bằng ngói đỏ càng làm cho công trình trở nên hiện lên và cuốn hút hơn.

Về mặt công năng, nội thất bên trong ngôi nhà đảm bảo không gian sống thoải mái cho đại gia đình. Ngôi nhà được thiết kế 2 phòng đều hướng ra khu thờ cúng. Trong căn hộ này, sảnh chính đi qua phòng khách. Khu bếp và phòng ăn được bố trí dọc theo phòng khách. 3 phòng ngủ nằm ở góc nhà.

Mẫu nhà cấp 4 8 × 12 3 phòng ngủ có gara ô tô
Mẫu nhà cấp 4 8 × 12 2-3 phòng ngủ thiết kế đơn giản không quá cầu kỳ của bìa trước. Phần đầu bên hông gara ô tô ngoài trời song song với khu sinh hoạt, ở đây thiết kế 2 phòng ngủ của mẫu thiết kế nhà cấp 4 giá rẻ 100m2 được thiết kế diện tích như nhau, mỗi phòng đều có cửa sổ lớn phía trước sau đó là thông ra không gian bên ngoài. Phần thứ hai lớn hơn là phần hiên bán nguyệt ngoại thất ốp đá sang trọng có mái che để chống mưa nắng trực tiếp vào cửa chính. Sảnh chính của ngôi nhà rộng, được nâng đỡ bởi cặp cột vuông. Cửa khung gỗ giúp ngôi nhà trở nên tinh tế hơn. Ngôi nhà có nhiều cửa sổ giúp ánh sáng dễ dàng xuyên qua không gian bên trong.

Mẫu nhà cấp 4 8 × 12 2-3 phòng ngủ Đầy đủ công năng bên trong không cần phải xây thêm công trình bên ngoài, sân thượng, nền lát gạch đá sạch sẽ dễ dàng vệ sinh, gara ô tô bên ngoài được thiết kế như một sự thu nhỏ trong mặt tiền mẫu thiết kế nhà cấp 4 đơn giản làm đẹp cho mẫu thiết kế. Bên trong nhà, phòng khách, bếp, 2 phòng ngủ và WC được bố trí hợp lý. Không gian nội thất phòng khách rộng rãi được thiết kế khép kín so với diện tích xây dựng phía sau vừa là không gian ăn uống với vách ngăn gỗ ảo để đặt đồ vật trang trí ngăn cách bàn ăn.

Mẫu Nhà Cấp 4 8 × 12 3 Phòng Ngủ Mái Thái Mềm Mại
Mẫu nhà cấp 4 8 × 12 3 phòng ngủ sử dụng những gam màu nhẹ nhàng, trung tính. Cùng với đó là những chi tiết trang trí đơn giản nhưng không kém phần độc đáo. Hệ thống mái Thái được tạo hình công phu cũng góp phần không nhỏ tạo nên sức hấp dẫn cho ngôi nhà. Bậc tam cấp và tường bao quanh ngôi nhà được ốp đá granit để tạo vẻ sạch sẽ.

Mẫu nhà cấp 4 mái thái có sảnh chính khá rộng dẫn đến phòng khách rộng rãi. Bên trong gồm 3 phòng ngủ, một phòng rộng hơn có WC riêng, góc cuối nhà phía sau bếp là khu giặt phơi, WC chung.

Thông qua mẫu nhà cấp 4 8 × 12 2-3 phòng ngủ Trên đây, hy vọng các gia đình có thể tự mình lựa chọn được mẫu nhà ưng ý nhất, có thể tham khảo thêm các mẹo nhỏ.