5 Mẫu Thiết Kế Nhà Ống Hiện Đại 2 Tầng 4 × 20 Tuyệt Đẹp Gây Ấn Tượng Ngay Cái Nhìn Đầu Tiên
Này Mẫu nhà ống 2 tầng đẹp 4x20 Tuy có hạn chế về mặt tiền 4m nhưng lại có lợi thế về chiều sâu nên vẫn có khá nhiều phương án thiết kế hợp lý mà chủ đầu tư không nên bỏ qua. Nơi đây, CHÚNG TÔI LÀM Chúng tôi xin giới thiệu đến các bạn 5 mẫu nhà hiện đại đáng chú ý, sở hữu không gian sống tiện nghi không kém phần hiện đại, chi phí xây dựng phù hợp.
Mẫu 1: Mẫu nhà ống 4 × 20 2 tầng đẹp khỏe khoắn và trẻ trung
Mẫu nhà ống 2 tầng đẹp 4x20 bên dưới hiện tại với các đường nét hiện đại xuất hiện sắc nét. Có các bức tranh khối đậm và hoa văn hình học đậm. Ngôi nhà có các ô cửa sổ lớn, kéo dài theo chiều dọc từ tầng 2 đến tầng 1. Việc sử dụng kính là giải pháp hợp lý khi xây nhà hình ống có mặt tiền hẹp. Vì với chiều sâu lớn nên việc thiết kế ánh sáng tối ưu như vậy là rất cần thiết, giúp không gian bớt ngột ngạt hơn một chút. Góc ban công và khoảng sân nhỏ tuy không quá lớn nhưng được tiểu cảnh trồng cây xanh rất đẹp mắt. Tạo ra những nơi dễ chịu để sống.

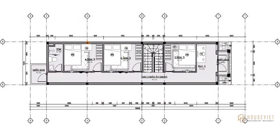
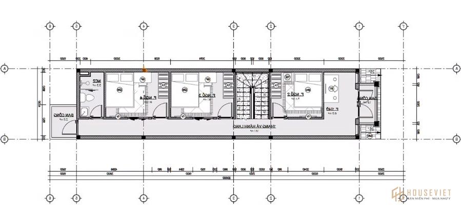
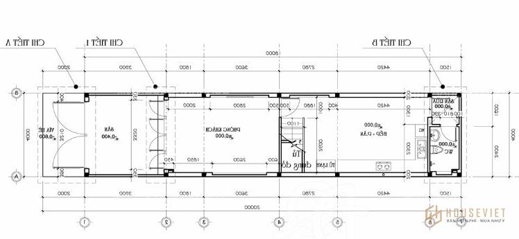
Công năng tầng 1 gồm sân trong, phòng khách, bếp kết hợp phòng ăn, phòng ngủ và vệ sinh chung. Sân trước đóng vai trò là nơi tiếp giáp giữa người trong nhà với môi trường xã hội đồng thời góp phần lấy sáng cho tầng 1. Phòng khách và bếp kết hợp phòng ăn được thiết kế theo hướng mở mang đến nhiều hơn tiện lợi trong cuộc sống cũng như phát huy công dụng của từng bộ phận. Cuối tầng sẽ là phòng ngủ và khu WC chung thiết thực.

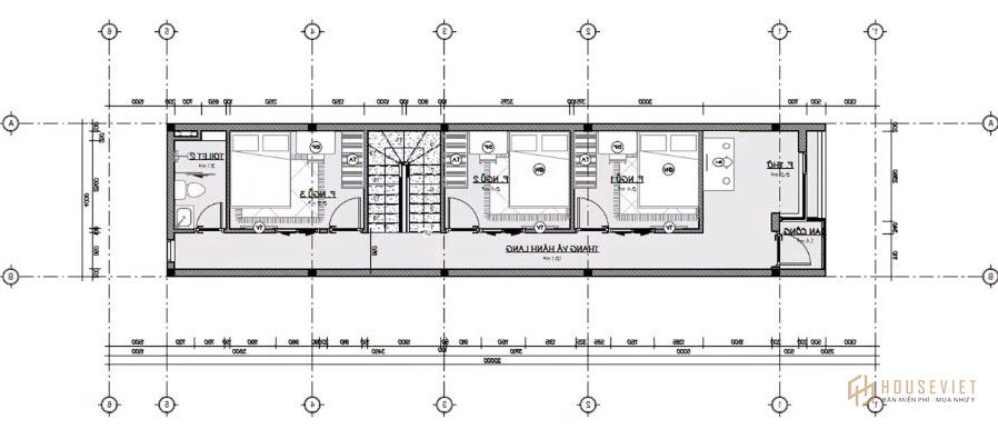
Tầng 2 sẽ là khu vực nghỉ ngơi với 2 phòng ngủ rộng được thiết kế hiện đại. Đặc biệt, phòng ngủ lớn nhất hướng ra ban công phía trước. Cả 2 phòng ngủ đều có ban công đón ánh sáng tự nhiên và không khí từ bên ngoài thổi vào. Ở khu vực trung tâm gần cầu thang là phòng sinh hoạt chung, đây không chỉ là không gian lưu thông không khí mà còn là nơi gia đình quây quần, hàn huyên cùng nhau.

Mẫu 2: Nhà ống 2 tầng đẹp 4x20 không gian xanh tươi mát
Gián điệp, Mẫu nhà ống 2 tầng đẹp 4x20 thu hút sự chú ý với vẻ ngoài vô cùng sang chảnh và tươi tắn. Sở dĩ như vậy vì phía trước ngôi nhà có thể nhìn thấy rất nhiều cây xanh. Vừa mang lại tính thẩm mỹ cao vừa có tác dụng thoáng mát cho không gian sống bên trong, đặc biệt là với những ngôi nhà ống 2 tầng hướng Tây. Vì có mặt tiền khá hạn chế là 4m nên mặt tiền của ngôi nhà được thiết kế tối giản chỉ với những khối vuông vắn làm tôn lên vẻ đẹp hiện đại, trẻ trung của phong cách kiến trúc này.

Ở tầng 1, phòng khách được bố trí ngay cửa ra vào. Tiếp theo là phòng ngủ đơn. Phòng bếp và phòng ăn liên thông với nhau ở cuối nhà để hạn chế mùi thức ăn lan sang các khu vực khác. Phòng sinh hoạt chung được bố trí cạnh cầu thang, là nơi cả gia đình quây quần, sum họp.

Hai phòng ngủ trên tầng 2 được thiết kế với diện tích gần như bằng nhau, với nội thất tiện nghi, đảm bảo sự thoải mái với từng giấc ngủ. Bên cạnh sân phơi là khu vệ sinh chung cho không gian tầng 1, tối ưu diện tích hiệu quả. Trước nhà là giếng trời rất rộng rãi.

Mẫu 3: Mẫu nhà ống 2 tầng 4x20 mái thái 4 phòng ngủ đẹp
Mẫu nhà ống 2 tầng đẹp 4x20 Điều này chứng tỏ những mặt tiền hẹp vẫn có thể đẹp với phong cách tân cổ điển sang trọng. Thiết kế ngoại thất của mẫu nhà đẹp được giản lược bớt đường nét, pha trộn thêm nhiều phong cách hiện đại để tân cổ điển trở nên mềm mại, hài hòa và đẹp mắt. Các chi tiết đặc trưng như hệ thống cột trụ, mái thái được xử lý khéo léo khiến mặt tiền trở nên vô cùng cuốn hút trên nền sơn trắng xám chủ đạo.

Không gian tầng 1 gồm sân để xe phía trước, tiếp đến là phòng khách và cầu thang. Bên trong có 1 phòng ngủ, phòng bếp + ăn và WC + máy sấy. Các không gian được bố trí khoa học, đảm bảo cuộc sống tiện nghi cho gia đình.

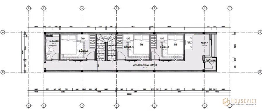
Tầng 2 bố trí 3 phòng ngủ diện tích bằng nhau, 1 phòng thờ và 1 WC. Các tầng trên cùng và cuối tầng đều có ban công nên luồng gió luôn được truyền đi. Nhờ vậy, không gian sẽ luôn thoáng mát.

Mẫu 4: Nhà ống đẹp hiện đại 2 tầng 4x20m 3 phòng ngủ có gara ô tô
Mẫu nhà ống 2 tầng đẹp 4x20 Mẫu nhà này có vẻ ngoài đơn giản nhưng vẫn thể hiện được đầy đủ nét khỏe khoắn, vững chãi của các khối hình. Tầng 2 được thiết kế rộng hơn tầng 1 giúp “ăn gian” diện tích, tận dụng góc ban công rộng hơn và bảo vệ gara bên dưới. Ở mặt tiền, các khối hình học đan xen nhau kết hợp với tông màu trắng nhẹ nhàng và một chút sắc vàng gợi cảm giác tươi mới và ấm áp.

Tầng 1 bố trí gara ô tô hoặc kinh doanh, phòng khách, bếp và phòng vệ sinh ngay bên cạnh. Thiết kế không gian liên thông giữa sân để xe với phòng khách, bếp và nhà vệ sinh tạo thuận lợi cho quá trình di chuyển. Giếng trời được thiết kế để chiếu sáng trực tiếp ra sân phơi (gần nhà vệ sinh), giúp lấy sáng và lưu thông không khí hiệu quả.

Tầng 2 được bố trí công năng gồm 3 phòng ngủ, 1 phòng thờ và 1 phòng vệ sinh. Phòng thờ rộng được bố trí ngay ngoài ban công, với nội thất đơn giản để tiết kiệm diện tích, tiếp đến là 2 phòng ngủ được thiết kế tối giản để thông thoáng. Phòng ngủ còn lại được bố trí gần cầu thang, gần phòng vệ sinh cuối nhà.

Mẫu 5: Nhà ống 2 tầng đẹp 4x20m mái bằng đơn giản
Sở hữu thiết kế mái bằng nhưng đơn giản Mẫu nhà ống 2 tầng đẹp 4x20 trông vẫn rất hấp dẫn. Tầng 1 được tô điểm bằng cửa xanh và cổng chính bằng khung sắt có khe thoáng, đảm bảo không bí bách. Khoảng sân nhỏ nhưng đủ cho một khoảng xanh, giúp khuôn viên trở nên sinh động hơn. Tầng 2 mang hơi hướng phá cách với những đường cắt mạnh mẽ, phóng khoáng và giao hòa với thiên nhiên.

Tầng 1 được thiết kế làm sân chơi và giao thông đi lại. Bên trong là phòng khách, cầu thang, bếp và nhà vệ sinh. Phòng khách, bếp và phòng ăn được thiết kế hoàn hảo, thông thoáng tạo sự liên thông thoải mái cho phòng sinh hoạt chung.

Không gian tầng 2 gồm 3 phòng ngủ, wc và giếng trời. Phòng ngủ của bố mẹ được thiết kế đầu hồi hướng ra ban công, ngay bên cạnh là phòng ngủ của các con bên trong và có vệ sinh riêng. Hai phòng ngủ còn lại sử dụng chung phòng tắm ở giữa.

Hy vọng rằng với Mẫu nhà ống 2 tầng đẹp 4x20 mà chúng tôi trình bày trong bài viết này sẽ giúp các bạn đọc có thêm nhiều ý tưởng trong tương lai cho mẫu nhà của mình. Nếu chủ đầu tư có ý định tìm đơn vị thiết kế - thi công uy tín, chuyên nghiệp hãy gọi ngay cho WEDO qua số hotline 0938896767 - 02438168888 để được tư vấn nhanh chóng!