Bản vẽ chi tiết thiết kế nhà 3 phòng ngủ 2 tầng 4 × 16 đẹp, hiện đại
Bản vẽ mẫu nhà 2 tầng 4 × 16 được House Viet thực hiện cho các công trình nhà phố, biệt thự, nhà ống,… Dù ở bất kỳ công trình nào chúng tôi cũng tạo ra những mẫu nhà 2 tầng đẹp, hiện đại đáp ứng nhu cầu của khách hàng. Để giúp gia đình có thêm ý tưởng phối cảnh mặt tiền, công năng trong mẫu thiết kế nhà 4 × 16 2 tầng, các bạn cùng tham khảo bài viết dưới đây nhé!
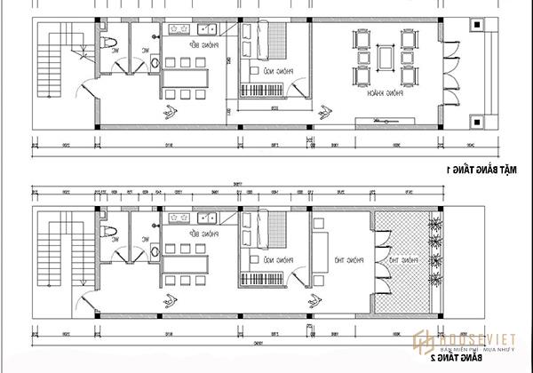
Bản vẽ nhà 2 tầng 4 × 16 3 phòng ngủ
Khi nào thiết kế nhà 4 × 16 2 tầng Chia 3 phòng ngủ cần có sự sắp xếp hợp lý để tạo không gian thoải mái và riêng tư cho gia chủ. Mẫu nhà 2 tầng mặt tiền 4m dưới đây sử dụng hệ thống cửa kính ở tầng 2 kết hợp với cây xanh tạo không gian nghỉ ngơi thông thoáng và thoải mái. Khu vực tầng 1 gồm phòng khách, phòng ăn và phòng ngủ chính giáp sân sau.


Bản vẽ nhà 2 tầng 4 × 16 được bố trí tầng 2 với phòng sinh hoạt chung ở giữa và các phòng ngủ ở 2 bên. Mẫu thiết kế nhà 2 tầng dưới đây bố trí 2 phòng ngủ nằm cạnh phòng sinh hoạt chung cho các thành viên trong việc di chuyển từ phòng ngủ ra phòng sinh hoạt của gia đình một cách dễ dàng. Hai phòng ngủ được đặt ở khu vực có tầm nhìn thoáng tạo sự thoải mái khi nghỉ ngơi.



Bản vẽ thiết kế nhà phố 4x16m 2 tầng
Đối với ngôi nhà phố 2 tầng mặt tiền 4m, việc lựa chọn màu sơn, phối cảnh ngoại thất đóng vai trò quan trọng trong việc định hình phong cách. Gia chủ có thể tìm hiểu phối cảnh mặt tiền của bản vẽ nhà 2 tầng 4 × 16 dưới đây:
Bản vẽ nhà 2 tầng đẹp đơn giản tầng 1 bao gồm hệ thống cửa đơn giản kết hợp với khoảng trống bên trái để xe thuận tiện. Tầng 2 được thiết kế với vách phẳng nằm ở vị trí 2/3 mở ra 2 ban công view đẹp. Điều này tạo sự thông thoáng cho vị trí phòng ngủ và tạo điểm nhấn độc đáo cho mặt tiền của ngôi nhà.



Bản vẽ nhà 2 tầng 4 × 16 có tầng thượng là sân phơi và phòng thờ được bố trí khoa học. Cây xanh được chủ nhân bố trí xung quanh sân thượng tạo cảm giác thoải mái, dễ chịu. Đây cũng là một không gian tuyệt vời của 4x16m. thiết kế nhà phố để gia chủ tổ chức tiệc ngoài trời, luyện tập thể dục thể thao.


Bản vẽ thiết kế nhà 1 trệt 1 lầu 4 × 16
Bản vẽ nhà 2 tầng 4 × 16 được chia thành 1 trệt và 1 lầu tạo sự gọn gàng. Kiến trúc mặt tiền đơn giản với hệ thống cửa kính kết hợp ban công xanh mát. Tường được ốp đá với tông màu xám tro sang trọng và lịch sự.



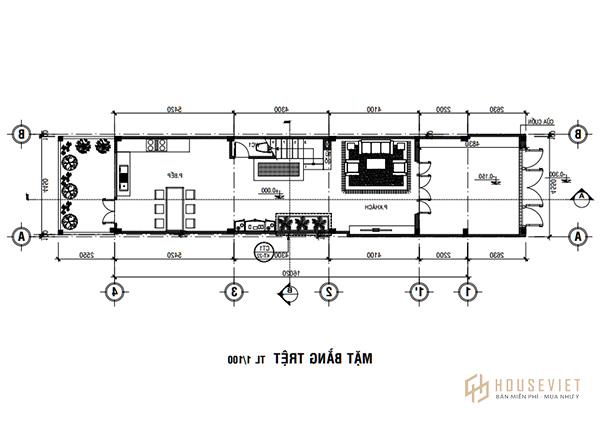
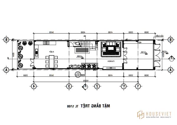
Về phiếu vẽ nhà phố 2 tầng 4 × 16 Tầng trệt bố trí khu vực phòng khách, bếp, phòng ngủ và phòng vệ sinh khoa học. Cửa sổ lớn ở phòng khách mang đến không gian thông thoáng, dễ chịu cho ngôi nhà. Vị trí phòng khách nằm ở vị trí “đón gió” để đảm bảo phong thủy cho ngôi nhà.
Tầng 1 bố trí phòng ngủ, phòng thờ và khu bếp ăn để gia chủ dễ sinh hoạt. Mẫu thiết kế nhà 2 tầng hiện đại bố trí phòng bếp vừa không ảnh hưởng đến thẩm mỹ mà lại đảm bảo phong thủy.

Bản vẽ mẫu nhà 2 tầng 64m2 đẹp và hiện đại
Mẫu nhà 2 tầng diện tích 64m2 có mặt tiền gần gũi với thiên nhiên. Cây xanh xen kẽ ở vị trí các tầng trong nhà tạo sự cân bằng về màu sắc. Kiến trúc mái bằng khỏe khoắn đi kèm thiết kế giếng trời thông thoáng và ấn tượng. Bản vẽ nhà 2 tầng 4 × 16 được bố trí mặt tiền với sự kết hợp màu sắc ấn tượng và gạch ốp vân gỗ độc đáo.


Bản vẽ nhà 2 tầng diện tích 4 × 16 mặt bằng tầng 2 gồm 2 phòng ngủ và phòng vệ sinh chung. Việc bố trí phòng vệ sinh ở giữa và hai phòng ngủ hai bên tạo sự thuận tiện trong quá trình sinh hoạt. Diện tích từng khu vực được bố trí hợp lý tạo không gian sống rộng rãi và tiện dụng.



Bản vẽ nhà 2 tầng 4 × 16 giúp khách hàng có cái nhìn khách quan và toàn diện về phối cảnh mặt tiền và nội thất của ngôi nhà. Mong rằng sẽ là gợi ý tuyệt vời để bạn trang trí không gian sống ấn tượng và thu hút nhất. Để tìm hiểu thêm về các mẫu nhà 2 tầng hiện đại và lên phương án thiết kế kiến trúc, công năng các bạn có thể liên hệ với chúng tôi 1800 6015. Đội ngũ kiến trúc sư giàu kinh nghiệm của House Viet sẽ đưa ra ý tưởng hoàn hảo.
Các bài viết khác:
- Mẫu thiết kế nhà chữ L 2 tầng 1 tum hiện đại và sang trọng nhất.
- Mẫu nhà 2 tầng 100m2 công năng sử dụng tiện nghi
House Viet - Vững niềm tin