Bản vẽ mẫu nhà cấp 4 3 phòng ngủ 7x12m NDNC4158
Có lẽ đây sẽ là một trong những bản vẽ nhà 3 phòng ngủ vô cùng đặc biệt. Đặc biệt tại sao bạn có biết? Đó là diện tích xây dựng của mẫu nhà cấp 4 này rất nhỏ. Chỉ với diện tích 7x12m bạn có thể bố trí đầy đủ công năng gồm 3 phòng ngủ, 1 phòng khách, bếp và phòng ăn. Tuy nhiên, mẫu nhà cấp 4 3 phòng ngủ này được chúng tôi thiết kế không có nhà vệ sinh trong nhà. Vì diện tích đất rất rộng nên nhà vệ sinh không nhất thiết phải bố trí trong nhà mà gia chủ có thể bố trí bên ngoài. Ở khu vực bếp sau nhà, nếu bạn sống ở nông thôn, bạn sẽ quen với điều này hơn. Trong bài viết này, Nhà Đẹp sẽ chia sẻ thêm đến các bạn bản vẽ nhà cấp 4 3 phòng ngủ để các bạn tham khảo về mẫu thiết kế này. Trong bài viết này, Nhà Đẹp sẽ chia sẻ đến các bạn một vài bản vẽ nhà cấp 4 3 phòng ngủ để các bạn tham khảo. Nếu bạn không có điều kiện hoặc quyết định tự xây dựng thì cũng có thể sử dụng một phần bản vẽ nhà cấp 4 này cho ngôi nhà của mình. Tuy không giúp ích được gì nhiều cho bạn nhưng đây có lẽ cũng là những thứ cần thiết, những điều cơ bản của một ngôi nhà để phân chia theo tỷ lệ tốt nhất. Và nếu bạn có nhu cầu thiết kế đừng quên gọi điện cho các kiến trúc sư của Nhà Đẹp để được thiết kế nhé.
Đơn giá xây nhà cấp 4 3 phòng ngủ mái thái
Có lẽ bạn cũng đang tò mò không biết đơn giá xây nhà ống cấp 4 này là bao nhiêu, với diện tích nhỏ gọn như vậy nhưng mái thái sẽ tốn bao nhiêu chi phí xây dựng cho gia đình bạn. Mời các bạn tham khảo cách tính giá xây nhà cấp 4 của Nhà Đẹp như sau:
- Chủ đầu tư dự án: Anh Đại
- Địa điểm xây dựng: Thanh Hóa
- Diện tích nhà: 7x10m
- Diện tích toàn sảnh: 7x12m
- DTXD: 70m2
- Diện tích tiền sảnh: 6 m2
- Diện tích diềm mái, hệ số 0,4: 70 × 0,4 = 28 m2
- Tổng diện tích xây dựng: 70 + 6 + 28 = 104 m2
- Giả sử đơn giá xây dựng hoàn thiện là 5 triệu / 1m2 ta có: Đơn giá xây dựng: 106 × 5.000.000 = 520.000.000 đồng
Vậy để hoàn thiện ngôi nhà cấp 4 mái thái có 3 phòng ngủ chúng ta cần chuẩn bị mức tài chính là 520 triệu.
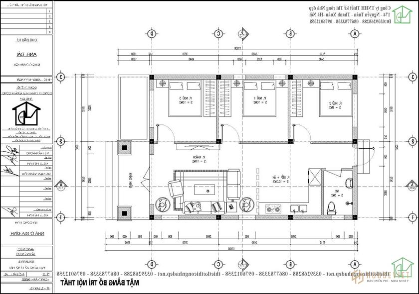
Hình ảnh mẫu bản vẽ nhà cấp 4 3 phòng ngủ tại Thanh Hóa
Đây là mặt tiền chính của ngôi nhà, bạn có thể thấy với diện tích rất rộng mà chúng tôi chỉ xây dựng một ngôi nhà nhỏ nên sân rất rộng rãi đúng không? Đây cũng là phong cách thường được sử dụng ở các vùng nông thôn.
Nếu nói về hình thức thì đây sẽ là một trong những mẫu nhà cấp 4 hiện đại, đẹp, đơn giản và tiết kiệm chi phí. Và tôi cũng đánh giá cao những mẫu nhà cấp 4 đơn giản, nhỏ và hẹp như thế này. Nếu bạn không có nhiều kinh phí để xây dựng thì đây là một sự lựa chọn hoàn hảo cho gia đình bạn.
Các bạn có thể thấy tông màu chủ đạo xuyên suốt trong ngôi nhà cấp 4 mái thái này là màu trắng và phần mặt tiền, đầu hồi mái thái chúng tôi sử dụng thêm 2 màu là cam kết hợp nâu. Đây là những trang trí cơ bản, nhưng nếu bạn không tuân theo màu sắc, kết quả sẽ không đẹp như trong thiết kế này. Nguyên tắc phối màu sơn không đơn giản như bạn nghĩ.

Đây là cách bố trí công năng, sơ đồ mặt bằng và nếu bạn không cần 3 phòng ngủ mà chúng ta muốn có 2 phòng ngủ và 1 phòng thờ thì có thể thay đổi 1 phòng ngủ đầu tiên thành phòng thờ.

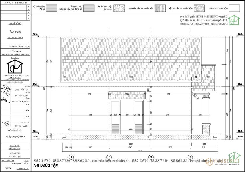
Đây là bản vẽ mặt tiền nhà từ đây các bạn có thể xem chi tiết, chiều cao ngôi nhà, chiều cao sảnh, đây là những thông số cơ bản của một ngôi nhà giúp bạn xây dựng một ngôi nhà với tỷ lệ cân đối hơn.

Mặt này thể hiện chiều cao của vành mái, chiều cao của cửa sổ, chiều cao của các cửa sổ trên mái. Các loại vật liệu được sử dụng cho ngôi nhà của bạn.

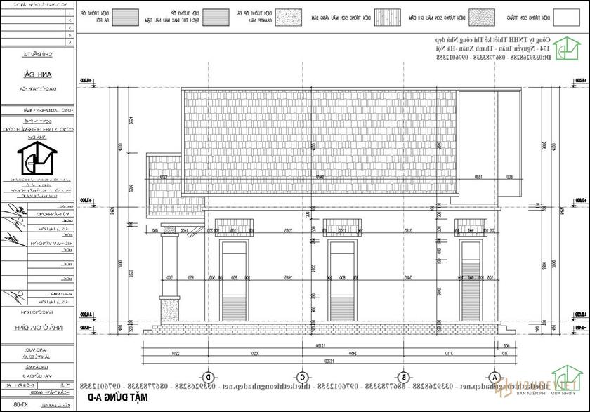
Mặt này tương tự như bản vẽ nhà cấp 4 trên nhưng thể hiện các chi tiết của mặt này.

Bản vẽ này thể hiện chi tiết mặt sau của ngôi nhà, thông thường mặt sau nhà chúng ta sẽ không chú ý nhiều nên thường ít chi tiết hơn. Vì hiếm khi có ai ra sau nhà ngó nghiêng nhà bạn đúng không?
Những lưu ý khi thuê thiết kế bản vẽ nhà 3 phòng ngủ
Bạn có thể không nghĩ việc thuê một nhà thiết kế là quan trọng, nhưng nhiều người thấy nó quan trọng. Vì vậy nếu bạn thuê thiết kế thì chúng ta cần lưu ý một số vấn đề như sau:
- Chọn công ty thiết kế uy tín: Một công ty uy tín sẽ giúp bạn tránh được rủi ro khi tạm ứng nhưng không làm được. Thường xảy ra với các cá nhân
- Đơn giá thiết kế: Đơn giá thiết kế quá thấp dẫn đến hồ sơ thiết kế quá sơ sài, người thi công không đủ chi tiết dẫn đến không đủ kết cấu nhà và các chi tiết trang trí. Thi công sẽ không đảm bảo chất lượng công trình
- Đơn vị thiết kế lâu năm: Đây cũng là một trong những tiêu chí rất quan trọng khi lựa chọn.
Những lưu ý khi xây nhà cấp 4 có 3 phòng ngủ
Dù bạn có nhiều kinh nghiệm hay bạn đã xây vài căn nhà rồi. Việc học hỏi thêm kinh nghiệm của những người khác luôn là điều quan trọng. Vì vậy tôi xin chia sẻ thêm một vài kinh nghiệm xây nhà cấp 4 để các bạn tham khảo.
- Lập ngân sách: Chúng ta cần ước tính chi phí xây dựng ước tính. Như bài viết này mình chia sẻ để xây nhà theo bản vẽ nhà cấp 4 mái thái này bạn cần 520 triệu. Tuy nhiên, có những khu vực giá sẽ rẻ hơn nên có thể cao hơn, có những khu vực giá cao nhưng không cao hơn bao nhiêu. Và vùng giá cao sẽ thuộc về số ít.
- Sự thống nhất về chất liệu và màu sắc: Đây là yếu tố quyết định đến giá thành hoàn thiện và tính thẩm mỹ của công trình. Nếu có thời gian, bạn hãy lựa chọn vật liệu để các kiến trúc sư chọn cho bạn màu sắc phù hợp với ngôi nhà.
- Lựa chọn nhà thầu xây dựng uy tín: Việc lựa chọn đơn vị, nhà thầu uy tín là một phần rất quan trọng. Nó quyết định đến kết cấu, cấu trúc và tính thẩm mỹ của công trình. Bạn cũng không thể để một người thiếu kinh nghiệm, kém năng lực xây dựng cho gia đình bạn một ngôi nhà như vậy.
- Và còn rất nhiều kinh nghiệm mà chúng tôi sẽ tích lũy được trong quá trình thi công.
Bạn có nên thuê công ty thiết kế và thi công nhà đẹp không?
Với gần 10 năm kinh nghiệm thiết kế và thi công trọn gói, Nhà Đẹp luôn tự tin mang đến cho bạn những mẫu nhà đẹp, công trình chất lượng nhất, thẩm mỹ nhất. Vì vậy, nếu bạn cần tư vấn thiết kế hoặc cần hỗ trợ, Nhà Đẹp luôn sẵn sàng lắng nghe bạn. Hãy để Nhà Đẹp làm tổ ấm cho bạn.
Trong bản vẽ nhà cấp 4 3 phòng ngủ này, tôi chia sẻ rất nhiều điều, rất nhiều tâm huyết từ kinh nghiệm nhiều năm trong nghề. Mình cũng mong rằng bài viết hữu ích với các bạn, sẽ giúp được nhiều người gặp khó khăn trong quá trình thiết kế hay lựa chọn mẫu nhà đẹp. Nếu bạn có bất cứ điều gì cần đóng góp, xin vui lòng để lại nó trong phần bình luận và chúng tôi sẽ cố gắng sửa chữa nó. Cảm ơn bạn.
- Nhà cấp 4 vuông vắn 3 phòng ngủ 11x10m ở Hoài Đức NDNC4159
- Mẫu thiết kế nhà cấp 4 8x15m tại Hoài Đức Hà Nội NDNC4163