Bản vẽ nhà cấp 4 có 2 phòng ngủ mái thái đẹp xinh xinh anh Nam
Anh chị đang tìm những mẫu nhà mái thái đẹp diện tích gói gọn khoảng 100m2 đến 120m2 trở lại. Thì bản vẽ nhà cấp 4 đẹp 2 phòng ngủ đẹp xinh này chắc chắn hiện đại. Đáp ứng cao nhu cầu xây nhà của các bạn.
- 370 Mẫu thiết kế nhà cấp 4 hiện đại đẹp cho người thu nhập thấp
- Những hình ảnh nhà xinh kiến trúc đẹp có không gian xanh 2022
- 500 mẫu thiết kế nhà ở gia đình miễn phí đa phong cách lớn nhỏ 2022
- Bản vẽ nhà cấp 4 trệt đẹp kiểu 1 tầng chi tiết xây dựng miễn phí 2022
Cách xây nhà cấp 4 mái thái đẹp 2 phòng ngủ nhỏ xinh
Đây là mẫu nhà mái thái đẹp bề ngang 7m dài 15m hóa giải phong thủy xây nhà theo hướng Tây Nam. Bạn muốn sở hữu căn nhà cấp 4 mini ngang 7m mái ngói này thì trước hết
- Đất của bạn tối thiểu phải ngang 7m mặt tiền dài 20m trở lên
- Trường hợp ngang 8m và dài hơn thì mình sẽ vẽ cho bạn có thêm sân vườn
- Chi phí đầu tư khoảng 600 triệu đến 650 triệu
- Có thể đổi sảnh phụ sang hướng bên tay phải nếu bạn hợp phong thủy Đông tứ trạch

Đây là ngôi nhà xinh 1 tầng đẹp diện tích hơn 100m2 nhỏ hiện đại. Thiết kế theo phong cách nhà trệt tân cổ điển kiến trúc trang trí mặt tiền nhà đẹp cấp 4 ở quê. Kiểu nhà cấp 4 tân cổ điển 7×15 2 phòng ngủ phù hợp với việc xây đẹp cho ba mẹ ở quê nông thôn. Còn riêng vợ chồng anh Nam thì nhu cầu khác.
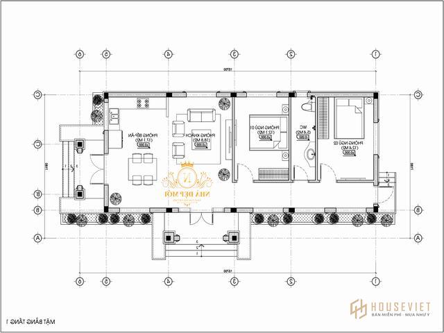
Thông tin bản vẽ nhà cấp 4 2 phòng ngủ thiết kế đẹp
Bản vẽ nhà cấp 4 đẹp 2 phòng ngủ của vợ chồng Nam xây 1 bên trên đất vườn sát hàng rào. Theo mong muốn có sảnh chính nhìn sang nhà ba mẹ vừa hợp với tuổi 1983 Tây tứ trạch. Lưu ý anh Nam cần bản vẽ kiến trúc kết cấu dự toán để ăn tết Tân Sửu xong xây. Anh ấy mượn tuổi của ba sinh năm 1963 Qúy Mão để cúng động thổ và xây. Bởi năm 2022 anh không được tuổi làm nhà. Mẫu nhà cấp 4 mái thái 7×15 có phòng khách ở giữa nhà. Anh chị có thể hoán đổi vị trí các phòng nội thất bản vẽ này được. Ví dụ như
- Đưa phòng khách ra trước được và phòng bếp vệ sinh sau cùng
- Chọn hướng mặt tiền nhà cấp 4 7×15 phía ngoài cùng có sân nếu như đất bạn chị 1 mặt tiền 7m đến 8m
- Chọn kiểu này nhưng xây diện tích nhà 6×20 3 phòng ngủ nữa cũng được
- Nếu xây nhà trệt kiểu Thái này mà lợp tôn giả ngói kiểu ngói sóng thì tiết kiệm hơn khoảng 50 đến 70 triệu

Công năng bản vẽ nhà cấp bốn hai phòng ngủ đẹp ngang 7m
Mặt bằng mẫu nhà vườn cấp 4 nóc Thái có 2 phòng ngủ có kích thước lọt lòng 7x15m. Nhưng nếu tính cả sảnh chính và phụ thì kích thước rộng hơn. Ý tưởng thiết kế nhà cấp bốn hai phòng ngủ mái thái có lối ra vườn sau. Hai phòng ngủ sử dụng chung 1 nhà tắm vệ sinh là ổn. Mỗi phòng ngủ nhà cấp 4 đẹp thiết kế rộng hơn 12.2m2 cũng là ổn. Tuy nhiên nếu nhìn vào mặt bằng nhà trệt 2 phòng ngủ mini này có phòng bếp ngoài cùng. Thì chắc chắn có người sẽ không thích lý do ý kiến là nên đưa phòng bếp ra sau cùng. Tuy nhiên bởi vì tùy theo ngữ cảnh và thế đất phong thủy. Yêu cầu của vợ chồng Nam là thiết kế kiểu nhà mái ngói gần giống nhà 3 gian hiện đại. Có mặt tiền hướng view sang nhà vừa ở vừa thờ tổ tiên của ba mẹ mình.

Hình ảnh kiểu nhà 3 gian cấp 4 đẹp 2 phòng ngủ nhìn sang nhà ba mẹ
Đây là mẫu thiết kế nhà ở theo phong thủy và yêu cầu riêng. Cũng như nhà đẹp 1 tầng mái thái kiến trúc Thuần Việt. Với cách hóa giải cũng như nét văn hóa ở thôn quê. Diện mạo kiến trúc nhà vườn mini phong cách châu âu. Nếu đất anh chị hình chữ Nhật ngang 15m dài 10m. Cũng có thể chọn mặt tiền nhà 3 gian hiện đại mái ngói tân cổ điển Á Âu giao duyên kiểu này cũng được. Khi đó KTS mình sẽ tối ưu gian giữa có thêm phòng thờ sát tường vách sau cùng. Biện pháp đưa bếp sang bên phải màn hình và chia 2 phòng ngủ ra hai bên phòng khách. Tùy theo hướng đất và năm sinh của bạn Kiến trúc sư mình sẽ tư vấn thêm. Dù sao bản vẽ nhà cấp 4 mái thái có hai phòng ngủ này cũng là ý tưởng thiết kế theo yêu cầu. Của một gia đình truyền thống nếp Nhà Việt Đẹp tứ đại đồng đường ở quê và ngữ cảnh

Bản vẽ kiến trúc nhà cấp 4 đẹp 2 phòng ngủ lợp ngói Mr Nam
Hồ sơ thiết kế nhà cấp 4 mái ngói 7×15 đã triển khai xong. Mình gửi anh chị bản vẽ kết cấu nhà mái ngói 1 tầng ngang 7m dài 16m phủ bì. Hai bên đua ra 60cm thoát nước. Kiểu kiến trúc nhà hai mặt tiền 2 phòng ngủ hơn 100m2. Lưu ý bản vẽ nhà trệt hai phòng ngủ này có cổng vào sân hướng mặt tiền 7m phía ngoài. Tức là lối đi riêng và xe máy và ô tô bạn của vợ chồng Mr Nam khi ghé chơi. Không phải đi từ cổng nhà ba mẹ bên cạnh nhé. Nếu như theo bản vẽ nhà cấp 4 ngang 7m đẹp dưới. Thì đất anh chị bề ngang 8m dài 22m trở lên. Thì xây mặt tiền nhà cấp 4 đẹp 6×20 mái thái hai phòng ngủ còn chừa sảnh phụ bên hông như bản vẽ này

Mẫu nhà cấp 4 đẹp 2 phòng ngủ mái bằng hiện đại
Đây là 1 trong 43 mẫu nhà cấp 4 hiện đại mái bằng bản quyền của công ty mình. Hồ sơ nhà mái bằng 1 tầng đẹp thiết kế cho anh Thanh chị Bé. Phong cách nhà đẹp kiểu hình chữ L có hành lang và nhiều cột sảnh vuông vức. Bản vẽ nhà cấp 4 mái bằng 5×16 thiết kế có
- Phòng thờ kết hợp với phòng khách phía ngoài gian 5.5m x 6m chính mặt tiền
- Phía sau vách ngăn phòng khách là 2 phòng ngủ và vệ sinh sau cùng
- Bàn ăn phía ngoài cùng từ sảnh hành lang 1.5m bên đi vào tiếp đến là bếp
- Muốn xây nhà miệt vườn nóc bằng này đất anh chị phải ngang 7m và dài thoải mái
- Phía sau có lối ra vườn trồng rau
- Để dành khoảng sân rộng phía ngoài cho thoáng

Làm rõ thêm về mẫu nhà mái bằng 1 tầng 2 phòng ngủ xinh xắn này
Kiểu nhà cấp 4 mái bằng đẹp phía trên mái xây thêm các mảng tường cao 80cm đến 1.1cm cho bề thế. Gần giống với các mẫu nhà mái bằng 1 tầng có gác xếp. Tuy nhiên ở giữa lợp mái tôn chống nóng trần đóng khung hộp. Phía sau mái trên cùng của mẫu nhà cấp 4 hiện đại 2 phòng ngủ có vị trí đặt bồn nước.

Làm rõ thêm về mẫu nhà mái bằng trệt 2 phòng ngủ hiện đại anh Thanh
Mẫu nhà trệt xinh xắn thiết kế có nhiều hàng cột và cửa sổ thông thoáng mát mẻ. Tông màu sơn tone trắng rất dễ chịu tường xây dày 20cm bao quanh. Còn các vách ngăn thì xây tường 10cm. Móng phong thủy Phúc Lộc Thọ cao 3 bậc. Tuy nhiên đây là 1 trong những kiểu nhà cấp 4 đẹp 2 phòng ngủ 7×16. Nếu anh chị cần 3 phòng ngủ thì có thể kéo dài ra thành nhà mái bằng 1 tầng 7×18 hay 7×20 cũng được chỉ giữ lại mặt tiền. Trường hợp anh chị đất ngang 5m dài 20m thì chọn bản vẽ nhà cấp 4 hiện đại chị Huế. Truy cập tại đường dẫn này tham khảo mà xây. Hình nhà chị Huế như sau

Mẫu nhà cấp 4 mái Nhật lợp ngói ngang 7.5m chị Hồng
Hồ sơ xây nhà cấp 4 mái Nhật đẹp chị Hồng có kích thước xây 7.5x16m. Bên trong nhà có 2 phòng ngủ 1 phòng thờ riêng bên ngoài. Anh chị có đất ngang 9m hay 10m chọn kiểu nhà có sân trước 5m đến 6m để ô tô. Kiểu như mặt bằng dưới đây kiến trúc đổ 1 sàn áp mái bằng bê tông rất chắc chắn.


Điểm danh các mẫu nhà cấp 4 đẹp 2 phòng ngủ thiết kế phong thủy khác
Thông thường, chi phí xây nhà 100m2 2 phòng ngủ thì khoảng 500 triệu đến 600 triệu. Tùy theo mái lợp tôn hay mái ngói và các vật dụng gạch ốp lát sàn và tường hay không. Diện tích rộng hơn và sử dụng đồ gỗ như cửa 3 cánh hay tủ bếp gỗ thì chi phí cao hơn. So với các mẫu có nội thất nhà xinh giá rẻ chỉ sơn không ốp tường và cửa sắt. Ngoài ra còn liên quan đến các vật dụng như thiết bị vệ sinh, trần thả hay trần khung hộp.. Mà điều chỉnh cho phù hợp với mức tài chính của bạn khi yêu cầu thiết kế. Để hạn chế mức phát sinh xây nhà cấp bốn hai phòng ngủ hiện nay. Trường hợp anh chị có 400 triệu cũng xây được nhà 1 tầng 2 phòng ngủ nhé. Gửi anh chị vài mẫu mình sưu tầm thêm thiết kế cửa sắt hay nhôm hệ

Mẫu nhà ống cấp 4 đẹp 5×20 thiết kế có 2 phòng ngủ chị Diệp
Đây là mẫu nhà 1 tầng hiện đại 5×20 bên trong có thiết kế thông thoáng. Đã xây năm ngoái hết 450 triệu mức khá tốt cho gia đình chị Diệp ở thành phố Biên Hòa. Hình ảnh như sau

Anh chị xem bản vẽ xây nhà có sân trước để ô tô chị Diệp kiến trúc nhà ống đơn gian thoáng hiện đại dưới đây
- Bản vẽ nhà cấp 4 đẹp 5×20 phong cách hiện đại chị Diệp Biên Hòa
Mẫu nhà cấp 4 3 gian mái ngói 2 phòng ngủ rộng hơn bác Thùy
Bác Thùy mong muốn xây nhà đẹp 1 tầng mái nhật trên đất rộng ở nông thôn. Bản vẽ chắc chắn kết cấu mái ngói nên cần thiết kế 130m2. Đây là mẫu nhà cấp 4 3 gian truyền thống bác Thùy. Bên trong thiết kế có 2 phòng ngủ. Bạn xem thông tin bài viết và hình ảnh nhà bác Thùy y hình dưới
- Mẫu nhà 1 tầng 2 phòng ngủ đẹp nông thôn bác Thùy



Bản vẽ xây nhà cấp 4 đẹp chữ L 2 phòng ngủ anh Ngọc
Dưới đây là mẫu nhà cấp 4 chữ L 2 phòng ngủ thiết kế xây nghỉ dưỡng ở quê. Xung quanh có kiến trúc cảnh quan sân vườn rộng và nhà gara để xe 1 bên. Bản vẽ nhà 2 phòng ngủ mái thái đẹp chữ L anh Ngọc này anh chị thích thì xem tại bài viết
- Bản vẽ chi tiết nhà cấp 4 chữ L 2 phòng ngủ nông thôn Việt Nam anh Ngọc

Bản vẽ xây nhà cấp 4 mái tôn 2 phòng ngủ 120m2 khác
Đây là mẫu nhà cấp 4 chữ L 2 phòng ngủ chị Ngọc Đồng Nai. Thiết kế xây trên đất ngang 9m dài 20m2 phương án mặt bằng như sau



Mẫu nhà sân vườn mini 120m2 2 phòng ngủ đẹp chú Hải
Đây là mẫu nhà cấp 4 kiểu biệt thự mini đẹp chú Hải thiết kế 120m2. Chú sắp về hưu nên xây 1 căn chắc chắn để nghỉ ngơi ở quê. Hình ảnh

Anh chị xem bản vẽ thiết kế nhà chú Hải tại bài viết này bấm vào tham khảo kiểu nhà cấp 4 có sân vườn đẹp mái nhật này mà chọn xây.
Các mẫu thiết kế nhà cấp 4 mặt tiền 6m đẹp 2 phòng ngủ
Như vậy ở trên là những hồ sơ thiết kế nhà cấp 4 2 phòng ngủ trên các thế đất khác nhau. Như ngang 5m 7m 8m và các kiểu nhà vườn mini đẹp đất rộng mái Nhật. Chỉ duy nhất bây giờ còn thiết nhà cấp 4 mặt tiền 6m có hai phòng ngủ. Mình tạm gửi 3 trong các mẫu nhà mái thái cấp 4 2 phòng ngủ như sau. Đầu tiên là bản vẽ nhà mặt tiền 6×16 anh Tùng đây là mẫu nhà trệt mặt tiền tối ưu đẹp theo phong cách châu âu


Mẫu nhà 1 tầng 2 phòng ngủ có gác lửng 6x13m
Đây là kiểu nhà cấp 4 mặt tiền 6m nhưng bề sâu ngắn ra sau. Nên phương án thiết kế ở tầng dưới và trên gác lửng như sau
- Tầng trệt khách rộng, 1 cầu thang, 1 nhà vệ sinh, 1 bếp và bàn ăn bên hành lang chữ L
- Kích thước thiết kế 6x12m ở dưới không có phòng ngủ
- Tầng lửng có 2 phòng ngủ 1 phòng thờ và vệ sinh sau cùng
- Anh chị có đất ngang 6m thì xây nhà gác lửng 2 phòng ngủ 1 tầng mái thái chữ L trên là ok

Bản vẽ xây nhà cấp 4 80m2 2 phòng ngủ mái tôn đơn giản
Trường hợp anh chị không có tiền thuê tìm kiến trúc sư thiết kế. Gia đình bạn cần xây nhà cấp 4 đơn giản có 2 phòng ngủ. Thì tham khảo bản vẽ xây nhà 80m2 của mẹ con chị Hương. Hình ảnh như sau

Anh chị xem mẫu nhà cấp 4 mái tôn đơn giản của hai mẹ con chị Hương. Chi phí khoảng 450 triệu mà xây kiểu Thái Lan 1 tầng này tại bài viết
- Cách xây mẫu nhà cấp 4 đẹp 80m2 kinh phí khoảng 450 triệu 2 mẹ con chị Hương
Xem thêm các mẫu nhà mái thái 1 2 tầng đẹp khác có liên quan
Trên đây là các mẫu nhà cấp 4 đẹp 2 phòng ngủ và các kiểu nhà ống đơn giản tiết kiệm. Kiểu nhà 1 mặt tiền ngang 5m 6m 7m 8m. Và những hình ảnh nhà mái Nhật bề ngang rộng kiểu sân vườn ở quê. Đáp ứng cao nhu cầu xây nhà xinh cần 2 phòng ngủ cho các gia đình neo đơn ít người. Anh chị xem bản vẽ này nữa



Các mẫu nhà cấp 4 mái thái có 3 phòng ngủ khác
Anh chị tham khảo thêm các bài viết liên quan về nhà mái thái trệt cấp 4 1 tầng. Sở dĩ mình gửi thêm là bởi ngoài những kiểu trên và thế đất trên. Anh chị xem mẫu mã kiểu nhà ở các đường dẫn dưới. Chọn thêm kiểu nhưng còn mặt bằng thì sửa lại 2 phòng ngủ nhỏ mini lại cho hợp với đất và khuôn viên nhà mình
- Các mẫu nhà vườn 1 tầng đẹp có 3 phòng ngủ cập nhật thêm 2020
- Xem mẫu nhà vườn mái thái cấp 4 có gác lửng làm phòng thờ chị Vui
- Mẫu nhà cấp 4 2 mặt tiền 3 phòng ngủ kiểu châu âu đẹp chị Khiêm
- Mê mẩn những căn nhà mái thái đẹp kiểu biệt thự xây trên đất rộng
- Mẫu nhà đẹp 1 tầng mái thái chữ L 4 phòng ngủ anh Hưng Đạt Lý
Lời nhắn nhủ khi xây nhà đẹp 2 phòng ngủ năm 2022 tới
Để hạn chế chi phí phát sinh thấp nhất khi xây nhà cấp 4 100m2 hiện nay. Nhân viên công ty mình vừa cập nhật mẫu nhà cấp 4 mái tôn 600 triệu 100m2 có 1 phòng thờ 3 phòng ngủ 2 vệ sinh. Vẽ cho anh Tâm Bình Dương. Trong bài viết có hướng dẫn cách tính vật liệu xây nhà cấp 4 100m2 rõ ràng chi tiết nhất. Anh chị nên BẤM XEM BÀI VIẾT NÀY từ đó mà ước lượng và dự trù xây nhà vườn 7x15m hay nhà 8x13m hiện nay

Những mẫu nhà đẹp 2 phòng ngủ trên mình tổng hợp và đưa vào chuyên mục cẩm nang xây nhà vì là bài tổng hợp. Còn anh chị xem kiểu dáng mẫu mã hay cần hồ sơ bản vẽ nhà 7×15 2 phòng ngủ như hình. Cần chỉnh gì thì nói mình 1800 6015 giá thiết kế mới 100k/m2. Chúc các bạn thành công.!