Bản Vẽ Thiết Kế Nhà Ống 4x15m Đẹp Hiện Đại Đầy Đủ Công Năng
Bạn đang tìm kiếm ý tưởng? thiết kế nhà ống Hiện đại, đầy đủ chức năng. Hãy thử tham khảo một số bản vẽ thiết kế nhà ống 4x15m mà Nội Thất Đương Đại đã tổng hợp dưới đây!
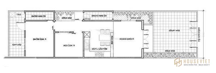
Bản vẽ thiết kế nhà ống 1 tầng 4x15m
Đây là mẫu nhà ống 1 tầng phổ biến, được nhiều gia đình lựa chọn. Tuy là 1 tầng nhưng vẫn đáp ứng được nhu cầu sinh hoạt của cả gia đình.

Từ sân trước bước vào là không gian phòng khách. Tiếp đến là phòng bếp và bàn ăn. 2 phòng ngủ được bố trí trong cùng một mẫu nhà ống. Phòng ngủ của con được thiết kế sau phòng bếp và cạnh phòng ngủ của bố mẹ. 2 phòng ngủ thông nhau vừa tiết kiệm diện tích vừa thuận tiện cho việc sinh hoạt và di chuyển hành lang trong nhà.

Bản vẽ thiết kế nhà ống 4x15m 2 tầng
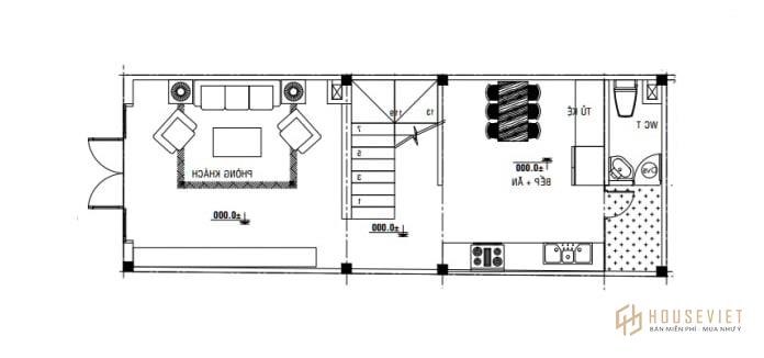
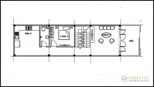
Nhà ống 2 tầng 2 phòng ngủ
Mẫu nhà ống 2 tầng được thiết kế theo phong cách hiện đại. Tận dụng yếu tố nắng và gió tự nhiên để không gian thêm rộng rãi, thoáng mát. Nhà có công năng sử dụng gồm phòng khách, bếp, 2 phòng ngủ và ban công sân thượng.
Tầng 1 được bố trí phòng khách và khu vực nấu nướng, ăn uống của gia đình. Cuối nhà là phòng vệ sinh nhỏ có sân sau. Giúp không gian mát mẻ hơn. Bố cục này bạn có thể dễ dàng nhìn thấy trong 4x15m. thiết kế nhà ống thông thường.

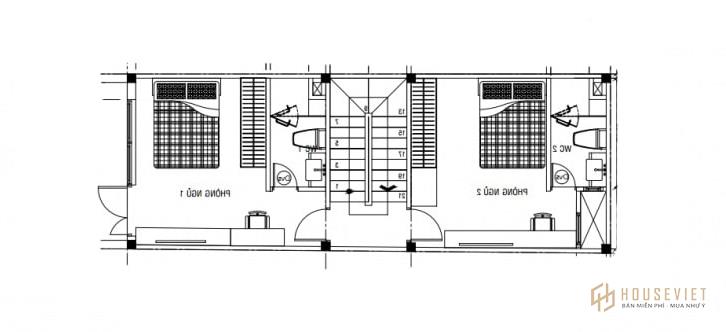
Tầng 2 là không gian dành riêng cho việc nghỉ ngơi của gia đình, bao gồm 2 phòng ngủ. Mỗi phòng ngủ đều có phòng vệ sinh khép kín. Rất thoải mái cho sinh hoạt hàng ngày của các thành viên trong gia đình. Sân thượng rộng rãi để trồng cây vừa là nơi vui chơi của các bé.

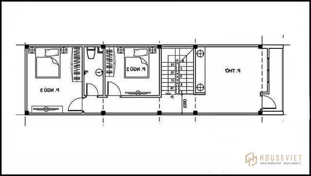
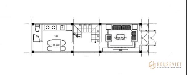
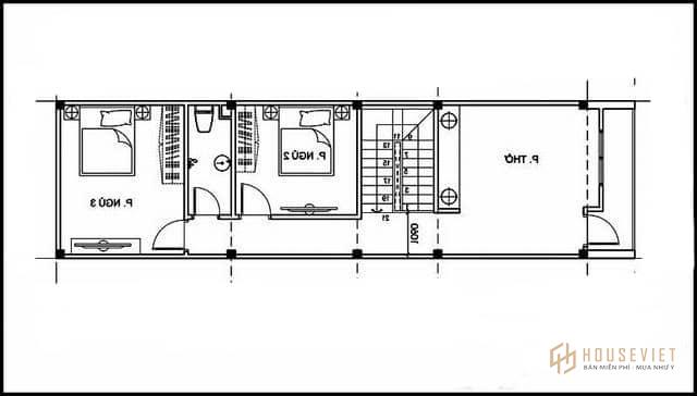
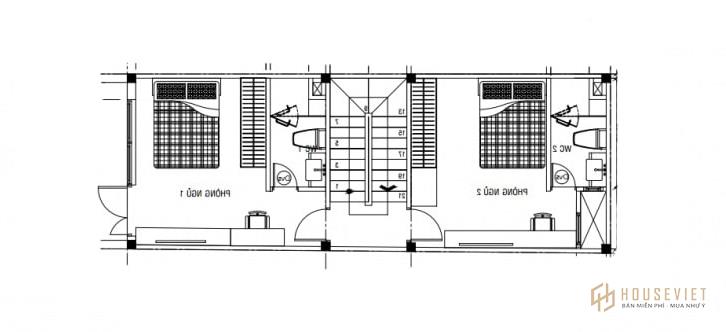
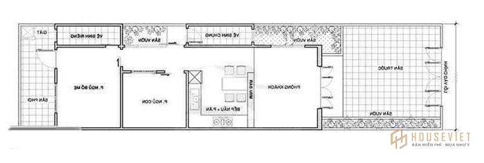
Nhà ống 2 tầng 3 phòng ngủ
Mẫu nhà ống 4x15m được thiết kế sang trọng, hiện đại với kinh phí xây dựng phù hợp với tình hình tài chính của nhiều gia đình.

Tầng 1 gồm phòng khách, bếp ăn và 1 phòng ngủ của bố mẹ. Mặt tiền phía trước có sân vui chơi và chỗ để xe cho gia đình. Tiếp đến, phòng khách được thiết kế đơn giản, tiện nghi. Tiếp đến là khu vực cầu thang và phòng ngủ của bố mẹ được bố trí bên cạnh. Và cuối cùng là phòng bếp và phòng ăn kết hợp.

Tầng 2 bố trí hai phòng ngủ với không gian thoải mái, có phòng vệ sinh khép kín. Rất thoải mái cho cả gia đình. Phòng thờ được đặt cạnh cầu thang theo hướng đón nắng và gió.

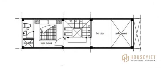
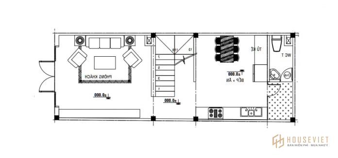
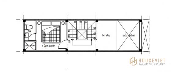
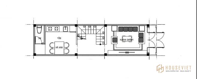
Mẫu thiết kế nhà ống 3 tầng 4x15m
Bên cạnh những mẫu nhà ống 2 tầng thì nhà ống 3 tầng với phong cách thiết kế hiện đại, trẻ trung cũng được nhiều gia đình ưa chuộng. Mẫu thiết kế phối cảnh mặt tiền đẹp, sang trọng và đầy đủ công năng.

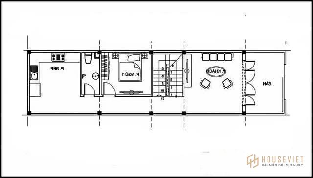
Tầng 1 được thiết kế theo phong cách hiện đại gồm phòng khách và bếp. Kiến trúc sư đã phân chia và bố trí từng khu vực hợp lý và tối giản.

Tầng 2 gồm 1 phòng ngủ, 1 phòng giải trí vừa là nơi sinh hoạt chung của gia đình, vừa là nơi vui chơi của các con. Phòng ngủ nằm ở cuối phía sau. Phòng ngủ được thiết kế đơn giản, có phòng vệ sinh khép kín.

Tầng 3 có 2 phòng ngủ. 2 phòng ngủ nằm đối diện nhau, ngăn cách với cầu thang là cầu thang. Cách bố trí này giúp cho việc di chuyển cũng như sinh hoạt trở nên thuận tiện hơn.

Tư vấn thiết kế, bố trí bản vẽ công năng sản phẩm
Đây là một số bản vẽ thiết kế nhà ống 4x15m cho bạn tham khảo. Nếu bạn đang tìm một đơn vị uy tín để xây nhà ống cho gia đình mình. Hãy liên hệ ngay với Nội Thất Đương Đại để được tư vấn và báo giá nhanh nhất.