Bản vẽ thiết kế nhà tân cổ điển 6 tầng mặt tiền 4,5m nhà anh Đô
Mẫu nhà phố 6 tầng đẹp tối ưu mặt tiền theo kiến trúc tân cổ điển. Quý công ty cập nhật phối cảnh và mặt bằng công năng nhà ống 1 trệt 4 lầu 1 lầu áp mái anh Đô. Nếu bạn có mảnh đất với chiều ngang 4m 5m hãy liên hệ với kiến trúc sư của tôi.
- Bản vẽ CAD nhà 2 tầng 4 phòng ngủ mái thái anh Nghĩa đã xây dựng
- Tải file thẻ hồ sơ kiến trúc biệt thự mới nhất
- Bản vẽ CAD mẫu nhà chữ L ngang 4 phòng ngủ ở quê anh Kiên
Thông tin mẫu thiết kế mặt tiền mẫu nhà phố 6 tầng đẹp anh Đô.
Mẫu nhà đẹp 6 tầng mặt tiền 4,5mx 14m của anh Độ. Bản vẽ kết cấu gồm 1 trệt 4 lầu 1 sân thượng. Được xây dựng trên ô đất tổng thể mặt phố rộng 4,5x16m. Phương án thiết kế chừa lại 1,2m lối thoát hiểm bắt buộc cho khoảng thông tầng và hiên ngoài tầng trệt. Mẫu nhà đẹp 6 tầng mặt tiền 4,5m được thiết kế với mục đích gia đình ở chứ không phải kinh doanh. Phối cảnh thiết kế tông màu trắng sữa theo phong cách cổ điển Châu Âu. Thông tin trên cung cấp thêm thông tin để bạn biết thêm

Mẫu nhà phố đẹp 6 tầng có tổng diện tích sàn xây dựng xấp xỉ 500m2. Tối ưu hóa mặt tiền nhà phố theo phong cách Romanesque, không phải nhà phố kiến trúc Pháp mái mansard. Ngôi nhà phố 6 tầng 4,5x14m có kiến trúc mái bằng, sân thượng. Lan can khung thép nghệ thuật. Bản vẽ kết cấu nhà 1 trệt 4 lầu 1 sân thượng DTXD mỗi tầng 65m2.
Phối cảnh nhà phố 6 tầng mặt tiền 4.5m đẹp 2022
Mẫu thiết kế nhà phố 4,5 × 14 năm 2021 mới được khởi công xây dựng. Hiện tại, chúng tôi đang xin phép để triển khai. Phụ trách hồ sơ bản vẽ nhà đẹp 6 tầng mặt tiền 4,5m anh Đô. Ban giám đốc công ty cổ phần thiết kế nhà đẹp mới đã giao cho kiến trúc sư Đức phụ trách phần phát triển.
- Bộ bản vẽ cad mẫu nhà biệt thự 2 tầng 3 tum mái thái các bạn tham khảo
- Mặt bằng nhà cấp 4 hoặc chung cư năm 2021

Bản vẽ mặt bằng nhà phố mặt tiền 4,5m 6 tầng 2021
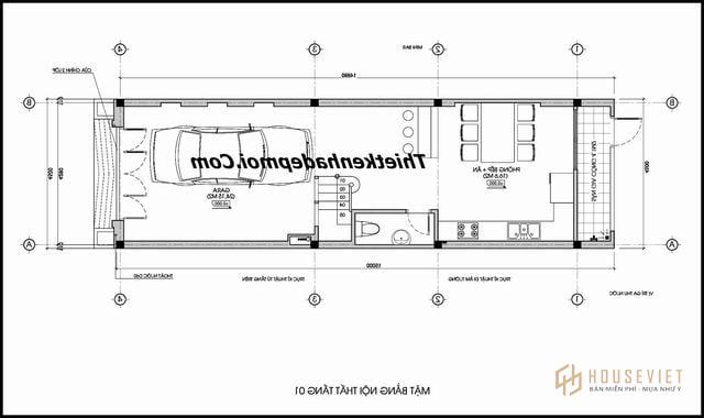
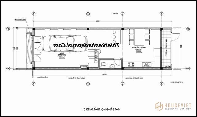
Mẫu nhà đẹp cổ điển 6 tầng mặt tiền 4,5m thiết kế theo hướng Đông Nam. Trong đó bản vẽ mặt bằng thiết kế nhà 6 tầng 4,5 × 14 tức là diện tích sàn xây dựng của nhà phố 63m2. Không gian tầng trệt có gara ô tô bên trong. Khoảng không gian còn lại được dành cho sân và lối thoát ra sau khu đất. Không gian còn lại là phòng bếp thiết kế hướng Tây và phòng vệ sinh thông với cầu thang. Bản vẽ kiến trúc nhà phố mặt tiền 4,5m như sau

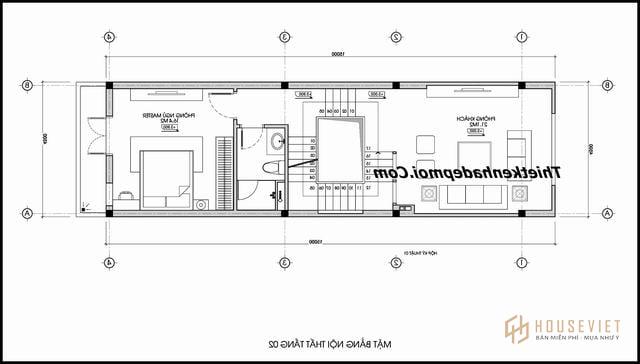
Bản vẽ thiết kế nhà 6 tầng mặt bằng tầng 1
Tầng 1 mẫu nhà 6 tầng 65m2 được thiết kế ban công rộng 1,2m. Bên trong thiết kế 1 phòng ngủ bên ngoài rộng 16,4m2. Từ cầu thang 21 bậc xuống tầng trệt có phòng vệ sinh bên cạnh. Không gian phía sau được thiết kế phòng khách kết hợp sinh hoạt chung. Mặt bằng bản vẽ mặt bằng nhà phố 4,5x14m như sau

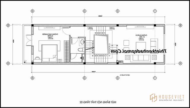
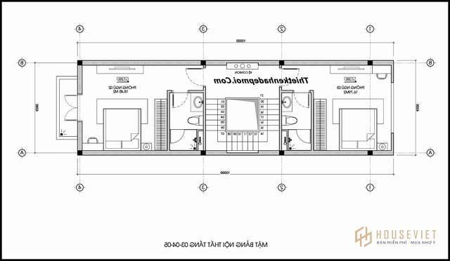
Bản vẽ file CAD nhà phố 6 tầng lầu 2 3 4 anh Đô
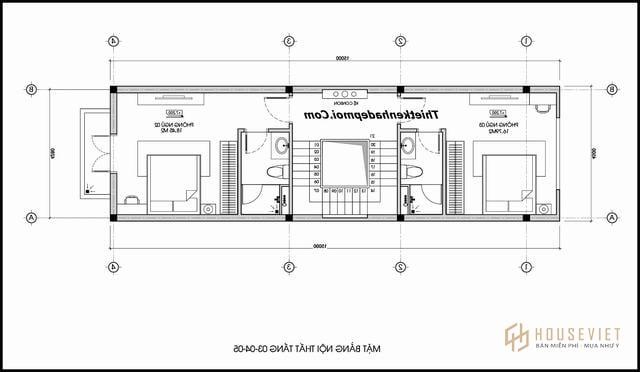
Bản vẽ mặt bằng tầng 3 4 5 chính giữa mặt tiền mẫu nhà đẹp 6 tầng anh Đô có kích thước như ý. Mỗi tầng 2 phòng ngủ có vệ sinh riêng và vệ sinh chung. Trong đó, phòng ngủ ngoài cùng được thiết kế theo phong cách Master rất rộng với diện tích 18,6m2. Diện tích phòng ngủ sau 16,8m2 rất rộng rãi và thoải mái. THIẾT KẾ NHÀ ĐẸP MỚI cập nhật 1 mặt bằng giống hệt nhau 3 tầng ở giữa trong file cad mẫu nhà phố 6 tầng rộng 4,5m điển hình để các bạn tham khảo

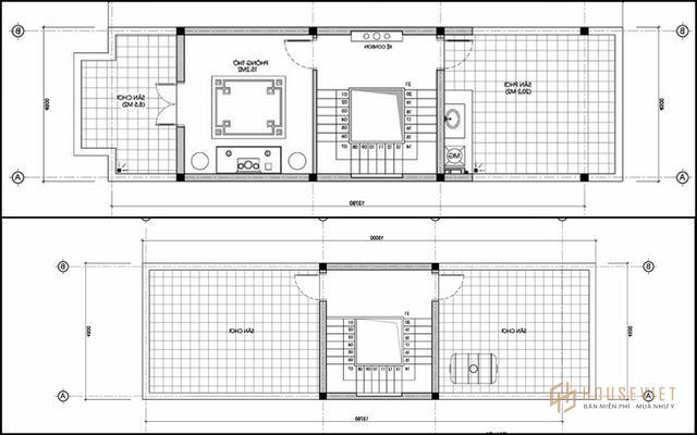
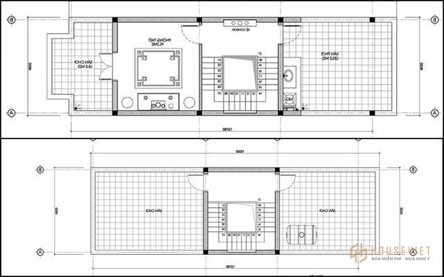
Hai tầng trên cùng một mẫu nhà 6 tầng đẹp anh Đô.
Hồ sơ cad tầng 6 bản vẽ nhà mặt tiền 4,5m thiết kế 1 phòng thờ rộng 15,3m. Vire nhìn về Dinh Phước Đức. Bên ngoài có sân thượng rộng 8,5m. Mặt bằng tầng còn lại của mẫu nhà 6 tầng 65m2 rộng 4,5m phía sau là sân phơi vệ sinh máy giặt. Lưu ý đây là bản vẽ kiến trúc nhà phố bán cổ điển có thang máy cho nhà cao tầng

Ngoài bản vẽ thiết kế nhà đẹp 6 tầng mặt tiền 4,5m mà anh Độ đưa ra. Nếu bạn có nhu cầu xây nhà ống có thang máy từ 3 tầng đến 9 tầng như anh Quang rộng 5m có 1 tầng lửng. Để có bản vẽ thiết kế các tầng, mời các bạn tham khảo tại phần thiết kế nhà phố của các kiến trúc sư của công ty mình. Truy cập thêm tại CON ĐƯỜNG NÀY để hiểu thêm về mẫu mặt tiền nhà phố. Thiết kế vừa làm văn phòng kinh doanh hoặc bản vẽ nhà phố 6 tầng kết hợp showroom 2021
Những mẫu mặt tiền nhà phố cao tầng đẹp và phong cách khác
Kể từ khi thành lập công ty cổ phần tư vấn thiết kế NHÀ ĐẸP mới được gần 11 năm. Kiến trúc sư của tôi vẽ cho khách hàng như một khách sạn 14 tầng. Các mẫu nhà ống 6 tầng hay nhà phố 5m hiện đại. Kiến trúc 7 tầng với các tầng mặt tiền cao rộng khác nhau. Điển hình là căn nhà phố 5 tầng kết hợp showroom tại tầng trệt nhà anh Lộc, quận Tân Phú. Kiểu mặt tiền 3,5m2 xây dựng diện tích sàn 60m2 cây trên đất xéo nở hậu.

Mẫu nhà phố tân cổ điển 6 tầng đẹp anh Ngân
Nếu bạn là dân bất động sản chắc chắn sẽ biết đến anh Ngân. Một giám đốc trẻ sinh năm 1978 của công ty bất động sản Phương Đông. Được tách ra từ Đất Xanh Group chi nhánh Biên Hòa. Nhà Đẹp chi nhánh Mới cũng vui vẻ hợp tác thiết kế cho anh một công trình kiến trúc nhà phố 6 tầng cổ điển. Đây là ảnh đại diện của photo house

Mời các bạn xem bản vẽ mặt bằng chi tiết nhà phố 6 tầng đẹp năm 2023 mới xây và cập nhật. Được thiết kế cho gia đình của Ngân trong bài viết nhà đẹp 6 tầng Mặt tiền 4,5m có tầng hầm bán nổi anh Ngân
Mẫu nhà phố 6 tầng mặt tiền vát cạnh của anh Trung
Căn nhà phố 2 mặt tiền này được thiết kế theo nhu cầu kinh doanh cho thuê nghỉ dưỡng. Diện tích xây dựng 70m2 / sàn thiết kế theo kiến trúc nhà phố tân cổ điển kiểu Pháp. Hệ thống mái Mansard. Nhưng bạn cần xây lô góc vát kết hợp làm showroom bán hàng. Hình ảnh nhà phố 6 tầng 2 mặt tiền lô góc cho thuê nhà trọ như sau

- Xem bản vẽ nhà 2 mặt tiền 6 tầng kiểu pháp anh Trung
Hồ sơ cad nhà phố 6 tầng đẹp do chi nhánh cổ phần hà nội thực hiện
Văn phòng chi nhánh công ty cổ phần kiến trúc và xây dựng NHÀ ĐẸP MỚI tại Hà Nội đã sơn sửa cho gia đình anh Tú ở Nam Định. Hồ sơ cad mẫu nhà phố 6 tầng mặt tiền 5m như sau

Lưu ý bản vẽ nhà phố 6 tầng kết hợp showroom ở tầng trệt được xây dựng năm ngoái. Quý khách có nhu cầu vẽ file cad vui lòng liên hệ với phó giám đốc NHÀ ĐẸP MỚI chúng tôi. Mặt tiền của mẫu nhà phố 5 tầng 6m cổ điển này có tỷ lệ cân đối rất hài hòa. xem thêm
- Hoàn thiện bản vẽ thiết kế nhà 2 tầng 950 triệu MIỄN PHÍ chị Thủy BN
Mẫu nhà phố 7 tầng mặt tiền 4,6m chị Quyên Hà Nội
Mẫu nhà phố đẹp thứ 6 này là mẫu thiết kế nhà ống cổ điển mặt tiền 4,6m. Quy mô kiến trúc 1 trệt 5 lầu 1 sân thượng. Hồ sơ bản vẽ cad mặt bằng nhà phố kích thước 4,6x12m trệt 1 lầu có gara. Đây là bản vẽ nhà phố 7 tầng có thang máy. Hình ảnh bản vẽ kiến trúc mặt tiền nhà phố 4,6m đẹp của chị Quyên như sau

Các mẫu nhà phố hiện đại 1 trệt 5 lầu = 6 lầu
Trên đây là những mẫu nhà phố cao tầng phong cách Châu Âu mặt tiền 3m đến 5m. Ngoài file cad bản vẽ nhà đẹp 6 tầng tân cổ điển có trên. Mời các bạn tham khảo thêm nhiều mẫu khác thiết kế nhà phố đẹp các phong cách hiện đại khác. Thích ứng với vùng đất nở rộ hoặc vùng nước ngập, thậm chí mở một phòng trưng bày, quảng cáo hoặc văn phòng nhà trọ

- Xem nhà mặt tiền đường 5m 6 tầng khách sạn mini này
Mẫu nhà mặt tiền 6 tầng kết hợp kinh doanh nhà nghỉ khách sạn cho thuê.
Gửi đến các bạn mẫu thiết kế nhà nghỉ 6 tầng tại Đà Nẵng được thực hiện theo tiêu chuẩn khách sạn 3 sao. Đây cũng là một trong những mẫu nhà phố 6 tầng hiện đại. Phát hiện TRUY CẬP VÀO ĐÂY nếu bạn thích phong cách này của Suri Hotel

Thông điệp thiết kế nhà phố 6 tầng 2 mặt tiền đẹp đang HOT hiện nay
Diện tích đất mặt tiền rất hiếm, đa số khoảng 2m đến 5m. Đặc biệt là tại các thành phố lớn như Hồ Chí Minh, Đà Nẵng, Hà Nội .. Là công ty xây dựng kiến trúc với nhiều năm kinh nghiệm. Tôi khuyên bạn nên chọn những căn nhà phố cao tầng, có thang máy. Mặt tiền ngoại thất phải đẹp, hài hòa. Như bản vẽ thiết kế nhà ống cổ điển kiểu Pháp hay La Mã Châu Âu. Yếu tố thứ hai về phong thủy trong kinh doanh cũng vô cùng quan trọng.

Trình độ công nghệ 4.0 hiện nay rất bùng nổ, chỉ cần liên hệ để được báo giá bản vẽ thiết kế theo mục đích nhu cầu sinh hoạt. Thứ hai, hướng nhà, năm sinh .. Chúng tôi sẽ gửi bản vẽ phối cảnh 3D nhà cao tầng diện tích nhỏ hiện đại. Để bạn tham khảo lựa chọn.
Các mẫu nhà 6 đến 7 tầng tân cổ điển
Hiện tại công ty cổ phần NHÀ ĐẸP MỚI của mình có văn phòng tại Hà Nội, Hà Đông, chi nhánh tại Đà Nẵng, Biên Hòa, Bình Dương .. Còn trụ sở chính tại Sài Gòn thì bạn kéo xuống dưới để xem địa chỉ của văn phòng gần nhất. nhiều nhất mà liên hệ

- Ngắm nhìn mẫu nhà tân cổ điển 6 đến 7 tầng này mà anh Việt đã thi công
À quên .. Các phối cảnh của 6 mẫu nhà phố đẹp 5 6 7 tầng trên đây đều có bản vẽ chi tiết đầy đủ. Bạn cần tham khảo kiểu gì vui lòng kết nối 1800 6015 có zalo. Để tham khảo ý kiến, gửi mặt bằng bên trong để tham khảo đã chuẩn bị. Tham khảo đến nhà ống mẫu thiết kế 3 4 tầng giá xây dựng rẻ hơn. Chúc một buổi tối vui vẻ và hạnh phúc, cảm ơn bạn