Bản vẽ xây nhà 3 tầng mái thái hoàn chỉnh đã xây xong cho anh Bá
Những mẫu nhà 3 tầng mái thái sau đều có hồ sơ full chi tiết. Đã xây xong năm ngoái nên ai cần alo mình
Mẫu nhà chữ L mái thái đầu từ ngang 9m anh Bá
Mẫu nhà 3 tầng mái thái hình chữ L mặt tiền 9m thiết kế lên đến 5 phòng ngủ 1 phòng thờ lợp ngói. Bản vẽ thiết kế nhà chữ L 1 trệt 2 lầu tầng mái thái 9x14m bên hành lang có sân để xe thông thoáng. Mời anh chị tham khảo cách bố trí bản vẽ và phối cảnh mẫu nhà mái thái chữ L 3 tầng mặt phố hiện đại 80m2 của anh Bá Hà Đông
- Xem mẫu nhà biệt thự 2 tầng mái thái 9x17m đã xây xong cho cô Nữ
- Những mẫu nhà biệt thự phố đẹp 3 4 tầng vừa ở kết hợp kinh doanh 2021
Cách xây nhà biệt thự mini 3 tầng mái thái rộng 9m ngang
Từng chi tiết của biệt thự mini 3 tầng hình chữ L mái thái mặt tiền 9m chi nhánh Hà Nội. KTS Tư được trau chuốt cẩn thận để tạo nên 1 công trình kiến trúc tuyệt vời. Toàn bộ ngoại thất nhà ngang 9m mái thái chữ L đều được sơn tông màu trắng tinh khôi kết hợp màu nâu gỗ.
Những hình ảnh tổng quan mẫu nhà mái thái hình chữ L 3 tầng đơn giản
Kiến trúc nhà mái thái hình chữ L đẹp mái ngói kiểu thái đỏ tươi như một kiệt tác kiến trúc hội họa. Với quy mô xây dựng nhà 3 tầng, mẫu nhà 1 trệt 2 lầu đẹp rộng 9m trông bề thế nguy nga và hoành tráng sang trọng thể hiện được gia thế và đẳng cấp của chủ nhân.

Hình dáng mẫu thiết kế nhà hình chữ L đẹp có hành lang trái phong thủy tạo nên khoảng sân tiện lợi giúp cho sinh hoạt của gia đình thêm tiện nghi rộng thoáng.
Mặt tiền thiết kế nhà ngang 9m 3 tầng mái thái
Mặt tiền mẫu nhà ngang 9m và chiều sâu 14m giúp cho khuôn viên chung rộng và thoải mái thiết kế. Diện tích thiết kế nhà ngang thực mỗi sàn là 80m2 nâng tổng diện tích của mẫu nhà 3 tầng mái thái lên tới 270m2. Con số đã nói lên công năng sử dụng vào hàng “khủng” của ngôi biệt thự 3 tầng chữ L mái thái 90m2 . Sau đây xin mời quý vị cùng thưởng lãm mẫu thiết kế nhà ở của gia đình anh Bá.
Kiến trúc mặt tiền nhà mái thái 3 tầng rộng 9m đẹp có sảnh bên hông thoáng
Mẫu thiết kế nhà rộng 9m 3 tầng mái thái được thiết kế một kios bán hàng tạp hóa nho nhỏ cho mẹ anh bá. Mặt tiền thiết kế biệt thự phố 3 tầng mái thái chữ L đơn giản này phía trước khối nhà chính chia 2 khối. Phần còn lại được thiết kế cổng dẫn vào khoảng sân cho chữ L tạo ra. Giải pháp xây nhà mái thái 3 tầng đơn giản hình chữ L giúp cho gia đình có nơi sinh hoạt và nhiều ánh sáng
- Mẫu thiết kế nhà cấp 4 rộng 9m mặt tiền đẹp anh Hưng ở Gia Lai
- Mẫu thiết kế nhà rộng 9m kiến trúc biệt thự sân vườn kiểu pháp
Thiết kế nhà mái thái đẹp 3 tầng chữ L có ki ốt bán hàng ngoài mặt tiền
Phía ngoài mặt tiền mẫu nhà đẹp 3 tầng hình chữ L có Ki ốt bán hàng được thiết kế cửa 2 cánh. Cửa sổ bên cạnh thiết kế cánh trượt đẹp và không làm giảm vẻ thẩm mỹ bố cục tổng thể. Cổng chính được xây kiên cố có mái che lợp ngói giúp bảo vệ cổng được bền bỉ với thời gian.

Tường ngoài và cổng chính mẫu nhà chữ L 3 tầng mái thái là phần chức năng phụ. Nhưng cũng góp phần tôn thêm giá trị và vẻ đẹp cho mẫu thiết kế chính. Phần mặt tiền của 2 tầng lầu được thiết kế ban công có lan can thanh mảnh mượt mà tạo nên sự thơ mộng lãng mạn.
Tạo nét nhấn nhá cho biệt thự 3 tầng chữ L mái thái kinh doanh
Mô hình nhà mái thái 3 tầng 9x14m hình chữ l đơn giản mà đẹp anh Bá ở phía ngoài cửa chính 2 cánh. Mỗi tầng đều có 2 cửa sổ 2 bên để tăng cường khả năng nhận sáng vào bên trong. Trên phần tam giác mái của mẫu nhà 3 tầng mái thái được trang trí nhẹ bằng những đường viền kẻ chỉ. Trang trí vòng tròn phù điệu hiện đại ở giữa tạo nên điểm nhấn cho mặt tiền không đơn điệu.
Góc nhìn mẫu nhà đẹp 3 tầng hình chữ L 9m đơn giản khác
Hai bên tường mẫu nhà đẹp 3 tầng hình chữ L treo đèn điện giả cổ điển cho mềm mại. Sở dĩ bố trí như thế giúp mặt tiền nhà 1 trệt 2 lầu đẹp sáng rõ vào ban đêm. Thiết kế đèn ở vị trí này mô phỏng theo kiểu kèn của các mẫu nhà châu âu. Vào ban đêm đèn sẽ có góc chiếu xa hơn và đẹp hơn khi thiết kế đèn dưới trần ban công.
Phối cảnh mẫu nhà mái thái 3 tầng hình chữ L 80m2
Vì phía ngoài nhà mái thái 3 tầng hình chữ L 80m2 có gian bán hàng nên cửa phòng khách được xoay ngang hướng ra sân bên hông do chữ L tạo nên. Giải pháp này giúp sinh hoạt của gia đình thêm tiện nghi và nội thất được thông thoáng mát mẻ. Đồng thời khắc phục được lối vào phòng khách khi phía ngoài có gian hàng.

Cách xây nhà chữ L 3 tầng 5 phòng ngủ mái thái Tây Nam
Mẫu nhà phố mặt tiền 9m 1 trệt 2 lầu hình chữ L được thiết kế mặt tiền xoay về hướng Tây Nam. Nên có lợi thế đón nhận được nhiều gió mát từ phía nam thổi lên. Dựa vào lợi điểm vị trí đất KTS đã thiết kế thêm cửa sổ ở mặt tiền chính và phần chữ L bên tría. Mục đích để khối nhà chính nhận được nhiều gió mát tự nhiên. Phòng khách có 2 mặt lấy sáng và đón gió nên thông thoáng tuyệt vời. Các phòng chức năng khác cũng đều được bố trí cửa ngõ đón gió rộng nhằm đẩy mạnh quá trình đối lưu cho nội thất tổng thể.
- => Tham khảo thêm mẫu biệt thự 3 tầng mái thái đẹp có bể bơi song lập Đảo Rồng Đà Nẵng
Hình ảnh mẫu thiết kế nhà hình chữ L 3 tầng mặt tiền 9m đơn giản
Mẫu thiết kế nhà gang 9m đẹp 3 tầng mái thái n hình chữ L có diện tích mỗi sàn đều rộng rại. Ở 2 tầng lầu có ban công và view bề thế nên không khí dễ dàng luân chuyển đối lưu điều hòa. Trên lầu 2 lại có sân chơi 3 mặt để trống nên khuôn viên mẫu nhà 1 trệt 2 lầu cực kỳ mát mẻ thoáng đãng.
Tư vấn xây nhà đẹp 3 tầng hình chữ L 80m2 theo khí hậu
Đặc điểm khí hậu ở vùng đồng bằng của nước ta phù hợp với những mẫu nhà đẹp 3 tầng hình chữ L hiện đại có kiến trúc không gian mở. Chỉ những vùng núi, cao nguyên, biên giới phía bắc mới cần thiết kế nhà đặc biệt để tránh gió lạnh lùa vào.
Tận dụng gió mát hướng Nam cho mẫu nhà 3 tầng hình chữ L
Tuy nhiên mẫu thiết kế nhà hình chữ L 3 tầng nào cũng cần có cửa ở hướng Nam để nhận được những ưu đãi của thiên nhiên đem lại. Nếu thiết kế hướng nhà xoay về hướng Bắc phong thủy. Quý vị nên thiết kế cửa sau và mở rộng không gian sau nhà để tận hưởng được những nguồn năng lượng tự nhiên quý giá do thiên nhiên ban tặng.

Mẫu nhà chữ l 3 tầng đẹp được lợp mái theo kiến trúc mái thái chữ A lịch lãm. Mái nhà trong kiến trúc ngày nay rất đa dạng nhằm đáp ứng nhu cầu đời sống ngày càng cao. Chi phí xây nhà cũng vừa phải
Lưu ý khi xây nhà chữ L 3 tầng mái thái theo phong thủy
Nhưng dù thiết kế mái nhà hình chữ L 3 tầng theo phong cách nào chăng nữa. Quý vị vẫn phải luôn lưu ý và đáp ứng ba chức năng quan trọng của mái nhà trong phong thủy đó là: “Bài thủy – cách nhiệt – triệt lôi”. Bài thủy nghĩa là phải thiết kế mái nhà có độ dốc hợp lý. Mục đích để nước mưa có thể thoát 1 cách nhanh nhất. Không ứ đọng làm tăng thêm sức nặng lên khung mái
Cách nhiệt chống thấm cho nhà chữ l 3 tầng mái thái 9m
Bản vẽ nhà chữ L 3 tầng anh Bá trong hồ sơ có ghi chú cách chống thấm tràn qua các khe hở vào trong nội thất. Mẫu nhà 1 trệt 2 lầu mái thái ó trần thạch cao giữ ẩm cách nhiệt. Giúp nước không thể ngấm vào tường lâu dần sẽ tiềm ẩn những nguy cơ khó lường. Nếu thích tone trắng mái Nhật công ty mình vừa vẽ mới nhất HOT và đẹp. Cho nhà anh Tiệp như phối cảnh dưới đây

- Bấm xem hồ sơ nhà anh Tiệp y hình trên mà chọn
Nếu quý vị có mảnh đất phố chiều ngang 5.6m 1 trệt 2 lầu
- => Mẫu nhà 1 trệt 2 lầu đẹp mái thái phong cách kiến trúc bán cổ điển anh Lâm quận 7 TP HCM
Yếu tố cách nhiệt cũng vô cùng quan trọng vì nhà mái thái 3 tầng được xem như chiếc nón đội đầu. Ngoài việc an toàn vào mùa mưa thì mái cần tạo cho không khí trong nhà mát mẻ vào những ngày nóng bức. Đây cũng chính là lí do mà người xưa thường dùng rơm rạ là những vật liệu cách nhiệt tuyệt vời để lợp mái.
Xu hướng xây nhà mái thái 3 tầng hình chữ L đẹp hiện nay
Ngày nay, tùy theo khả năng tài chính và kiểu dáng đất nhà mà ta cần chọn vật liệu làm mái cho mẫu thiết kế nhà mặt tiền 9m phù hợp ví dụ có thể dùng ngói. Mái tôn hoặc tấm lợp sinh thái thân thiện với môi trường…
Yếu tố triệt lôi nghĩa là mái nhà phải được thiết kế có cột thu lôi để triệt tiêu những luồng điện sinh ra khi trời có sấm chớp. Để đảm bảo yếu tố này, khi thi công mái mẫu nhà 1 trệt 2 lầu cần làm dây dẫn sét tiếp xúc với cột tiếp đất được chôn sâu dưới lớp đá sỏi và than chì.
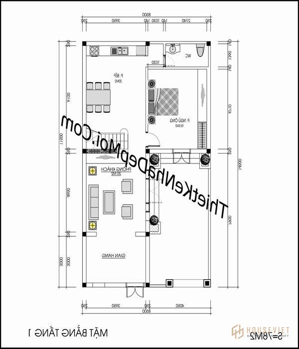
Mặt bằng mẫu thiết kế nhà chữ L 3 tầng đẹp mái thái hiện đại ngang 9m anh Bá Hà Đông
Hồ sơ mẫu thiết kế nhà chữ L 3 tầng 80m2 được hoàn thiện bởi nhóm kts của công ty Thiết Kế Xây Dựng Nhà Đẹp Mới do kts Tư chủ trì. Mọi hạng mục và chi tiết đều được tối ưu để đem đến 1 nội thất có công năng sử dụng cao nhất. Nhìn vào cách bố trí và sắp xếp các phòng chức năng, chúng ta có thể thấy được sự hợp lý và tiện nghi của nội thất.
Bản vẽ thiết kế nhà biệt thự 3 tầng mái thái 9x14m

Tầng trệt được thiết kế gian bán hàng ở phía ngoài cùng và bên trong là phòng khách có cửa đi ra sân bên hông chữ L. Cuối phòng khách là cầu thang lên lầu được trang trí đẹp mắt với tay vịn bằng gỗ uốn lượn mềm mại làm tăng thêm dáng vẻ sang trọng cho không gian tiếp khách.
Cách sắp xếp mặt bằng nhà 3 tầng chữ L 9x14m
Phía trong cầu thang mẫu nhà chữ L 3 tầng đẹp mái thái là phòng ăn với khu bếp gọn gàng. Một nửa diện tích còn lại đối diện với phòng ăn được bố trí 1 phòng ngủ dành cho người lớn tuổi. Cầu thang dẫn lên lầu 1 giúp chúng ta tiếp cận được với 3 cánh cửa của các phòng ngủ.
Phòng ngủ chính rộng và có hệ thống vệ sinh khép kín. Hai phòng ngủ còn lại có diện tích nhỏ hơn và sử dụng chung phòng vệ sinh. Phía sát tường sau được để thông tầng nhằm tạo không gian thông thoáng cho khu bếp nấu ở dưới tầng trệt.

Bản vẽ tầng 3 nhà mái thái đẹp 3 tầng 80m2 ở Hà Đông
Lầu 2 của mẫu thiết kế nhà chữ l 80m2 được bố trí phòng thờ ở phía ngoài, 1 phòng ngủ, sân chơi thông thoáng và khu giặt phơi. Khoảng thông tầng vẫn được chừa để không khí có thể dễ dàng đối lưu giúp khu bếp nấu thoát nhanh mùi dầu mỡ không làm ảnh hưởng đến những bữa ăn của gia đình.

Các mẫu nhà đẹp 2 3 tầng hình chữ L có 3 đến 4 phòng ngủ đẹp khác khác
Mẫu thiết kế nhà chữ L 3 tầng 80m2 5 phòng ngủ 1 phòng thờ anh Bá có tổng diện tích sàn xây dựng 300m2 chi phí khoảng 1.5 tỷ trở lên. Nếu chi phí anh chị khoảng tầm 1 tỷ đến 1.2 trở lại có thể tham khảo các mẫu biệt thự mini hình chữ L 2 3 tầng đẹp khác mới đây


Các mẫu nhà đẹp 2 tầng hình chữ L mái thái diện tích khác nhau chi phí 1. tỷ đến 1.2 tỷ





Anh chị xem hồ sơ bản vẽ nhà chữ L 2 tầng 90m2 của anh Dân Phú Thọ 900 triệu tại đường dẫn này: https://thietkenhadepmoi.com/mau-nha-biet-thu-mini-2-tang-hinh-chu-l-90m2-mai-thai-gia-re.html
Các mẫu nhà đẹp 3 tầng chữ L diện tích nhu cầu sử dụng khác nhau
Những mẫu thiết kế nhà hình chữ L đẹp 3 tầng hay còn gọi là nhà 1 trệt 2 lầu hiện đại này có kích thước khác nhau. Do nếu đưa hình nhiều bài viết sẽ tải lên rất nặng nên chúng tôi chỉ đưa vào mẫu nhà đẹp chữ L 3 tầng đơn giản sơ để anh chị tham khảo. Còn có hơn 78 mẫu nhà chữ L mái thái khác nữa




- Tham khảo thêm mẫu nhà chữ L 3 tầng đẹp diện tích 80m2 anh Hùng Hà Nội thiết kế trên đất xéo đơn giản khác có đầy đủ bản vẽ chi tiết.
Sau khi chiêm ngưỡng mẫu nhà chữ L 3 tầng mái thái rộng 9m đơn giản giá rẻ lợp ngói đỏ gần 80m2 đẹp 5 phòng ngủ của anh Bá. Nếu quý vị muốn biết xây nhà 1 trệt 2 lầu có 4 phòng ngủ 90m2 đến 100m hay nhỏ hơn 70m2 giá bao nhiêu năm 2019. Bản vẽ thiết kế các mẫu nhà đẹp 3 tầng hình chữ l chi phí bao nhiêu để xây? Vui lòng liên hệ kết nối zalo để điều chỉnh kích thước không gian phù hợp với phong thủy và tài chính để khỏi phát sinh