Biệt Thự 1 Tầng Phong Cách Pháp | Tư Vấn Thiết Kế Biệt Thự Đẹp
Biệt thự 1 tầng kiểu pháp Đặc trưng bởi lối kiến trúc sang trọng và đẳng cấp. Bằng cách sử dụng những đường gờ, phào chỉ tinh xảo, những phức hợp phù điêu độc đáo, màu sắc tinh tế, bố cục tương phản, các kiến trúc sư đã tạo nên những ngôi biệt thự bề thế và xa hoa.Kiến trúc Pháp đã không chỉ ảnh hưởng lớn đến kiến trúc Châu Âu mà còn cả Châu Á và Việt Nam. Kiến trúc Pháp tượng trưng cho quyền lực, sức mạnh, sự giàu có và đẳng cấp của gia chủ. Vì vậy, những gia chủ có điều kiện tài chính tốt cũng không ngại chi một số tiền lớn để xây dựng những mẫu biệt thự này.
I. Tư vấn kiến trúc, mặt bằng công năng biệt thự 1 tầng kiểu pháp
1. Kiến trúc
Về kiến trúc, các gia đình có thể lựa chọn theo phong cách tân cổ điển hoặc cổ điển. Phong cách cổ điển đặc trưng bởi hệ thống đường gờ phức tạp, hệ thống cột trụ, gờ, hoa văn đắp nổi vô cùng tinh xảo. Đi cùng với đó là hệ mái Marsand tạo nên sự nguy nga, tráng lệ cho ngôi biệt thự. Để xây dựng được mẫu biệt thự này, yêu cầu gia chủ phải có tài chính tốt, kinh phí xây dựng trong khoảng 3 - 5 tỷ đồng tùy diện tích.
Một phong cách Thiết kế biệt thự 1 tầng Còn lại là phong cách tân cổ điển. Những mẫu biệt thự này không có nhiều cột trụ, hoa văn, đường gờ phức tạp như biệt thự cổ điển. Tuy nhiên, những đường nét khỏe khoắn, hoa văn sắc sảo, hệ mái chữ A, các khối đua rộng, màu sắc tinh tế cũng giúp ngôi biệt thự trở nên sang trọng.
Về màu sơn tường ngoại thất, các gia đình có thể lựa chọn những gam màu nhẹ nhàng. Phần mái có thể sử dụng màu xanh than, đen hoặc xanh lam tùy theo sở thích. Để đạt hiệu quả thẩm mỹ tốt hơn, không gian thông thoáng hơn bạn có thể lắp đặt cửa gỗ tự nhiên kết hợp kính cường lực trong suốt.

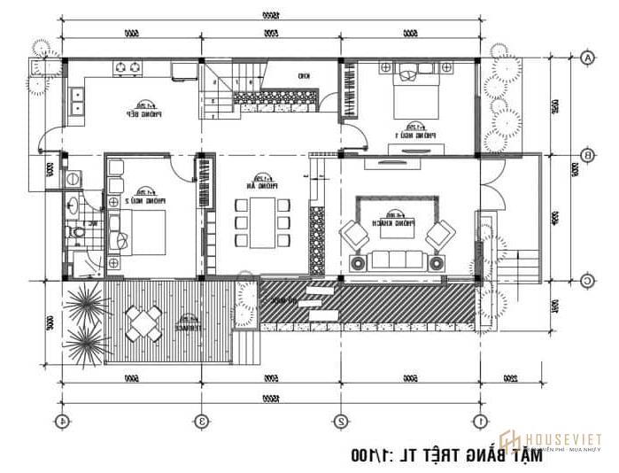
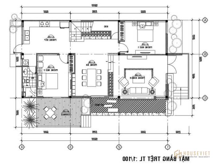
2. Mặt bằng công năng của biệt thự 1 tầng kiểu pháp
- Với diện tích 300m2 (Tổng DT: 400m2 - bao gồm mái). Có thể bố trí các phòng chức năng như sau:
 - Phòng khách 33m2
 - Phòng ngủ 1 18m2
 - Phòng ngủ 2 19,7m2
 - Phòng ngủ 3 19,7m2
 - Phòng thờ 23m2
 - Sân chơi 30m2
 - Phòng bếp + ăn 26,8m2
 - WC 1 5,1m2
 - WC2 4,5m2
 - Phòng giặt 1.5m2
 

II. Cách bố trí nội thất biệt thự 1 tầng kiểu pháp
Ngôi biệt thự 1 tầng kiểu Pháp không chỉ sở hữu kiến trúc sang trọng mà còn có thiết kế nội thất vô cùng đẳng cấp. Cùng với sự tỉ mỉ và sắc sảo trong từng đường nét, màu sắc, cách bài trí nội thất tạo nên một không gian sống vô cùng đẳng cấp.
1. Phòng khách biệt thự
Không gian phòng khách của căn biệt thự được bày trí bộ sofa tân cổ điển. Những đường bo tròn mềm mại ở tay vịn, tựa lưng, chân ghế khiến bộ sofa trở nên vô cùng cuốn hút.
Ngoài bộ sofa, phía trước còn có một bàn trà được thiết kế sang trọng. Sự kết hợp hoàn hảo giữa chất liệu, màu sắc và kiểu dáng tạo nên không gian đầy tính nghệ thuật.
Để có một nội thất biệt thự 1 tầng kiểu Pháp đẹp đòi hỏi người thiết kế và sản xuất phải có tay nghề cao, tư duy sáng tạo và tay nghề cao. Hiểu được điều đó, Nội Thất Đương Đại dành tất cả tâm huyết để tuyển chọn nguồn nhân lực giỏi, nguyên vật liệu chất lượng, vải bọc hoặc da nhập khẩu để làm nên những sản phẩm hoàn hảo và cao cấp nhất.
Không chỉ có quy trình sản xuất tỉ mỉ, quá trình thi công, lắp ráp cũng được Nội Thất Đương Đại chăm chút kỹ lưỡng. Mục đích để không gian biệt thự hài hòa, sang trọng, thể hiện được gu thẩm mỹ và đẳng cấp của gia chủ.

2. Nội thất phòng ăn phong cách tân cổ điển
Vân là phong cách thiết kế nội thất Tân cổ điển, các nhà thiết kế đã sử dụng rất tốt chất liệu, màu sắc, ánh sáng để tạo nên không gian phòng ăn hoàn hảo này.
Phòng ăn biệt thự được bố trí bộ bàn ghế ăn gồm 1 bàn 6 ghế. Màu trắng kết hợp với nâu trầm tạo nên sự tương phản về màu sắc. Nhờ đó, căn phòng càng thêm nổi bật và sang trọng. Đi kèm với bộ bàn ăn, phía trên còn được bố trí một chiếc đèn chùm lớn với thiết kế ấn tượng. Màu tường được sơn màu sáng kết hợp với những bức tranh trang trí tạo nên vẻ đẹp cổ điển mà ít mẫu thiết kế nào có thể sánh được.
3. Nội Thất Đương Đại sản xuất và thi công nội thất biệt thự trọn gói
Về chất liệu, Nội Thất Đương Đại sử dụng toàn bộ chất liệu cao cấp. Bàn ghế được sử dụng chất liệu gỗ sồi sơn trắng, mặt ngồi bọc đệm Việt Nhật, nỉ nhập khẩu từ Hàn Quốc. Nhờ sử dụng toàn bộ vật liệu chất lượng nên nội thất các phòng chức năng đảm bảo tính thẩm mỹ, sang trọng, độ bền vượt thời gian.
Qua bài tư vấn thiết kế biệt thự 1 tầng kiểu Pháp trên đây. Hi vọng các gia đình có thêm ý tưởng để thiết kế biệt thự cho riêng mình. Đồng hành cùng khách hàng trên mọi công trình, Nội Thất Đương Đại chuyên thiết kế, sản xuất và thi công nội thất biệt thự trọn gói. Xưởng đảm bảo chất lượng, thẩm mỹ, Báo giá thiết kế biệt thự tốt nhất cho khách hàng.