Biệt thự 2 tầng 4 phòng ngủ 13x10m tại Phúc Thọ Hà Nội NDBT2T111
Phong cách thiết kế kiến trúc của mẫu nhà biệt thự hiện đại 2 tầng 4 phòng ngủ 13x10m quyết định về mặt hình khối, tính thẩm mỹ từ phối cảnh ngoại thất đến cách bố trí không gian nội thất bên trong công trình. Bất cứ mẫu nhà 2 tầng hoành tráng nào khi thiết kế cũng được các kiến trúc sư xác định trước phong cách thiết kế sao cho phù hợp với diện tích và hình dáng lô đất dù là thiết kế hiện đại hay cổ điển, tân cổ điển. cổ điển. Đây cũng là những kiểu kiến trúc cơ bản mà các kiến trúc sư của chúng tôi thường phân chia rõ ràng. Với mong muốn sở hữu một không gian sống vừa đẹp, vừa hiện đại, tinh tế, vừa đủ công năng, tiện nghi trên mảnh đất rộng rãi ở quê, anh Tuấn chị Lan ở Phúc Thọ đã liên hệ với công ty Nhà Đẹp. Chúng ta cùng tham khảo nhiều mẫu nhà đẹp của công ty trên Website. Anh rất hài lòng và thích thú với những mẫu biệt thự đẹp do KTS của công ty thể hiện, anh nhờ tư vấn thiết kế mẫu biệt thự 2 tầng theo phong cách kiến trúc hiện đại đảm bảo các yếu tố: thẩm mỹ, bố trí công năng hài hòa, linh hoạt, không gian tiết kiệm, .. cho bạn. Chính vì vậy, các kiến trúc sư đã họp bàn và quyết định thiết kế biệt thự 2 tầng 4 phòng ngủ 13x10m cho gia đình anh. Nếu bạn cũng có chung yêu cầu được tư vấn về mẫu biệt thự 2 tầng đẹp như anh Tuấn thì đây chính là một trong những gợi ý tuyệt vời dành cho bạn.
Thông tin mẫu biệt thự 2 tầng 4 phòng ngủ 13x10m
Đây là một trong những mẫu thiết kế nhà 2 tầng có diện tích khá rộng nên chi phí xây dựng cho công trình này khá cao. Mời các bạn tham khảo đơn giá xây dựng dự kiến cho mẫu nhà mái thái 2 tầng kiểu Nhật này.
- Chủ đầu tư: Anh Tuấn - Chị Lan
- Địa điểm xây dựng: Phúc Thọ
- Kích thước nhà: 13x10m
- DTXD: 130m2
- Số phòng ngủ: 3 phòng
- Chi phí dự kiến: 1,6 - 1,8 tỷ đồng
Phối cảnh 3D nhà biệt thự 2 tầng 4 phòng ngủ 13x10m

Nhìn vào hình ảnh 3D bản vẽ phối cảnh mẫu biệt thự 2 tầng 4 phòng ngủ 13x10m chắc chắn bạn sẽ nhận ra đây là mẫu thiết kế biệt thự vườn hiện đại. Các khối kiến trúc được trình bày một cách đơn giản, tự do và không phức tạp. Điểm nhấn của mẫu kiến trúc biệt thự mái thái 2 tầng kiểu Nhật này là hệ thống cột vuông vắn, khỏe khoắn và hiện đại. Hệ thống cột không chỉ để trang trí mà còn là nơi nâng đỡ ngôi nhà, tôn thêm vẻ đẹp cho mặt tiền của ngôi biệt thự 2 tầng này. Để giảm bớt sự thô cứng ở hệ thống cột vuông, kiến trúc sư đã tạo một đường thẳng ở giữa các cột và sơn màu nâu nổi bật trên nền sơn trắng sữa. Kẻ phào chỉ tạo điểm nhấn hút mắt người xem là một trong những nét đột phá và khác biệt cho hệ thống cột.

Mặt tiền của mẫu biệt thự 2 tầng 4 phòng ngủ 13x10m hiện đại được sử dụng gam màu trắng sữa làm chủ đạo, sử dụng gam của mùa này kết hợp với ánh sáng mặt trời giúp ngôi nhà bừng sáng và thu hút ánh sáng. mắt của kẻ si tình. Tông màu trắng sữa tạo nên sự đơn giản và dễ dàng kết hợp với màu nâu để làm nổi bật các chi tiết kiến trúc của ngôi nhà, giúp công trình trở nên nổi bật và thu hút hơn.
Ngôi nhà biệt thự mái thái 2 tầng kiểu Nhật này sử dụng hệ thống cửa được làm bằng vật liệu hiện đại là sự kết hợp giữa kính cường lực và khung nhôm xingfa cao cấp. Hiện nay, cửa kính khung nhôm được rất nhiều người yêu thích và lựa chọn bởi những ưu điểm mà nó mang lại. Chất liệu kính mang đến hiệu quả lớn trong việc đón ánh sáng mặt trời, giúp không gian bên trong ngôi nhà luôn sáng sủa, thoáng mát. Loại cửa kính cường lực khung nhôm này giúp cho không gian ngoại thất thêm bề thế và vững chãi.

Hệ thống mái thái Nhật Bản cũng là một trong những chất liệu đáng chú ý trong bản vẽ thiết kế nhà này. Mái thái có độ dốc tương đối giúp thoát nước mưa nhanh chóng, tránh tình trạng ngập úng, thấm nước tạo điều kiện cho vi sinh vật, rong rêu phát triển ảnh hưởng đến thẩm mỹ và mỹ quan của ngôi nhà. Trang Chủ. Mái thái sử dụng gam màu xanh lam gợi lên vẻ đẹp trang nhã, sang trọng và vô cùng tinh tế. Hệ thống mái thái Nhật Bản còn có ưu điểm là tản nhiệt tốt, phù hợp với điều kiện thời tiết khắc nghiệt ở nước ta.
Hệ thống tường rào hiện đại, thiết kế sang trọng, thông thoáng càng tôn lên vẻ đẹp bề thế vững chắc của ngôi nhà. Đồng thời tạo sự an tâm cho các thành viên trong gia đình chủ đầu tư.
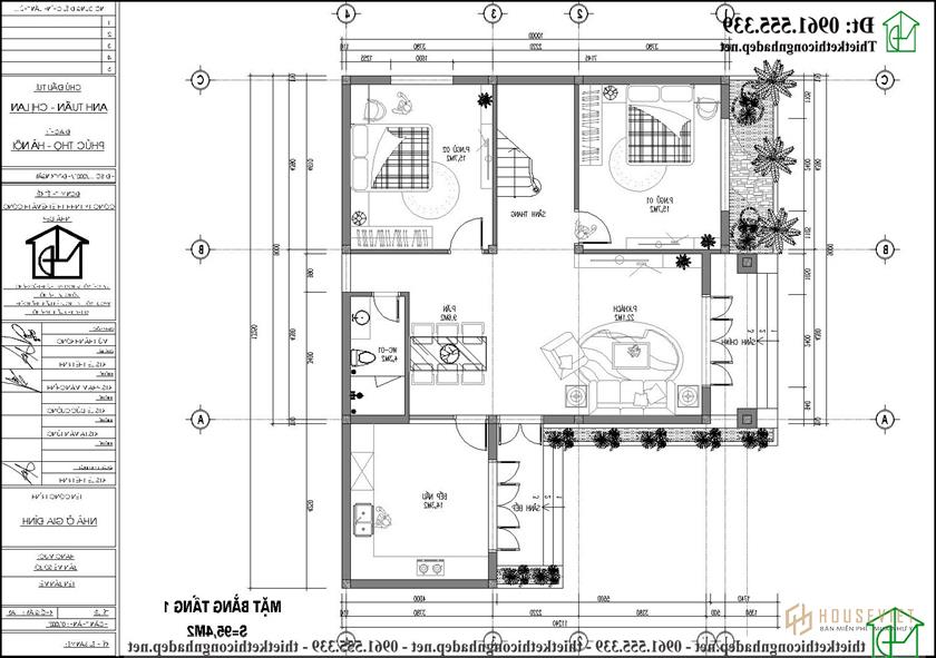
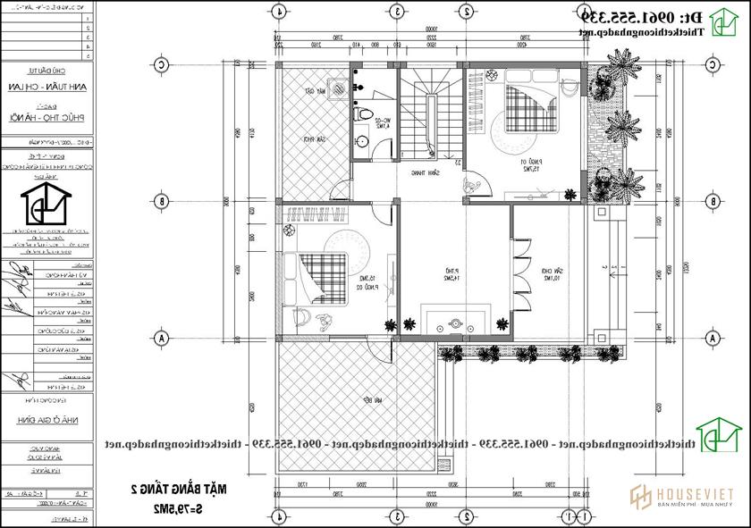
Công năng mẫu biệt thự 2 tầng 4 phòng ngủ 13x10m

Đến với tầng 1 của mẫu biệt thự 2 tầng 4 phòng ngủ 13x10m đầu tiên bước vào nhà là phòng khách được bố trí ở giữa nhà là nơi tiếp đón các vị khách. Từ phòng khách nhìn sang bên phải là phòng bếp + bàn ăn - nơi gia chủ cùng nhau thể hiện tình cảm gia đình bằng những bữa ăn ngon. Gần bếp có nhà vệ sinh rất thuận tiện cho việc sinh hoạt của các thành viên trong gia đình. Tiếp theo, nhìn sang bên trái là 2 phòng ngủ. Cầu thang được thiết kế giữa 2 phòng ngủ tạo không gian hợp lý, thuận tiện cho việc di chuyển lên tầng 2 của các thành viên.

Bước lên tầng 2 với phòng thờ được thiết kế cửa sổ lớn và cửa ra ban công rất tốt cho phong thủy, tạo vượng khí cho việc thờ cúng của gia chủ. Cùng với đó là 2 phòng ngủ, 1 phòng ngủ được thiết kế đối diện cầu thang và phòng ngủ còn lại được bố trí bên phải cầu thang. Nhà vệ sinh được thiết kế lệch trái cầu thang mang đến sự thuận tiện trong sinh hoạt.
Bạn đang muốn sở hữu một mẫu biệt thự 2 tầng 4 phòng ngủ 13x10m đẹp và hiện đại như gia đình anh Tuấn Phúc Thọ ở Hà Nội. Hãy liên hệ với công ty nhà đẹp chúng tôi để được tư vấn thiết kế kiến trúc.
- Biệt thự mái thái 2 tầng 7,5x15m ở Thái Bình NDBT2T110
- Mẫu thiết kế nhà 2 tầng chữ L hiện đại 15x12m NDBT2T109
- Mẫu thiết kế nhà 2 tầng hình chữ L 10x12m ở Thái Bình NDBT2T108
- Nhà vườn 2 tầng 6x12m kết hợp nhà thờ ở Hoài Đức Hà Nội NDBT2T112