Biệt thự 2 tầng 4 phòng ngủ 8x14m tại Thái Nguyên NDBT2T136
Đây là một trong những mẫu biệt thự 2 tầng 4 phòng ngủ 8x14m được thiết kế theo phong cách hiện đại. Tuy nhiên, bạn sẽ thấy một chút thừa một chút mà chúng tôi sử dụng trong thiết kế này. Nếu xếp ngôi nhà 2 tầng này là biệt thự 2 tầng hiện đại thì chưa hoàn toàn đúng và nếu nói là biệt thự 2 tầng đẹp phong cách tân cổ điển thì cũng đúng. Ở thiết kế này có sự kết hợp nhẹ nhàng giữa phong cách hiện đại với phong cách tân cổ điển. Sau những phương án thiết kế, những yêu cầu từ gia chủ, chúng tôi đã đưa ra mẫu biệt thự 2 tầng mái Thái, mời các bạn cùng tham khảo những hình ảnh thiết kế này của Nhà Đẹp.
Biệt thự 2 tầng 4 phòng ngủ 8x14m mái thái đẹp là sự hài hòa nhẹ nhàng, độc đáo trong phong cách thiết kế, xây dựng và là sự kết hợp tinh tế, hài hòa với những đường nét, chi tiết trang trí sinh động, góp phần không nhỏ tạo nên một tổng thể không gian nội - ngoại thất hài hòa. Đó là điều mà các kiến trúc sư của công ty nhà đẹp chúng tôi muốn gửi đến quý vị và các bạn. Để biết thêm về những thông tin đặc biệt của mẫu thiết kế biệt thự 2 tầng mái Thái sang trọng này, mời các bạn cùng theo dõi trong bài viết dưới đây để hiểu rõ hơn nhé.
Thông tin về biệt thự 2 tầng 4 phòng ngủ 8x14m
Hiện nay tình hình dịch bệnh đang phát triển rất mạnh nên ảnh hưởng đến giao thông vận tải trên toàn quốc. Do giao thông đi lại khó khăn, vật liệu xây dựng không được thuận lợi như ngày thường nên đơn giá thi công sẽ tăng hơn bình thường. Tuy nhiên tại Thái Nguyên đơn giá xây dựng, giá nhân công xây nhà thường rẻ hơn các khu vực khác nên chúng tôi dự kiến với mức giá 5 triệu / 1m2 là chúng tôi có thể hoàn thiện được ngôi nhà này. Mời các bạn cùng xem qua!
- Địa điểm xây dựng: Thái Nguyên
- Chủ đầu tư: Anh Kiên
- Diện tích nhà: 8x14m
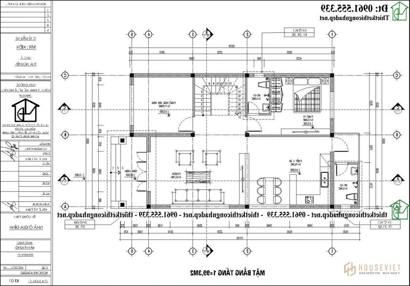
- Diện tích xây dựng tầng 1: 99,3m2
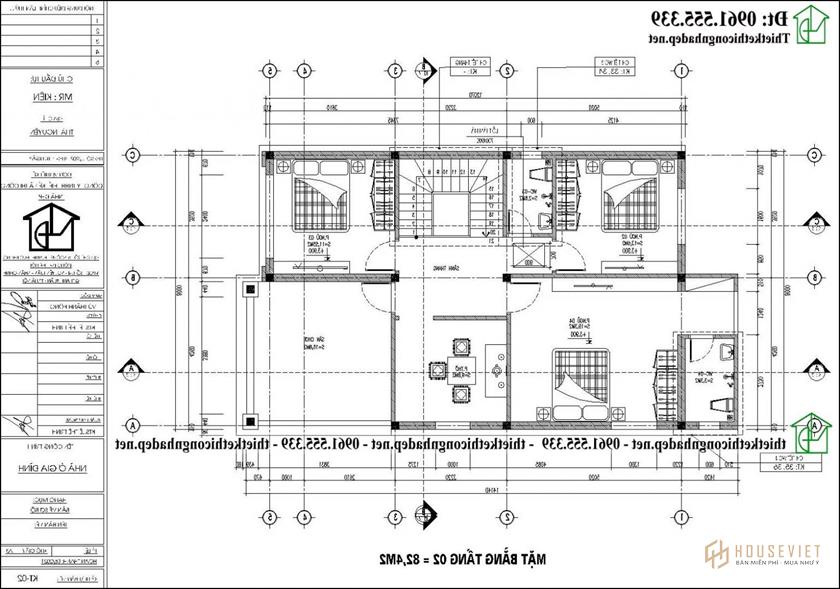
- Diện tích xây dựng tầng 2: 82,4m2
- Diện tích vành mái: 82,4 × 0,4 = 32,96m2
- Tổng diện tích mái bê tông: 214,66m2
- Tổng giá trị xây dựng trên m2 mái bê tông: 214,66 × 5.000.000 = 1.073.300.000 đồng
- Diện tích mái ngói: 82,4 × 1,5 = 123,6m2
- Tổng giá trị xây dựng mái ngói: 123,6 × 750.000 = 92.700.000 đồng
- Tổng giá trị hoàn thiện nhà: 1.073.300.000 + 92.700.000 = 1.166.000.000 đồng
Phối cảnh 3D biệt thự 2 tầng 4 phòng ngủ 8x14m mái thái đẹp

Ngôi biệt thự 2 tầng 4 phòng ngủ 8x14m khoác trên mình gam màu trắng tinh khôi trang nhã tạo nên sức hút say đắm lòng người mà ai nhìn thấy cũng khó lòng cưỡng lại được. Không chỉ vậy, nhờ gam màu trắng chủ đạo này còn giúp các chi tiết phối đồ và màu sắc đi kèm trở nên sinh động và ấn tượng hơn bao giờ hết.
Thêm vào đó, màu xanh than của hệ mái tương đối nhẹ nhàng, thân thiện tạo nên sự khác biệt lớn và độc đáo. Thông thường, những gam màu nóng, gam màu sặc sỡ khi sử dụng làm vật trang trí, đồ dùng hàng ngày… rất nổi bật, nhưng đối với nhà ở, gam màu xanh than lại chinh phục người nhìn hơn cả bởi sự êm dịu, trang nhã, sang trọng và thanh cao mà nó mang lại.

Khu vực ban công và vườn hoa trang trí mang đến cho kiến trúc của mẫu biệt thự 2 tầng 4 phòng ngủ 8x14m vẻ đẹp tinh tế và hiện đại. Hệ lam gỗ trang trí khu vực ban công được sử dụng hoàn toàn bằng bê tông, sau đó sơn giả gỗ lên trên. Chi tiết này không chỉ khiến ban công của ngôi nhà đẹp và độc đáo, khác biệt, có điểm nhấn hơn.
Mẫu thiết kế biệt thự 2 tầng 4 phòng ngủ 8x14m gây ấn tượng với người nhìn bởi hệ thống cửa được thiết kế dày đặc. Hệ thống cửa của biệt thự được sử dụng các vật liệu cao cấp như nhôm kính xingfa, kính ốp gỗ… Với chất liệu là kính cường lực có độ trong suốt tối đa mang đến khả năng cách âm, chống ồn, tiêu âm tốt. Ánh nắng hiệu quả góp phần tạo không gian sống mát mẻ, trong lành và thông thoáng.

Chi tiết đặc biệt nhất trong mẫu biệt thự 2 tầng 4 phòng ngủ 8x14m không thể không kể đến phần mái: Thiết kế với kiến trúc mái thái độc đáo, các lớp ngói thái không nung được xếp đối diện, so le với nhau mang đến vẻ đẹp thẩm mỹ ấn tượng. Hơn nữa, nhờ chất liệu ngói còn giúp tản nhiệt cho không gian ngôi nhà tốt hơn, giúp thích nghi với thời tiết dù ở trạng thái nào. Đồng thời, kết cấu mái thái có độ dốc khá lớn nên rất thuận tiện cho việc thoát nước, tránh tình trạng thấm, đọng trên bề mặt làm ảnh hưởng đến vẻ đẹp thẩm mỹ của không gian ngoại thất.
Mặt bằng công năng biệt thự 2 tầng 4 phòng ngủ 8x14m mái thái

Không gian tầng 1 của biệt thự 2 tầng 4 phòng ngủ 8x14m từ cửa chính đi vào đầu tiên là phòng khách rộng rãi với bộ sofa hiện đại kết hợp với tủ và kệ trang trí giúp không gian vừa tiện nghi vừa hiện đại. cô đọng. Bên trong là khu bếp + ăn sạch sẽ, thoáng mát, có cửa phụ thông ra sân sau. Bên trái và bên phải của cầu thang chính là 2 phòng ngủ yên tĩnh, trong đó có một phòng ngủ chính hiện đại được thiết kế với phòng tắm khép kín. Cuối cùng là một phòng vệ sinh chung tiện nghi cuối nhà phía sau bếp.

Lên đến tầng 2 được bố trí phân chia không gian gồm: 1 phòng thờ trang nghiêm. 2 phòng ngủ thường và 1 phòng master rất yên tĩnh được thiết kế theo sở thích và yêu cầu của từng thành viên - nơi đây rất thích hợp để thư giãn, lấy lại sức khỏe sau một ngày làm việc căng thẳng và thư giãn. mệt mỏi. Nhìn chung, cách bố trí công năng của biệt thự 2 tầng 4 phòng ngủ 8x14m đã đảm bảo được sự tiện nghi, thoải mái và không gian sống hiện đại cho cả gia đình chủ đầu tư.
Trên đây là hồ sơ thiết kế biệt thự 2 tầng 4 phòng ngủ 8x14m đẹp và sang trọng. Ngôi nhà do kiến trúc sư của công ty nhà đẹp thiết kế và lên phương án xây dựng. Bộ hồ sơ hoàn chỉnh bao gồm tất cả các hạng mục kiến trúc theo yêu cầu. Nếu bạn cũng có ý định xây nhà trong năm nay hãy liên hệ ngay với chúng tôi để nhận được những mẫu nhà đẹp nhất, ưng ý nhất.
- Biệt thự mái thái 2 tầng 13x20m ở Sài Gòn NDBT2T135
- Biệt thự 2 tầng 5x10m mái bằng đẹp ở Ninh Bình NDBT2T134
- Biệt thự mái thái 2 tầng 8x16m ở Nam Định NDBT2T133
- Mẫu biệt thự mái thái 2 tầng 10x13m tại Hà Nam NDBT2T137