Biệt thự 2 tầng hiện đại 2 mặt tiền đồ sộ ở Nha Trang
Mẫu biệt thự 2 tầng hiện đại 2 mặt tiền bởi Gia Bảo Group thiết kế kiến trúc và xây dựng tại thành phố Nha Trang là một trong những công trình nổi bật về mặt thiết kế. Ngôi biệt thự đồ sộ, kiên cố với những hình khối khỏe khoắn, mạnh mẽ.
Màu sắc được kết hợp hài hòa từ màu của cát trắng và biển xanh tạo nên vẻ đẹp trong lành và xanh mát. Hãy cùng chúng tôi tham quan mẫu biệt thự 2 tầng hiện đại để có thêm ý tưởng cho ngôi biệt thự của gia đình mình trong tương lai.
Ý tưởng về mẫu biệt thự 2 tầng hiện đại (BT08)
Mẫu biệt thự 2 tầng hiện đại tại thành phố Nha Trang xinh đẹp được lấy cảm hứng từ vùng đất nắng vàng, biển xanh, cát trắng của nơi đây. Vì vậy, nhìn vào ngoại thất, bạn có thể nhận ra ngay vẻ đẹp dịu mát từ hai màu trắng và xanh, hai tông màu chủ đạo của ngôi nhà.
Trên mảnh đất rộng 247m2, hai mặt tiền, gia chủ mong muốn có được một ngôi biệt thự thời thượng. Nắm bắt được thị hiếu của gia chủ, các kiến trúc sư của chúng tôi đã lựa chọn phong cách hiện đại kết hợp với mái thái chữ U đồ sộ và hoành tráng. mẫu biệt thự đẹp đây.

Biệt thự mặt tiền
Mặt tiền của ngôi biệt thự mang vẻ đẹp bề thế, với hệ thống mái thái hình chữ U đồ sộ. Mái bánh U được sử dụng cho cả 2 tầng, vừa là điểm nhấn cho mặt tiền vừa tạo cảm giác che chắn cho toàn bộ ngôi biệt thự. Ngôi nhà có hai mặt tiền nên rất nổi bật so với không gian xung quanh.
Kiến trúc biệt thự mang vẻ đẹp khỏe khoắn, các mảng tường ngăn tạo vẻ đẹp góc cạnh, vuông vắn và dứt khoát. Kiến trúc sư sử dụng nhiều cột trụ để nâng đỡ, tạo vẻ vững chãi. Đặc biệt, mái ngói, có thiết kế lượn sóng tạo nên không gian ngoại thất uyển chuyển, ấn tượng.
Mái ngói hình thang
Ngoài màu xanh dịu mát của nước biển, chất liệu ngói có độ bền cao, khả năng chống nóng, thân thiện với môi trường. Loại ngói này sở hữu nhiều ưu điểm vượt trội so với ngói nung truyền thống xưa.
Gatehouse
Cùng với thiết kế mái ngói của mẫu biệt thự 2 tầng hiện đại là phần cổng nhà. Vì vậy, mặt tiền ngôi nhà là một liên kết chặt chẽ trong thiết kế kiến trúc. Cổng biệt thự được thiết kế bằng những song sắt nhỏ, hiện đại và thông thoáng. Hàng rào được thiết kế theo hình mũi tên, sơn màu trắng tạo vẻ đẹp trang nhã, hiện đại.

Màu sắc
Kiến trúc sư đã sử dụng hai gam màu chủ đạo là xanh và trắng. Điểm xuyết trên gam màu trắng của sơn tường là màu xanh của mái ngói, của đá hoa cương tạo cảm giác mát mẻ, dễ chịu.
Sân vườn
Đi sâu vào bên trong Biệt thự 2 tầng hiện đại là sân vườn, trồng nhiều loại cây xanh tạo thành cảnh quan lý tưởng cho không gian sống. Ngoài ra, sân vườn rộng rãi này còn có khả năng phục vụ những bữa tiệc BBQ của gia chủ, với khoảng 20 người.

Cửa
Cửa nhà được nhấn nhá bằng một vài chi tiết mang phong cách Châu Âu tạo điểm nhấn ấn tượng cho mặt tiền. Kiến trúc sư sử dụng hệ thống cửa kính với vòm tròn vừa sang trọng vừa hợp thời trang và tinh tế.
Trụ cột
Ngôi nhà sử dụng hệ thống cột tròn ốp đá hoa cương trắng mang màu sắc cổ điển ở mặt tiền chính và 2 trụ vuông màu nâu cách điệu hiện đại ở ban công tầng 1. Những cột trụ này mang đến cảm giác vững chãi, tạo nên sự đột phá, tạo nên vẻ đẹp của sự vững chãi và mạnh mẽ.
Tấm kính cường lực
Kiến trúc sư đã sử dụng kính cường lực chắc chắn cho lan can tầng 2. Vì vậy, ngôi nhà vừa mang vẻ đẹp sang trọng, vừa thoáng và sáng.
Mái hiên giàn
Kiến trúc sư thiết kế phần hiên nằm ở ban công mặt tiền chính, tại đây có thể tạo một bức tranh nghệ thuật mini dạng vườn cây treo. Gia chủ có thể tận dụng để trồng các loại cây dây leo, hoặc cây ăn quả.
Điểm nhấn cuối cùng của mặt tiền Biệt thự 2 tầng hiện đại là góc tường ban công tầng một. Thay vì bức tường kính thông thường, kiến trúc sư thiết kế lệch với góc của tầng trệt, tạo cảm giác lạ mắt.
Ngoài ra, sự chú ý đến từng chi tiết này còn nằm ở việc ốp đá granit xanh từ chân tường đến trần nhà và dải kính hình chữ L ngược mang nhiều ánh sáng vào nhà.

Dưới chân tường của hệ thống cổng hàng rào màu trắng này được ốp một đường viền bằng đá hoa cương xanh với mục đích chính là giữ sạch sẽ cho khu vực dễ bị bám bẩn nhất.
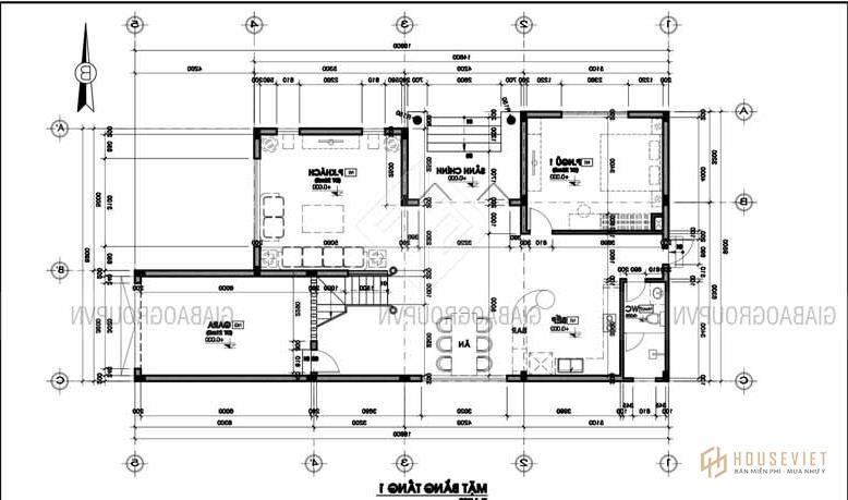
Mặt bằng công năng mẫu biệt thự 2 tầng hiện đại
Do diện tích sàn của biệt thự xấp xỉ 130m2 nên thiết kế nội thất biệt thự và cách bố trí, sắp xếp bố trí nội thất sử dụng bên trong được xây dựng hướng đến một không gian sống tiện nghi, thoải mái và rất thông thoáng.
Nội thất tầng trệt
Sảnh chính và khu ăn uống của gia đình cùng tạo thành một đường kéo dài từ cửa vòm chính đến cuối nhà, tạo cảm giác liên hoàn. Hai bên trái và phải của lối đi này lần lượt gồm phòng ngủ, phòng khách phía trước và khu bếp nấu với quầy bar hiện đại bên cạnh bàn ăn dài.
Không gian còn lại về phía mặt tiền phụ được sử dụng làm nhà kho và nhà để xe.

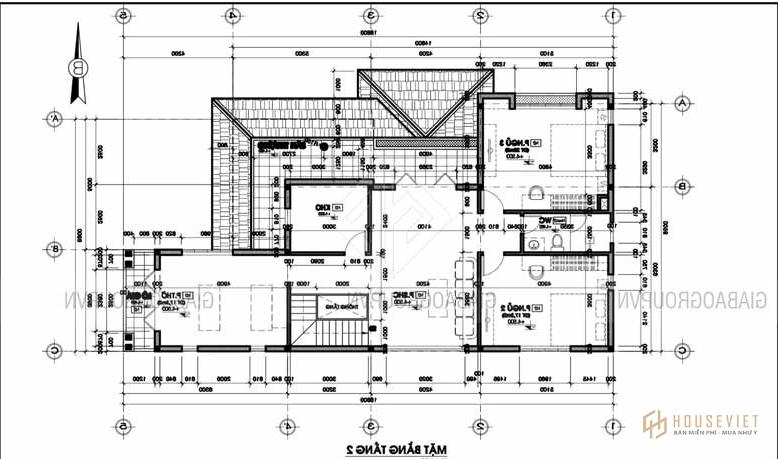
Nội thất tầng 1
Do nhu cầu sử dụng của không gian chung đã được đáp ứng hoàn toàn tại tầng trệt, tầng 1 của Biệt thự 2 tầng hiện đại được thiết kế thêm 2 phòng ngủ rộng bên phải.
Gian bên trái gồm nhà kho và phòng thờ. Phòng thờ được thiết kế nằm tách biệt ở mặt tiền bên hông của ngôi nhà. Thiết kế này vừa tạo cảm giác riêng tư trong thờ cúng, vừa tạo sự thông thoáng với ban công riêng.

Để mọi việc diễn ra suôn sẻ và tiết kiệm thời gian phải tìm kiếm nhiều nhà cung cấp, bạn có thể cân nhắc lựa chọn dịch vụ Thiết kế và thi công trọn gói Gia Bảo Group.
Chúng tôi sẽ giúp bạn có cơ hội sở hữu ngôi nhà mơ ước trong thời gian sớm nhất. Đến với Gia Bảo Group bạn có thể hoàn toàn yên tâm bởi chất lượng công trình luôn đảm bảo đúng tiến độ công trình.
Xem thêm:
- Chiêm ngưỡng 50+ mẫu thiết kế biệt thự vườn đẹp nhất hiện nay
- Thi công biệt thự trọn gói chuyên nghiệp, ấn tượng, thẩm mỹ cao
- Mẫu thiết kế biệt thự 2 tầng hiện đại đẹp quên lối về ở DakNong
- Mẫu biệt thự vườn 2 tầng đẹp và hiện đại tại Nhơn Trạch, Đồng Nai
- Mẫu biệt thự đẹp phong cách hiện đại mái thái ấn tượng kiểu nhật
Hình ảnh thi công thực tế mẫu biệt thự 2 tầng hiện đại tại TP Nha Trang
- Thiết kế biệt thự 2 tầng hiện đại
- Thiết kế biệt thự 2 tầng hiện đại
- Thiết kế biệt thự 2 tầng hiện đại
- Thiết kế biệt thự 2 tầng hiện đại
Bạn vừa ghé thăm Biệt thự 2 tầng hiện đại tại thành phố Nha Trang xinh đẹp. Nếu bạn yêu thích mẫu biệt thự hiện đại này, hoặc cần tư vấn thêm về thiết kế biệt thựhãy liên hệ với Gia Bảo Group để được phục vụ tốt nhất.