Biệt thự 2 tầng mái bằng 8x11m kiến trúc hiện đại tại Sơn La NDBT2T141
Mẫu biệt thự 2 tầng mái bằng 8x11m được xây dựng ở vị trí đẹp, khá gần mặt đường lớn. Đây là mẫu thiết kế biệt thự đẹp được giới chuyên gia đánh giá rất cao cả về không gian ngoại thất, nội thất lẫn công năng sử dụng được bố trí khoa học, thông minh. Mẫu biệt thự 2 tầng này ngay từ khi ra mắt đã nhận được sự hài lòng tuyệt đối của gia chủ đồng thời đón nhận được sự quan tâm của nhiều gia đình khác.
Để biết tại sao mẫu thiết kế biệt thự mái bằng hiện đại này lại “hot” đến như vậy. Xin mời quý vị và các bạn cùng tham khảo bài viết chi tiết dưới đây của Nhà đẹp nhé!
Thông tin về mẫu biệt thự 2 tầng mái bằng 8x11m hiện đại
- Chủ đầu tư: Anh Nguyên
- Địa chỉ: Sơn La
- Kích thước nhà: 8x11m
- Diện tích tầng 1: 88m2
- Diện tích tầng 2: 112.5m2
- Diện tích sảnh chính: 7.36m2
- Diện tích sảnh phụ: 5.7m2
- Tổng diện tích mái bê tông: 88+112.5+7.36+5.7=213.56m2
- Tổng giá trị hoàn thiện: 213.56×5.550.000=1.174.580.000 vnđ
Phối cảnh 3D của mẫu thiết kế biệt thự 2 tầng sang trọng, đẳng cấp
Đây là mẫu nhà biệt thự 2 tầng mái bằng 8x11m đang được chú ý nhiều nhất và luôn nằm trong tốp đầu tìm kiếm của thị trường kiến trúc xây dựng nhà hiện nay. Ngôi nhà biệt thự đẹp này mang lối kiến trúc độc đáo, phá cách, tạo nên cái nhìn vô cùng độc đáo, làm nổi bật lên phong cách thiết kế đậm chất hiện đại, đẳng cấp.

Mẫu biệt thự 2 tầng mái bằng 8x11m đẹp này sở hữu phong cách thiết kế hiện đại, trẻ trung. Màu sắc sử dụng nhã nhặn, hài hòa nổi bật trên nền trời xanh là gam màu trắng chủ đạo kết hợp với màu đen huyền bí, màu nâu trầm ấm của hệ thống gạch ốp và cửa. Sự kết hợp độc đáo giữa các gam màu tương phản nhau này khiến cho không gian ngoại thất trở nên hòa hợp, gắn kết bền chặt, đem lại sự độc đáo và hấp dẫn ánh mắt người nhìn.
Một số chi tiết trang trí được ốp đá hoa cương và gạch granite bền đẹp để tạo nên cảm giác sang trọng, lịch sự cũng như độ bền theo thời gian và giúp tăng tính chống bám bụi, hạn chế các vi sinh vật và rêu phong phát triển.

Sử dụng hệ thống cửa nhôm kính xingfa cao cấp cho toàn bộ cửa ra vào, cửa sổ, vừa có tác dụng tạo nên cảm giác thoáng đãng lại vừa có thể đưa đến cái nhìn rộng rãi, bề thế. Hơn nữa, ưu điểm vượt trội ở dòng cửa này rất độc đáo là giúp thu hút ánh sáng tự nhiên tốt, có lợi cho sức khỏe con người vào bên trong không gian nội thất một cách dễ dàng, tối ưu nhất.
Ngoài ra, hệ thống đèn treo tường, đèn âm trần được bố trí dày đặc với công dụng là giúp cung cấp nguồn sáng cho ngôi biệt thự 2 tầng mái bằng 8x11m vào thời điểm ánh sáng mặt trời không đảm bảo và làm cho ngoại thất của công trình có thể phô diễn được vẻ đẹp tuyệt hảo của mình một cách lung linh nhất cả ngày lẫn đêm.

Vẻ đẹp của ngôi biệt thự 2 tầng mái bằng 8x11m đẹp được tạo nên bởi sự liên kết của các hình khối. Với thiết kế mái bằng giúp ngôi biệt thự có được sự an toàn tốt nhất bởi kết cấu gồm 4 lớp bê tông chịu lực, lớp tạo độ dốc, lớp chống thấm và lớp cách nhiệt. Giúp tăng khả năng chống cháy, chống đọng nước mưa, chống thấm dột một cách hiệu quả. Mái bằng là sự lựa chọn không hề tồi bởi ngoài chi phí thi công mái khá rẻ, thì còn có thể tận dụng mái bằng làm nơi để sinh hoạt ngoài trời cũng như để các vật dụng, trang thiết bị phục vụ cho nhu cầu sinh hoạt như téc nước, thái dương năng, pin mặt trời…

Tầng 2 của ngôi biệt thự 2 tầng mái bằng 8x11m đẹp còn được thiết kế rộng với hệ lan can bằng kính cường lực và khung thép chắc chắn s tạo sự đồng bộ. Diện tích lan can thoáng đãng, phù hợp để gia đình chủ đầu tư có thể ngồi thưởng trà và trồng thêm nhiều loại cây xanh tươi mát.
Không dừng lại ở đó, để giảm thiểu sự thô cứng từ hình khối, các kiến trúc còn nhấn nhá thêm hệ thống giếng trời độc đáo ở khu vực mặt bằng mái, vừa có tác dụng tạo sự thông thoáng lại còn có thể giúp tăng thêm sự thẩm mỹ cho tổng thể công trình.

Phần sân phía trước được thiết kế đẹp mắt và lát gạch giả đá màu xám sạch sẽ, bâc tam cấp bố trí thuận tiện nhằm tạo sự cân đối giữa các không gian. Sân trước được trang trí nổi bật với hệ thống bồn hoa, tiểu cảnh xanh mướt, mới mẻ và đẹp mắt.

Bao quanh ngôi biệt thự 2 tầng mái bằng 8x11m là dãy tường rào được xây dựng cao ráo, qua đầu người. Tuy nhiên, chúng lại không khiến cho mẫu biệt thự đẹp bị bí bách hay ngột ngạt. Việc sử dụng hàng rào bằng sắt sơn tĩnh điện có tác dụng giúp cho dòng không khí xung quanh luôn được luân chuyển, lưu thông và thoáng đãng hơn.
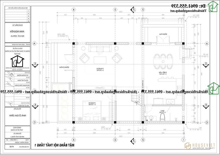
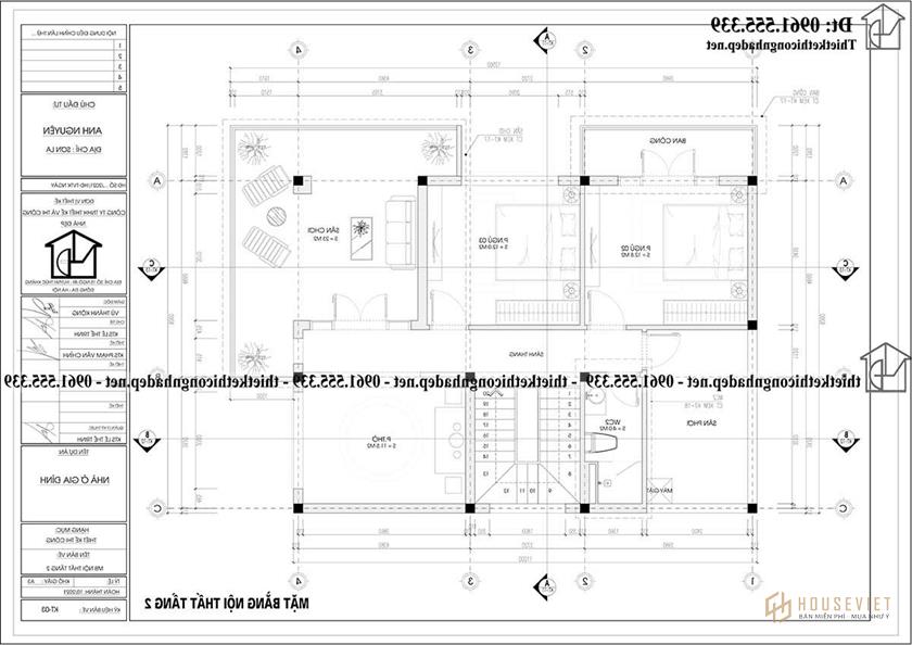
Mặt bằng công năng của mẫu biệt thự 2 tầng 3 phòng ngủ đẹp

Tầng 1 của ngôi biệt thự 2 tầng mái bằng 8x11m được bố trí gồm 1 phòng khách đặt gần sảnh chính, với thiết kế thoáng đãng sở hữu những ô cửa kính lớn giúp đón nhận được nhiều ánh sáng. Cầu thang thông tầng đặt ở giữa nhà, gần sát tường tạo sự phân cách. Gần khoảng thông tầng cầu thang là khu vực phòng bếp + ăn sạch sẽ, hiện đại, phòng ngủ yên tĩnh mát mẻ và 1 phòng vệ sinh chung tiện nghi. Phòng bếp có cửa hướng ra sân sau nên thoáng khí, không bị ám mùi thức ăn.

Tầng 2 được thiết kế gồm 2 phòng ngủ thoáng mát rộng rãi, 1 phòng thờ trang nghiêm, 1 phòng vệ sinh chung tiện nghi sạch sẽ, 1 sân phơi và 1 sân chơi rộng rãi có mái che, phục vụ cho việc vui chơi giải trí, hóng gió của gia đình chủ đầu tư.
Thiết kế nội thất nhà biệt thự 2 tầng mái bằng hiện đại
Nội thất phòng khách

Với diện tích rộng rãi, phòng khách biệt thự 2 tầng mái bằng 8x11m được thiết kế một cách phóng khoáng. Từng đường nét ở trong phòng khách đều mang vẻ đẹp hiện đại, riêng biệt. Thiết kế nội thất phòng khách với bộ ghế sofa da màu xám hình chữ L cùng bàn trà hình tròn tạo nên sự đồng nhất, hài hòa thú vị cho thị giác. Ở phía đối diện, tivi được treo trên tường, hộc tủ nhỏ bên cạnh tivi sẽ là không gian lý tưởng để lưu trữ đồ đạc giúp không gian có sự gọn gàng và ngăn nắp hơn.

Sẽ vô cùng thiếu sót nếu như không nhắc đến hệ thống ánh sáng ở trong không gian phòng khách hàng. Kiến trúc sư đã vô cùng thông minh khi có sự kết hợp giữa ánh sáng tự nhiên với ánh sáng nhân tạo. Chiếc đèn thả trần với thiết kế kiểu dáng ấn tượng đã giúp cho không gian phòng khách có thêm sự lung linh và ấn tượng hơn khi về đêm.

Để giúp cho không gian phòng khách có sự sinh động hơn thì các kiến trúc sư đã khéo léo trong việc bày trí các vật dụng trang trí nhỏ như lọ hoa được đặt trên bàn bàn trà, chiếc thảm trải sàn hình vuông… Tất cả đều mang một mục đích là mang lại sự thuận tiện, hài hòa cho việc sử dụng của gia đình chủ đầu tư.
Nội thất phòng bếp
Thiết kế khu bếp với đầy đủ các đồ đạc, vật dụng tiện nghi phục vụ cho nhu cầu nấu nướng hàng ngày của gia đình chủ đầu tư. Không gian căn bếp với tông màu chủ đạo là màu trắng mang lại sự sang trọng và cảm giác sạch sẽ.

Với những thiết kế vô cùng sắc sảo, tinh tế cùng với sự tính toán kỹ lượng các công năng sử dụng đã khiến cho không gian bếp và không gian phòng ăn có sự gọn gàng, sạch sẽ và sang trọng. Không gian phòng ăn được thiết kế liên thông với phòng khách và phòng bếp tạo sự thuận tiện cho các thành viên trong việc sinh hoạt.

Bàn ăn được thiết kế với kiểu dáng độc đáo và ấn tượng với gam màu nâu của gỗ đã làm nổi bật giữa tông màu trắng chủ đạo. Ghế ăn màu kem có lót nệm mang đến sự thoải mái cho các thành viên khi ngồi dùng bữa. Cùng với đó thì không thể thiếu được các vật dụng trang trí ở trên bàn như lọ hoa và đèn chiếu sáng có thiết kế độc đáo, lạ mắt.
Nội thất phòng ngủ

Phòng ngủ chính là khu vực đầu tiên mà khá nhiều gia chủ nghĩ tới, hòa hợp cùng không gian phòng khách, thì phòng ngủ 1 cũng có hai gam màu chủ đạo trong đó là màu trắng và màu nâu. Thiết kế nội thất phòng ngủ 1 này khá đơn giản nhưng lại vô cùng hài hòa tạo nên cho người ở một cảm giác vô cùng yên tĩnh và ấm áp.

Điểm ấn tượng nhất của phòng ngủ 1 mà chúng ta có thể dễ dàng cảm nhận được ngay khi nhìn vào đó là cách sắp xếp nội thất một cách bài bản và khoa học. Mặt dù diện tích của căn phòng không quá lớn nhưng vẫn được trang bị đầy đủ nội thất, đảm bảo sự tiện nghi cao mà không hề gây ra cảm giác chật chội.

Không gian phòng ngủ 1 tuy được thiết kế đơn giản nhưng mang đến cho gia đình chủ đầu tư sự thoải mái, êm ai. Tất cả hệ tủ, bàn làm việc, kệ ti vi, tủ quần áo trong không gian phòng ngủ cũng điều được sử dụng chất liệu gỗ công nghiệp để mang đến sự đồng bộ, hài hòa.

Căn phòng ngủ 2 được trang bị đầy đủ các vật dụng nội thất như giường ngủ, tủ quần áo, bàn học…đảm bảo mang đến một không gian sống tiện nghi nhất. Căn phòng với tông màu trắng chủ đạo được kết hợp thêm với tông màu nâu trầm của gỗ vừa mang đến cảm giác ấm áp lại vừa có thể tạo ra một không gian vô cùng sang trọng, đẳng cấp, tiện nghi cho gia đình chủ đầu tư có thể hưởng thụ…

Phòng ngủ 2 nổi bật với bộ chăn ga màu xám, sàn nhà màu nâu gỗ vừa mang đến sự thanh lịch, sang trọng lại mang đến sự hiện đại. Ngoài ra, cùng với phần khung cửa kính lớn còn giúp tận dụng nguồn sáng từ tự nhiên, mang đến cảm giác khoan khoái khi mỗi sớm mai thức dậy. Bên trong mỗi phòng ngủ còn được thiết kế thêm tủ quần áo âm tường với gỗ MDF Laminate độ bền cao tạo nên sự gọn gàng và ngăn nắp cho toàn bộ căn phòng. Đây chính là một trong những mẫu thiết kế nội thất phòng ngủ chung cư đẹp, đậm chất xa hoa

Phòng ngủ 3 được thiết kế nội thất với những gam màu tươi sáng hơn. Bức tường được trang trí bằng những bức hình 3d sống động, mang lại cảm giác mới lạ, độc đáo. Rèm cửa được lựa chọn kiểu mành che độc đáo, ga trải giường cũng được lựa chọn với màu sắc trầm ấm, sạch sẽ tạo cảm giác vui tươi, trẻ trung.

Đồ nội thất được bố trí trong không gian phòng ngủ 3 này cũng tương đối tiện nghi đầy đủ, gồm có: Tủ quần áo, giường ngủ, bàn học, tủ kệ, táp đầu giường, đèn ngủ đèn chiếu sáng…và các chi tiết trang trí khác.

Trên đây là mẫu thiết kế biệt thự 2 tầng mái bằng 8x11m đẹp của gia đình anh Nguyên ở Sơn La hiện đang được rất nhiều chủ đầu tư yêu thích bởi vẻ đẹp hiện đại, thời thượng và gần gũi với thiên nhiên. Nếu như quý vị và các bạn cũng yêu thích mẫu biệt thự 2 tầng đẹp này thì hãy liên hệ với chúng tôi để được các kiến trúc sư tư vấn miễn phí nhé.
- Mẫu biệt thự 2 tầng mái Nhật 8x11m tại Phúc Thọ Hà Nội NDBT2T140
- Biệt thự 2 tầng hình chữ L mái bằng 13x12m tại Thái Bình NDBT2T139
- Mẫu biệt thự 2 tầng mái Nhật 8x14m tại Thanh Hóa NDBT2T138
- Nhà 2 tầng mái Nhật 4 phòng ngủ 10x16m tại Bắc Kạn NDBT2T142