Biệt thự 2 tầng mái Nhật hiện đại 14x11m tại Thanh Hóa NDBT2T131
Ban đầu anh Kỳ liên hệ với chúng tôi để thiết kế mẫu nhà cấp 4 13x11m mái thái có gác lửng nhưng sau khi hoàn thiện phần móng gia chủ quyết định làm lại thiết kế và trở thành mẫu biệt thự. mái thái hiện đại nhật bản 14x11m. Từ đó lên phương án dựa trên phần móng cũ và phát triển thành mẫu nhà 2 tầng, với phần móng đã làm sẵn thì việc thiết kế thêm sẽ khó hơn so với việc bạn làm mặt bằng từ đầu. Vì vậy nếu đã quyết định thiết kế thì chúng ta nên quyết định ngay từ đầu, tránh trường hợp thiết kế và thi công rồi thay đổi. Nếu làm như vậy, chủ nhà sẽ phải chịu thêm chi phí xây dựng, thêm chi phí thiết kế và nhân công cũng tốn thêm thời gian chờ đợi.
Mẫu nhà biệt thự 2 tầng hiện đại Nhật Bản 14x11m với công năng sử dụng tiện lợi và phong cách thiết kế đa dạng, sở hữu một số ưu điểm trọn vẹn mà bất kỳ chủ đầu tư nào cũng cần có cũng như thời gian thi công. nhanh chóng, chi phí đầu tư vừa phải, không quá lớn, rất phù hợp với kinh tế của nhiều gia đình tư nhân. Chính vì những yếu tố đó đã làm tiền đề cho kiến trúc nhà biệt thự 2 tầng trở nên phổ biến và được lựa chọn xây dựng rất nhiều.
Bắt nhịp với xu hướng thịnh hành đó, công ty nhà đẹp xin gửi tới quý vị mẫu biệt thự 2 tầng hiện đại 14x11m kiểu Nhật độc đáo được lên ý tưởng cho chủ đầu tư có địa chỉ tại Thanh Hóa. Dưới đây là thông tin chi tiết về mẫu xe đó, mời quý vị và các bạn cùng theo dõi.
Thông tin về biệt thự 2 tầng mái thái hiện đại 14x11m kiểu Nhật
- Địa điểm xây dựng: Thanh Hóa
- Chủ đầu tư: Anh Kỳ
- Diện tích nhà: 14x11m
- Diện tích tầng 1 bao gồm sảnh: 130m2
- Diện tích tầng 2: 78,7m2
- Diện tích áp mái tầng 2: 31,48m2
- Tổng diện tích mái bê tông: 130 + 78,7 + 31,48 = 240,18m2
- Tổng giá trị xây dựng trên m2 mái bê tông: 240,18 × 5.500.000 = 1.320.990.000 đồng
- Diện tích mái ngói: 78,7 × 1,6 = 125,92m2
- Tổng giá trị xây dựng mái ngói: 125,92 × 750,000 = 94,440,000 VNĐ
- Tổng giá trị hoàn thiện: 1.320.990.000 + 94.440.000 = 1.415.430.000 đồng
Phối cảnh 3D biệt thự 2 tầng mái Nhật 14x11m hiện đại tại Thanh Hóa đẹp

Ấn tượng đầu tiên khi mỗi chúng ta ngắm nhìn mẫu biệt thự 2 tầng hiện đại 14x11m kiểu Nhật độc đáo phải kể đến vẻ trang nhã, tinh tế của không gian ngoại thất khi khoác lên mình gam màu trắng tinh khôi. Giám kết hợp màu sắc trang trí vô cùng trẻ trung, trang nhã. Tất cả những gam màu này hòa quyện vào nhau mang đến sự thu hút và lôi cuốn cho người nhìn một vẻ lộng lẫy quyến rũ không thể rời mắt.

Vẻ đẹp lộng lẫy của những mẫu biệt thự hiện đại tưởng chừng như gắn liền với cái mác yếu ớt nhưng không phải, kiến trúc sư đã tinh tế tạo cho nó một diện mạo hoàn toàn khác với dáng vẻ vô cùng mạnh mẽ và vững chãi. với hệ thống cột trụ vuông vắn, vững chãi có khả năng tối ưu nâng đỡ mái hiên một cách nhẹ nhàng, uy nghiêm tạo nên sự thanh thoát, uyển chuyển cho ngôi nhà.
Cùng với đó, để kích thích cái nhìn thú vị hơn, toàn bộ bậc tam cấp được ốp một cách tinh tế bằng đá hoa cương đen đẹp mắt. Không chỉ vậy, việc ốp lát còn để giữ gìn, hạn chế tối đa các tác hại từ môi trường tự nhiên như rêu, mốc, nấm, bụi bẩn… Mái thái hiện đại 14x11m kiểu Nhật tiện lợi hơn và không bị trơn trượt hay xê dịch.

Với cách lựa chọn sử dụng vật liệu xây dựng trong ngôi nhà biệt thự 2 tầng mái thái hiện đại 14x11m kiểu Nhật cũng góp phần không nhỏ trong việc giúp phô diễn được toàn bộ vẻ đẹp của không gian ngoại thất. Hệ thống cửa kính khung nhôm xingfa cao cấp với tone màu đen vô cùng sang trọng, sở hữu ưu điểm vượt trội về khả năng cách âm, chống ồn hiệu quả mà vẫn thu hút ánh sáng tự nhiên vào không gian nội thất. Ở mức tối đa, giúp gia đình chủ đầu tư tiết kiệm điện trong ngày.
Không chỉ vậy, xung quanh mép mái, tường được tích hợp hệ thống đèn led downlight âm trần hiện đại có nhiệm vụ rất lớn là cung cấp ánh sáng cho ngôi nhà vào thời điểm màn đêm buông xuống. đảm bảo mẫu thiết kế biệt thự hiện đại 2 tầng mái Nhật 14x11m luôn lung linh, huyền ảo và lộng lẫy hơn.

Tiếp đến là hệ thống mái Nhật sử dụng ngói chất lượng tốt, bền, có khả năng chống nóng, chống ẩm, chống đọng nước. Hệ thống mái thái Nhật Bản màu xanh than kết hợp với cảnh quan sân vườn trong lành đã mang đến vẻ đẹp chỉnh chu và hoàn hảo cho không gian ngoại thất của mẫu biệt thự 2 tầng hiện đại 14x11m kiểu Nhật.
Hệ thống sân vườn cảnh quan thoáng mát được quy hoạch khoa học, bố trí ngăn nắp trồng cây xanh trang trí, cây bóng mát. Sân được lát gạch chống trơn tối màu sạch sẽ. Tường rào xung quanh cao ráo, thoáng mát đảm bảo an ninh và an toàn cho gia đình chủ đầu tư. Tất cả các yếu tố kết hợp nhuần nhuyễn và hài hòa với nhau tạo nên một khuôn viên vô cùng đẹp, ấn tượng và thu hút đến từng chi tiết nhỏ.
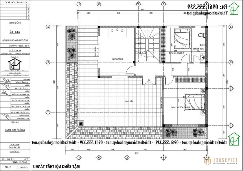
Mặt bằng công năng mẫu biệt thự 2 tầng mái thái đẹp hiện đại kiểu Nhật

Tầng 1 của mẫu biệt thự 2 tầng mái thái hiện đại 14x11m kiểu Nhật được thiết kế bao gồm phòng khách liên thông phòng bếp + ăn tạo nên một không gian vô cùng rộng rãi, thoáng mát và sang trọng. Bên cạnh phòng bếp là khu vực cầu thang rộng, cao thoáng. Tiếp đến là 1 phòng ngủ master và 1 phòng ngủ thường có phòng vệ sinh chung ngay bên cạnh được trang bị đầy đủ tiện nghi.

Từ cầu thang đi lên khu vực tầng 2 là phòng thờ trang nghiêm và 2 phòng ngủ thường có phòng vệ sinh chung tiện nghi ngay bên cạnh nên dễ dàng cho việc di chuyển của các thành viên mà không gặp khó khăn gì. ảnh hưởng đến người khác. Cuối cùng chính là không gian ban công rộng rãi, thoáng mát - nơi gia đình chủ đầu tư có thể giải trí, thư giãn, xua tan đi những mệt mỏi, căng thẳng của những ngày làm việc mệt mỏi.
Mẫu thiết kế biệt thự 2 tầng mái Nhật hiện đại 14x11m tại Thanh Hóa được rất nhiều khách hàng đánh giá cao và vô cùng hài lòng. Hãy liên hệ với công ty nhà đẹp chúng tôi qua hotline, zalo để nhận được những gói thiết kế chu đáo và ưu đãi nhất.
- Mẫu thiết kế nhà 2 tầng 6 phòng ngủ 600m2 20x18m NDBT2T130
- Biệt thự 2 tầng cổ điển hình chữ L 10x13m tại Hải Phòng NDBT2T129
- Biệt thự 2 tầng mái thái 4 phòng ngủ 14x10m tại Phú Thọ NDBT2T128
- Biệt thự 2 tầng 400m2 mái Nhật ở Chương Mỹ NDBT2T132