Biệt thự 2 tầng mái thái 4 phòng ngủ 14x10m tại Phú Thọ NDBT2T128
Xây biệt thự 2 tầng 4 phòng ngủ 14x10m ở nông thôn là tài sản của cả đời người. Vì vậy, sẽ có những khách hàng cảm thấy rất nể và rất cẩn thận khi lựa chọn đơn vị tư vấn thiết kế. Làm thế nào để khi xây nhà, ngôi nhà sẽ có giá trị cao nhất, trường tồn với thời gian. Để đáp ứng nhu cầu của khách hàng, chúng tôi luôn mong muốn mang đến cho khách hàng những sản phẩm tốt nhất, đẹp nhất trên thị trường. Ngôi nhà 2 tầng mái thái ở Phú Thọ này được công ty Thiết Kế Nhà Đẹp thiết kế cho anh Hùng ở Phú Thọ với diện tích 14x10m. Tổng số phòng ngủ của mẫu nhà 2 tầng mái thái 4 phòng ngủ kiểu Nhật này, công ty Nhà Đẹp xin mời các bạn cùng tham khảo những hình ảnh và nội dung của mẫu thiết kế biệt thự 2 tầng này.
Bạn không nên bỏ qua mẫu biệt thự mái thái 4 phòng ngủ 14x10m 2 tầng kiểu Nhật này, biết đâu đây sẽ là hình ảnh mẫu lý tưởng cho ngôi nhà tương lai, độc đáo của gia đình bạn? Và có thể bạn sẽ mê mẩn và có ấn tượng sâu sắc ngay sau khi tìm hiểu về mẫu thiết kế biệt thự 2 tầng kiểu Nhật đặc biệt này từ những thông tin hữu ích và chi tiết của công ty nhà đẹp chúng tôi mang đến. đến. Mời quý vị và các bạn cùng khám phá bài viết dưới đây.
Thông tin về biệt thự mái thái 4 phòng ngủ 2 tầng 14x10m kiểu Nhật
Nhà đẹp xin giới thiệu đến các bạn đơn giá xây dựng dự kiến của mẫu biệt thự 2 tầng này, đơn giá xây dựng dự kiến tính theo m2 là 5,5 triệu.
- Địa điểm xây dựng: Phú Thọ
- Chủ đầu tư: Anh Hùng
- Diện tích nhà: 14x10m
- Diện tích sàn 1: 122m2
- Diện tích sàn sảnh 1: 30m2
- Diện tích sàn 2: 107m2
- Diện tích sảnh tầng 2: 9m2
- Diện tích áp mái tầng 1: 122 × 0,4 = 48,8m2
- Diện tích vành mái 2: 107 × 0,4 = 42,8
- Tổng diện tích mái bê tông: 122 + 30 + 107 + 9 + 48,8 + 42,8 = 359,6 m2
- Tổng giá trị hoàn thiện trên m2 mái bê tông: 359,6 × 5.500.000 = 1.977.800.000 VND
Phối cảnh 3D mẫu biệt thự mái thái đẹp 4 phòng ngủ 2 tầng kiểu Nhật

Nhìn vào mẫu thiết kế biệt thự 1 tầng 4 phòng ngủ 2 tầng 4 phòng ngủ, bạn có thể thấy được sự khoáng đạt từ sự khéo léo tài hoa của đội ngũ kiến trúc sư, các mảng khối, cột trụ được kết nối hài hòa với kiến trúc. nhau một cách rất tinh tế và hoàn hảo. Điều khéo léo ở đây là việc sử dụng gam màu trắng trung tính chủ đạo kết hợp với màu đen của kính, màu xanh than của hệ mái vừa mang đến vẻ hiện đại mạnh mẽ lại pha chút cá tính mạnh mẽ. Quyền lực của chủ đầu tư với sự huyền bí, huyền ảo, khơi dậy trí tò mò, muốn khám phá cho người xem.

Cửa chính được thiết kế với hệ lam gỗ và kính để lấy gió, cách âm, chống ồn hiệu quả mà vẫn tạo được sự thông thoáng nhất định. Với hệ thống cửa sổ và cửa phụ sử dụng kính cường lực cao cấp khung nhôm xingfa có tác dụng rất tốt trong việc lấy sáng hiệu quả vào không gian bên trong mang đến một cái nhìn vô cùng thông thoáng và mới mẻ. thoáng mát và rộng rãi.
Hơn nữa, phần mép mái của mẫu thiết kế biệt thự 1 tầng 4 phòng ngủ 2 tầng còn được điểm xuyết bằng hệ thống đèn downlight âm trần có nhiệm vụ tạo nên vẻ huyền ảo, lung linh, rực rỡ cho tổng thể. dự án ở mức tối đa.

Với tên gọi của mẫu thiết kế biệt thự 1 tầng 4 phòng ngủ 2 tầng mái Nhật chắc hẳn các bạn cũng đã biết mẫu nhà này được thiết kế với hệ thống mái thái. Mái thái kiểu Nhật thanh mảnh, nhẹ nhàng, không quá cồng kềnh nhưng vẫn mang lại độ bền cao, chống chọi tốt với các tác nhân bên ngoài. Không chỉ vậy, mái thái Nhật Bản còn được xây dựng bằng ngói lãng không nung sở hữu nhiều ưu điểm tích cực trong việc tản nhiệt, tránh nóng hiệu quả, giúp không gian bên trong nhà trở nên mát mẻ, thông thoáng, thoáng đãng. luôn thích nghi với mọi loại thời tiết dù ở trạng thái nào.

Xung quanh mẫu biệt thự 1 tầng 4 phòng ngủ 2 tầng mái Nhật được bao bọc bởi hệ thống cây xanh, sân vườn trong lành giúp điều hòa không khí góp phần làm nổi bật vẻ đẹp trẻ trung, năng động. . Khoảng sân rộng được lát gạch đỏ không chỉ làm nơi để xe cộ qua lại mà còn là nơi để các thành viên trong gia đình nghỉ ngơi, thư giãn, đặc biệt còn giúp tạo không gian thông thoáng cho gia đình. trẻ em đang chơi.
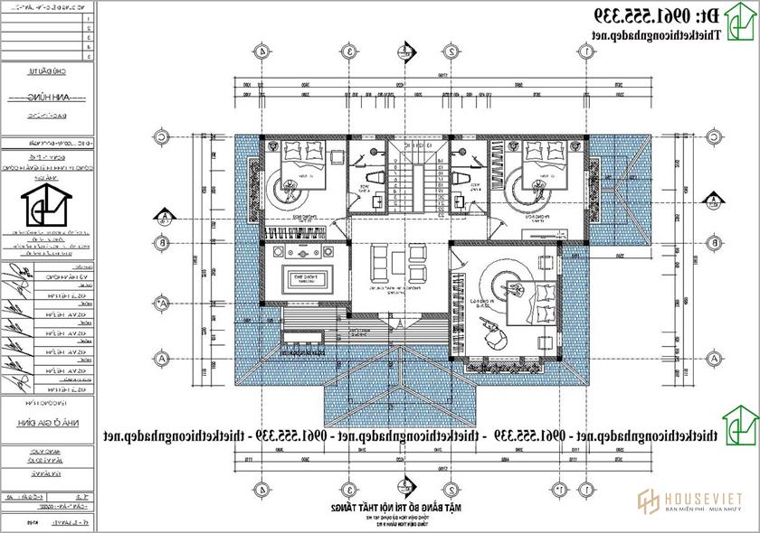
Mặt bằng công năng của biệt thự 2 tầng mái thái 4 phòng ngủ kiểu Nhật

Mặt bằng tầng 1 của mẫu thiết kế biệt thự 2 tầng 4 phòng ngủ 4 phòng ngủ được bố trí khá hài hòa. Từ sảnh chính bước vào là không gian phòng khách rộng rãi, thoáng mát - nơi tụ họp hàn huyên tâm sự và tiếp khách. Phòng bếp + ăn được thiết kế cửa thông từ sảnh phụ đi ra ngoài sân vừa có tác dụng lưu thông không khí lại tránh được mùi thức ăn ám vào không gian ngôi nhà. 1 phòng ngủ chính với đầy đủ nội thất giúp các thành viên sinh hoạt và nghỉ ngơi một cách tự nhiên và thoải mái nhất. Cuối cùng là phòng vệ sinh chung bên cạnh khu vực bếp đầy đủ tiện nghi.

Từ cầu thang lên tầng 2 là không gian mở cho phòng sinh hoạt chung, nơi sinh hoạt và trò chuyện của gia đình. 1 phòng thờ trang nghiêm - nơi thờ cúng tổ tiên. 2 phòng ngủ thường và 1 phòng ngủ chính được thiết kế với đầy đủ nội thất hiện đại, tiện nghi đảm bảo sự riêng tư và thoải mái nhất cho các thành viên khi nghỉ ngơi sau một ngày làm việc và học tập mệt mỏi. mệt mỏi. Phòng vệ sinh chung tiện nghi cạnh cầu thang rất thuận tiện cho việc đi lại và sinh hoạt riêng tư.
Mẫu thiết kế biệt thự 3 tầng 4 phòng ngủ 2 tầng mái Nhật đã mang đến sự hài lòng và vui vẻ cho gia đình chủ đầu tư. Nếu bạn quan tâm và có nhu cầu thiết kế hãy liên hệ với công ty nhà đẹp chúng tôi để nhận được sự tư vấn thiết kế nhiệt tình.
- Biệt thự 2 tầng hình thang vuông 7x15m tại Hải Dương NDBT2T127
- Mẫu biệt thự mái thái 2 tầng 3 phòng ngủ 7,5x13m tại Thái Bình NDBT2T126
- Biệt thự mái thái 2 tầng 4 phòng ngủ 9x15m ở Thái Bình NDBT2T125
- Biệt thự 2 tầng cổ điển hình chữ L 10x13m tại Hải Phòng NDBT2T129