Biệt Thự 2 Tầng Phong Cách Châu Âu Khẳng Định Đẳng Cấp Đại Gia
Biệt thự 2 tầng phong cách châu âu đang dần chiếm ưu thế trong những năm gần đây. Chúng được nhiều đại gia để ý và đầu tư xây dựng không tiếc tay. Vẻ đẹp sang trọng, đẳng cấp và khẳng định đẳng cấp được thể hiện ngay từ không gian ngoại thất. Chúng ta hãy xem xét kỹ hơn bên dưới.
Câu hỏi tư vấn biệt thự 2 tầng phong cách Châu Âu
"Xin chào quý công ty. Tôi đang có nhu cầu xây biệt thự lâu đài 2 tầng trên diện tích gần 1000m2. Do công việc khá bận nên tôi muốn lên phương án thiết kế và thi công trọn gói. Về yêu cầu thì mình rất thích phong cách Châu Âu, chắc kiến trúc sư cũng hiểu đặc điểm của nó nên mình không cần liệt kê chi tiết. Về công năng, nó đáp ứng cơ bản nhu cầu của một cuộc sống tiện nghi. Ngoài ra, do gia đình toàn làm ăn lớn nên vấn đề phong thủy được tôi rất quan tâm. Anh có thể liên hệ trực tiếp với em để được tư vấn, anh Hùng qua số điện thoại 0901333xxx. Cảm ơn bạn!”
Kiến trúc sư tư vấn thiết kế biệt thự 2 tầng phong cách Châu Âu
Chào anh Hùng, cảm ơn anh đã tin tưởng và quan tâm gửi câu hỏi tư vấn. Với yêu cầu và mong muốn của gia đình, kiến trúc sư đã bàn bạc và đưa ra phương án.
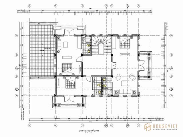
Căn cứ vào thông số kỹ thuật của ngôi biệt thự 2 tầng bao gồm:
- Diện tích đất: ~ 1000m2
- Diện tích xây dựng: 400m2
- Kết cấu: 2 lầu
- Số phòng: 1 phòng thờ, 1 phòng khách, 1 bếp và phòng ăn, phòng sinh hoạt chung và 4 phòng ngủ
Cụ thể, nó sẽ được sắp xếp như sau:
Mặt bằng công năng của biệt thự lâu đài 2 tầng

Trước hết, anh Hùng thích phong cách biệt thự lâu đài Châu Âu, chúng tôi sẽ thiết kế với những đặc điểm nổi bật. Cụ thể, đó là việc sử dụng hệ thống hoa văn ấn tượng và tinh xảo. Hệ thống mái vòm đặc trưng của phong cách Châu Âu. Màu sắc lung linh, nổi bật và chỉ cần nhìn vào là bạn có thể nhận ra được đẳng cấp của căn biệt thự.
+ Tầng 1 có bếp và phòng khách sang trọng. Thiết kế biệt thự một phòng ngủ phụ cho bố mẹ hoặc khách sử dụng. Phòng ngủ được trang bị nội thất tiện nghi và trang trí phù hợp với nhu cầu của người sử dụng. Mang đến không gian riêng tư thoải mái cho bất kỳ ai sử dụng.
+ Đi lên cầu thang của biệt thự sẽ là tầng 2. Tầng 2 được bố trí 3 phòng ngủ có vệ sinh riêng cho các thế hệ trong gia đình sử dụng, có thể là con cái hoặc bố mẹ. Mỗi phòng đều có cửa sổ và được trang trí, thiết kế nội thất sang trọng, đầy đủ các thiết bị cần thiết cho người sử dụng. Mang đến không gian riêng tư cho các thành viên trong gia đình.
+ Phòng thờ cũng được bố trí trên tầng 2. Yếu tố phong thủy được tính toán kỹ lưỡng, mang đến tài lộc, may mắn và bình an cho gia chủ.
Phối cảnh chi tiết nội ngoại thất ngôi biệt thự 2 tầng phong cách Châu Âu
Phối cảnh ngoại thất biệt thự 2 tầng phong cách Châu Âu
Phong cách Thiết kế biệt thự 2 tầng Châu Âu mang vẻ đẹp khó cưỡng, ngay từ cái nhìn đầu tiên. Phong cách tân cổ điển với sự cách tân khéo léo của phong cách tân cổ điển và hiện đại. Mang lại nét thẩm mỹ, rõ ràng trong từng chi tiết của ngôi nhà.

Bề ngoài đơn giản nhưng lại toát lên vẻ đẹp hài hòa của sự quý phái và quyền lực. Các đường nét trên ngôi nhà tạo được ấn tượng, chiếm ưu thế trong mắt người nhìn. Nhưng không vì thế mà ngôi nhà trở nên cứng nhắc bởi những họa tiết trên các cột gắn vào ngôi nhà. Tạo nên sự mềm mại, uyển chuyển cho ngôi biệt thự phong cách tân cổ điển.
Kết hợp không gian biệt thự với sân vườn. Được thiết kế theo hướng gần gũi với thiên nhiên, trồng cây xanh và lát lối đi tạo không gian giải trí cho gia đình. Bao quanh ngôi biệt thự 2 tầng phong cách Châu Âu sẽ là hàng rào đẹp, kiên cố và an toàn. Vừa mang đến cho gia chủ cảm giác an tâm vừa mang lại tính thẩm mỹ. Giúp căn biệt thự trở nên nổi bật trong bất kỳ không gian nào.
Ý tưởng thiết kế nội thất biệt thự 2 tầng phong cách Châu Âu
Không gian nội thất đẳng cấp tương xứng với không gian ngoại thất. Vẫn tuân thủ những nét đặc trưng của phong cách Châu Âu.
Thiết kế nội thất phòng khách
Phòng khách rộng rãi, thoải mái và đầy đủ tiện nghi. Bất cứ ai bước vào đều ấn tượng và thích thú. Đây sẽ là nơi cả gia đình quây quần sau những bữa cơm gia đình ấm cúng. Cùng nhau xem tivi hay cùng nhau trò chuyện, chia sẻ những câu chuyện thường ngày. Góp phần tạo nên sự gắn bó giữa các thành viên trong gia đình.


Thiết kế nội thất phòng bếp biệt thự 2 tầng phong cách châu âu
Phòng bếp được bố trí sát tường với các thiết bị cần thiết trong bếp. Phòng bếp có cửa sổ. Nhằm mang đến sự thông thoáng khi nấu nướng sẽ thoát ra mùi thức ăn tạo không khí dễ chịu cho cả ngôi nhà. Tạo không gian ấm cúng mà bất cứ ai sau một ngày đều muốn trở về nhà quây quần bên mâm cơm.


Phòng ngủ được trang bị nội thất tiện nghi và trang trí phù hợp với nhu cầu của người sử dụng. Mang đến không gian riêng tư thoải mái cho bất kỳ ai sử dụng.







Các mẫu biệt thự 2 tầng phong cách Châu Âu đẹp bạn nên tham khảo







Với những ý tưởng và phương án thiết kế Biệt thự 2 tầng phong cách châu âu đây. Anh Hùng rất hài lòng và chúng tôi tin rằng đã có rất nhiều gia chủ hài lòng. Là kiểu biệt thự mang vẻ đẹp hài hòa với không gian sống lý tưởng cho cuộc sống. Hãy nhanh tay liên hệ với chúng tôi để được tư vấn và Báo giá thiết kế biệt thự về mong muốn và nhu cầu của chủ sở hữu. Chúng tôi là đơn vị thiết kế biệt thự chuyên nghiệp với nhiều năm kinh nghiệm và uy tín của mình. Cam kết luôn đặt mọi lợi ích của khách hàng lên hàng đầu.