Biệt Thự 3 Tầng 2 Mặt Tiền Siêu Đẹp Bạn Không Thể Bỏ Qua
Nếu bạn đang sở hữu một mảnh đất đắt giá với 2 mặt tiền thì đừng bỏ qua bài viết này. Hôm nay Nội Thất Đương Đại sẽ giới thiệu đến độc giả một mẫu Biệt thự 3 tầng 2 mặt tiền. siêu đẹp đang được rất nhiều gia đình yêu thích hiện nay. Bạn chắc chắn sẽ bị hớp hồn ngay từ cái nhìn đầu tiên.
Yêu cầu của gia chủ đối với ngôi biệt thự 3 tầng 2 mặt tiền
Anh lam: “Tôi hiện có lô đất hai mặt tiền. Mong muốn của tôi là xây dựng một không gian kiến trúc hiện đại, độc đáo và mới lạ. Gia đình tôi gồm 3 thế hệ cùng chung sống gồm mẹ tôi, vợ chồng tôi và 2 con trai. Nhờ các kiến trúc sư đưa ra phương án thiết kế kiến trúc biệt thự tối ưu nhất. Cả về tính thẩm mỹ cũng như cách bố trí công năng linh hoạt. Số điện thoại của tôi là 08452xxxxx".
Kiến trúc sư tư vấn bản vẽ mặt bằng biệt thự 3 tầng 2 mặt tiền
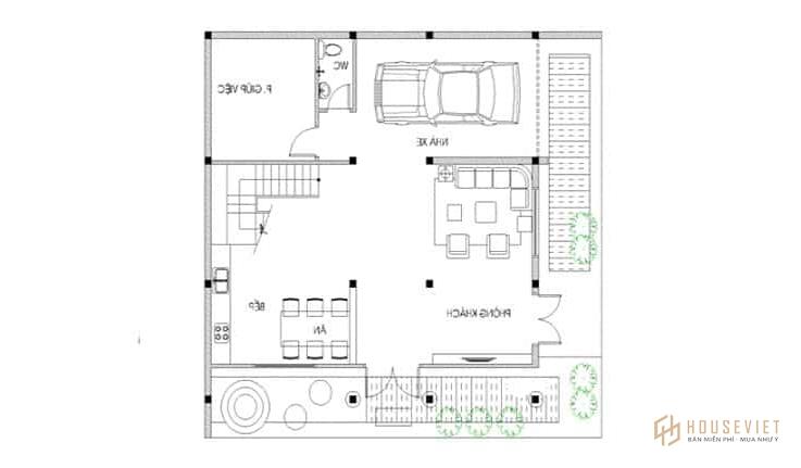
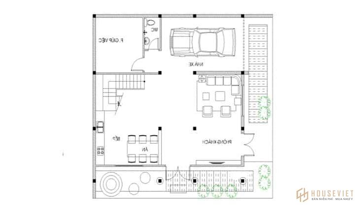
Sau khi trao đổi với chủ đầu tư, các kiến trúc sư đã bắt tay ngay vào việc đưa ra phương án thiết kế biệt thự hợp lý nhất. Đáp ứng đầy đủ công năng sinh hoạt, vui chơi, nghỉ ngơi của gia chủ cũng như đảm bảo tính thẩm mỹ. Dưới đây là bản vẽ mặt bằng công năng chi tiết 3 tầng của ngôi biệt thự:
Tầng 1 của biệt thự gồm 1 phòng khách, 1 phòng bếp kết hợp phòng ăn và 1 phòng ngủ. Phòng ngủ này dành cho người giúp việc. 1 vệ sinh chung cho tầng 1. Bên ngoài là gara ô tô có cửa phụ dẫn vào phòng khách.

Tầng 2 của ngôi biệt thự 3 tầng 2 mặt tiền là không gian riêng tư của các thành viên trong gia đình. Gồm 3 phòng ngủ. 1 phòng ngủ chính dành cho vợ chồng anh Lâm. Căn phòng này nằm bên trái có phòng thay đồ, phòng làm việc và vệ sinh khép kín. 1 phòng ngủ cho mẹ anh và 1 phòng ngủ cho cậu con trai út.

Tầng 3 là phòng ngủ của con trai cả và 2 phòng ngủ dành cho khách đến chơi nhà có chỗ ngủ nếu nghỉ qua đêm. 1 phòng thờ có cửa dẫn ra ban công rộng trước nhà. Vì vậy, phòng thờ linh thiêng luôn thông thoáng.

Phối cảnh mặt tiền và nội thất mẫu thiết kế biệt thự 3 tầng 2 mặt tiền
Phối cảnh mặt tiền
Căn biệt thự được thiết kế theo phong cách hiện đại với cách bài trí làm trọng tâm. Căn biệt thự toát lên vẻ đẹp vô cùng cuốn hút và có cá tính riêng.
Căn biệt thự có sự kết hợp hài hòa giữa các màu sắc. Màu trắng được sử dụng làm tông màu chủ đạo cho mẫu biệt thự. Cũng giống như những kiến trúc hiện đại khác, ngôi biệt thự này có sự linh hoạt trong việc sử dụng màu sắc. Kết hợp nhiều màu sắc tự nhiên khác mang đến cho không gian sự khác biệt và mới mẻ.
Căn biệt thự có kiến trúc mở với toàn bộ hệ thống cửa và ban công bằng kính. Giúp mọi vị trí trong nhà đều đón được ánh sáng tự nhiên với hướng view hoàn hảo. Thiết kế bên ngoài của Biệt thự 3 tầng 2 mặt tiền. có một kết nối. Xung quanh nhà là hệ thống hành lang kính cao cấp với mảng xanh làm tâm điểm. Giúp điều hòa không khí và mang lại phong thủy tốt cho ngôi nhà.

Thiết kế nội thất
Phòng khách sử dụng tông màu ấm, điểm xuyết thêm một chút màu vàng của gỗ ốp tường và màu xanh của những chiếc gối. Tạo ra một bức tranh nội thất hấp dẫn. Một chiếc ghế sofa màu trắng xám và một chiếc bàn cà phê bằng gỗ sồi được đặt ở trung tâm. Điểm nhấn của không gian là chiếc đèn trần với thiết kế độc đáo. Khiến phòng khách sang trọng và ấm áp hơn.

Phòng ngủ chính được bố trí nội thất đơn giản, tiện nghi với tông màu trung tính kết hợp với gỗ ốp. Mang đến không gian ấm áp, nhẹ nhàng cho hai vợ chồng. Thiết kế không gian mở với cửa kính lớn giúp không gian luôn thông thoáng, mát mẻ.

Phòng ngủ con trai út được thiết kế năng động, đáng yêu. Màu sắc chủ đạo của không gian là màu xanh lam cá tính và nổi bật. Mang đến không gian vui chơi, thú vị cho bé yêu của bạn. Trong phòng có đầy đủ nội thất từ giường ngủ, tủ quần áo, giày dép đến bàn học. Chắc chắn bé yêu của bạn sẽ có một không gian sống thú vị.

Phòng thờ trang nghiêm với nội thất gỗ đơn giản. Không gian trở nên linh thiêng và bình yên hơn với những bức tranh thư pháp.

Mẫu biệt thự 3 tầng 2 mặt tiền ấn tượng
Bạn có thể tham khảo một số mẫu Thiết kế biệt thự 3 tầng dưới đây để có thêm những ý tưởng độc đáo cho ngôi nhà của bạn.








Trên đây là Mẫu biệt thự 3 tầng 2 mặt tiền mà chúng tôi muốn giới thiệu đến bạn đọc. Hãy liên hệ với chúng tôi để được tư vấn và Báo giá thiết kế biệt thự tốt nhất. Chúng tôi luôn sẵn sàng phục vụ bạn!