Biệt thự 3 tầng 9x15m mái thái ở Hải Dương NDBT3T39
Mẫu biệt thự 3 tầng 9x15m tại Hải Dương do các kiến trúc sư thiết kế Nhà đẹp cách bố trí mái Thái hiện đại, hài hòa tổng thể không gian nhà ở. Cùng chúng tôi xem qua mặt bằng và mặt bằng chi tiết của mẫu nhà này nhé!
Thông tin cơ bản của biệt thự 9x15m 3 tầng tại Hải Dương

- Chủ đầu tư: Anh Long
- Địa chỉ: Hải Dương
- Kích thước chi tiết công trình: 9x15m
- Diện tích sảnh chính: 7m2
Mẫu biệt thự 3 tầng ở hải dương là kiến trúc sư Nhà đẹp để khảo sát trực tiếp lô đất. Vì khu vực Hải Dương có diện tích trung bình trong số các tỉnh thành ở Việt Nam. Nhưng vùng đất ở Hải Dương được chia thành hai vùng: vùng đồi và vùng đồng bằng. Vì vậy, các kiến trúc sư muốn bố trí các công năng cần đặc biệt phù hợp với yêu cầu của chủ đầu tư. Gia đình anh Long đã có nhà ở Hà Nội, nhưng anh muốn thiết kế một ngôi nhà cho gia đình bố mẹ anh ở cũng như chỗ ở thuận tiện cho gia đình anh về quê.
Phối cảnh mẫu biệt thự 3 tầng 9x15m độc đáo và ấn tượng

Không gian biệt thự mái thái tại Hải Dương thiết kế giống với tên gọi. Mẫu nhà mái thái du nhập từ Thái Lan vào nước ta với khung mái hình tam giác. Thiết kế phía trên mái lấy sáng, tạo cảm hứng phong thủy cho mẫu nhà. Kết cấu mái thái bao gồm các chi tiết mái thái, cửa chính, cửa sổ và các chi tiết mái thái đặc biệt tạo cảm giác thông thoáng cho không gian. Nhìn vào phối cảnh nhà anh Long bạn sẽ thấy được sự đồng nhất của hệ thống mái thái từ mái thái đến mái cổng. Khuôn được thiết kế đặc biệt bám vào các chi tiết của mái nhà.

Mặt tiền biệt thự 3 tầng hiện đại 9x15m
Mặt tiền được bố trí đá ốp, gạch cổng được thiết kế bằng gạch bông gió vừa tạo cảm giác thông thoáng vừa tạo cảm giác cách điệu cho không gian nhà ở. Màu sắc thiết kế của ngôi nhà là tông màu vàng kết hợp màu của hệ thống mái thái màu xám nhạt. Hệ thống cửa của khu được thiết kế đặc biệt bằng cách chia thiết kế nhà ở thành hai khung nhất định. Mẫu thiết kế đặc trưng của hệ mái thái được bố trí với không gian mặt tiền là hệ thống cửa nhôm kính màu đen. Lan can sử dụng cửa kính tạo cảm giác hiện đại. Ngôi nhà sử dụng hệ thống phào chỉ nhỏ kết hợp với không gian tạo cảm giác ấn tượng cho bất kỳ vị khách nào lần đầu tiên nhìn thấy ngôi nhà.

Điểm đặc biệt của phối cảnh mặt tiền ngôi nhà là đường nét màu sắc của toàn bộ ngôi nhà ở Hải Dương đặc biệt hơn. Thông tin chi tiết của các kiến trúc sư Nhà đẹp phân tích chi tiết từng chức năng. Hệ thống mái thái màu xám tạo cảm giác không gian có khả năng tản nhiệt, chống nóng tốt. Hầu hết các hệ thống mái đều có độ dốc vừa phải. Do đó không gian mùa mưa sẽ không bị đọng nước trong mái. Mái thái là mẫu nhà đẹp Đặc trưng của không gian nhà ở chi tiết với khu vực Đồng bằng sông Hồng, đặc biệt là khu vực nhà ở Bắc Bộ.
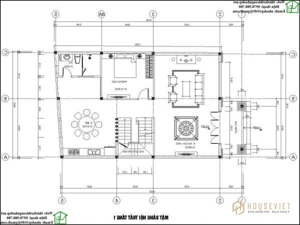
Bản vẽ mặt bằng biệt thự 3 tầng 9x15m mái thái ấn tượng
Mẫu thiết kế nhà đẹp của gia đình anh Long được chi tiết công năng phù hợp với gia đình từ 6 - 9 người. Công năng chính của không gian nhà ở này chúng tôi bố trí cho gia đình 3 thế hệ sinh sống với không gian của ông bà, không gian của bố mẹ và không gian của con cái.

Mặt bằng tầng 1 được bố trí sảnh rộng 7m2 ngay từ khi bước vào cửa. Phía trước tiền sảnh là khoảng sân rộng có thể để được ô tô, bước vào khu vực đầu tiên trong nhà là phòng khách + phòng thờ rất thông thoáng cho ngôi biệt thự 3 tầng 9x15m mái thái đặc biệt. Không gian phòng khách và thờ rộng 42m2, gia đình anh Long muốn bố trí xây dựng phù hợp để con cháu luôn tưởng nhớ đến người già, người đã khuất. Tiếp đến là phòng ngủ 1 17m2. Đối diện phòng ngủ là khu vực hành lang và cầu thang được bố trí thông thoáng để lấy sáng, thông gió và đón nắng cho toàn bộ ngôi nhà. Tầng tiếp theo là khu bếp ăn rộng 21m2, WC nhỏ tận dụng 5m2 cuối nhà. Cuối nhà vẫn còn một khoảng đất trống.

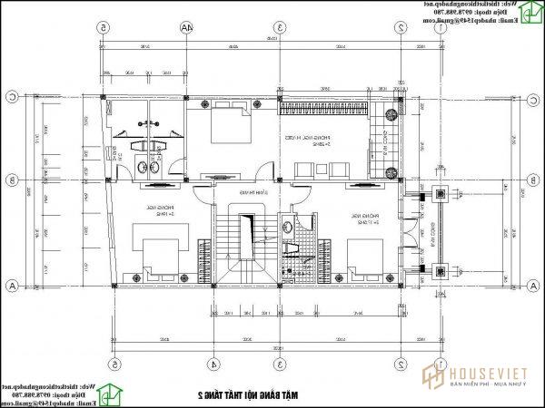
Mặt bằng tầng 2 bao gồm các công năng chuyên biệt với 2 khối ban công thoáng mát có thể nhìn thấy ngay trước nhà. Mẫu biệt thự 3 tầng 9x15m mái thái nổi bật với diện tích phòng ngủ 18m2 có vệ sinh trong phòng. Phòng ngủ master rộng 28m2 được bố trí một bộ bàn ghế nhỏ trong phòng, tủ sách và khu vệ sinh khép kín khéo léo trong phòng. Thiết kế 3 phòng ngủ Nhà đẹp không gian được bố trí thoáng hơn nhưng khá phù hợp 19m2. Phòng vệ sinh được bố trí bên ngoài nên phòng này có khách đến chơi nhà có nhu cầu ở.

Xem thêm: Biệt thự 3 tầng 10x12m tân cổ điển tại Thái Bình NDBT3T40
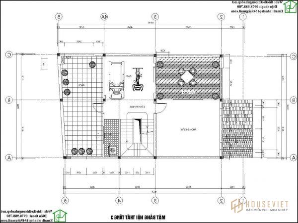
Mặt bằng tầng 3 của ngôi biệt thự 3 tầng tại Hải Dương được bố trí công năng sử dụng phù hợp nhất cho việc nghỉ ngơi. Với thiết kế phòng dự trữ, sân chơi và khu tập gym, sân phơi rất thoáng mát. Nhiều bạn thắc mắc tại sao nhà 3 tầng nhưng phòng thờ lại đặt ở tầng 1. Vì để tiện cho nhu cầu của gia đình bạn có ông bà lớn tuổi nên bạn muốn tiện cho việc thắp hương. , thờ cúng ông bà. Vì vậy phòng thờ được bố trí ở tầng 1 cùng một phòng ngủ nhỏ dành cho ông bà.
Cảm ơn quý vị đã theo dõi mẫu biệt thự 3 tầng 9x15m mái thái của chúng tôi Nhà đẹp, hy vọng bạn có thể sở hữu một ngôi nhà công năng phù hợp phong thủy. Hãy theo dõi những mẫu nhà mới đẹp nhất của chúng tôi để tìm được không gian tối ưu cho gia đình.