Biệt thự 3 tầng cổ điển 9x15m mái thái đẹp tại Hà Nội NDBT3T35
Trong những năm gần đây, mẫu biệt thự 3 tầng cổ điển đẹp 9x15m được hầu hết các gia đình từ thành thị đến nông thôn yêu thích và lựa chọn. Đó là bởi những ưu điểm và đặc điểm nổi bật mà mẫu biệt thự đẹp này sở hữu. Từ đó, mang đến một không gian sống lý tưởng, hoàn hảo, tiện nghi và gần gũi với thiên nhiên.
Xin mời quý vị và các bạn cùng chiêm ngưỡng bản vẽ đẹp của mẫu thiết kế biệt thự 3 tầng cổ điển đẹp của gia đình anh Biều do các kiến trúc sư tài năng và giàu kinh nghiệm của Nhà Đẹp tạo nên. Khi ngắm nhìn mẫu biệt thự cổ điển đẹp này bạn sẽ thấy được nét đẹp kiến trúc truyền thống nhưng không kém phần sang trọng.
Thông tin về mẫu biệt thự 3 tầng cổ điển 9x15m tại Hà Nội
- Chủ đầu tư dự án: Anh Biểu
- Địa điểm xây dựng: Cầu Giấy - Hà Nội
- Diện tích nhà: 9x15m
- Diện tích xây dựng tầng 1: 135m2
- Diện tích xây dựng tầng 2: 135m2
- Diện tích tầng 3: 76,5m2
- Diện tích diềm tầng 1: 135 × 0,4 = 54m2
- Diện tích diềm mái tầng 2: 135 × 0,4 = 54m2
- Diện tích áp mái tầng 3: 76,5 × 0,4 = 30,6m2
- Tổng diện tích mái bê tông: 135 + 135 + 76,5 + 54 + 54 + 30,6 = 485,1m2
- Tổng giá trị xây dựng nhà: 485,1 × 6.000.000 = 2.910.600.000 đồng
- Diện tích mái ngói: (76,5 + 30,6) x1,6 = 171,36m2
- Tổng giá trị xây dựng phần mái: 171,36x 700,000 = 119,952,000 VNĐ
- Tổng giá trị hoàn thiện: 2.910.600.000 + 119.952.000 = 3.030.552.000 đồng
Phối cảnh 3D mẫu biệt thự 3 tầng cổ điển sang trọng
Mẫu thiết kế biệt thự 3 tầng cổ điển 9x15m mái thái sang trọng được tạo nên bởi những mảng tường đứng vuông vắn và những cột trụ tròn vuông trang trí hoa văn đơn giản. Tỷ lệ của ngôi biệt thự cân đối giữa chiều cao và chiều rộng nhờ cách bố trí hợp lý, hoa văn bắt mắt như các chi tiết gờ chỉ tạo nên ấn tượng đậm nét trong lòng người xem bằng vẻ đẹp sang trọng, uy nghi. tỷ lệ.

Để có thể làm nổi bật lên vẻ đẹp của không gian ngoại thất hệ thống hoa văn, đường gờ,… màu sắc góp phần rất lớn tạo nên sức hút và mê đắm. Màu sắc chủ đạo của mẫu biệt thự cổ điển 3 tầng 9x15m mái Thái là màu trắng sáng bao trùm lên tổng thể không gian ngoại thất, kết hợp với một chút màu vàng tươi điểm xuyết ở một số chi tiết. Lối trang trí nhã nhặn và gam màu xanh của hệ mái tạo cảm giác vui mắt và đẳng cấp.

Không gian mặt tiền tầng 1 được ốp toàn bộ bằng đá cao cấp màu vàng ánh kim. Hệ thống đá ốp này giúp cho mặt tiền của ngôi biệt thự đẹp trở nên sang trọng, sạch sẽ như mới, mở ra một không gian lộng lẫy và sang trọng.
Xem tất cả các mẫu biệt thự của chúng tôi tại đây: https://thietkethicongnhadep.net/mau-nha-dep/biet-thu-3-tang-dep/
Hệ thống cửa xung quanh các mặt của mẫu biệt thự mái thái 3 tầng 9x15m cổ điển được làm bằng kính cường lực cao cấp, đảm bảo an toàn, chống chọi tốt với các tác nhân gây hại từ thiên nhiên và môi trường. Ngoài ra, cửa kính còn sở hữu nhiều ưu điểm độc đáo khác như tạo tính thẩm mỹ, thu hút ánh nắng và hút gió tự nhiên tốt vào không gian nội thất. Đặc biệt, hệ thống cửa được bố trí dày đặc, khoa học, tạo tầm nhìn đẹp ra khu sân vườn bên ngoài, giúp gia đình chủ đầu tư có thêm không gian thư giãn, nghỉ ngơi.

Điểm độc đáo nhất trong mẫu biệt thự cổ điển 3 tầng 9x15m chính là phần mái Thái được bố trí hài hòa, giật cấp với những hàng ngói xếp chồng lên nhau vô cùng độc đáo và tinh xảo. Có thể khẳng định rằng, mái thái là một vẻ đẹp cuốn hút bền vững, được thi công theo phương pháp đổ mái bằng, sau đó lợp vì kèo, dán ngói xanh. Với chất liệu gạch ngói cao cấp, kết hợp với thiết kế có độ dốc vừa phải giúp tăng khả năng thoát nước nhanh, chống thấm, che mưa che nắng hiệu quả cho không gian nội ngoại thất.

Các tiểu cảnh được bố trí hợp lý, hài hòa, không gian xanh bao phủ toàn bộ ngôi biệt thự 3 tầng cổ điển đẹp 9x15m, mỗi khi bước chân vào bạn sẽ cảm nhận được sự thư thái, tinh thần thoải mái, dễ chịu. xua tan căng thẳng, mệt mỏi. Sân được lát gạch sạch sẽ và bố trí một góc nhỏ cạnh nhà làm nơi để xe. Cổng được thiết kế đơn giản với 4 cánh bằng sắt sơn tĩnh điện màu đen với phần mái được lợp ngói xanh, đồng màu với hệ mái thái. Hàng rào màu trắng đơn giản, trang nhã và tạo sự thông thoáng cho không gian sân vườn.
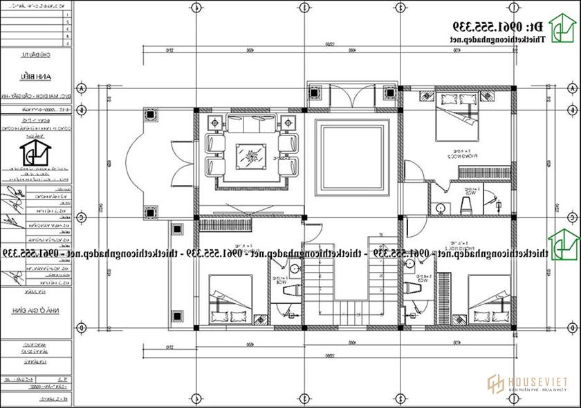
Mặt bằng công năng của mẫu biệt thự 3 tầng mái thái có 4 phòng ngủ

Mặt bằng công năng tầng 1 của mẫu biệt thự 3 tầng 9x15m cổ điển đẹp có phòng khách rộng sang trọng. Ở giữa là cầu thang kết nối giao thông lên các tầng. Phía sau là khu bếp + ăn thoáng mát và được trang bị thêm nhiều thiết bị hiện đại, cao cấp, phục vụ cho việc nấu nướng và ăn uống của gia đình chủ đầu tư. Cuối cùng là không gian 1 phòng ngủ yên tĩnh, trong lành và 1 phòng vệ sinh chung nằm đối diện nhau ngay chân cầu thang nên rất thuận tiện cho việc đi lại và sinh hoạt.

Tầng 2 là không gian sinh hoạt nghỉ ngơi của các thành viên trong gia đình gồm 1 phòng sinh hoạt chung thoáng mát, có 2 cửa đi ra ban công thoáng mát thuận tiện cho việc quây quần trò chuyện cùng nhau. thành viên trong gia đình. Tiếp theo là 3 phòng ngủ master rộng được thiết kế nội thất thông minh, bố trí khoa học, ngăn nắp theo sở thích, đầy đủ tiện nghi, có phòng vệ sinh khép kín mang đến không gian thư thái. Thư giãn, riêng tư, thoải mái nhất.

Tầng 3 được thiết kế gồm phòng thờ trang nghiêm, sân chơi thoáng mát, trong lành, tràn đầy năng lượng tích cực từ thiên nhiên và sân phơi rộng rãi, thoáng mát ngập tràn ánh nắng.
Thiết kế nội thất nhà biệt thự 3 tầng cổ điển
Nội thất phòng khách

Phòng khách được thiết kế với nội thất gỗ óc chó màu nâu sẫm làm chủ đạo, tô điểm bằng đá tự nhiên ốp tường, sàn lát gạch đen trắng sáng bóng tương phản với gam màu nâu trầm của ngôi nhà. Gỗ mang đến cảm giác về một không gian thoáng đãng, trẻ trung và ngăn nắp.

Tâm điểm của phòng khách là chiếc bàn cafe, bộ sofa gỗ óc chó được thiết kế với những đường nét duyên dáng, hình khối đơn giản, đặt giữa phòng tạo sự cân đối cho tổng thể không gian. rất quý phái và trang nhã. Vân gỗ mềm mại, tự nhiên, thường có dạng sóng hoặc xoáy tạo hoa văn đẹp mắt. Nội thất bọc da cao cấp màu đen hài hòa với gam màu trầm của óc chó tạo nên không gian phòng khách tiện nghi, ấm cúng với vẻ đẹp tinh tế, ma mị và huyền bí.

Ngoài ra, các đồ nội thất khác như kệ tivi, tủ trang trí,… cũng sử dụng chất liệu gỗ óc chó tự nhiên, là loại gỗ chống cong vênh, mối mọt rất tốt. Chiếc kệ tivi óc chó cùng tông màu với bộ sofa, bàn trà, tủ trang trí giúp không gian phòng khách trở nên lịch lãm và đẳng cấp hơn. Ngay phía sau bộ sofa, kiến trúc sư đã thiết kế một bức tường đá thạch anh đắt giá để tạo thêm điểm nhấn nổi bật cho không gian phòng khách, đồng thời khẳng định sự đẳng cấp và chịu chơi của gia đình. gia đình nhà đầu tư.

Không gian phòng khách của biệt thự 3 tầng cổ điển 9x15m được ngăn cách với các khu vực phòng khác bằng hệ vách ngăn kết hợp với tủ quần áo nhiều ngăn gỗ óc chó khiến phòng khách thêm bề thế và uy nghi. Tráng, thoải mái hơn nhiều.

Nội thất phòng ăn
Khu vực ăn uống được đặt ở trung tâm của căn phòng. Bàn ăn được thiết kế trang nhã. Bàn sử dụng bàn dài có thể ngồi được nhiều người. Đây là không gian ấm cúng để gia đình cùng nhau dùng bữa cơm sau một ngày làm việc mệt mỏi. Hay đây là nơi để chủ nhà chiêu đãi khách một bữa cơm thân mật, vui vẻ.

Bộ bàn ghế ăn gỗ óc chó tạo ấn tượng ngay từ cái nhìn đầu tiên với gam màu nâu sẫm ấm áp. Những lớp màu từ đậm đến nhạt xen kẽ cùng đường vân gỗ rõ ràng, sắc nét mang đến vẻ đẹp sang trọng, hiện đại mà không kém phần ấm cúng, gần gũi. Bạn có thể thấy bộ bàn ăn tuy đơn giản nhưng không mất đi vẻ sang trọng và lịch lãm nhờ những đường vân gỗ nổi đẹp mắt.
Nội thất nhà bếp

Liền kề khu ăn uống là quầy bar và hệ thống tủ bếp chữ L gỗ công nghiệp cao cấp được phân chia và bố trí rất hợp lý, kết hợp với các thiết bị bếp hiện đại.
Không gian bếp được bố trí gọn gàng và đầy đủ tiện nghi, bàn bếp bằng đá rộng rãi được trang bị bếp nấu và bồn rửa, tủ lạnh, lò nướng, máy hút mùi được đặt ngay cạnh khu vực bàn bếp mang đến sự tiện dụng cho căn bếp.
Trên đây là hồ sơ thiết kế biệt thự 3 tầng cổ điển 9x15m đẹp và sang trọng. Ngôi nhà được đội ngũ kiến trúc sư của Nhà Đẹp tư vấn trực tiếp phương án thiết kế và thi công. Bộ hồ sơ hoàn chỉnh bao gồm tất cả các hạng mục kiến trúc theo yêu cầu. Nếu bạn cũng có ý định xây nhà trong năm nay hãy liên hệ ngay với chúng tôi để nhận được những mẫu nhà đẹp, xuất sắc và đẳng cấp nhất.
- Mẫu biệt thự 3 tầng mái Nhật 12x14m tại Hải Phòng NDBT3T34
- Mẫu biệt thự tân cổ điển Pháp 3 tầng 10x15m làm say đắm lòng người NDBT3T33
- Biệt thự 3 tầng hiện đại 16x14m tại Hải Châu Đà Nẵng NDBT3T32
- Mẫu biệt thự tân cổ điển 3 tầng 13x11m sang trọng tại Hà Nam NDBT3T36