Biệt thự 3 tầng hiện đại 8x14m tại Quảng Ninh NDNP3T72
Có lẽ chủ đầu tư là một người khá tỉ mỉ nên để đưa ra quyết định thiết kế cho ngôi biệt thự 3 tầng 8x14m hiện đại của gia đình mình, anh đã phải lựa chọn khá kỹ lưỡng. Ban đầu anh thích nhà 3 tầng từ lâu nhưng do tôi thiết kế nên có khá nhiều mẫu nhà 3 tầng mới nên tôi khuyên anh nên làm theo phong cách mới. Nhưng có lẽ anh và các thành viên trong gia đình thích kiểu cũ hơn. Vì vậy trong bài viết này nhà đẹp sẽ chia sẻ đến các bạn 2 phương án thiết kế mà công ty nhà đẹp đã thiết kế cho gia chủ. Bạn có thể tham khảo 2 lựa chọn này và xem lựa chọn nào phù hợp với mình nhất.
Xu hướng thiết kế nhà phố 3 tầng 8x14m hiện đại đang nở rộ trong thời gian gần đây và chiếm được cảm tình của nhiều chủ đầu tư bởi sự đa dạng, phóng khoáng trong cách bài trí, hình khối kiến trúc sinh động, mới lạ. lạ, độc đáo. Có thể nói, nhà phố 3 tầng hiện đại là kiểu kiến trúc cho phép các kiến trúc sư thỏa sức sáng tạo, thổi hồn những tinh hoa nghệ thuật mới vào từng chi tiết trang trí cho không gian sống nội và ngoại thất. của căn nhà. Hãy cùng công ty nhà đẹp giải mã những nét cuốn hút, mới lạ và đẳng cấp của ngôi nhà phố 3 tầng mái bằng độc đáo tại tỉnh Quảng Ninh này nhé.
Đơn giá xây dựng biệt thự 3 tầng hiện đại 8x14m
Mời các bạn tham khảo đơn giá xây dựng nhà 3 tầng mái bằng này nên chúng tôi sẽ giảm bớt một phần mái của công trình và phần giật cấp xung quanh cũng khá ít. Do đó giá thành xây dựng sẽ thấp hơn so với những ngôi nhà mái ngói hay mái thái.
- Địa điểm xây dựng: Quảng Ninh
- Chủ đầu tư: Anh Thủy
- Diện tích nhà: 8x14m
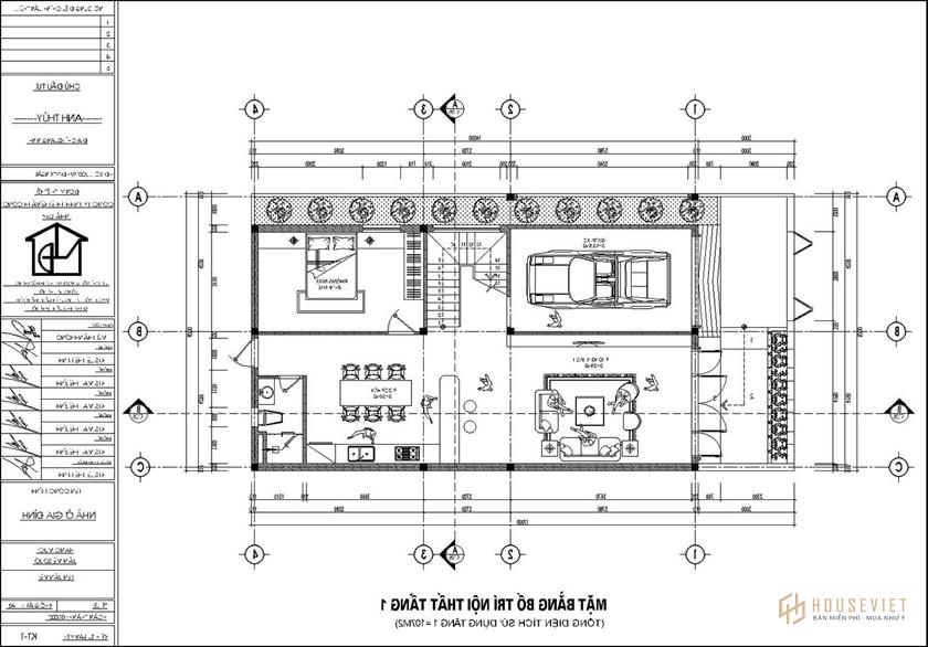
- Diện tích sàn 1: 107m2
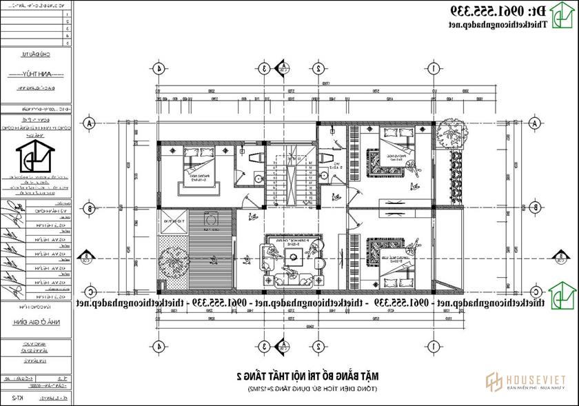
- Diện tích tầng 2: 121m2
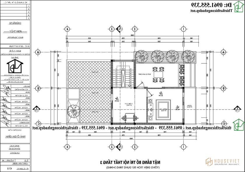
- Diện tích tầng 3: 54m2
- Diện tích áp mái tầng 3: 9,4m2
- Tổng diện tích mái bê tông: 107 + 121 + 54 + 9,4 = 291,4m2
- Tổng giá trị xây dựng trên m2 mái bê tông: 291,4 × 5.500.000 = 1.602.700.000 đồng
Phối cảnh 3D nhà phố 3 tầng hiện đại 8x14m mái bằng
Hình khối của nhà phố 3 tầng 8x14m hiện đại được lấy cảm hứng từ những khối vuông vắn xếp chồng lên nhau bất đối xứng, đua ra, thụt vào đầy nghệ thuật. Các đường nét, chi tiết trang trí, các mảng tường, ban công được thiết kế khoa học, hài hòa đẹp mắt, có sự đột phá trong tư duy và ý tưởng. Chính vì vậy nó tạo cho người nhìn cảm giác mới lạ và muốn khám phá ngay vẻ đẹp của ngôi nhà phố hiện đại này.

Ngôi nhà phố 3 tầng 8x14m hiện đại được thiết kế theo phong cách mới sang trọng với vẻ đẹp phá cách, tinh tế và vô cùng năng động. Sử dụng sơn trắng làm tông màu chủ đạo với mục đích cao cả là mang đến cho không gian ngoại thất vẻ thanh lịch, hiện đại, trẻ trung và phóng khoáng.
Ngoài ra, để tạo thêm điểm nhấn, kiến trúc sư đã khéo léo làm cho ngoại thất tầng 1 được ốp bằng đá granit ốp tường giả đá lạ mắt, kết hợp với gạch thẻ màu nâu trầm gợi cảm giác ấm cúng trên các mảng tường. Tường tầng 2 và 3. Chính nhờ cách phối màu độc đáo và đẹp mắt đó mà ngôi nhà phố 3 tầng có sự phân chia rõ rệt trong không gian ngoại thất, mỗi tầng đều thể hiện một nét đẹp riêng nhưng mang cá tính riêng. Sự pha trộn hoàn hảo tạo nên một kiến trúc sống động và đồng nhất.

Để hài hòa với kiến trúc hiện đại và cá tính sâu sắc, nhà phố 3 tầng hiện đại 8x14m được thống nhất sử dụng hệ thống mái bằng gồm 4 lớp: lớp kết cấu chịu lực, lớp mái dốc, lớp mái thái. chống thấm và cách nhiệt. Ngoài ra, kiến trúc sư còn thiết kế một sân thượng khá rộng rãi trên tầng 3 để gia đình gia chủ có thêm không gian đẹp hơn và ngắm nhìn vẻ đẹp của bình minh mỗi sớm mai hay tận hưởng những luồng khí tuyệt vời. ảo diệu của buổi chiều tà, qua đó cũng giúp các thành viên có thêm nơi thư giãn, giải trí sau những giờ làm việc, học tập căng thẳng.
Không gian ngoại thất của mẫu nhà phố đẹp 3 tầng hiện đại 8x14m ngoài việc tận dụng sức hút của những hình khối độc đáo còn được kết hợp với những ô thoáng của hệ thống cửa sổ, cửa chính, ban công. lan can ban công làm bằng chất liệu kính cường lực có độ trong suốt tối ưu với mục đích giúp không gian bên trong trở nên sáng sủa, thoáng mát, trong lành và tràn đầy năng lượng.
Phương án 2: Mẫu biệt thự 3 tầng mái bằng đẹp

Nhìn chung, hai phương án không có nhiều khác biệt, chỉ khác nhau một chút ở các chi tiết trang trí, cách bố trí không gian ngoại thất và hệ thống mái thái. Ở phương án 1, phương án duy nhất là hệ mái bằng, phương án 2 là sự kết hợp giữa 2 loại mái bằng và mái thái để tăng thêm sự độc đáo, đẳng cấp, lôi cuốn người nhìn.

Ở phương án 2 mẫu nhà phố 3 tầng hiện đại 8x14m gây ấn tượng mạnh mẽ bởi hai hệ mái thái độc đáo được thiết kế cạnh nhau, có những mảng phào chỉ nhất định với tổng thể kiến trúc và mang đến vẻ đẹp ấn tượng, độc đáo. cho biệt thự. Hai kiểu mái này rất phù hợp với kiến trúc hiện đại về hình khối, mảng miếng kiến trúc, nó tạo nên sự phiêu bồng, sống động cho không gian ngoại thất cũng như mang đến cái nhìn mới mẻ cho người nhìn. với một hệ thống mái thông thường.

Cả hai phương án đều có một điểm chung mà ai cũng có thể dễ dàng nhận thấy đó chính là ý tưởng thiết kế sân vườn đẹp với hệ thống cây xanh, tiểu cảnh, hoa - cỏ xanh mướt,… Sự kết hợp hài hòa giữa ngoại thất của ngôi nhà phố 3 tầng 8x14m hiện đại và hệ thống sân vườn tươi mát đã phần nào giúp không gian sống của gia đình chủ đầu tư thêm trong lành, trong lành như đang sống trong khu đô thị. rừng nguyên sinh nhỏ.
Mặt bằng công năng nhà phố 3 tầng 8x14m hiện đại

Đến với cách bố trí công năng tầng 1 của mẫu nhà phố 3 tầng 8x14m hiện đại gồm 1 gara, 1 phòng khách sang trọng thông thoáng, liên thông với phòng ăn và bếp tạo không gian mở hiện đại. , thanh tú. 1 phòng ngủ yên tĩnh rất thích hợp để nghỉ ngơi, thư giãn, giải trí, phục hồi sức khỏe sau một ngày làm việc mệt mỏi. Cuối cùng là phòng vệ sinh chung tiện nghi phía cuối nhà với mục đích tạo sự riêng tư thoải mái cho các thành viên và khách sử dụng.

Xem tất cả các mẫu biệt thự 3 tầng tại đây: https://thietkethicongnhadep.net/mau-nha-dep/biet-thu-3-tang-dep/
Trên tầng 2 được chia không gian thành 1 phòng sinh hoạt chung, 1 phòng vệ sinh chung và 3 phòng ngủ. Phòng sinh hoạt chung được đặt ở trung tâm là nơi cả gia đình có thể ngồi cùng nhau trò chuyện, chia sẻ những buồn vui trong cuộc sống hay đơn giản là nơi cả gia đình cùng nhau sum vầy. xem phim mỗi tối. 3 phòng ngủ được bố trí và thiết kế hài hòa tùy theo nhu cầu và sở thích của từng thành viên, trong đó có 1 phòng là phòng master đầy đủ tiện nghi. Nhìn chung không gian tầng khá ấm áp và vui vẻ.

Lên đến tầng 3 là không gian dành cho các hoạt động thể dục thể thao nâng cao sức khỏe và một phòng thờ vừa phải được thiết kế ở vị trí chuẩn phong thủy, khá thoáng mát, sạch sẽ và cũng rất trang nhã. thành kính, bày tỏ lòng biết ơn và tinh thần uống nước nhớ nguồn, nhớ tổ tiên.
Trên đây là những điểm chính của mẫu nhà phố 3 tầng 8x14m hiện đại 3 tầng độc đáo, sang trọng và mê đắm lòng người. Để nhận thêm sự tư vấn của các chuyên gia về kiến trúc, kỹ thuật, xây nhà hãy liên hệ với công ty nhà đẹp chúng tôi qua hotline để gặp các kiến trúc sư tài năng.
- Biệt thự 3 tầng hiện đại 16x14m tại Hải Châu Đà Nẵng NDBT3T32
- Biệt thự 3 tầng 15x12m mái bằng phong cách hiện đại NDBT3T31
- Mẫu biệt thự 3 tầng mái Nhật 11x19m tại Ninh Bình NDBT3T30
- Mẫu biệt thự tân cổ điển Pháp 3 tầng 10x15m làm say đắm lòng người NDBT3T33