Biệt thự 4 tầng 12x24m sang trọng tại ECOPARK NDBT4T2
Mẫu nhà phố 4 tầng 12x24m phong cách hiện đại luôn mang vẻ đẹp tươi mới, tràn đầy sức sống và sự sáng tạo của các kiến trúc sư. Thiết kế biệt thự đẹp phong cách hiện đại đang là trào lưu, xu hướng được nhiều gia đình có điều kiện kinh tế quan tâm, khi chất lượng cuộc sống ngày càng cao thì yêu cầu về không gian sống và sinh hoạt cũng đầy đủ hơn.
Ngay sau đây, Nhà Đẹp xin giới thiệu đến toàn thể quý vị và các bạn một mẫu biệt thự đẹp 4 tầng phong cách hiện đại của gia đình anh Dương đã làm dậy sóng thị trường thiết kế nhà ở nước ta trong thời gian gần đây. qua.
Thông tin về mẫu biệt thự 4 tầng 12x24m hiện đại
- Địa điểm xây dựng: Ecopark
- Chủ đầu tư: Ánh Dương
- Kích thước nhà: 12x24m
- Diện tích sàn 1: 288m2
- Diện tích tầng 2: 199,2m2
- Diện tích tầng 3: 199,2m2
- Diện tích tầng 4: 134,4m2
- Tổng diện tích mái bê tông: 288 + 199,2 + 199,2 + 134,4 = 820,8m2
- Tổng giá trị xây dựng dự kiến: 820,8 × 5.500.000 = 4.514.400.000 đồng
Phối cảnh 3D biệt thự mái bằng 4 tầng 5 phòng ngủ

Mẫu nhà phố 4 tầng đẹp hiện đại 12x24m với các khối vuông xếp chồng lên nhau nhô ra, so le mang đến cảm giác khỏe khoắn, trẻ trung. Các khối hình được sắp xếp theo tỷ lệ và quy luật với sự tính toán kỹ lưỡng, gọn gàng, vô cùng ấn tượng, khơi gợi cảm xúc tò mò, muốn tìm tòi, khám phá của đông đảo mọi người khi đi ngang qua. .

Không gian ngoại thất nhà phố 4 tầng 12x24m đẹp hiện đại với gam màu trắng tinh khôi chủ đạo cùng gam màu nâu của gạch ốp tường trang trí, gam màu đen của hệ thống cửa. Bên cạnh đó, dựa trên sự tương phản của ba gam màu đen - trắng - nâu, được sắp xếp theo một trật tự có tính toán tỉ mỉ, chuyển từ không gian này sang không gian khác một cách tự nhiên và khéo léo. , tạo nên sự đẳng cấp, tinh tế và lôi cuốn, hấp dẫn vô cùng đối với mọi người.

Tiếp đến, hệ thống cửa của nhà phố 4 tầng 12x24m hiện đại được sử dụng chất liệu nhôm kính xingfa cao cấp có chức năng ưu việt là thu hút ánh sáng tự nhiên tốt, cách âm, chống ồn hiệu quả. góp phần tạo nên không gian nội thất luôn mát mẻ, trong lành, thông thoáng và tràn đầy năng lượng tích cực có lợi cho sức khỏe con người.
Điểm đóng vai trò quan trọng nhất trong việc cung cấp ánh sáng vào thời điểm nắng không đảm bảo chính là hệ thống đèn âm tường, đèn chiếu sáng hiên nhà. Với chất lượng ánh sáng chan hòa, tối ưu đã phần nào giúp nhà phố khoe được vẻ đẹp lung linh, huyền ảo cả ngày lẫn đêm một cách ấn tượng nhất.

Hệ thống ban công được thiết kế không kém phần ấn tượng. Nhờ các khoảng lồi - thụt của các khối kiến trúc nên hệ thống ban công khá rộng và chạy dọc rất dài theo các khối nhà. Ngoài ra, hệ thống lan can ban công còn sử dụng chất liệu kính cường lực cao cấp có tác dụng rất lớn là vừa giúp tăng độ sáng cho không gian bên trong mà vẫn có thể tạo hiệu ứng phản quang. Ánh sáng khiến không gian bên ngoài trở nên đẹp hơn rất nhiều.

Ngoài ra, mẫu thiết kế nhà phố đẹp 4 tầng 12x24m đã lựa chọn phương án xây dựng mái bằng để hoàn thiện. Mái bằng là khối mái bê tông trải trên mặt phẳng, có kết cấu vững chắc, độ dày lớn nên có khả năng chống cháy tương đối cao, chịu áp lực mưa bão và chống nóng hiệu quả. Mái bằng tuy không đẹp, không mát, không sang trọng so với mái thái, mái chéo nhưng mái chéo lại có nhiều ưu điểm nổi bật và độc đáo như chi phí đầu tư thấp, thời gian thi công ngắn, có thể tận dụng tối đa công năng của mái bằng. để làm được nhiều việc có ích hơn cho cuộc sống hàng ngày của con người ...

Ngôi nhà phố 4 tầng đẹp 12x24m được thiết kế có bể bơi sang trọng như xây khách sạn cao cấp khiến nhiều người phải trầm trồ, ao ước. Thiết kế bể bơi có tác dụng giúp điều hòa nhiệt độ, sở hữu hình dáng vuông vắn đẹp mắt, xung quanh là cây xanh và tiểu cảnh tạo không gian trong lành, mát mẻ, rất đáng sống, vô cùng thích hợp. với điều kiện khí hậu nước ta.

Vẻ đẹp có thể gọi là trọn vẹn nhất cho ngôi nhà phố đẹp 4 tầng 12x24m chính là không gian sân vườn, hệ thống tường rào, cổng được thiết kế và quy hoạch rõ ràng phù hợp với mong muốn và yêu cầu từ phía. chủ đầu tư nhằm mang đến một không gian sống vừa trong lành, vừa đẹp, hiện đại, tiện nghi, an toàn và hút mắt hơn.

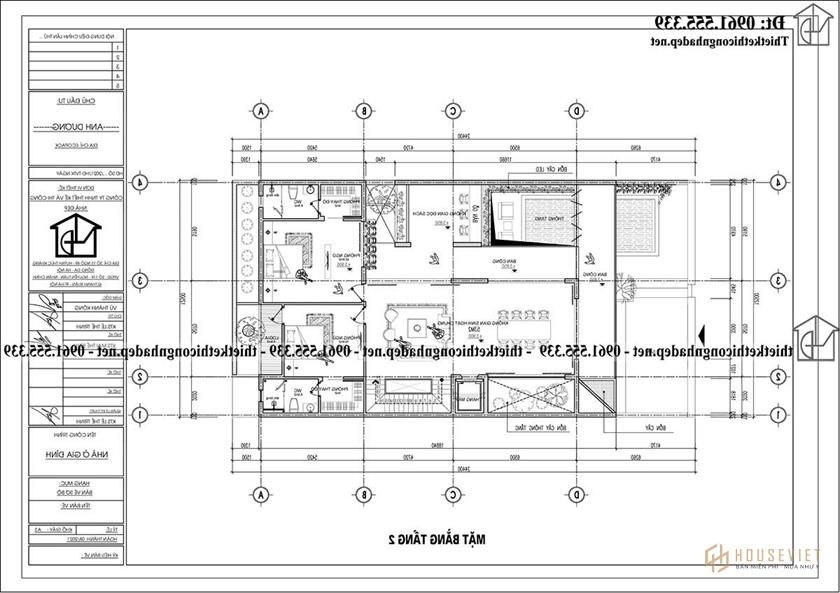
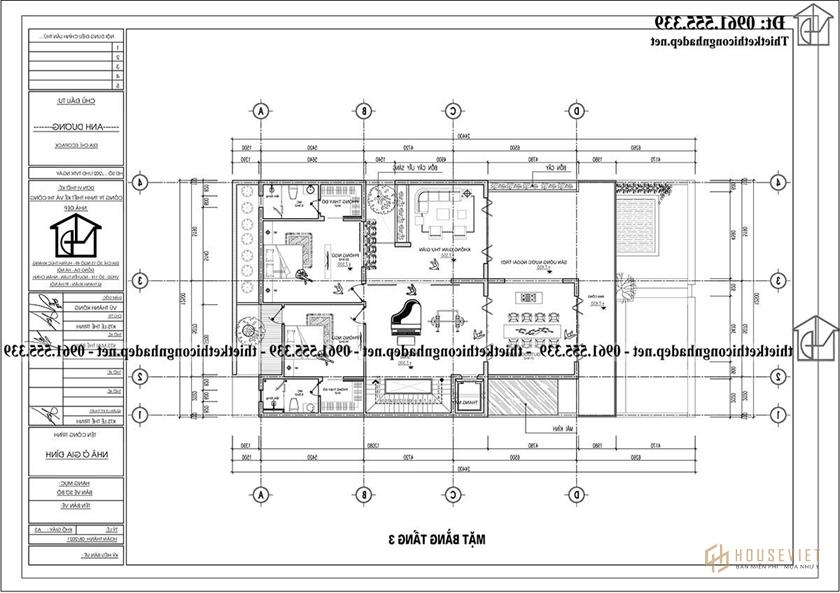
Mặt bằng công năng mẫu nhà phố 4 tầng 5 phòng ngủ đẹp

Mẫu thiết kế nhà phố 4 tầng 12x24m đẹp phong cách hiện đại với tầng 1 được bố trí 1 bên là phòng khách, bếp + ăn vô cùng rộng rãi thoáng mát, 1 phòng vệ sinh chung đầy đủ tiện nghi. Trang thiết bị cao cấp, 1 phòng giặt là hiện đại và 1 kho với diện tích khá nhỏ. Tiếp đến là khu vực giếng trời cầu thang được bố trí bên cạnh phòng khách và phòng ăn. Gian còn lại gồm phòng đọc sách và phòng ngủ chính yên tĩnh với phòng vệ sinh khép kín. Nhìn chung, các phòng chức năng được bố trí rất khoa học, rất thuận tiện cho việc sinh hoạt và đi lại của gia đình chủ đầu tư.

Tầng 2 được thiết kế gồm 2 phòng ngủ master đều có phòng tắm và thay đồ khép kín đầy đủ tiện nghi, phòng đọc sách thoáng mát và tràn đầy năng lượng và phòng sinh hoạt chung rộng rãi thoáng mát với diện tích lớn. Diện tích khá rộng rất thích hợp để gia đình chủ đầu tư quây quần trò chuyện, thể hiện tình cảm gắn bó với nhau.

Tầng 3 cũng được thiết kế bao gồm phòng thư giãn thoải mái và yên tĩnh, sân chơi thoáng mát, phòng tiệc sang trọng. Tiếp đến là 2 phòng ngủ master có diện tích khá rộng, mỗi phòng đều được trang bị đầy đủ nội thất gồm khu thay đồ, vệ sinh bên trong. Cuối cùng là phòng tập gym, rèn luyện sức khỏe, tăng cường sức khỏe cho hội viên được bố trí tại khu vực trung tâm của tầng và khá đầy đủ các trang thiết bị hiện đại, tân tiến nhất.

Tầng 4 được thiết kế gồm 1 phòng thờ trang nghiêm và 1 không gian thoáng với hệ thống ban công và sân chơi rộng rãi như quán cafe ngoài trời, đây là nơi tụ họp của gia đình và bạn bè để thư giãn và thưởng thức. cà phê.
Mẫu thiết kế nhà phố đẹp 4 tầng 12x24m không quá cầu kỳ nhưng với sự đa dạng về cách bố trí và sắp xếp trong không gian đã mang đến cho gia đình anh Dương một thiết kế biệt thự hoàn hảo. Nếu quý vị và các bạn ấn tượng với mẫu nhà này và có nhu cầu tư vấn thiết kế, hãy liên hệ ngay với chúng tôi để được hỗ trợ tận tình.
- Nhà biệt thự 4 tầng đẹp 80m2 ở Thạch Bàn NDBT4T1
- Bản vẽ thiết kế biệt thự 4 tầng mái thái 8x15m
- Mẫu thiết kế biệt thự 4 tầng hiện đại 13x15m