Biệt thự mái thái 2 tầng 4 phòng ngủ 10x16m tại Bắc Kạn NDBT2T142
Mẫu biệt thự 2 tầng mái thái 4 phòng ngủ 10x16m kiểu Nhật tuy không phải là loại hình nhà ở mới nổi tại Việt Nam nhưng vẫn được thị trường kiến trúc đón nhận nhiệt tình. Thiết kế biệt thự 2 tầng đẹp kiểu Nhật thường khá đơn giản, gần gũi và hòa mình với thiên nhiên. Những ngôi nhà này thường được kết hợp giữa cả không gian ngoại thất và nội thất để mang đến không gian sống lý tưởng cho gia chủ.
Hôm nay Nhà Đẹp xin tiếp tục gửi tới quý vị và các bạn một mẫu nhà mái thái độc đáo của gia đình anh Ba có địa chỉ tại tỉnh Bắc Kạn. Xin mời quý vị và các bạn cùng đi sâu phân tích những đặc điểm nổi bật của dòng xe này qua bài viết dưới đây!
Thông tin về mẫu biệt thự 2 tầng 4 phòng ngủ kiểu Nhật 10x16m
- Chủ đầu tư: Anh Ba
- Địa chỉ: Bắc Kạn
- Kích thước nhà: 10x16m
Phương án 1: Tổng giá trị hoàn thiện toàn bộ căn nhà
- Diện tích sàn 1: 160m2
- Diện tích tầng 2: 95m2
- Diện tích diềm tầng 1: 160 × 0,4 = 64m2
- Diện tích diềm mái tầng 2: 95 × 0,4 = 38m2
- Tổng diện tích mái bê tông: 160 + 95 + 64 + 38 = 357m2
- Tổng giá trị xây dựng nhà: 357 × 5.500.000 = 1.963.500.000 đồng
- Diện tích mái ngói: (95 + 38 + 64) x 1,6 = 315,2m2
- Tổng giá trị xây dựng phần mái: 315,2x 750.000 = 236.400.000 đồng
- Tổng giá trị hoàn thiện: 1.963.500.000 + 236.460.000 = 2.199.900.000 VND
Phương án 2: Chỉ tính chi phí xây thêm tầng 2
- Diện tích tầng 2: 95m2
- Diện tích diềm mái tầng 2: 95 × 0,4 = 38m2
- Tổng diện tích mái bê tông: 95 + 38 = 133m2
- Tổng giá trị xây nhà: 133 × 5.500.000 = 731.500.000 vnd
- Diện tích mái ngói: (95 + 38) x 1,6 = 212,8m2
- Tổng giá trị xây dựng mái Nhật: 212.8x 750.000 = 159.600.000 đồng
- Tổng giá trị hoàn thiện: 731.500.000 + 159.600.000 = 891.100.000 đồng
Phối cảnh 3D mẫu biệt thự 2 tầng mái thái hiện đại kiểu Nhật
Ấn tượng đầu tiên khi nhìn vào mẫu thiết kế biệt thự 2 tầng 4 phòng ngủ 4 phòng ngủ kiểu Nhật là hệ thống tường bao vuông vắn, vững chãi với các hình khối bất đối xứng và cách sử dụng vật liệu hiện đại, độc đáo tạo nên sự độc đáo và hiện đại. thiết kế. Vì vậy, uy thế, đẳng cấp ...

Tiếp theo, màu sắc như một tấm áo đẹp giúp cho mẫu biệt thự 2 tầng 10x16m kiểu Nhật 4 phòng ngủ 10x16m tôn lên và khoe được những đường nét đắt giá. Chính vì vậy không gian ngoại thất của mẫu nhà đẹp này thường lựa chọn những gam màu sáng như nâu, đen để tạo nên sự trẻ trung, năng động và hướng đến sự lựa chọn tinh tế cao cấp. Sự kết hợp của những gam màu này với nhau đã góp phần không nhỏ, gợi cảm giác sang trọng, lịch thiệp và tạo ấn tượng mạnh cho người nhìn.

Trong ngôi biệt thự 2 tầng 4 phòng ngủ 10x16m kiểu Nhật, toàn bộ hệ thống cửa đều sử dụng chất liệu nhôm xingfa cao cấp kết hợp với kính tạo nên sự đồng bộ, hài hòa, tăng tính hiện đại và đẹp mắt. cấp độ. Loại kính được sử dụng là kính cường lực có khả năng chống va đập cao, cách nhiệt và cách âm rất tốt. Từ đó, mọi khách hàng có thể hoàn toàn yên tâm, không cần lo lắng về vấn đề co ngót, cong vênh sau thời gian dài sử dụng.
Ngoài ra, không gian ngoại thất của mẫu biệt thự 2 tầng 4 phòng ngủ kiểu Nhật còn được điểm xuyết bằng hệ thống đèn downlight âm tường và đèn hắt mang đến không gian lung linh, tràn ngập ánh sáng vào ban đêm.

Ba bậc tam cấp giúp cho ngôi nhà biệt thự 2 tầng mái thái 4 phòng ngủ 10x16m trở lên cân đối hơn giữa phần móng, phần thân và phần mái, không những thế còn tạo cho ngôi nhà vẻ bề thế và cao ráo hơn. Điều này cũng giúp thông gió và điều hòa không khí trong nhà tốt hơn. Toàn bộ sảnh và bậc tam cấp được lát bằng đá Granite, chân tường được ốp bằng gạch thẻ xám giúp bảo vệ chân tường và tăng thêm tính thẩm mỹ cho không gian ngoại thất. Thiết kế bồn hoa, cây xanh xung quanh nhà khiến cả không gian tràn đầy sức sống, tạo năng lượng tích cực cho gia đình chủ đầu tư tận hưởng.

Tạo nên sự hoàn hảo trong mẫu thiết kế biệt thự 2 tầng 10x16m kiểu Nhật 4 phòng ngủ không thể không kể đến phần mái. Được xây dựng theo kiến trúc mái thái Nhật Bản sử dụng vật liệu ngói lãng cao cấp nhập khẩu trực tiếp tại Nhật Bản có ưu điểm vượt trội về khả năng tản nhiệt, thích ứng nhanh với điều kiện thời tiết dù ở trạng thái nào. không tí nào. Không những vậy, kết cấu mái thái với độ dốc thoải còn giúp thoát nước hiệu quả, tránh tình trạng ứ đọng gây thấm, rêu, mốc ảnh hưởng đến tuổi thọ cũng như mỹ quan tổng thể.
Cuối cùng, phần ban công cũng tạo điểm nhấn khi sử dụng tường bao quanh vô cùng kiên cố và chắc chắn, có tác dụng rất lớn trong việc bảo vệ an toàn cho gia đình chủ đầu tư khi đứng trên ban công ngắm cảnh. cảnh, chơi,
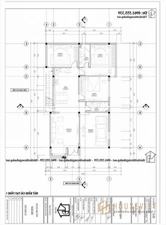
Mặt bằng công năng mẫu nhà biệt thự 2 tầng 4 phòng ngủ

Mặt bằng công năng của mẫu thiết kế biệt thự 2 tầng mái thái 4 phòng ngủ 10x16m được chia làm 2 phần chính là không gian chung và không gian riêng. Không gian chung gồm phòng khách rộng rãi nằm ngay cạnh cửa chính, gara ô tô hiện đại, phòng bếp + ăn sạch sẽ, vô cùng thoáng mát và phòng vệ sinh chung tiện nghi. Không gian riêng tư gồm 1 phòng ngủ master và 2 phòng ngủ thường yên tĩnh, tràn ngập năng lượng tự nhiên do có hệ thống cửa sổ kính lớn.

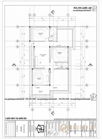
Tầng 2 được thiết kế gồm sân chơi, sân phơi thoáng mát luôn tràn ngập ánh sáng và gió tự nhiên trong lành. 1 phòng sinh hoạt chung sang trọng, 1 phòng thờ trang trọng và 2 phòng ngủ master thoáng mát có vệ sinh khép kín riêng biệt bên trong.
Mẫu thiết kế biệt thự 2 tầng mái thái 4 phòng ngủ 10x16m giúp tối ưu hóa diện tích sử dụng, đảm bảo không gian sống thoải mái và tiện ích nhất cho gia đình chủ đầu tư. Nếu quý vị và các bạn có nhu cầu thiết kế nhà hãy liên hệ trực tiếp với Nhà Đẹp theo số HOTLINE để được các KTS tư vấn chi tiết.
- Biệt thự 2 tầng 8x11m kiến trúc hiện đại tại Sơn La NDBT2T141
- Mẫu biệt thự 2 tầng mái Nhật 8x11m tại Phúc Thọ Hà Nội NDBT2T140
- Biệt thự 2 tầng hình chữ L mái bằng 13x12m ở Thái Bình NDBT2T139
- Mẫu biệt thự 2 tầng mái Nhật 12x11m tại Hà Nội NDBT2T143