Biệt thự mái thái 2 tầng 4 phòng ngủ 9x15m ở Thái Bình NDBT2T125
Thái Bình năm nay chắc được mùa, được mùa nhưng lượng khách hàng ở Thái Bình bắt đầu tăng hơn những năm trước. Mẫu thiết kế biệt thự 2 tầng mái thái 4 phòng ngủ 9x15m được công ty Thiết kế nhà đẹp cho anh Dậu có địa chỉ tại Đông Hưng Thái Bình. Đây là một trong những mẫu nhà 2 tầng được thiết kế theo kiểu nhà mái thái kiểu Nhật và phong cách hiện đại. Mời các bạn cùng chúng tôi xem qua hình ảnh và thông tin chi tiết về dự án này.
Nhu cầu thiết yếu về xây dựng và thiết kế nhà đẹp của mỗi khách hàng ngày một tăng cao, vì vậy các mẫu biệt thự 2 tầng 4 phòng ngủ 9x15m kiểu Nhật đang được săn đón và trở nên đa dạng hơn. Theo thống kê, mẫu biệt thự 2 tầng kiểu Nhật là loại hình nhà ở được ưa chuộng nhất trong thời gian gần đây, bởi nó là sự lựa chọn hoàn hảo và tối ưu nhất, đáp ứng được nhu cầu sử dụng. và đảm bảo hài hòa các yếu tố phong thủy của gia đình chủ đầu tư. Mời quý vị và các bạn cùng tham khảo mẫu biệt thự 2 tầng 9x15m kiểu Nhật 4 phòng ngủ đẹp và sang trọng được nhiều người lựa chọn và thi công trong thời gian gần đây!
Thông tin xây biệt thự 2 tầng mái thái 4 phòng ngủ kiểu Nhật
Đây là một trong những công trình có diện tích xây dựng khá lớn nên đơn giá hoàn thiện nhà cũng sẽ cao. Mời các bạn cùng tham khảo đơn giá xây dựng mẫu nhà này qua thông tin dưới đây.
- Địa điểm xây dựng: Đông Hưng - Thái Bình
 - Diện tích nhà: 9x15m
 - Chủ đầu tư: Anh Dou
 - Diện tích sàn 1: 126m2
 - Diện tích tầng 2: 88,6m2
 - Diện tích áp mái tầng 1: 18,4m2
 - Diện tích áp mái tầng 2: 88,6 × 0,4 = 35,44m2
 - Tổng diện tích xây dựng: 126 + 88,6 + 18,4 + 35,44 = 268,44m2
 - Tổng giá trị xây dựng căn nhà: 268,44 × 5.500.000 = 1.476.420.000 đồng
 - Diện tích mái ngói: 88,6 × 1,6 = 141,76m2
 - Giá trị xây dựng mái ngói: 141,76 × 700.000 = 99.232.000 đồng
 - Tổng giá trị xây dựng nhà: 1.476.420.000 + 99.232.000 = 1.575.652.000 đồng
 
Phối cảnh 3D mẫu biệt thự 2 tầng kiểu Nhật 4 phòng ngủ 9x15m

Mẫu biệt thự 2 tầng mái thái 4 phòng ngủ 9x15m kiểu Nhật gây ấn tượng bởi thiết kế ngoại thất mặt tiền bắt mắt, hình khối thiết kế vuông vắn, hiện đại. Với gam màu xám của hệ mái, mẫu biệt thự đẹp 2 tầng kiểu Nhật còn sử dụng gam màu trắng tinh tế làm chủ đạo cho tổng thể không gian ngoại thất của công trình. Mang phong cách kiến trúc hiện đại, ngôi nhà biệt thự 2 tầng kiểu Nhật trở nên nổi bật hơn nhờ cách phối hợp các mảng màu đối lập. Hệ thống khung cửa sổ, cửa phụ, nhà chính sử dụng gam màu nâu nổi bật đối lập với gam màu trắng chủ đạo, một sự kết hợp không bao giờ lỗi mốt tạo nên hiệu ứng màu sắc vô cùng phù hợp với mọi thời đại. vĩ đại.

Hệ thống cửa trong mẫu biệt thự 2 tầng 4 phòng ngủ kiểu Nhật được thiết kế dày đặc. Hệ thống cửa chính, cửa phụ sử dụng gỗ tự nhiên cao cấp mang đến nét sang trọng, kiên cố, vững chãi cho không gian ngoại thất và mặt tiền của công trình. Kết hợp với đó là những ô kính dùng để lấy sáng, tạo không gian thoáng mờ cho khu vực phòng khách. Đặc biệt, hệ thống cửa sổ bằng kính cường lực khung nhôm cao cấp mang đến vẻ đẹp rất hiện đại. Đồng thời, chất liệu kính cường lực còn có khả năng cách âm, thu hút ánh sáng và gió tự nhiên rất tốt, mang đến sự thoáng đãng và mát mẻ cho không gian sống bên trong ngôi nhà biệt thự 2 tầng. Ngoài ra, nó còn giúp mở ra tầm nhìn rất đẹp ra khu sân vườn và cảnh quan bên ngoài.

Nổi bật nhất trong mẫu biệt thự 2 tầng 9x15m kiểu Nhật 4 phòng ngủ vẫn là hệ thống mái thái Nhật Bản với độ dốc vừa phải là dấu ấn không thể thiếu của ngôi nhà. Mái thái Nhật Bản ẩn chứa vẻ đẹp cuốn hút bền vững được thi công theo phương pháp đổ mái bằng, lợp vì kèo, cuối cùng là dán ngói xám xanh mang đến cho ngôi nhà sự bề thế và trường tồn so với thời gian. thời gian. Với chất liệu ngói cao cấp, kết hợp với độ dốc vừa phải giúp tăng khả năng thoát nước mưa nhanh, chống thấm tốt, che mưa che nắng hiệu quả. Bên cạnh đó, chức năng quan trọng nhất là điều hòa không khí, tạo sự mát mẻ vào mùa hè và ấm cúng vào mùa đông cũng là một trong những yếu tố giúp xây dựng mái thái được nhiều chủ đầu tư lựa chọn cho ngôi nhà này. Ngôi nhà biệt lập hai tầng của gia đình anh.

Sự kết hợp tinh tế giữa những gam màu độc đáo ngôi biệt thự 2 tầng 4 phòng ngủ 9x15m kiểu Nhật này càng trở nên nổi bật hơn qua hệ thống sân vườn rộng rãi xanh mát. Tọa lạc trên một khu đất khá rộng ở nông thôn nên không gian sân vườn của ngôi nhà cũng được chú trọng khá nhiều với mục đích tạo không gian thoáng đãng, thư giãn và thoải mái cho gia đình chủ đầu tư. Sân được sử dụng hệ thống gạch chống trơn trượt cao, có lợi vào những ngày mưa gió giúp các thành viên di chuyển dễ dàng không bị trượt ngã. Hệ thống cây cảnh, chậu hoa nhiều màu sắc được bố trí xung quanh ngôi nhà mang đến vẻ ngoài bắt mắt, hấp dẫn để các thành viên trong gia đình giải trí sau một ngày làm việc căng thẳng. Chính những nét thiết kế độc đáo và ấn tượng như vậy đã khiến cho công trình biệt thự 2 tầng kiểu Nhật nhận được sự yêu thích và ngạc nhiên từ những ai đi ngang qua nó.
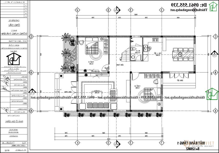
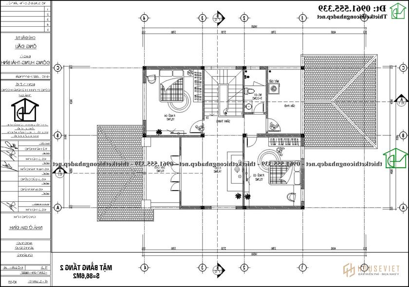
Mặt bằng công năng biệt thự 2 tầng mái thái 4 phòng ngủ 9x15m

Thưa quý vị, mẫu biệt thự 2 tầng 9x15m kiểu Nhật 4 phòng ngủ không chỉ đẹp về thiết kế với không gian ngoại thất mà không gian nội ngoại thất cũng được kiến trúc sư thiết kế đẹp tiện nghi và chuẩn phong thủy. .
Tầng 1 gồm phòng khách rộng rãi thoáng mát - nơi đón tiếp khách. 1 phòng bếp + ăn được thiết kế sang trọng với đầy đủ đồ dùng phục vụ cho công việc bếp núc vô cùng hiện đại. 2 phòng ngủ được bố trí hợp lý - là nơi nghỉ ngơi, thư giãn của các thành viên. Phòng vệ sinh chung ở gầm cầu thang giúp tiết kiệm diện tích cho toàn bộ tầng 1 của ngôi nhà.

Tầng 2 gồm phòng thờ trang nghiêm - nơi hội tụ may mắn cho cả ngôi nhà. 2 phòng ngủ khá rộng rãi được thiết kế theo nhu cầu và sở thích của từng thành viên trong gia đình. 1 phòng tắm chung tiện nghi sạch sẽ. Cuối cùng là sân phơi thoáng mát - nơi phơi quần áo và cất giữ các vật dụng của gia đình.
Công ty nhà đẹp chúng tôi vừa giới thiệu đến các bạn toàn bộ phối cảnh 3D và công năng sử dụng của mẫu biệt thự 2 tầng 9x15m kiểu Nhật 4 phòng ngủ. Với công năng sử dụng rất đầy đủ tiện nghi và vẻ đẹp sang trọng ấn tượng mà công trình mang lại đã được gia đình chủ đầu tư vô cùng ưng ý và hài lòng. Nếu gia đình bạn còn đang tìm kiếm một ngôi nhà biệt thự hoàn hảo thì đừng ngại liên hệ với công ty chúng tôi để nhận được sự hỗ trợ nhiệt tình từ đội ngũ kiến trúc sư chuyên nghiệp.
- Mẫu nhà biệt thự 2 tầng kiểu Nhật 16x10m ở Bình Dương NDBT2T124
 - Biệt thự 2 tầng tân cổ điển mái thái 9x17m ở Vĩnh Phúc NDBT2T123
 - Mẫu thiết kế biệt thự 2 tầng mái thái 10x8m tại Thái Bình NDBT2T122
 - Mẫu biệt thự mái thái 2 tầng 3 phòng ngủ 7,5x13m tại Thái Bình NDBT2T126