Biệt thự mini 2 tầng thiết kế độc đáo tại Bình Thuận
Mẫu biệt thự mini 2 tầng của gia đình chú Hùng, ở Lagi, Bình Thuận khiến ai đi qua không khỏi tò mò. Mẫu biệt thự đẹp có kiến trúc lạ, với mái lệch, cách điệu hình chữ A, khác biệt hoàn toàn với những ngôi nhà xung quanh. Hãy dành vài phút để tham quan và khám phá sự độc đáo của Mẫu biệt thự mini 2 tầng độc đáo từ đội ngũ kiến trúc sư của chúng tôi.
Mong muốn về mẫu biệt thự mini 2 tầng của gia chủ
Một gia đình hạnh phúc, điều cốt lõi nằm ở sự quan tâm, chia sẻ của các thành viên trong gia đình. Phần còn lại, kiến trúc, nội thất của ngôi nhà trông chỉ là thứ yếu. Tuy nhiên, một gia đình trọn vẹn, ngoài sự gắn kết về mặt tinh thần, chắc chắn không thể thiếu một ngôi nhà khang trang, sạch đẹp. Ngôi nhà với đầy đủ tiện nghi, có thiết kế kiến trúc độc đáo sẽ giúp các thành viên luôn muốn nhanh chóng trở về để nghỉ ngơi, thư giãn sau mỗi giờ làm việc căng thẳng.
Phấn đấu kiếm sống cả đời, lập gia đình, sinh con, mục đích cuối cùng của chúng ta là được sống cùng những người thân yêu trong một ngôi nhà đẹp, mang lại niềm tự hào, hãnh diện của gia đình. Câu chuyện của chú Hùng, chủ đầu tư kiểu mẫu Biệt thự mini 2 tầng Mẫu nhà mái thái hiện đại diện tích 140m2 là điều mà chúng tôi đang đề cập đến.

Cách đây không lâu, trong một con hẻm bình dị ở vùng ven Lagi Bình Thuận có một ngôi nhà cấp 4 khá xập xệ của một gia đình 3 thế hệ. Vì muốn sở hữu một ngôi nhà khang trang hơn nên gia chủ đã quyết định lựa chọn đội ngũ nhà thầu Gia Bảo Group để mang đến một không gian mới cho cả gia đình.
Tiếp nhận công trình, đội ngũ kiến trúc sư của chúng tôi quyết tâm dành hết tâm huyết và sức sáng tạo để mang đến một công trình giá trị cho gia đình chú Hùng. Sau nhiều tháng Thiết kế và thi công biệt thự mini 2 tầng, cuối cùng trên khu đất cũ đã tọa lạc một công trình đẹp tuyệt vời với tổng kinh phí khoảng 1,9 tỷ đồng.
Mẫu kiến trúc biệt thự mini 2 tầng đẹp lạ mắt
Không cầu kỳ, rườm rà, chỉ nhấn nhá ở phần mái thái chữ A lệch sang một bên nhưng ngôi biệt thự đã khiến bao người qua đường phải một lần ghé qua chiêm ngưỡng.
Kiến trúc biệt thự mini 2 tầng hiện đại và độc đáo
Nhìn tổng thể sẽ thấy ngay Mẫu biệt thự mini 2 tầng Điều này được chia thành hai khối riêng biệt. Hình khối và mảng tường đồ sộ, không phân chia quá nhiều thành các chi tiết nhỏ. Sảnh chính đi vào có khoảng hiên rộng tạo không gian thoáng đãng cho mặt tiền biệt thự. Tầng trên là giếng trời với hình dáng độc đáo nhờ phần mái lệch hình chữ A ở phía trên.
Thiết kế mặt tiền cách điệu: Ngăn chính của Biệt thự mini 2 tầng là sự cách điệu hiện đại và ấn tượng với một nửa mái Thái nhô cao hơn nửa còn lại tạo cảm giác như một mũi tên lao thẳng lên bầu trời bao la như biểu thị cho sự thịnh vượng.

Cùng với phần mái xéo, mỗi nửa không gian chính của tầng lửng cũng mang một màu sắc khác khi nhìn từ bên ngoài. Một nửa mái thấp kín đáo, không có ban công nhưng có lưới thông gió bằng gỗ. Phần mái cao nửa còn lại là không gian mở vô cùng thoáng đãng, toát lên vẻ vừa sang trọng vừa hiện đại.
Ở khối bên phải là không gian phòng khách ở tầng trệt và phòng ở tầng một. Phòng khách có cửa kính lớn, một trong những cách. thiết kế nội thất nhà đẹp, giúp gia chủ dễ dàng sử dụng rèm cửa tự động. Trên tầng 2 là phòng được thiết kế kín đáo, chỉ chừa 1 ô cửa sổ tạo hình tứ giác lệch độc đáo bên ngoài làm điểm nhấn.
Ngoại thất hiện đại hài hòa của biệt thự mini 2 tầng
Trên nền sơn tường trắng, kiến trúc sư sử dụng những đường phào chỉ màu hồng làm điểm nhấn. Bức tường ngăn cách hai khối nhà cũng được thiết kế theo hình bậc thang nhỏ thú vị, làm điểm nhấn trang trí cho mặt tiền tầng 2.
Toàn bộ cửa được sử dụng kính, viền nhôm đen, hài hòa với gam màu trắng của sơn tường.
Mái nhà của Mẫu biệt thự mini 2 tầng Được thiết kế với kiểu dáng chữ A cách điệu, lệch sang một bên. Căn biệt thự vì thế mang đậm nét sáng tạo và hiện đại.
ban công
Lan can ban công được sử dụng kính, chiều cao vừa người, có lan can nhôm chắc chắn giúp bảo vệ an toàn cho gia chủ khi đứng tại khu vực này. Đứng trên ban công, gia chủ có thể phóng tầm mắt ra xa để chiêm ngưỡng khung cảnh thiên nhiên xung quanh ngôi nhà. Đây cũng là nơi gia chủ có thể thoải mái đặt những chậu cây để làm mát không gian biệt thự.
Hệ thống hàng rào cổng
Cổng và hàng rào biệt thự được thiết kế tối giản nhưng vẫn hiện đại và đẹp mắt với điểm nhấn là những bức tường đá khối lớn tạo cảm giác uy nghi và an toàn.
Sân vườn của mẫu biệt thự mini 2 tầng
Do đặc điểm tự nhiên sẵn có của vùng ven biển Bình Thuận nên khu sân vườn được quyết định không chiếm quá nhiều diện tích của ngôi nhà. Tuy nhiên vẫn đủ chỗ cho khu vườn rợp bóng cây xanh tươi mát kết hợp chỗ để xe hay tổ chức tiệc BBQ ngoài trời cho gia đình và bạn bè.
Dưới nhà, kiến trúc sư lát đá vuông màu xanh, cùng tông màu với rèm cửa phòng khách. Một bồn trồng cây nhỏ đặt ngay trước phòng khách tạo cảnh quan xanh mát cho khu vực này.
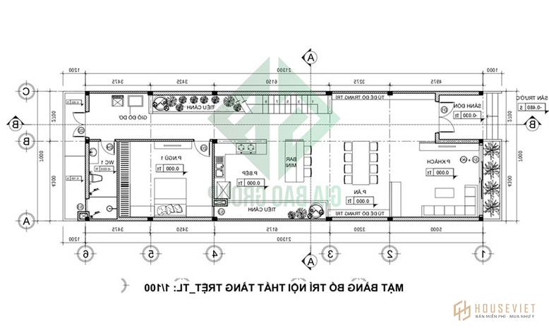
Mặt bằng và công năng của mẫu biệt thự mini 2 tầng
Với quy mô 2 tầng, ngôi biệt thự mini đã mang đến không gian sống thoải mái cho một gia đình nhiều thành viên. Đặc biệt, kiến trúc sư bố trí nhiều tiểu cảnh ở khu vực tầng trệt. Căn nhà rộng lớn trở nên sinh động và thú vị hơn nhờ những chậu cây nhỏ, tiểu cảnh độc đáo.
Nhờ phương án mặt bằng thông thoáng mà ngôi biệt thự mini 2 tầng thêm rộng rãi, thoáng mát và tràn ngập ánh sáng tự nhiên. Căn nhà luôn sáng sủa nên gia chủ không cần sử dụng đèn điện, điều hòa quá nhiều.

Mặt bằng tầng trệt gồm: sảnh lễ tân, phòng khách, phòng ăn, quầy bar mini, tiểu cảnh, phòng ngủ 1, 1 wc,

Xem thêm:
- Chiêm ngưỡng mẫu biệt thự 2 tầng đẹp lung linh tại Bình Phước
- Mẫu Thiết Kế Biệt Thự 2 Tầng Hiện Đại Mái Ngói BT18
- Mẫu biệt thự vườn 2 tầng đẹp và sang trọng tại Nhơn Trạch Đồng Nai
Mặt bằng tầng 2 gồm: 3 phòng ngủ, 1 khu sinh hoạt chung, giếng trời, lô gia. Trong đó, các phòng ngủ đều có phòng tắm và WC riêng tạo sự riêng tư và thuận tiện cho gia chủ.
bản tóm tắt
Chắc hẳn gia đình nào cũng muốn sở hữu Mẫu biệt thự mini 2 tầng đẹp và khang trang như chủ đầu tư ở Lagi, Bình Thuận. Bởi vì, nhà là nơi để trở về, là nơi để được ôm ấp vỗ về mỗi khi mệt mỏi. Nếu bạn đang mơ về một ngôi nhà đẹp cũng như một mẫu biệt thự mini đẹpliên hệ ngay với các kiến trúc sư của chúng tôi để biến ý tưởng của bạn thành hiện thực.