Biệt thự tân cổ điển 3 tầng 8x16m đẹp và sang trọng tại Sài Gòn - SH BTP 0159
Phong cách thiết kế biệt thự tân cổ điển ngày càng nở rộ và chứng tỏ được tính ưu việt của mình với sự gia tăng về mật độ phủ sóng của các mẫu biệt thự tân cổ điển đẹp và đa dạng. Trên diện tích đất 10mx23m, ngôi biệt thự 3 tầng của gia đình chủ đầu tư anh Khánh được thiết kế hoàn hảo từng đường nét với 128m2 (8x16m) mỗi sàn. Theo chia sẻ của gia chủ Khánh, không chỉ mang vẻ đẹp hoài cổ xen lẫn nét tươi mới, phóng khoáng của kiến trúc hiện đại, biệt thự 3 tầng tân cổ điển đẹp 8x16m này còn chinh phục hoàn toàn các thành viên trong gia đình anh và mọi ánh nhìn khác bởi sự khoa học trong cách sắp xếp bố cục.
>>>> XEM NGAY: Các mẫu nhà biệt thự 3 tầng
Trong bài viết hôm nay, Sơn Hà Group xin mời bạn đọc cùng tham khảo chi tiết phương án thiết kế biệt thự sang trọng và đẳng cấp này để hiểu vì sao đây lại là điển hình cho xu hướng thiết kế biệt thự đẹp tại Sài Gòn. . Cùng với đó, nội dung bài viết cũng sẽ giúp bạn có thêm thông tin về phương án bố trí nhà phù hợp cho gia chủ sinh năm 1969.

NỘI DUNG CHÍNH
- Đầu tiên Thông tin dự án biệt thự diện tích 8m x 16m
- 2 Phương án thiết kế kiến trúc theo phong cách tân cổ điển
- 3 Bản vẽ bố trí công năng trên diện tích gần 130m2
Thông tin dự án biệt thự diện tích 8m x 16m
- Tầng hầm: Gara để xe; khu vực kỹ thuật.
- Tầng 1: Phòng khách; phòng bếp; phòng ăn.
- Tầng 2: Bố trí phòng ngủ master và 2 phòng vệ sinh khép kín.
- Tầng 3: Phòng thờ; sân chơi; Phòng ngủ vip; phòng làm việc.
Phương án thiết kế kiến trúc theo phong cách tân cổ điển
“Chất sống” là những gì mà ngôi biệt thự 3 tầng đẹp này mong đợi đối với gia chủ. Tiếp tục cùng chúng tôi đến với phần nội dung này, bạn đọc sẽ hiểu hơn vì sao nhiều ánh mắt bị đánh gục bởi mẫu biệt thự tân cổ điển kiểu Pháp mặt tiền 8m của gia đình anh Khánh.
Biệt thự Sài Gòn SH BTP 0159 được xây dựng với diện tích 128m2 trên khu đất rộng 230m2 (10x23m). Diện tích còn lại được bố trí tiểu cảnh sân vườn mang đến vẻ đẹp trọn vẹn và không gian sống lý tưởng cho gia chủ. Thật vậy, ngôi biệt thự được thiết kế hài hòa giữa đường nét kiến trúc cổ điển phương Tây và nét trẻ trung, tươi mới của kiến trúc hiện đại, mang vẻ đẹp thời thượng, bền vững với thời gian.
Mời các bạn xem thêm phối cảnh 3D của công trình:

Qua phối cảnh công trình có thể thấy ngoại thất ngôi biệt thự toát lên vẻ đẹp thanh thoát, những khuôn mẫu cứng nhắc được xé bỏ để nhường chỗ cho những cách tân phù hợp và tinh tế nhất. Ngoài ra, ngôi biệt thự 3 tầng tân cổ điển này còn cuốn hút ở những chi tiết nhỏ ở chân đầu cột, chân tường với những chi tiết trang trí, hoa văn trang trí, họa tiết điêu khắc cầu kỳ, tỉ mỉ. và sự cân bằng được sắp xếp một cách tế nhị. Chắc hẳn bạn cũng như bao ánh nhìn khác khó cưỡng lại vẻ đẹp quyến rũ được tạo nên từ những đôi phá cách của các KTS Sơn Hà Group. Phải nói rằng mặt tiền của ngôi nhà không chỉ cuốn hút ở những đường nét chi tiết hoa văn, đường gờ phào chỉ đẹp mắt, tinh xảo, thiết kế cân đối, đối xứng theo tiêu chuẩn của kiến trúc cổ điển mà xen lẫn đó là sự đột phá, mới lạ đã tạo nên một vẻ đẹp đẳng cấp, sang trọng nhưng không hề nhạt nhòa, nhàm chán hoa văn như những mẫu biệt thự tân cổ điển khác.

Chúng tôi cũng xin chia sẻ thêm rằng đối với những mẫu thiết kế nhà tân cổ điển, hoa văn trang trí, đường gờ phào chỉ là hạng mục khiến các kiến trúc sư phải hết sức chăm chút, bỏ nhiều công sức và tỉ mỉ. trong từng chi tiết. Cũng dễ hiểu vì sao chi phí xây dựng của kiểu biệt thự này thường cao hơn so với những kiểu biệt thự có cùng quy mô và kiểu cách đơn giản hơn.
Sự cân đối là yếu tố quan trọng để làm nên thành công của bất kỳ thiết kế dự án nào. Trong mẫu thiết kế biệt thự 3 tầng ở Sài Gòn này cũng vậy, các kiến trúc sư đã thiết kế các khối vuông phẳng vô cùng cân đối, đơn giản nhưng vẫn toát lên sự sang trọng. Từ chân đế đến mái vòm là những khối dày và lớn, tạo cho người xem cảm giác an toàn và mát mẻ với độ dày của tường. Vốn là người yêu thích phong cách tân cổ điển, chủ đầu tư anh Khánh đã bị cách trang trí này thuyết phục ngay lập tức.
Về kiến trúc của ngôi biệt thự 3 tầng đẹp này, điểm nhấn cuối cùng không thể không kể đến đó chính là thiết kế mái thái. Cụ thể, phần mái được lựa chọn là mái dốc với gam màu xanh xám nổi bật trên tone màu trắng chủ đạo, tạo cảm giác bắt mắt cho người đối diện. Các kiến trúc sư cũng đã bố trí thêm những ô cửa sổ tròn với kính tráng xanh xung quanh để lấy ánh sáng tự nhiên vào nhà từ trên cao. Hơn nữa, tất cả các mái vòm và cửa sổ đều có tông màu trắng nổi bật trên nền màu xám xanh của mái làm tăng tính đồng bộ cho thiết kế.


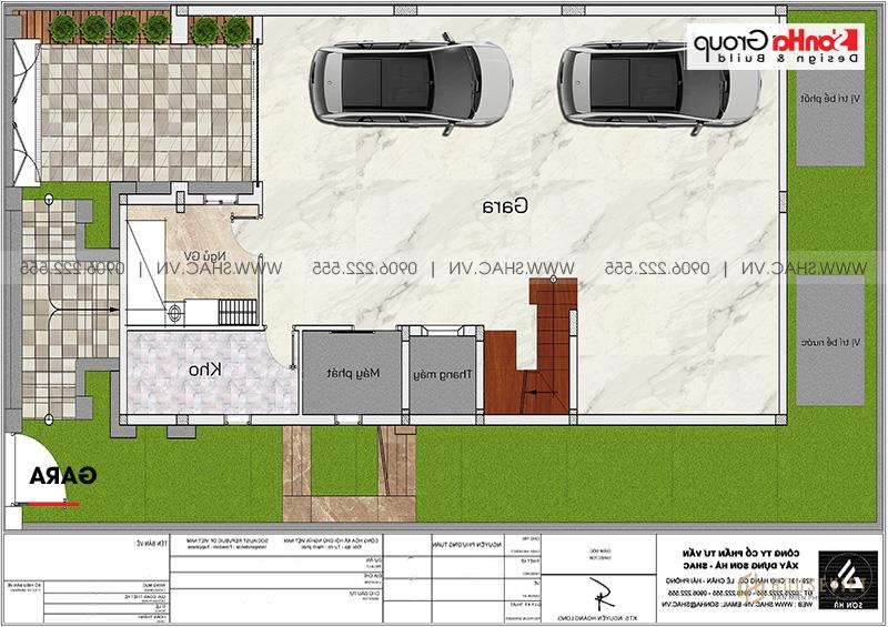
Bản vẽ bố trí công năng trên diện tích gần 130m2
Sau đây là các yêu cầu mặt bằng công năng của biệt thự này:
- Tầng hầm: Gara để xe; khu vực kỹ thuật.
- Tầng 1: Phòng khách; phòng bếp; phòng ăn.
- Tầng 2: Bố trí phòng ngủ master và 2 phòng vệ sinh khép kín.
- Tầng 3: Phòng thờ; sân chơi; Phòng ngủ vip; phòng làm việc.
Mặt bằng công năng chính là một hạng mục trong hồ sơ bàn giao biệt thự mái dốc của chủ đầu tư anh Khánh, bao gồm:
- Bản vẽ chi tiết kiến trúc và phối cảnh 3D ngoại thất.
- Bản vẽ chi tiết nội thất, phối cảnh 3D nội thất.
- Bản vẽ thi công.
- Bản vẽ hệ thống ME (Điện - Nước - Máy lạnh - Thông gió - An ninh, ...)
- Dự toán xây dựng: Chi tiết chi phí xây dựng - Tổng mức đầu tư
- Toàn bộ hồ sơ thiết kế công năng các phòng và kiến trúc đều được tư vấn theo phong thủy và tuổi của chủ đầu tư. Kích thước của các phòng, chiều cao của ngôi nhà và kích thước của cửa đều theo kích thước của phong thủy.
Mời các bạn cùng tham khảo mặt bằng chi tiết từng tầng của ngôi biệt thự này qua bản vẽ chúng tôi giới thiệu dưới đây:







Trên đây là hồ sơ thiết kế biệt thự 3 tầng chúng tôi đã thực hiện cho gia đình chủ đầu tư anh Khánh tại Sài Gòn. Nếu bạn cũng mong muốn sớm sở hữu phương án thiết kế biệt thự khả thi và khoa học như thế này, hãy liên hệ ngay Hotline 0906 222 555 của Sơn Hà Group. Xin cảm ơn quý khách hàng đã theo dõi bài viết.
Để biết thêm chi tiết vui lòng liên hệ:CÔNG TY CỔ PHẦN TƯ VẤN XÂY DỰNG SƠN HÀ (SHAC)Trụ sở chính: Số 318 - 319 HK3 Phố Bùi Viện, Lê Chân, Hải Phòng
- Điện thoại: 0225 2222 555
- Hotline: 0906 222 555
- Email: sonha@shac.vn
Văn phòng đại diện
- Tại hà nội: Số 4/172, Ngọc Hồi, Huyện Thanh Trì, TP. Hà nội
- Ở quảng ninh: Số 289, Phường Giếng Đáy, TP. Hạ Long, Tỉnh. Quang ninh
- Tại đà nẵng: Số 51m Đường Nguyễn Chí Thanh, Phường Thạch Thang. Q. Hải Châu, Tp. Đà Nẵng
- Ở sài gòn: Số 45 Đường 17, Khu B, An Phú, Quận 2, TP. Hồ Chí Minh
- Xưởng nội thất: Số 45 Thông Trực, Nam Sơn. Kiến An, Tp. Hải phòng