Bộ sưu tập những mẫu nhà 2 tầng đẹp hiện đại không thể bỏ qua
Mẫu nhà 2 tầng mái xéo đẹp và hiện đại ghi điểm với lối kiến trúc độc đáo tăng tính thẩm mỹ cho ngôi nhà. Sự kết hợp của những ngôi nhà hai tầng với những phong cách thiết kế khác nhau tạo nên mặt tiền của ngôi nhà tiện nghi và đẳng cấp. Kiến trúc mái lệch có thể sử dụng trong các công trình nhà phố, nhà ống, biệt thự giúp gia chủ có nhiều ý tưởng trang trí cho ngôi nhà của mình. Cùng công ty House Viet khám phá mẫu nhà mái xéo đẹp và hiện đại nhất. phía dưới!
Mẫu nhà 2 tầng mái xéo đẹp hiện đại
Mẫu nhà 2 tầng mái lệch cách điệu trẻ trung, năng động tạo nên sự hiện đại và tiện nghi cho ngôi nhà. Tiếp giáp với phần mái xéo là đường kẻ dọc xanh trắng bắt mắt giúp tạo sự thu hút và ấn tượng cho mặt tiền. Ban công tầng 2 được bố trí đơn giản gồm lan can kính kết hợp với cây xanh tạo cho mẫu nhà 2 tầng đẹp và thoáng mát.



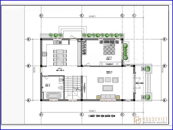
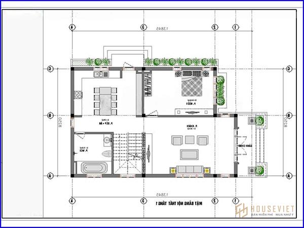
Bản vẽ mẫu nhà 2 tầng mái lệch, bố trí công năng tầng 1 tiện sử dụng. Khu vực phòng ăn là vách ngăn để ngăn cách giữa phòng khách và khu vực nghỉ ngơi của khách. Tầng 2 của mẫu nhà mái lệch chủ yếu là phòng ngủ và khu sinh hoạt chung. Không gian thông thoáng được tận dụng hiệu quả để sở hữu mẫu nhà 2 tầng đẹp và đẳng cấp.


Mẫu nhà 2 tầng hình chữ I mái xéo độc đáo.
Mẫu thiết kế nhà 2 tầng hình chữ L kết hợp với mái xéo tạo nên nét kiến trúc độc đáo và cuốn hút. Chiều dài hình chữ L được tận dụng làm khu để xe kết hợp sân cho các thành viên trong gia đình sinh hoạt. Tầng trên được chiều dài bố trí làm khu vực thưởng trà, ngắm cảnh tạo không gian gần gũi với thiên nhiên.


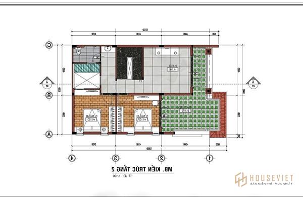
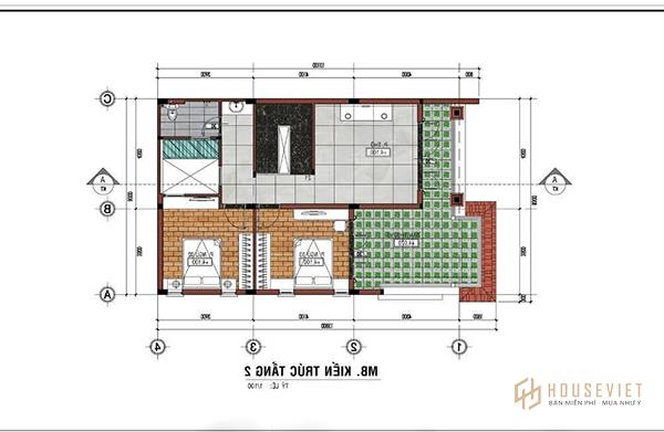
Mẫu nhà 2 tầng mái xéo hiện đại dưới đây được bố trí mặt bằng tầng 2 gồm 2 phòng ngủ, phòng thờ, phòng vệ sinh và khu sinh hoạt chung. Khu vực phòng khách được phân bổ gần mặt tiền tạo tầm nhìn rộng mở xung quanh. Hai phòng ngủ có diện tích tương đương nhau được ngăn cách với nhau bằng một bức tường kiên cố.


Mẫu thiết kế nhà 2 tầng mái lệch sang trọng.
Mẫu nhà ống có mặt tiền hạn chế gia chủ có thể tích hợp thêm phần mái lệch để tăng tính thẩm mỹ. Phần mái được vát chéo và có khe thoáng để lấy sáng cho mẫu nhà 2 tầng mái thái. Việc áp dụng mái lệch cho nhà ống sẽ khiến diện tích tầng 2 tuy nhỏ hẹp nhưng vẫn đảm bảo được nhu cầu sinh hoạt của gia đình.



Mẫu nhà 2 tầng mái lệch. Hình ống chọn ban công và cửa sổ lắp kính để tạo không gian thoáng đãng. Điều này giúp mặt tiền tầng 2 không bị gò bó phần mái xéo phía trên. Yếu tố thẩm mỹ và tiện nghi được kết hợp hài hòa giúp trang trí ngôi nhà trở nên thu hút và độc đáo.


Mẫu nhà biệt thự 2 tầng mái xéo siêu đẳng cấp
Mẫu biệt thự 2 tầng sang trọng có sự kết hợp hài hòa giữa mái lệch và mái thái đầy cuốn hút. Tông màu pastel chủ đạo kết hợp với hệ thống cửa sổ hoành tráng tạo nên thiết kế Nhà 2 tầng mái xéo Siêu cấp. Mẫu thiết kế biệt thự dưới đây kết hợp sân vườn rộng rãi thoáng mát như một ngôi biệt thự lạc vào truyện cổ tích.
Mẫu nhà 2 tầng mái xéo sử dụng cửa kính trong suốt ngoài ban công giúp bạn dễ dàng quan sát bên trong. Nội thất biệt thự 2 tầng được bố trí cây xanh, màu sắc nhã nhặn tạo nên tổng thể đồng nhất.




Mẫu thiết kế nhà 2 tầng mái lệch diện tích 100m2.
Mẫu nhà 2 tầng diện tích 100m2 với thiết kế mái lệch là điểm nhấn cho kiến trúc ngôi nhà. Cửa sổ lớn và ban công rộng đón nắng tạo sự thông thoáng cho mẫu nhà 2 tầng. Mặt tiền mẫu nhà mái lệch đẹp được sơn màu trung tính tạo sự gần gũi và đẳng cấp cho ngôi nhà. Những chậu cây nhỏ được đặt trên ban công tầng 2 giúp tăng tính thẩm mỹ cho ngôi nhà.
>>> Khám phá thêm các mẫu nhà 2 tầng 100m2 đẹp, hiện đại tại đây



Bản vẽ nhà 2 tầng mái lệch đẹp Cách bố trí nội thất khu vực tầng 1 và tầng 2 khoa học. Phòng khách, phòng ngủ, phòng ăn được ngăn cách tạo sự riêng tư khi sử dụng. Vách, vách ngăn vừa dùng để ngăn cách các phòng mà còn giúp tăng tính thẩm mỹ cho ngôi nhà.


Mẫu nhà 2 tầng mái xéo đẹp hiện đại đang là xu hướng kiến trúc được áp dụng rộng rãi trong thiết kế. House Viet Mong rằng mẫu nhà 2 tầng mái lệch sẽ giúp gia chủ có thêm ý tưởng trang trí không gian ấn tượng. Quý khách có nhu cầu tìm hiểu thêm về các mẫu nhà 2 tầng hiện đại có thể liên hệ Hotline 1800 6015. Đội ngũ kiến trúc sư của House Viet sẽ giúp bạn thực hiện một công trình nhà ở hoàn thiện nhất.
Các bài viết khác:
- 25 Mẫu thiết kế nhà 2 tầng mái thái đơn giản đẹp hiện đại
- Mẫu thiết kế nhà 2 tầng giá 400 triệu được ưa chuộng nhất
House Viet - Vững niềm tin