Các bản vẽ nhà phố rộng 8m mặt tiền hiện đại 4 phòng ngủ xu hướng 2022
Bài viết này mình cập nhật 1 trong 300 hồ sơ nhà phố mặt tiền 8m 2 tầng có 4 phòng ngủ. Nhằm giúp anh chị lựa chọn kiểu nhà đẹp vóc dáng hiện đại mà chuẩn bị cho thời gian tối 2022. Ngoài ra còn có
- Các bộ bản vẽ mẫu nhà 2 tầng đẹp phong cách hiện đại có sẵn mới
- 13 bộ bản vẽ thiết kế nhà biệt thự 2 tầng chi phí 1-1.5 tỷ
- Điểm danh những mẫu nhà hình chữ L đẹp nhất Việt Nam phần 3
- 50 mẫu thiết kế nhà vườn cấp 4 đẹp 1 2 tầng trệt và gác lửng
- Mẫu nhà biệt thự 3 tầng tân cổ điển mặt tiền 15m sâu 10m đẹp anh Quân
Mẫu nhà phố mặt tiền 8m 2 tầng chị Thúy xu hướng 2022
Bản vẽ thiết kế nhà phố 2 tầng 8m này có 4 phòng ngủ diện tích xây 120m2. Kiến trúc kểu mái lệch xéo so le nằm ngang rộng 8m kiến trúc trẻ trung hiện đại. Gửi anh chị phối cảnh mẫu nhà 2 tầng 8×15 mẫu mới nhất 2022 xu hướng này

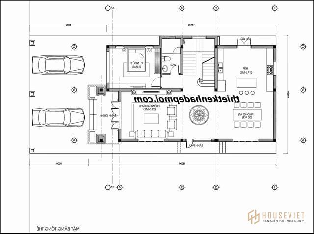
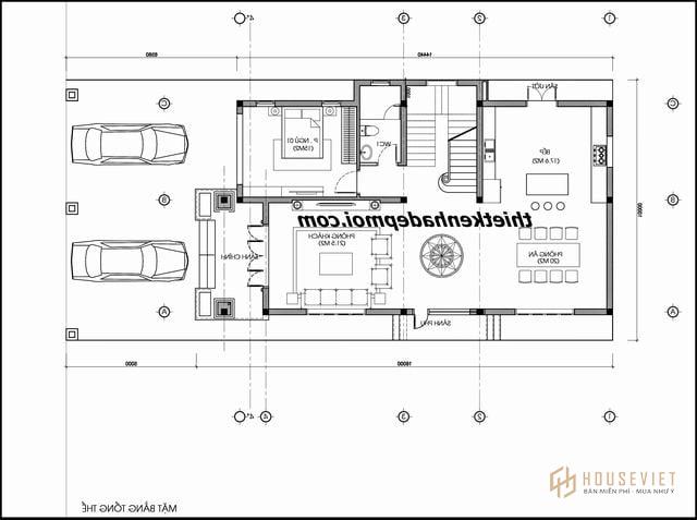
Thông tin mẫu nhà 2 tầng mặt tiền 8m hiện đại mới
Kiểu nhà phố mặt tiền 8m 1 trệt 1 lầu ý tưởng có chừa sân trước lưu không. Vừa phù hợp với mật độ xây dựng xin phép cất nhà nóc xéo hiện đại. Vừa có ram dốc để ô tô ra vào dễ dàng. Với ý tưởng thiết kế nhà có nhiều cửa sổ kính cường lực thoáng. Tối ưu thêm kiến trúc xanh cho nhà mặt tiền ngang 8m hai tầng.
- Tầng 1: Gara để ô tô, phòng khách, 1 phòng ngủ vợ chồng, cầu thang, phòng bếp ăn 2 wc
- Tầng lầu 1 phòng thờ 3 phòng ngủ 1 sinh hoạt chung
- Diện tích sàn xây dựng rộng ngang 8m dài 15m
- Chủ đầu tư chị Thúy
- Năm thực hiện 2021 năm thi công 2022
- Đất rộng 10m dài 20m phía sau hơi xéo xíu

Tư vấn xây nhà 2 tầng mặt tiền 8m 4 phòng ngủ mới
Nhà chị Thúy có gia đình gồm 5 thành viên nên cần xây nhà 2 tầng có phòng ngủ ở tầng 1 thật rồng có wc khép kín. Không gian còn lại thiết kế nhà gara và cầu thang cùng phòng ngủ 1 bên phải hình ảnh. Cầu thang và phòng wc chung ở gần cầu thanh nhà phố mặt tiền 8m hiện đại này. Còn 1 bên dành cho không gian phòng khách thật rồng có bar mini liên thông với bàn ăn và phòng bếp bên trái. Trên tầng 2 hồ sơ thiết kế nhà ngang 8m dài 15m có 3 phòng ngủ. Trong đó phòng thờ chồng lên phòng khách ở phía dưới và phòng sinh hoạt chung nhỏ 18m2 cạnh cầu thang.
Mẫu nhà 2 tầng mặt tiền 8m hiện đại hình chữ L anh Cầu
Mẫu nhà đẹp 2 tầng mặt tiền 8m thứ 2 là nhà mái thái lợp ngói. Bản vẽ thiết kế xây dựng hoàn thiện từ năm ngoái anh Cầu và anh Nam. Có những kiến trúc cùng 1 thế đất thiết kế chữ L. Cho gia đình anh Nam ở thành phố Thủ Dầu Một Bình Dương. Nay cập nhật gộp lại các Phương án nhà chữ L 1 trệt 1 lầu này lại. Để anh chị tham khảo công năng xây nhà 7x16m hay rộng 8m trên đất tương đương hình chữ L

Bản vẽ tổng thể quy hoạch nhà phố mặt tiền 8m sâu 30m
Mẫu nhà phố mặt tiền 8m 2 tầng mái thái dưới đây chúng tôi gửi đến 3 phương án kiến trúc nhà đẹp chữ L 1 trệt 1 lầu lợp ngói mang nét dịu dàng thanh thoát dễ nhìn để quý vị hình dung. Phương án thiết kế mẫu nhà 2 tầng mặt tiền 8m đẹp này do KTS công ty thiết kế xây dựng Nhà đẹp mới thiết kế cho gia đình anh Nam ở Bình Dương năm ngoái. Thân mời quý vị cùng tham khảo mặt bằng tổng thể như sau

Thông tin mẫu nhà 2 tầng mặt tiền 8m đẹp xây xong
Mẫu thiết kế nhà đẹp 2 tầng mặt tiền 8m dài sâu đến 30m. Trong đó phương án thiết kế nhà chữ L 2 tầng mái thái ngang hơn 7,2m sâu 15,5m. Tính cả sảnh hiên trước còn phía sau chừa lại 2m. Làm kho để vật dụng linh tinh và sân vườn mini trồng rau thoáng.

Cần xây nhà 2 tầng đơn giản mái thái có 3 đến 4 phòng ngủ chi phí 1 tỷ đến 1.5 tỷ thì bấm xem thêm bản vẽ chi tiết và mẫu mã TẠI ĐÂY mà chọn.
Phối cảnh mẫu nhà phố mặt tiền 8m 2 tầng kiểu biệt thự mini
Mẫu nhà phố mặt tiền 8m 1 trệt 1 lầu mái thái thiết kế chừa sân trước rất rộng lên đến 12,6m. Phía trước cổng thiết kế bố trí thêm 1 kiot bán hàng. Khác với những mẫu nhà chữ L nông thôn đẹp trước. Thì giải pháp thiết kế nhà ngang 8m 2 tầng mái thái. Có diện tích xây dựng mỗi sàn diện tích hơn 100m2. Chính vì thế nên cũng có thể xem đây là một trong những mẫu biệt thự mini trên diện tích 100m2. Kết cấu khung kèo mái ngói kiểu biệt thự phố 1 trệt 1 lầu mái thái đẹp thông thoáng nhất hiện nay.

Phối cảnh mẫu nhà đẹp 2 tầng rộng 8m mặt phố bán hàng anh Nam

Phương án 1 cho mẫu nhà 2 tầng chữ L 100m2 mái thái đơn giản thiết kế xung quanh trước sau có sân rộng. Hai bên hông chừa lại 1 bên 0,4m x 2 để quy hoạch xây tường rào và giúp cho ngôi nhà thoáng có lối đi 1 bên cũng như đổ viền mái Sê Nô thu nước tránh mưa hắt sang nhà hàng xóm. Phương án mẫu thiết kế nhà 2 tầng rộng 8m anh Nam có hệ mái đua ra dài qua hai bên mái dốc xuôi trên 37 độ. Giúp thoát nước nhanh chống ẩm cho trần nhà. Vừa giúp tránh mưa hắt vào cửa sổ cũng như che mát cho sảnh trệt ở dưới.
Mặt bằng mẫu nhà 2 tầng mặt tiền 8m chữ L 4 phòng ngủ thoáng
Diện tích xây dựng mẫu thiết kế nhà phố 2 tầng chữ L 7,5×16 sàn trệt. chừa bên hông có một khoảng trống để xe ô tô 7 chỗ. Mặt bằng nội thất nhà đẹp 2 tầng hình chữ L mái thái Bình Dương. Có 1 phòng khách rộng kết hợp với tiền sảnh chính bên ngoài phía mặt tiền nhà đẹp 8m rộng 22m2. Tiếp theo không gian dãy phía bên trái chính là cầu thang phòng tắm vệ sinh chung. Cho cả gia đình phía sau cùng bố trí 1 phòng ngủ cho ba mẹ già anh Nam vì không tiện leo cầu thang.

Bản vẽ thiết kế nhà mặt tiền 8 mét tầng 2
Còn lại không gian bên tay trái lối cổng chính đi vào thiết kế không gian bếp ăn liên thông kết nối với tiền sảnh phụ rộng phía bên hông chữ L lấy sáng và gió mát tự nhiên thông qua 2 cửa sổ rộng bên hông. Gi ữa phòng bếp và bàn ăn có vách ngăn có thể thiết kế 1 tủ bar rượu vang cũng được hay thêm kệ Tivi khi thưởng thức món ăn ngon có thể nghe thông tin thời sự.

Mặt bằng tầng lầu mẫu nhà đẹp 2 tầng mặt tiền 8m mái thái anh Nam thiết kế có 1 phòng thờ rộng kết hợp với phòng sinh hoạt chung rộng 16m2 trong đó tủ thờ thiết kế tường âm treo lên ngang đầu tạo sự nghiêm trang lịch sự.

Phối cảnh nhà mái thái 2 tầng mặt tiền rộng 8m góc view khác
Mẫu nhà 2 tầng chữ L rộng 8m diện tích 100m2 ngang 8m mặt tiền thiết kế theo phong thủy hướng Tây Nam. Cung Phục Vị hợp với mệnh Kim tuổi Tân Hợi 1971 anh Nam nên hướng phòng thờ cũng view ra ban công bên ngoài hướng mặt tiền trùng với hướng nhà và cửa chính ” Môn mệnh tương phối” chuẩn theo phong thủy. Nếu anh chị năm 2021 không hợp tuổi xây nhà thì mượn tuổi cúng động thổ như 1952 – 1954 – 1963 – 1970.. chẳng hạn

Không gian nhà phố chữ L 2 tầng mặt tiền 8m phía trên
Ngoài ra bản vẽ thiết kế nhà mặt tiền 8m 2 tầng ở Bình Dương tầng lầu trên. Còn có 1 phòng ngủ master cho vợ chồng anh Nam có ti vi , có bàn làm việc, tủ kệ quần áo, bàn làm đẹp.. view ra hướng ban công bên phía chữ L mát mẻ.
Nhận xét về mẫu nhà phố mặt tiền 8m hai tầng lợp ngói này
Phía sau cùng mẫu nhà đẹp 2 tầng mặt tiền 8m anh Nam cũng thiết kế 2 phòng ngủ cho con. Không gian rộng rãi thoải mái có 2 ban công view ra phía sau. Cách lấy sáng và gió mát tự nhiên từ hướng Đông Nam. Còn lại là sảnh tầng và 1 phòng giặt tắm vệ sinh chung cho tầng lầu. Phòng vệ sinh thiết kế rộng 10m2 chia làm 3 ngăn, 1 ngăn là vệ sinh răng miệng, rửa mặt, 1 phòng tắm và 1 wc và lối thoát hiểm lên mái bố trí téc nước và máy nước nóng lạnh mái bê tông cốt thép lợp ngói thủy tinh lấy sáng cho khu vực bên dưới nội thất nhà đẹp tầng 2 anh Nam.
Phương án 2 mẫu nhà 2 tầng mặt tiền 8m anh Cầu
Phương án thiết kế nhà phố mặt tiền 8m 2 tầng dưới đây. Dành cho khu đất có chiều ngang mặt tiền 7m – 8m nhưng dài sâu ngắn hơn. Phương án thiết kế nhà chữ L 2 tầng của anh Cầu cũng ở thành phố Thủ Dầu Một luôn. Thiết kế lùi ra phía sau chừa khoảng sân vừa đủ sinh hoạt vui chơi và để xe cũng như trồng cây xanh.
Phối cảnh mẫu nhà đẹp 2 tầng mặt tiền 8m anh Cầu
Mẫu thiết kế nhà 2 tầng mặt tiền 8m sâu 18m trở lên có thể áp dụng khu đất như vậy được. Mẫu nhà phố mái thái 2 tầng chữ L phương án 2 này cũng có mặt bằng tương đương 4 phòng ngủ 1 phòng thờ giống mẫu nhà anh Nam. Tuy ngoại thất có phần đơn giản tiết kiệm hơn bởi ban công nhỏ hơn so với phương án 1 anh Nam lựa chọn.

Phương án 2 cho mẫu nhà chữ L 2 tầng mái thái đẹp có sân trước rộng 8m phía sau chừa 1m cho thoáng bên hông có lối đi 1m ra sau tùy theo cốt nền nhà và khu đất thấp hay cao mà có thể nâng chiều cao móng sao cho thông thoáng cao rao hiện đại và mát mẻ.
Phương án 3 cho mẫu nhà phố mặt tiền 8m 2 tầng mái ngói
Phương án 3 của mẫu nhà đẹp 2 tầng mái thái mặt tiền 8m nhiều chủ nhà ưa thích hơn. Tuy nhiên kinh phí để xây mẫu biệt thự 2 tầng mái thái mặt tiền 8m cao gần gấp rưỡi vì xây hết đất. So cới mẫu thiết kế nhà 2 tầng chữ L đẹp anh Nam. Bởi kiến trúc kiểu biệt thự mini 1 trệt 1 lầu 2 mặt tiền và tầng lầu đua ra hai bên Trước sau. nên diện tích xây dựng mẫu nhà biệt thự 2 tầng mái ngói cũng khoảng 1,7 tỷ mới xây đủ cho đơn giá năm 2021

Thứ hai kiến trúc nhà đẹp 2 tầng phương án 3 áp dụng cho khu đất 2 mặt tiền sẽ đẹp hơn. Và đất phải rộng hơn 8m mới có lối đi 1 bên mặt tiền phụ thông thoáng. Ta áp dụng cho biệt thự phố 1 trệt 1 lầu 2 mặt tiền 8×16 thích ứng hơn và có gara ô tô trong nhà. Nói chung tùy theo khu đất của bạn chiều rộng và dài như thế nào cũng cócả. Cocept phương án thiết kế nhà phố đẹp sao cho tiết kiệm được. Qúy vị hãy yên tâm mà chuẩn bị xây sau dịch
Các mẫu biệt thự phố 3 tầng mặt tiền 8m khác
Trường hợp anh chị tính xây nhà mái thái 2 tầng mặt tiền 8m năm ngoái xây xong. Hay kiến trúc biệt thự phố 3 tầng mặt tiền 8m cao cấp hơn. Đừng vội vàng có thể tham khảo thêm biệt thự mái thái anh Tháp và ông Trung như 2 hình dưới. Nếu cần hồ sơ bản vẽ tham khảo chúng tôi sẽ gửi qua zalo vì 2 mẫu nhà đẹp 3 tầng mặt phố rộng 8m chỉ làm việc với khách Vip hơn


Trên đây là những phương án thiết kế kiến trúc nhà đẹp 2 tầng hình chữ L rộng 8m. Bản quyền của NHÀ ĐẸP MỚI phụ trách hồ sơ thiết kế thi công xong. Ccho gia đình anh Nam anh cầu ở Bình Dương. Anh chị cần thì đi xem thực tế nếu có nhu cầu xây nhà mới trước mà chuẩn bị
Cập nhật các mẫu nhà phố mặt tiền 8m 2 tầng đẹp
Đầu năm 2021 chi phí tất cả các vật liệu xây dựng + nhân công đều tăng cao. Trong đó nhân công xây nhà hiện cũng khan hiếm. Đặc biệt đơn giá tăng cao nhất từ trước đến nay 30% là sắt thép. Mình cập nhật thêm các mẫu nhà phố mặt tiền 8m hai tầng. Hay các kiểu nhà mái bằng hiện đại 1 trệt 2 lầu sân thượng đẹp 2021. Anh chị bấm vào các bài viết có hình ảnh đính kèm xem chi tiết
Đầu tiên là mẫu nhà biệt thự phố 3 tấm mặt tiền 8m chị Đài
Do nhu cầu cần xây nhà có 5 phòng ngủ trên đất mặt tiền phố trong khu đô thị mới. Nên chị Đài cần xây nhà tân cổ điển mái ngói hết bề ngang đất. Khác với nhà chữ L nên phương án kiến trúc Mái kiểu Ta Tuy nghĩa là mái trước vuông góc với mái sau và giải pháp âm sê nô thu nước. Anh chị xem mặt tiền thiết kế biệt thự 3 tầng 8m phố như hình. Bấm xem đầy đủ nhà này TẠI ĐÂY mà chọn

Bản vẽ nhà phố tân cổ điển 3.5 tầng mặt tiền 8m chị My
Đây là nhà phố 3.5 tầng kiến trúc Victorian style Anh quốc. Tầng trệt phương án nhà mặt phố 8m biệt thự Tân Phú Sài Gòn có gara. Hình ảnh nhà chị My như sau

Xem bản vẽ kiến trúc biệt thự phố bán cổ điển mini 1 trệt 2 lầu 1 sân thượng phong cách Anh. Của gia đình chị My tại bài viết hoàn chỉnh dưới đây
- Bản vẽ biệt thự phố 4 tầng mặt tiền 8m bán cổ điển Chị My Sài Gòn
Mẫu nhà 2 mặt tiền 8 mét mái thái 1 trệt 1 lửng anh Hùng
Nhà anh Hùng chị Việt thiết kế xây trên đất 2 mặt tiền 8m. Ý tưởng xây nhà vườn ở vùng ven đô ngay ngã 3 đường. Dù là 1 trệt 1 lửng nhưng kiểu 2 tầng mái thái. Anh chị xem mẫu nhà có tầng lầu mặt tiền 8m này

- Xem một trong những mẫu nhà ngang 8m đẹp nhì chị Việt anh Hùng
Mẫu nhà phố cấp 4 mặt tiền 8m mái lệch 2021
Mẫu nhà phố đẹp 2 tầng ngang 8m trên có thể xem là một trong những kiến trúc biệt thự mini 2021. Bản vẽ xây đẹp hình chữ L 1 trệt 1 lầu có sân vườn. Ý tưởng lợp ngói thoáng mát hiện đại kinh phí đầu tư xây nhà cũng vừa phải trên 1.2 tỷ trên dưới. Còn nếu anh chị có tài chính khoảng 700 đến 800 thôi. Vẫn có đất phố mặt tiền 8m hẻm ở Phường. Hay cần xây nhà 1 lầu ở vùng ven đô cần 3 phòng ngủ 1 phòng thờ. Thì xem hồ sơ nhà chị Oanh mà chọn xây năm 2021.
Các bản vẽ xây nhà kích thước ngang 8x14m hay 8x15m
Ngoài ra còn có các mẫu nhà phố 2 tầng 1 trệt 1 lầu 1 sân thượng 5m mặt tiền mái bằng. Anh chị xem mẫu em Bình Vũng Tàu mà chọn thêm. Thậm chí cần xây nhà mái nhật ngang 8m kiểu hiện đại trên đất 10m. Thì mình có bản vẽ nhà này

Kiểu nhà biệt thự 2 tầng bề ngang 8m kiểu châu âu
Đây là hồ sơ thiết kế nhà biệt thự ngang 8m x 15m = 120m2 4 phòng ngủ anh Phương. Đã xây xong năm ngoái cũng rất phù hợp cho anh chị cần 4 phòng ngủ. Phong cách kiến trúc châu âu pha chút bán cổ điển nhưng hiện đại.

Biệt thự mini 1 trệt 1 lầu này đổ sàn áp mái mới thi công lợp ngói. Gửi thêm tầng 1 mặt bằng nhà 2 tầng rộng 8m anh Phương này thêm. Còn cần chi tiết alo mình

Các bản vẽ xây nhà mặt tiền ngang 8m khác
Ngoài các hồ sơ thiết kế mặt tiền nhà đẹp 8m hai tầng trên. Tùy theo phong thủy hướng đất và nhu cầu xây nhà lầu đơn giản 4 phòng ngủ. Hay các thế đất bề ngang nhà 8m 2 tầng nhưng chiều sâu ngắn. Hiện tại công ty mình có các mẫu hồ sơ như này
- Bản vẽ nhà 2 tầng ngang 8m đẹp nhưng xây rộng 7m chừa 2 bên
- Hồ sơ xây nhà 2 tầng 8×10 = 80m2
- Thiết kế nhà 8×12 1 trệt 1 lầu
- Nhà hiện đại mặt phố rộng 8m
- Mẫu nhà mặt tiền 8m mái thái 2 tầng
- Nhà 2 tầng ngang 8m có gara ô tô
- Bản vẽ nhà 2 tầng 8x18m 5 phòng ngủ
- Biệt thự mini 2 tầng mái Nhật chữ L anh Thiện

Các bạn cần xây nhà biệt thự mini có sân thượng thì xem nhà anh Thiện đã xây xong. Diện tích xây nhà ngang 8m 2 tầng 1 tum 120m2 như hình. Ngoài ra còn nhiều mẫu mã nhà 1 trệt 1 lầu sân thượng hiện đại và mái ngói khác. Có không dưới 300 hồ sơ thiết kế phong thủy khác nữa. Kết nối 1800 6015 có zalo để gửi mẫu thêm ứng với đất 1 hay 2 mặt tiền nhà đẹp 8m hai tầng của các bạn. Chúc ngày mới vui vẻ . Thân.!