Các mẫu nhà cấp 4 mái thái 3 phòng ngủ đẹp giá rẻ
Nhà cấp 4 mái thái 3 phòng ngủ luôn được rất nhiều khách hàng yêu thích và lựa chọn. Lí do lựa chọn mẫu nhà cấp 4 kiểu này vì với 3 phòng ngủ sẽ đủ có thể đáp ứng được đầy đủ nhu cầu sử dụng của rất nhiều gia chủ. Chúng ta hãy cùng phân tích một chút lí do tại sao nhiều người lại chọn kiểu nhà cấp 4 mái thái 3 phòng ngủ nhé. Trong phần này các bạn có thể thấy có 3 yếu tố chính đó là mái thái và yếu tố 3 phòng ngủ.
Tại sao mọi người hay lựa chọn nhà cấp 4 mái thái?
Nhà cấp 4 mái thái được rất nhiều người yêu thích và cũng được Nhà đẹp trình bày rất nhiều trong các bài viết khác của chúng tôi. Lí do chính là nhà cấp 4 mái thái rất dễ tạo hình, rất dễ thiết kế để có thể cho ra được một sản phẩm nhà cấp 4 mái thái đẹp. Với kiểu mái thái hay mái nhật các bạn sẽ rất dễ dàng trang trí, nhấn nhá và chấm phá cho căn nhà của mình thêm nổi bật nhất. So với các mẫu nhà cấp 4 mái bằng thì nhà cấp 4 mái thái luôn được rất nhiều người lựa chọn. Tuy nhiên chi phí thi công cho những căn nhà cấp 4 mái thái cũng không hề thấp nhé các bạn.
Tại sao lại phải cần 3 phòng ngủ
Yếu tố thứ 2 là tại sao lại lựa chọn 3 phòng ngủ mà không phải là 2 phòng ngủ hoặc 4 phòng ngủ. Các bạn thử nghĩ xem những mẫu nhà cấp 4 mái thái 3 phòng ngủ thường được xây dựng tại các vùng quê. Có thể bạn xây dựng cho gia đình và cũng có thể bạn ở cùng với ông bà. Nếu ở cùng với ông bà thì ngoài 2 vợ chồng cần một không gian riêng thì con cái và ông bà cũng cần một không gian riêng. Như vậy 2 vợ chồng dùng 1 phòng ngủ, con cái 1 phòng ngủ, ông bà dùng 1 phòng. Như vậy chúng ta cần phải tới 3 phòng ngủ mới có thể đáp ứng được hết yêu cầu của gia chủ. Nếu các bạn không ở cùng với ông bà mà lại ở độc lập thì cũng có thể vẫn cần tới 3 phòng ngủ. Vì nếu các con của bạn có nam và có nữ thì sau này các cháu lớn lên cũng cần mỗi người 1 phòng. Như vậy thì nhà cấp 4 mái thái 3 phòng ngủ là một phương án hợp lí nhất.
Có những kiểu nhà cấp 4 mái thái 3 phòng ngủ như thế nào
Nếu để phân loại các kiểu nhà cấp 4 có 3 phòng ngủ thì có lẽ khá nhiều. Chúng ta có thể phân loại theo đơn giá xây dựng, có thể phân loại theo kiểu dáng căn nhà. Tuy nhiên Nhà đẹp xin được giới thiệu ngắn gọn cho các bạn những mẫu nhà cấp 4 có 3 phòng ngủ mà chúng tôi đã thiết kế trong thời gian vừa qua. Vì nếu mà giới thiệu hết cho các bạn có lẽ có rất nhiều mẫu nhà cấp 4 phù hợp.
Nhà biệt thự cấp 4 mái thái có 3 phòng ngủ tại Phú Thọ
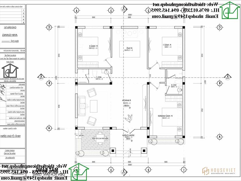
Đầu tiên chúng ta cần phải kể đến mẫu nhà cấp 4 mái thái có 3 phòng ngủ được Nhà đẹp thiết kế cho gia chủ tại Phú Thọ. Đây là kiểu nhà mái thái đang rất thịnh hành trong năm vừa qua. Được rất nhiều gia chủ lựa chọn và thiết kế mẫu nhà cấp 4 này xứng đáng với danh từ nhà cấp 4 quốc dân. Xin mời các bạn cùng tham khảo:
Thông tin chi tiết về mẫu nhà cấp 4 mái thái 10x11m
- Chủ đầu tư: anh Giang
- Địa điểm xây dựng: Phú Thọ
- Diện tích nhà: 10x11m
- Diện tích sử dụng: 110m2
- Chi phí dự kiến: 600– 700 triệu


Xem thêm: https://thietkethicongnhadep.net/mau-nha-dep/mau-nha-san-dep/
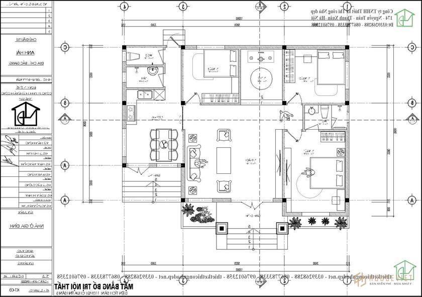
Và đây là phần công năng bố trí nội thất để các bạn có thể tham khảo nhé. Các bạn có thắc mắc gì có thể liên hệ với Nhà đẹp để được giải đáp.
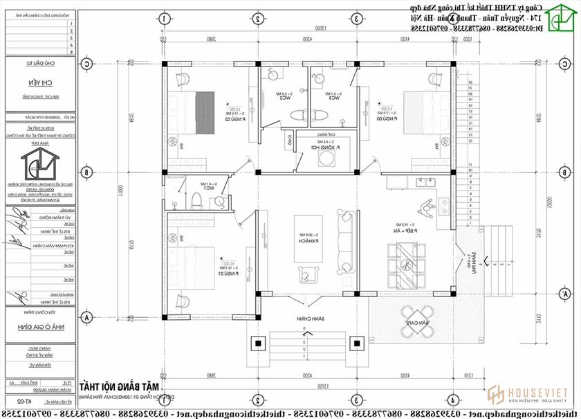
Biệt thự nhà vườn cấp 4 mái thái 3 phòng ngủ tại Thạch Thất
Gia chủ hiện tại đang sinh hoạt và sinh sống ở thủ đô Hà Nội. Hiện tại đang sở hữu một mảnh đất khá rộng có diện tích hơn 500m2 và ý tưởng là xây một mẫu nhà cấp 4 để cuối tuần, ngày nghỉ về nghỉ dưỡng. Công trình có địa chỉ tại Thạch Thất – Hà Nội
- Chủ đầu tư: Chị Yến
- Địa điểm xây dựng: Thạch Thất
- Kích thước nhà: 11x14m
- Diện tích xây dựng: 130m2 (chưa tính diện tích sảnh)
- Số phòng ngủ: 3 phòng
- Chi phí dự kiến: 900 triệu


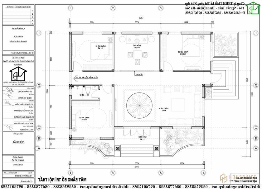
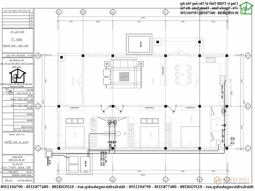
Mẫu biệt thự mái thái 3 phòng ngủ tại Thái Nguyên
Có lẽ đây là công trình mà tôi gặp được một gia chủ rất nghiêm túc trong việc xây nhà. Từ việc lựa chọn thiết kế, từ việc làm công năng đều tính toán và cẩn thận. Kể cả trong quá trình xây dựng Nhà đẹp cũng đã lên giám sát để kiểm tra xem có vấn đề gì về thi công hay không? Công trình có địa chỉ tại Thái Nguyên với kiểu dáng nhà cấp 4 mái thái 3 phòng ngủ. Giá trị xây dựng dự kiến là 800 triệu xin mời các bạn tham khảo.
- Chủ đầu tư: Anh Ca
- Địa điểm xây dựng: Thái Nguyên
- Kích thước nhà: 11x14m
- Diện tích xây dựng: 136m2 (tính cả diện tích sảnh)
- Số phòng ngủ: 3 phòng
- Chi phí dự kiến: 850 triệu


Nhà cấp 4 mái thái đẹp có 3 phòng ngủ tại Hà Nam
Căn nhà cấp 4 mái thái 3 phòng ngủ cũng là một trong những căn nhà đầy duyên nợ, tôi cũng đã về trao đổi với gia chủ và cũng được nghe những câu truyện xây nhà của gia chủ. Gia chủ ở Hà Nội có xây một căn nhà vài chục năm trước và đã thuê những Kiến Trúc Sư hàng đầu của Việt Nam thiết kế. Gia thiết kế vài chục năm trước đã là 1 triệu/1m2 ngang với giá xây dựng. Thế mới biết được gia chủ rát trân trọng những giá trị của bản vẽ thiết kế.
- Chủ đầu tư: Chú Dụng
- Địa điểm xây dựng: Duy Tiên – Hà Nam
- Kích thước nhà: 11.5x14m
- Diện tích xây dựng: 161m2 (tính cả sảnh)
- Chi phí dự kiến: 900 triệu
- KTS: Phạm Văn Chỉnh


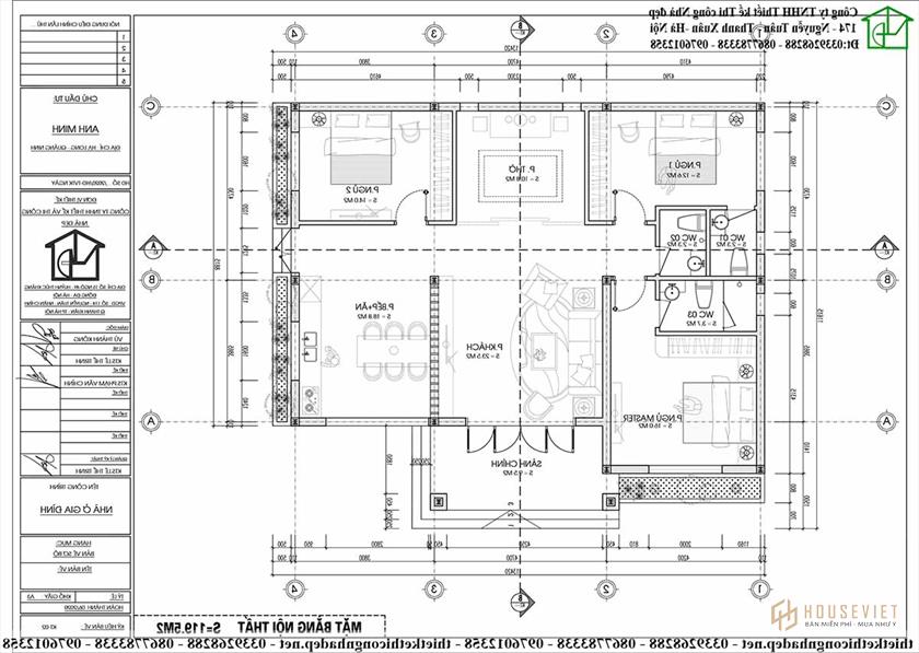
Mẫu nhà cấp 4 mái nhật 3 phòng ngủ tại Quảng Ninh
Quảng Ninh là một vùng đất mà có giá xây nhà rất cao, nếu các bạn ở đây chúng ta phải biết điều này. Nếu không khi xây nhà thì giá xây dựng sẽ phát sinh khá nhiều đấy nhé. Mẫu nhà cấp 4 này được Nhà đẹp thiết kế dưới dạng mái nhật và cũng có 3 phòng ngủ, mời các bạn đón xem.
- Chủ đầu tư: Anh Minh
- Địa điểm thi công: Quảng Ninh
- Diện tích nhà cả sảnh: 119.5m2
- Diện tích đất xây dựng: 9x13m
- Tổng kinh phí xây dựng dự kiến: 750 triệu


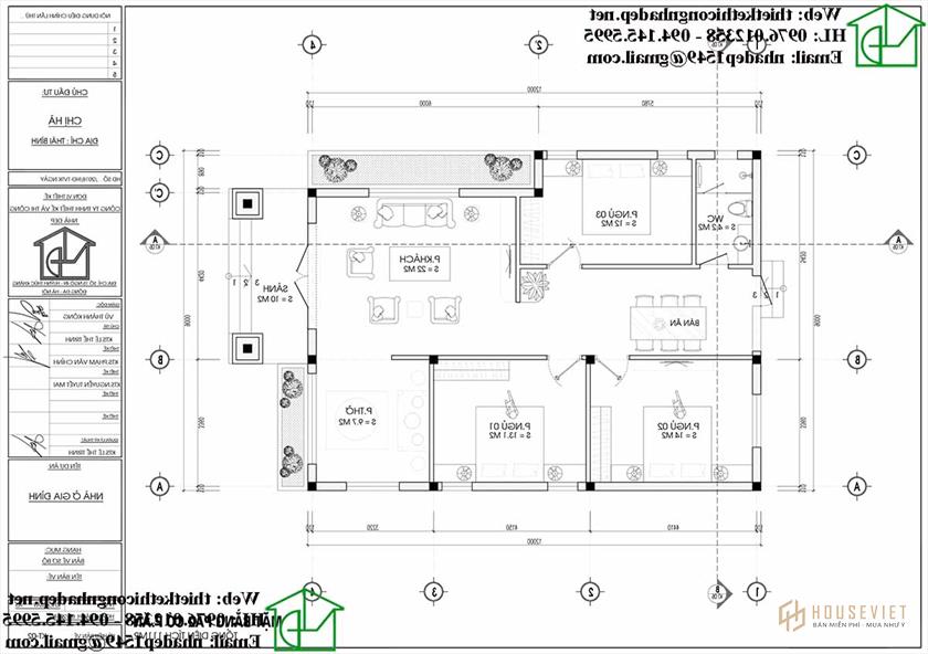
Nhà cấp 4 mái nhật 3 phòng ngủ tại Thái Bình
Đây cũng là một mẫu nhà được rất nhiều người yêu thích trong năm vừa qua. Phải có tới vài trăm người nhận được mặt bằng công năng của mẫu nhà này mà tôi đã chia sẻ với các bạn. Vậy điều gì mà làm cho mẫu nhà cấp 4 này được nhiều quan tâm như vậy? Mời các bạn cùng tham khảo nhé.
- Chủ đầu tư: Cô Nhàn
- Địa điểm xây dựng: Đông Hưng – Thái Bình
- Diện tích nhà: 9m x 12m
- Điện tích sử dụng: 108m2
- Diện tích sảnh: 8.4m2
- Tổng diện tích: 116.4m2
- Chi phí dự kiến: 700 triệu


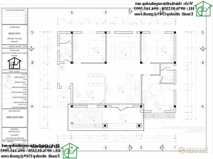
Mẫu nhà ống cấp 4 mái thái có 3 phòng ngủ tại Thái Bình
Sau một loạt các mẫu nhà cấp 4 mái thái 3 phòng ngủ dưới dạng biệt thự vườn thì chúng ta sẽ tham khảo các mẫu nhà ống cấp 4 mái thái. Đặc điểm của những mẫu nhà này chính là có chiều ngang hẹp, chiêu sâu lại dài. Đầu tiên phải kể đến mẫu nhà cấp 4 mái thía 3 phòng ngủ tại Thái Bình.
- Chủ đầu tư: Chị Hà
- Địa điểm xây dựng: Thái Bình
- Kích thước nhà: 9x12m
- Diện tích sảnh: 10m2
- Diện tích xây dựng: 118m2
- Công năng: 1 phòng khách, 1 phòng thờ, 1 phòng ăn, 3 phòng ngủ và 1 vệ sinh chung
- Chi phí dự kiến: 700 – 800 triệu
- KTS: Nguyễn Văn Tuấn


Thiết kế mẫu nhà cấp 4 nhỏ đẹp có 3 phòng ngủ tại Bắc Giang
Công trình này được chúng tôi thiết kế khi thi công trọn gói 1 mẫu biệt thự 1 tầng 3 phòng ngủ có địa chỉ tại Bắc Giang. Sau khi thi công xong thì có 1 khách hàng đã xem sản phẩm của chúng tôi và rất ưng ý. Sau đó khách hàng lựa chọn thiết kế cho chính căn nhà của mình.
- Chủ đầu tư: Anh Tư
- Địa điểm xây dựng: Bắc Giang
- Diện tích: 160m2
- Số phòng ngủ: 3 phòng
- Tổng kinh phí xây dựng dự kiến: 1 tỷ


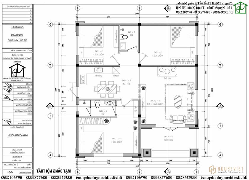
Mẫu nhà cấp 4 3 phòng ngủ mái thái 10x11m tại Vĩnh Phúc
Đây là mẫu nhà cấp 4 mái thái 3 phòng ngủ duy nhất trong các mẫu nhà cấp 4 được thiết kế theo phong cách tân cổ điển. Đây cũng là một trong những phong cách rất táo bạo phải không các bạn.
- Chủ đầu tư: Anh Sơn
- Địa điểm thi công: Vĩnh Phúc
- Diện tích nhà cả sảnh: 93m2
- Diện tích đất xây dựng: 10x11m
- Tổng kinh phí xây dựng dự kiến: 500 – 600 triệu


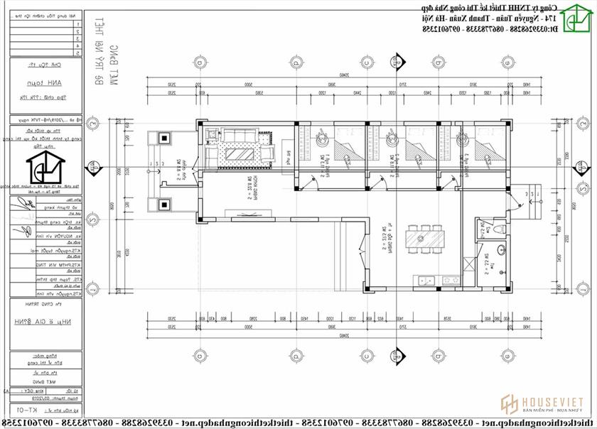
Nhà cấp 4 hình chữ L có 3 phòng ngủ mái thái
Đây cũng là một kiểu duy nhất, kiểu nhà hình chữ L, nhà cấp 4 3 phòng ngủ trong các mẫu nhà cấp 4 mà chúng tôi chia sẻ với các bạn. Mời các bạn đón xem thông tin và hình ảnh cho mẫu nhà cấp 4 đẹp này nhé.
- Chủ đầu tư: Anh Toàn
- Địa điểm xây dựng: Đắc Lắk
- Kích thước nhà: 9x20m
- Diện tích xây dựng: 98.7m2
- Số phòng ngủ: 3 phòng
- Chi phí dự kiến: 600 triệu


Nhà cấp 4 gác lửng có 3 phòng ngủ mái lệch
Không chỉ giới hạn trong những nhà cấp 4 mái thái 3 phòng ngủ, mái nhật mà những căn nhà cấp 4 gác lửng cũng có thể được thiết kế với 3 phòng ngủ. Cụ thể là mẫu nhà cấp 4 gác lửng được Nhà đẹp thiết kế cho gia chủ tại Hưng Yên.
- Chủ đầu tư: Anh Thêm
- Địa điểm xây dựng: Hưng Yên
- Kích thước nhà: 9x10m
- Diện tích xây dựng: 136m2
- Số phòng ngủ: 3 phòng
- Chi phí dự kiến: 700 triệu



Nhà cấp 4 kiểu Nhật có 3 phòng ngủ
Trong bài viết này chúng ta chỉ giới hạn giới thiệu về kiểu nhà cấp 4 mái thái 3 phòng ngủ. Tuy nhiên Nhà đẹp xin mở rộng một chút các mẫu nhà cấp 4 mái bằng cho các bạn tiện theo dõi. Đây là mẫu nhà cấp 4 mà tôi thấy rất đẹp, các bạn có thể tham khảo chi tiết hơn về mẫu nhà cấp 4 này nhé.
- Chủ đầu tư: Chú Hợi
- Địa điểm xây dựng: Cẩm Giàng – Hải Dương
- Diện tích nhà: 11.6m x 12m
- Diện tích sử dụng: 140m2
- Diện tích sảnh: 4m2
- Tổng diện tích: 144m2
- Chi phí dự kiến: 800 triệu


Còn rất nhiều hình ảnh về mẫu nhà cấp 4 này. Các bạn quan tâm có thể xem tại: Thiết kế nhà cấp 4 kiểu Nhật đơn giản
Nhà cấp 4 mái bằng 100m2 có 3 phòng ngủ tại Nam Định
Phải nói rằng có quá nhiều, quá nhiều các mẫu nhà cấp 4 hiện đại, và những căn nhà cấp 4 mái bằng cũng góp sức một phần nào trong hàng triệu mẫu nhà đẹp cấp 4 của chúng ta. Xin mời quý vị cùng Nhà đẹp theo dõi mẫu thiết kế nhà này.
- Chủ đầu tư: Anh Thắng
- Địa điểm xây dựng: Nam Định
- Kích thước nhà: 9x12m
- Diện tích xây dựng: 108m2 (tính cả sảnh)
- Công năng: 1 phòng khách, 1 phòng bếp – ăn, 3 phòng ngủ (1 phòng master), 1 vệ sinh chung
- Chi phí dự kiến: 600 triệu
- KTS: Phạm Văn Chỉnh


Nhà đẹp cấp 4 mái bằng tại Hải Phòng
Căn nhà mái bằng cuối cùng mà tôi chia sẻ trong bài viết này là căn nhà tại Hải Phòng. Đây là một giải pháp tiết kiệm chi phí thi công nhà cho các bạn.
- Chủ đầu tư: Chị Mai
- Địa điểm xây dựng: Kiến An – Hải Phòng
- Diện tích nhà: 7.5m x 16m
- Diện tích sử dụng: 120m2
- Chi phí dự kiến: 600 triệu


Nhà cấp 4 3 phòng ngủ mái thái 12×10 đẹp tại Thái Bình NDNC479
- Chủ đầu tư: Anh Hải
- Địa điểm xây dựng: Bắc Giang
- Diện tích xây nhà: 113.3 m2
- Diện tích mái sảnh: 13.59 m2
- Tổng diện tích riềm mái: 45.383
- Tổng diện tích phần mái bê tông: 113.3 + 13.59 + 45.383 = 172.273 m2
- Tổng giá trị xây dựng phần nhà: 172.273 x 5.000.000 = 861.365.000 vnđ
- Diện tích phần mái ngói: 113.3 x 1.6 = 181.28 m2
- Tổng giá trị phần mái ngói khung thép C mạ kẽm, ngói SCG Thái Lan: 129.896.000 vmđ
- Tổng giá trị thi công trọn gói: 861.365.000 + 129.896.000 = 988.261.000 vnđ

Đây là phối cảnh mặt tiền của mẫu nhà cấp 4 mái thái có 3 mặt tiền. Căn nhà được thiết kế theo phong cách hiện đại nhưng vẫn giữ được nét đẹp truyền thống, gần gũi với cuộc sống ở các vùng quê do được lựa chọn kiểu mái thái đồng thời sử dụng tông màu chủ đạo là màu vàng nhạt. Với phần mái chính nằm ngang và 2 mái dọc phụ, căn nhà trông như cao ráo, đồ sộ, sang trọng hơn.

Thiết kế nội thất căn nhà gồm 3 phòng ngủ có diện tích lần lượt là 13 – 14 – 15 (m2), 1 phòng thờ có diện tích 8,5 (m2) và phòng khách, phòng bếp ăn.
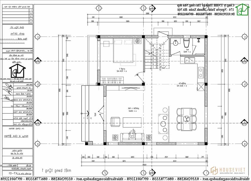
Mẫu nhà mái lệch đẹp, mẫu nhà cấp 4 3 phòng ngủ đẹp NDNC445
Nhà cấp 4 mái lệch hay nhà cấp 4 mái thái đều có nét đẹp riêng thế nên các bạn có thể cùng tham khảo những mẫu nhà với nhiều phong cách khác nhau để lựa chọn cho gia đình mình 1 phong cách phù hợp nhất nhé.
- Địa điểm xây dựng: Vĩnh Phúc
- Chủ đầu tư: Mr. Toản
- Diện tích xây dựng: 100m2
- Tổng kinh phí đầu tư: 500 -600 triệu
- Nội thất bao gồm: 3 phòng ngủ, 1 vệ sinh, 1 phòng bếp, 1 phòng khách


Nhà cấp 4 mái thái 3 phòng ngủ này phù hợp với gia đình trẻ, thích sự độc đáo, phá cách bởi thiết kế căn nhà theo mái lệch – kiểu kiến trúc vô cùng mới ở nước ta. Mái lệch không chỉ tạo điểm nhấn mới lạ cho căn nhà mà còn giúp chống nóng hiệu quả, không khí trong nhà luôn mát mẻ. Toàn bộ cửa sổ và cửa chính của nhà cấp 4 nhỏ đẹp này đều là cửa nhôm kính tạo không gian thoáng đãng, tận dụng tối đa ánh sáng tự nhiên, đưa con người đến gần hơn với thiên nhiên, có những giờ phút thư giãn thoải mái, bình yên. Sự kết hợp giữa màu trắng của sơn tường cùng màu xanh của mái, màu đen của khung cửa thể hiện sự tinh tế, khéo léo, toát lên vẻ đẹp hiện đại, trẻ trung, thanh nhã nhưng vẫn đâu đó thể hiện sự sang trọng, đẳng cấp của gia chủ.
Thiết kế mặt bằng nộ thất của mẫu nhà cấp 4 mái lệch này gồm có 1 phòng khách, 1 phòng bếp + ăn 1 phòng vệ sinh chung và phía trong cùng là 3 phòng ngủ. Vì diện tích xây dựng tương đối lớn nên nếu bạn có nhu cầu, chúng ta có thể thiết kế thêm phòng thờ riêng hoặc nếu không có thể bố trí phòng thờ chung trong phòng khách.
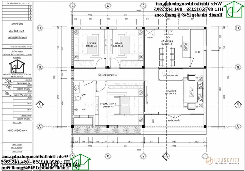
Nhà cấp 4 mái thái 9x12m sang trọng tại Thái Bình NDNC483
- Chủ đầu tư: chú Dực
- Địa điểm xây dựng: Đông Xá – Thái Bình
- Diện tích nhà: 9m x 12m
- Diện tích xây dựng: 108m
- Kinh phí xây dựng dự kiến: 520 triệu.

Mặt tiền của căn nhà cấp 4 mái thái 3 phòng ngủ được thiết kế khá đơn giản, thay vào các chi tiết rườm rà phức tạp của kiến trúc nhà truyền thống là những khối vuông vắn hiện đại thể hiện sự khỏe khoắn, chắc chắn, vững chãi. Phía trên và xung quanh đổ bằng dán ngói kiểu mái thái dốc xuôi 22 độ, đua ra phía trước để tránh mưa hắt trực tiếp vào nhà. Nếu như thiết kế nhà đẹp theo kiểu mái thái truyền thống lợp mái đỏ thì mẫu nhà cấp 4 này được sử dụng mái ghi xám có viền trắng, sơn tường lại là màu trắng, tạo cho ta cảm giác nhẹ nhàng, thanh thoát, gần gũi. Xung quanh nhà được bố trí thêm cây xanh không những có tác dụng làm căn nhà thêm sinh động, hấp dẫn hơn mà còn giúp thanh lọc không khí, đem lại không gian sống mát mẻ, thoáng đãng hơn.
Bên trong căn nhà được thiết kế với phòng khách rộng rãi ngay từ tiền sảnh đi vào, tiếp đến là phòng bếp + ăn, 3 phòng ngủ, 1 phòng vệ sinh chung.
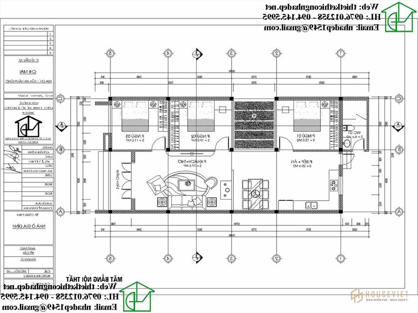
Mẫu nhà cấp 4 có gác lửng 3 phòng ngủ đẹp tại Hải Dương NDNC480
- Chủ đầu tư: anh Hân.
- Địa điểm xây dựng: Hải Dương.
- Diện tích đất: Rất rộng.
- Diện tích nhà: 10 x 9 (m).
- Diện tích xây dựng: 115 m2.
- Kinh phí xây dựng dự kiến: 600 triệu.

Căn nhà cấp 4 mái thái 3 phòng ngủ được thiết kế theo phong cách hiện đại, kết hợp giữa mẫu nhà cấp 4 mái bằng đẹp để đặt téc nước, 1 phần mái chéo lợp ngói tạo điểm nhấn đặc biệt cho căn nhà, đi liền khối với tổng thể ngôi nhà là gara để ô tô. Ngoài việc cắt giảm tất cả họa tiết trang trí cầu kỳ, phức tạp, các kiến trúc sư cũng lựa chọn hệ thống cửa kính để mang lại công trình kiến trúc đơn giản, nhẹ nhàng, thanh thoát, gần gũi với thiên nhiên, tận dụng tối đa ánh sáng tự nhiên.
Mẫu nhà cấp 4 hiện đại này được thiết kế theo kiểu nhà gác lửng để tiết kiệm chi phí xây dựng, đảm bảo không gian sinh hoạt tiện nghi, thoải mái nhất. Tầng 1 được bố trí 2 phòng ngủ, 1 phòng tắm vệ sinh chung. Từ sảnh chính đi vào nhà sẽ là phòng khách, phía sau là khu vực bếp ăn. Trên gác lửng sẽ được bố trí 1 phòng thờ, 1 phòng ngủ và 1 nhà tắm vệ sinh.
Đến đây bạn đã tìm lựa chọn cho mình được mẫu nhà cấp 4 mái thái 3 phòng ngủ phù hợp nhất với gia đình mình về mọi khía cạnh hay chưa? Hãy liên hệ để biết thêm thông tin chi tiết về các mẫu nhà trên hoặc tìm hiểu thêm nhiều mẫu nhà đẹp khác. Ngoài ra bạn còn được kiến trúc sư hàng đầu của chúng tôi hỗ trợ thiết kế nhà ở theo đúng yêu cầu để nhanh chóng sở hữu được căn nhà mà mình hằng mơ ước. Còn chần chừ gì nữa, gọi ngay với Thiết kế nhà đẹp để được tư vấn, hỗ trợ trực tiếp ngay hôm nay nhé.
- https://thietkethicongnhadep.net/mau-nha-dep/nha-cap-4-3-phong-ngu/
- https://thietkethicongnhadep.net/mau-nha-dep/mau-nha-2-tang/
- https://thietkethicongnhadep.net/mau-nha-dep/biet-thu-co-dien/
- https://thietkethicongnhadep.net/mau-nha-dep/biet-thu-2-tang/