Các mẫu nhà phố 3 tầng hiện đại mặt tiền 8m đẹp anh Vinh
Hồ sơ mẫu nhà phố mặt tiền 8m này có kiến trúc mái xéo. Tuy nhiên, theo quy định bản vẽ chỉ được phép xây dựng lại 130m2. Đó là 62% mật độ xây dựng và chiều cao không quá 15m. Mời các bạn tham khảo bản vẽ biệt thự hiện đại mái thái. Kiểu mái dốc phía trước nhà anh Vinh như sau
- Bản vẽ nhà phố 4 tầng mặt tiền 8m bán cổ điển Chị Tôi Sài Gòn
- Ngắm một trong những mẫu nhà ngang 8m đẹp nhất chị Việt Anh Hùng
- Bản vẽ thiết kế biệt thự mái thái 3 tầng đẹp hiện đại nhà chị Đại
Hình ảnh nhà phố hiện đại mái xéo trẻ trung
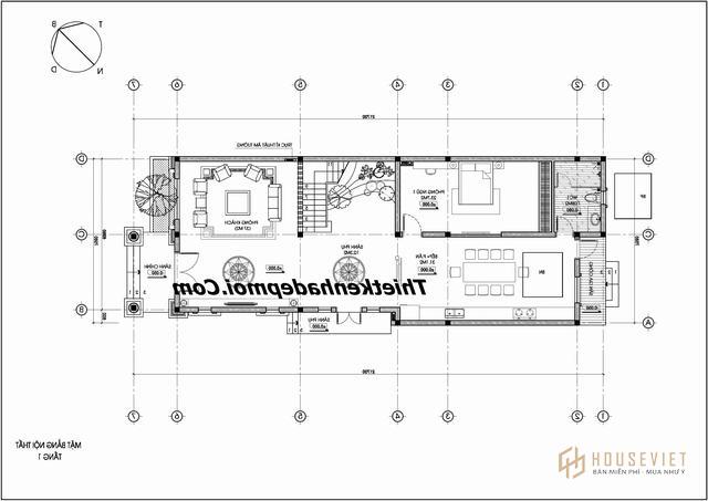
Công ty thiết kế nhà đẹp Tôi xin giới thiệu thêm ý tưởng xây nhà mái xéo. Cho các bạn bản vẽ nhà biệt thự phố 1 trệt 3 lầu sân thượng đẹp không gian thoáng. Được thiết kế trên khu đất có 2 mặt tiền dài 8m, sâu 22m. Tổng diện tích thiết kế biệt thự hiện đại 3 tầng có tầng hầm 130m2. Trong đó diện tích xây dựng của mẫu nhà phố 3 tầng 2 mặt tiền đẹp 8 × 16 tức là 130m2. Chừa sân trước 4m, sau 2m. Khu vực thông tầng được thiết kế sân trong hình chữ L mặt tiền bên phải.

Đây là phương án mặt tiền và mặt sau của ngôi biệt thự mặt tiền 8m. Kiểu hình chữ L lý tưởng có cầu thang riêng biệt. Và nếu bạn có nhu cầu xây biệt thự mặt phố 8m mái thái. Mời các bạn tham khảo thêm nhiều mẫu khác thiết kế biệt thự đẹp 2020 vừa cập nhật hôm qua
Hình ảnh mẫu nhà phố mặt tiền 8m mái xéo
Mẫu biệt thự 3 tầng đẹp do anh Vinh thiết kế có tầng hầm làm gara ô tô. Ngôn ngữ theo lối kiến trúc biệt thự hiện đại phong cách Châu Âu mái xéo. Tầng hầm để xe 2 ô tô và xe máy, 1 phòng ngủ công chức. Bên trong có sân thủy cảnh cạnh cầu thang dẫn lên tầng trệt. Ngoài ra, mẫu nhà phố hiện đại mặt tiền 8m 3 tầng lô góc 2 mặt phố đơn giản. Ngoài ra còn có phòng khách, phòng sinh hoạt chung và 5 phòng ngủ, phòng thờ được phân bổ đều giữa các tầng.

Thông tin mẫu thiết kế nhà phố hiện đại có bán hầm 8m
- Phương án thiết kế biệt thự lô góc 2 mặt tiền.
- Chủ đầu tư: Lê Tiến Vinh
- Địa điểm xây dựng: Hậu Giang
- Phong cách kiến trúc biệt thự hiện đại mái xéo
- Cập nhật mới tháng 4 năm 2020
- Kinh phí đầu tư: 3 tỷ đồng
- Thời gian hoàn thành và đưa vào sử dụng: 7 tháng

Tham khảo thêm về mẫu nhà phố mặt tiền 8m mái xéo
So với mẫu biệt thự nhà phố đẹp phong cách cổ điển mặt tiền 8m. Mẫu nhà phố hiện đại 2 mặt tiền 8m được thiết kế theo kiểu so le, song lập. Hướng Đông có hành lang rộng rãi, thoáng mát. Ý tưởng thiết kế với cầu thang riêng biệt đi ra bên ngoài là bạn có thể thuê văn phòng ở tầng 1. Không ảnh hưởng đến sinh hoạt riêng và phòng kinh doanh tầng trệt cho nhà phố 2 mặt tiền anh Vinh

Ý tưởng thiết kế biệt thự hiện đại 8x16m 2 mặt tiền 3 tầng
Mẫu nhà phố hình chữ L 2 mặt tiền phong cách hiện đại 5 phòng ngủ. Bên ngoài biệt thự nhà phố đẹp có tầng hầm để xe vừa bán vừa kinh doanh. Kiến trúc mở trên đây là một trong những mẫu biệt thự phong cách Châu Âu đẹp nhất hiện nay. Sử dụng vật liệu nhẹ công nghệ cao, tường sơn màu trắng. Kết hợp với lam che nắng để tích hợp thêm không gian xanh cho sân vườn. Hai mặt tầng 1 và 2 đều được thiết kế ban công sân thượng thông thoáng. Hai bên đây là một trong những mẫu biệt thự góc 2 mặt tiền phố hiện đại đẹp nhất năm 2020. Ngoài ra các bạn có thể tham khảo thêm mẫu nhà phố 1 trệt 2 lầu có sân thượng của anh Trung. Cần hồ sơ về căn nhà này liên hệ với tôi


Bản vẽ kỹ thuật nhà phố 3 tầng hiện đại 2 mặt tiền
Hồ sơ kiến trúc mẫu biệt thự nhà phố 1 trệt 3 lầu 2 mặt tiền phong cách hiện đại 130m2. Phong cách Châu Âu có tổng cộng hơn 150 bản vẽ kiến trúc bao gồm: Hồ sơ điện, chi tiết cầu thang, dự toán, cấp thoát nước .. Sau đây chúng tôi xin lấy một số bản vẽ autocad mẫu đặc biệt về kỹ thuật xây dựng. Nhà phố đẹp hiện đại 3 tầng 2 lô góc mặt tiền cho các bạn tham khảo như sau




Trên đây là một trong những file bản vẽ autocad biệt thự 3 tầng mặt tiền mái xéo. Chúng tôi gửi cho quý vị và các bạn chỉ để tham khảo. Ngoài ra NHÀ ĐẸP MỚI VIỆT còn có các bản vẽ thiết kế biệt thự hiện đại Có 240 mẫu. Với đầy đủ chiều ngang 7m 8m 9m 10m 2 3 4 tầng khác nhau. Xem thêm và chọn phong cách. Cần gọi 1800 6015 có zalo. Để gửi thêm các mẫu nhà đẹp bán biệt thự tân cổ điển 2020 tại Covid 19.
Các mẫu nhà phố mặt tiền 8m đẹp khác đã và đang xây dựng trong năm 2020
Mẫu nhà phố 3 tầng hiện đại có gara để bán có tầng hầm kiểu Âu là phương án xây nhà 2 mặt tiền mời các bạn tham khảo thêm. NHÀ ĐẸP MỚI chúng tôi sơn cho gia đình anh Vinh Hậu Giang từ năm 2018. Công trình đã hoàn thành và đưa vào sử dụng vào tháng 6 năm ngoái. Nhưng giờ mình gửi cho các bạn tham khảo để có ý tưởng hay để tiết kiệm nhé. Từ đó có cách xây nhà phố đẹp hiện đại 3 đến 4 tầng 2 mặt tiền thoáng mát cho gia đình bạn.

Một số mẫu mặt tiền biệt thự tân cổ điển mặt tiền 7m 8m đẹp khác
Thiết kế biệt thự đẹp 4 tầng 2 mặt tiền 8x22m là một trong những mẫu biệt thự mini 3 tầng đẹp. Kiểu song lập bán hầm, 2 cầu thang, 2 mặt thoáng, đẹp nhất phố hiện đại hiện nay. Tối ưu hóa theo ý tưởng kiến trúc biệt thự mái xéo Châu Âu hiện đại. Không gian mở tích hợp sân vườn và mảng xanh hình chữ L. Nếu bạn đang cần ý tưởng thiết kế biệt thự theo phong cách Châu Âu mái lệch như trên. Vui lòng liên hệ với chúng tôi để gặp gỡ trao đổi thêm chi tiết.

Trân trọng mời quý vị và các bạn cùng xem mẫu biệt thự mini 2 tầng 1 tum 7x14m trên phố của anh Duy. Hiện đã bàn giao tại khu thiết kế biệt thự mini 2020. Quy mô diện tích sàn xây dựng 1 trệt 1 lầu 1 sân thượng giá rẻ.
Mẫu nhà phố tân cổ điển đẹp 1 trệt 2 lầu chị Đại
Mẫu biệt thự mini 1 trệt 2 lầu sân thượng diện tích 7,5m2 này được lòng mọi người. Trên mảnh đất ngang 8m, 1 mặt tiền theo phong cách bán cổ điển mái thái. NHÀ ĐẸP MỚI gửi tới các bạn hình ảnh phối cảnh và mặt bằng tầng 1. Nếu bạn cần thêm thông tin, tôi sẽ gửi cho bạn. ghé thăm đây với các bản vẽ hoàn chỉnh và các phối cảnh khác.


Mẫu biệt thự bán cổ điển 1 trệt 2 lầu sân thượng mặt tiền 8m anh Trung
Đây là kiểu mặt tiền của nhà phố 3 tầng mặt tiền 8m dành cho những gia chủ yêu thích sự hoài cổ. Đơn giản mà sâu sắc, nhẹ nhàng nhưng không nhất thiết phải cầu kỳ, xa hoa. Mẫu nhà phố mái thái đẹp có kích thước thiết kế rộng 8m với phần mái được cắt ngắn gọn để thoát nước trên mảnh đất của anh. Vui lòng xem link bên dưới để biết trang chủ của công ty xây dựng. Đã có bản vẽ tư vấn thiết kế và mặt bằng các tầng cho ngôi biệt thự tân cổ điển đẹp rộng 8m này

Hi vọng mẫu nhà phố 3 tầng 1 tum 2 mặt tiền kiểu mái lệch trước ra sau. Một phần giúp các bạn tham khảo thêm về mẫu kiến trúc nhà hiện đại đơn giản. Từ đó nảy sinh ý tưởng chia sẻ nhu cầu thiết kế xây nhà trọn gói tại các khu vực miền Nam trong thời gian Covid 19 hiện nay.
- Xem thêm thông tin công ty tư vấn thiết kế xây dựng chúng tôi