Các mẫu nhà vườn trệt ở quê nông thôn miền Tây Nam Bộ 2021 phần 1
Đầu tiên là thông tin mẫu nhà trệt đẹp ở nông thôn vẽ xây cho anh Út chị My. Kiến trúc mang phong cách châu âu có sân vườn xung quanh. Còn ở phần cuối bài NHÀ ĐẸP MỚI mình tổng hợp thêm các kiểu nhà vườn phong cách khác nhau. Anh chị tham khảo mà chọn
Đầu tiên là kiểu nhà vườn trệt đẹp thiết ké 3 phòng ngủ anh Lân
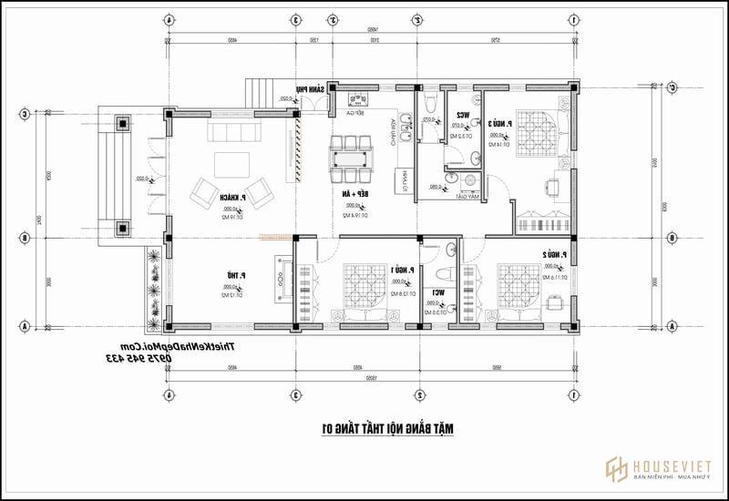
Mặt bằng bản vẽ thiết kế nhà đẹp miền Tây có 3 phòng ngủ 1 phòng thờ. Chi phí đầu tư khoảng tầm 800 triệu. Không gian thiết kế rộng rãi có cả nơi để máy giặt và 3 wc chung và riêng tư. Nếu anh chị cần bản vẽ nhà tắm rộng rãi chung. Có thể gộp lại được. anh chị liên hệ để có bản vẽ xây nhà trệt nóc Thái ngang 8m x 16m trên đất rộng ở quê. Như Đồng Tháp Mười, Trà Vinh, Vĩnh Long, Bến Tre, An Giang..

Hình ảnh kiến trúc nhà miệt vườn nóc thái trệt ở quê nông thôn
Kiểu nhà nóc thái thiết kế có móng cao 75cm cốt thông thủy cao 4.0. Cách thiết kế gam màu tím phù hợp với phong thủy sẫm màu. Nếu cần xây nhà đổi sảnh phụ qua bên trái cũng được. Hình ảnh mặt bằng của nhà trên như sau

Các kiểu nhà vườn Nam Bộ kiểu mini 120m2 ở quê
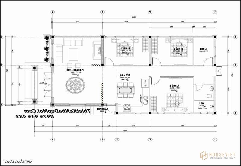
Ngoài bản vẽ nhà miệt vườn nóc Thái có sảnh phụ 1 bên sân vườn tiểu cảnh anh Lân. Công ty mình còn có các gam màu trắng xanh và đổi sảnh khác. Anh chị tham khảo thêm




Bản vẽ nhà vườn Nam Bộ anh & đơn giá thiết kế
Anh chị nên tìm kiến trúc sư giỏi có các phần mềm mới nhất. Thứ 2 công ty đầu tư hệ thống trang thiết bị máy móc cao cấp. Thì mới Render màu sắc trong và đẹp như hình nhà anh Tính dưới đây. Thứ 2 kinh nghiệm trên 10 năm thứ 3 sử dụng các phần phầm mềm giỏi như 3Dmax hay Vay, Sur, Sketup.. mới vẽ được thế này


Đừng ham giá rẻ có đắt hơn 1 đến 2 triệu ví dụ như công ty mình nhận thiết kế nhà trệt 150m2 anh Tính hình trên chỉ 15 triệu. Nghĩa là đơn giá thiết kế nhà trệt là 100k/m2. Các kiến trúc sư trẻ thiết kế thì nhận 70k/m2 hay 80k/m2. Nhưng không được như ý. Anh chị tính nhẩm thì phát sinh ra không nhiều. Mả đẹp và phong thủy như NHÀ ĐẸP MỚI mình. Xem mẫu nhà anh Tính sẽ rõ các view đẹp và nhiều hình ảnh. Không như các công ty khác chỉ Ren gửi được 1 đến 2 hình ảnh cho bạn mà thôi. Anh chị chớ ham rẻ nhé. Công ty mình nhận giá hợp lý nhất
Hình ảnh mẫu nhà trệt ở nông thôn anh Út chị My
Mẫu nhà vườn trệt nông thôn đẹp 2021 thiết kế theo kiến trúc mới. Kiểu mái bánh Ú phía trên đổ bê tông chống thấm và dàn ngói. Bản vẽ nhà có 3 phòng ngủ 1 phòng thờ thiết kế cho gia đình anh Út. Mời anh chị tham khảo
- Mẫu nhà vườn cấp 4 đẹp mái thái rộng 9m 150m2 anh Hưng
- Nhà cấp 4 mái thái ở nông thôn 160m2 đẹp kiểu vườn châu âu
- Mẫu nhà 2 tầng mái thái nông thôn đẹp kiến trúc Pháp



Thông tin mẫu nhà vườn trệt nông thôn 3 phòng ngủ mái bánh Ú
So với các mẫu nhà vườn ở nông thôn thường hay xây theo kiến trúc mái chữ A. Bên ngoài đổ ô văng có mái trước vuông góc với mái sau. Thì mẫu nhà trệt nông thôn đẹp thiết kế có 7 mái view ra các phía. Mẫu nhà vườn anh Út thiết kế có hình khối cô động sắc hơn. Xung quanh đổ rìa hay gọi là diềm mái trang trí màu trắng. Anh chị tham khảo thêm thông tin mẫu nhà cấp 4 nông thôn 3 phòng ngủ hiện đại này
- Dự án thiết kế nhà vườn trệt 3 phòng ngủ 1 phòng thờ
- Chủ đầu tư : Anh ÚT
- Diện tích đất 741m2
- Diện tích thiết kế nhà trệt nông thôn: 150m2
- Thực hiện: KTS Đạt
- Năm cập nhật 2021
- Thời gian thi công: 3 tháng
- Phong cách kiến trúc nhà trệt mái Nhật miền Tây Nam Bộ

Lý do anh chị nên chọn mẫu nhà trệt nông thôn đẹp này
Mẫu nhà vườn trệt ở quê thiết kế mang dáng dấp biệt thự phong cách bán cổ điển ở châu âu. Xung quanh thiết kế ngoại thất sơn trắng. Cửa chính thiết kế gỗ Lim phía ngoài có sảnh rộng. Hai bên thiết kế trụ tròn tỷ lệ đăng đối sơn ốp đá cẩm thạch vân mây. Mẫu nhà biệt thự vườn trệt cấp 4 thiết kế diện tích 15x12m. Xung quanh có 4 mặt thoáng và sử dụng cửa kính cường lực 12 ly. Hai bên thiết kế có bồn hoa. Nhằm tăng thêm nét thiên nhiên gần gũi cho khuôn viên sáng đẹp hài hòa.. Ngoài ra còn có một số lý do khác anh chị nên chọn mẫu biệt thự trệt 1 phòng thờ 3 phòng ngủ 150m2 này như
- Tường xây dày 22cm mái đổ bê tông sàn trên mới lợp ngói
- Xử lý tốt các cách chống thấm cho trần và sê nô âm thu nước
- Không gian ngoại thất phong cách biệt thự trệt tân cổ điển không lỗi thời
- Hình khối gọn gàng kiến trúc mái không nặng nề nhờ sử dụng vì kèo lợp mạ kẽm
- Trang trí nhấn nhá các hệ thống đèn tường không cầu kỳ

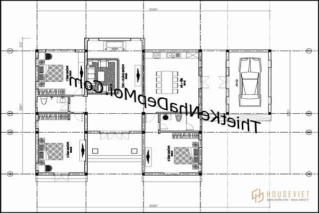
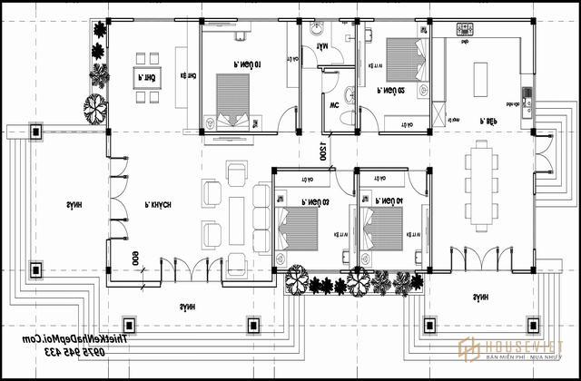
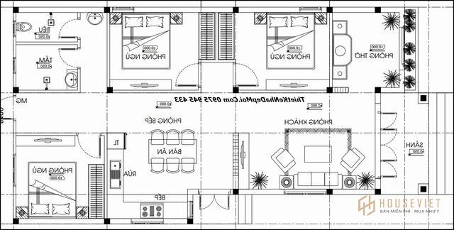
Bản vẽ mặt bằng nhà vườn trệt mái ngói ở quê nông thôn
Mặt bằng thiết kế nhà vườn trệt anh Út tối ưu theo kiến trúc 4 gian. Phía ngoài mặt tiền nhà đẹp hướng Nam thiết kế có sảnh đón. Móng nhà thiết kế cao chuẩn Phúc – Lộc – Thọ 3 bậc cao ráo. Cái hay của mẫu nhà vườn trệt mái ngói hiện đại ở quê chính là bố trí không gian bàn ăn và bếp riêng bên hướng Đông. Đây là hướng nhà rất mát mẻ vừa thoát mùi. Xem mẫu nhà mái ngói hiện đại chị Thoa

Ngoài ra còn có 1 phòng sinh hoạt chung kết hợp Karaoke gia đình. Phòng khách thiết kế rộng kết hợp với sảnh chính và tủ thờ view nhìn ra sân vườn trước. Không gian còn lại thiết kế có 3 phòng ngủ. Trong đó có phòng ngủ 2 rộng có wc khép kín. Mặt bằng nhà vườn cấp 4 150m2 ở nông thôn mới 2020 anh chị quan sát từ trên xuống dưới

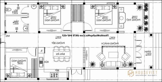
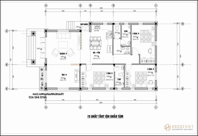
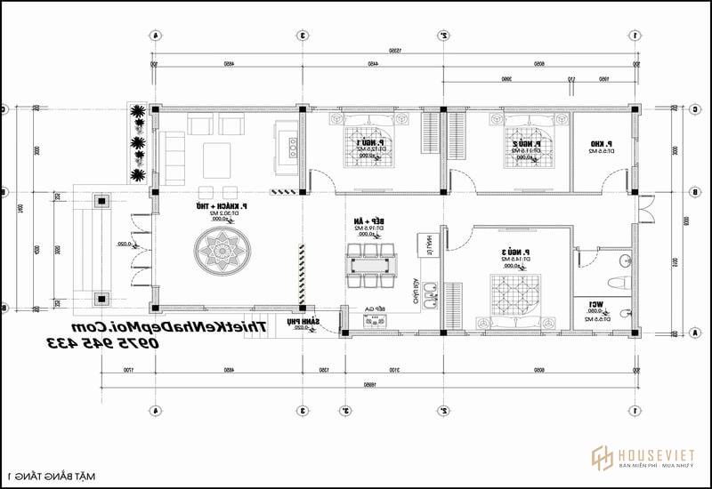
Bản vẽ xây nhà trệt đẹp nông thôn mới có phòng thờ riêng
Gợi ý thêm về mặt bằng nhà trệt hiện đại kiến trúc 3 gian cùng 1 phong cách. Nhưng có mặt bằng phòng thờ thiết kế riêng sau cùng sát vách nhà. Còn bên hông nhà đẹp nông thôn mới có sảnh phụ bên hướng Đông. Phòng ăn và bếp mẫu nhà vườn đẹp ở quê thiết kế đưa ra ngoài cùng. Anh chị tham khảo bản vẽ mặt bằng phương án 2 nhìn từ tay phải nhìn sang

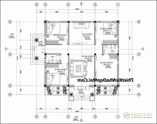
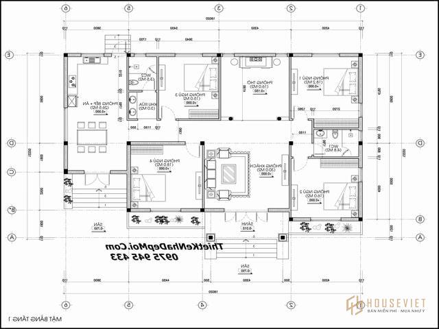
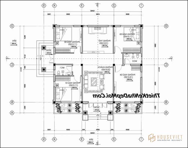
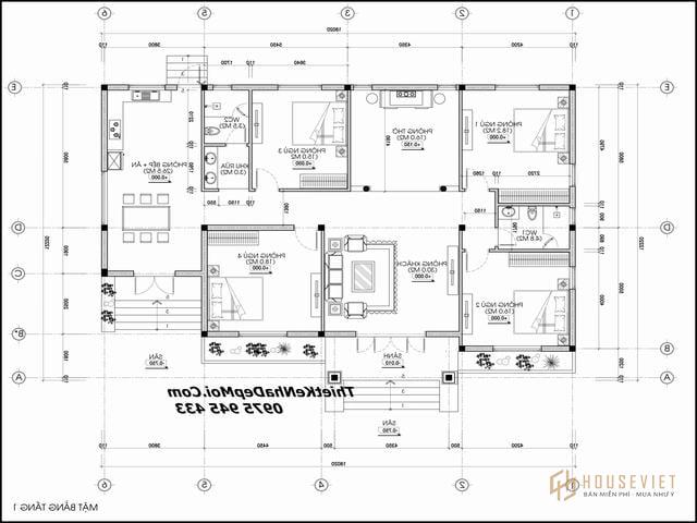
Mẫu nhà vườn trệt 4 phòng ngủ đẹp anh Mạnh
Nếu như trên chúng tôi giới thiệu 2 mặt bằng nhà ở quê cho 3 phòng ngủ. Nếu anh chị cần xây nhà vườn trệt có 4 phòng ngủ phòng thờ. Thì có thể tham khảo mặt bằng nhà đẹp thiết kế cho anh Mạnh như sau


Mẫu nhà trệt 4 phòng ngủ anh Mạnh thiết kế có diện tích xây 160m2. Mái thiết kế có ống khói trên nóc nhà, màu ngói bánh Ú nhà này xây xong rồi. Anh chị cần bản vẽ và hình thực tế mẫu nhà trệt đẹp nông thôn mình gửi riêng hình thực tế. Mẫu nhà trệt mái Nhật tone màu nâu trắng đã xây xong này. Ngoài ra cần xây nhà vườn nóc Thái bề ngang 16m mình có nhà anh Hóa Đồng Nai anh. Xem mẫu nhà biệt thự trệt 4 phòng ngủ này Ở ĐƯỜNG DẪN NÀY mà chọn
Các mẫu nhà trệt mái thái ở nông thôn mới nhỏ hơn
Gợi ý thêm cho anh chị mẫu nhà trệt ở quê đẹp khác có diện tích xây 180m2. Hình ảnh nhà trệt nóc thái sân vườn hình dưới là của gia đình anh Giang. Không gian thiết kế phù hợp với thế đất có thể bố trí tới 3 phòng ngủ 1 phòng thờ. Cần bản vẽ chi tiết nhà vườn mái thái trệt đẹp gọi cho mình

- Xem thêm các mẫu nhà cấp 4 đẹp diện tích lớn nhỏ thiết kế theo phong thủy nhà ở phù hợp với các thế đất 2021
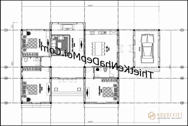
Mặt bằng nhà trệt hiện đại có 4 sảnh thông thoáng ở quê
Dưới đây là mặt bằng nhà trệt kiểu châu âu thiết kế có 4 phòng ngủ 1 phòng thờ hướng Đông nam. Biện pháp xây biệt thự trệt ngang 12m x 24m trên đất vườn rộng. Mình gửi mặt bằng bố trí nhà thống thoáng có 4 sảnh phong thủy Đông tứ trạch. Anh chị thuộc cách tư vấn xây nhà vườn đẹp ở nông thôn hướng Nam và Đông Nam cung sinh khí thì xem. Bản vẽ nhà vườn anh Cần


Mẫu nhà vườn trệt nóc Thái ở quê nông thôn anh Minh
Mẫu nhà vườn trệt nóc Thái ở quê sau cũng thiết kế có 3 phòng ngủ cho gia đình anh Minh. Mời anh chị tham khảo mặt bằng và phối cảnh nhà trệt đẹp nông thôn 160m2 này


Mẫu nhà trệt cấp 4 sân vườn hình chữ U đẹp anh Hoàng
Mẫu nhà trệt hình chữ U thiết kế có diện tích xây 150m2. Mái ngói phong cách kiểu Nhật anh chị nhìn mái nhà ngói đỏ là hiểu phong cách. Mô hình nhà cấp 4 thiết kế theo kiến trúc song lập. Dưới đây là mặt bằng và phối cảnh nhà vườn hình chữ U mái ngói anh Hoàng


Mẫu nhà vườn trệt kiểu Mỹ ở nông thôn mới 2021
Ý tưởng thiết kế nhà trệt kiểu Mỹ này là thiết kế xây trên đất 1 mặt tiền. Bề ngang mặt trước nhà rộng hơn bề sâu và có nhà để xe gara 1 bên từ cổng bên trái. Mẫu nhà cấp 4 kiểu Mỹ thiết kế khác biệt và có mảng tường nhấn nhá. Diện tích thiết kế nhà ngang 16m dài ra sau 10m. Anh chị tham khảo


Mời anh chị tham khảo mẫu nhà vườn trệt kiểu Mỹ ở chuyên mục mẫu nhà 1 tầng mái thái đẹp trên website công ty mình. Cần chi tiết hay báo giá xem thêm các phong cách khác. Gọi 1800 6015 để gửi thêm mẫu
Mẫu nhà biệt thự trệt mái thái đẹp có chiều ngang tương đối
Đây là mẫu nhà biệt thự trệt ở quê thiết kế chiều ngang 15m dài 17m phủ bì. Diện tích xây khoảng trên 170m2 của gia đình anh Phụng. Mẫu nhà vườn trệt có kiến trúc biệt thự mini sân vườn hợp với đất ngang 12m dài 20m trở lên mới áp dụng được. Trường hợp anh chị có đất một mặt tiền rộng hơn. Cần thiết kế xây nhà 1 bên còn để dành đất cho con sau này. Cũng nên áp dụng mẫu nhà trệt đẹp 2021

Kết nối để gửi thêm mẫu nhà vườn trệt đẹp ở nông thôn mới

Mẫu nhà biệt thự trệt nóc thái ở nông thôn đẹp trên như của anh Phụng. Có thể thiết kế 3 hay 4 phòng ngủ. Chiều ngang khoảng 8m đến 11m cũng xây được. Cần gì cứ alo cho mình qua số hotline 1800 6015. Trình bày tài chính dự trù, năm sinh, đất chiều ngang rộng và sâu vào trong bao nhiêu? Một mặt tiền hay 2 mặt tiền, hướng nhà nếu biết, đất yếu hay cứng.. Mình sẽ gửi mẫu nhà trệt đẹp lớn nhỏ chuẩn phong thủy. Thứ 2 là báo giá thiết kế xây nhà trệt đẹp ở quê cho anh chị theo tài chính.
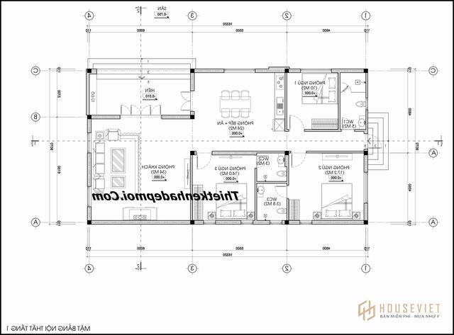
Xem bản vẽ nhà trệt có 3 và 4 phòng ngủ hình chữ L ở quê
Nếu anh chị cần xây nhà trệt đẹp mà có 4 phòng ngủ nhưng đất chiều ngang ngắn thì xem các bản vẽ nhà cấp 4 hình chữ L. Hay có sân vườn khác như hình dưới đây


Cập nhật các mẫu nhà nông thôn mới thiết kế
Ở các kiểu nhà nông thôn trên là những mẫu nhà trệt nóc thái. Mình gửi thêm mẫu nhà trệt hiện đại ngang 8x16m của chị Oanh. Chi phí 750 triệu hình ảnh và mặt bằng như sau
- Dự án thiết kế nhà đẹp nông thôn mới
- Kiến trúc thiết kế nhà mái lệch 1 tầng 3 phòng ngủ 1 phòng thờ
- Chủ đầu tư chị Oanh
- Phía trên đổ sàn bên tông mái lợp ngói
- Hình ảnh và mặt bằng như sau cần mình bổ sung gửi thêm


Mẫu nhà cấp 3 nông thôn kiểu biệt thự trệt châu âu
Đây là hồ sơ thiết kế nhà cấp 3 nông thôn 220m2. Ngang 9m dài 24m có 4 phòng ngủ 1 phòng thờ của chị Nhung vừa vẽ hiện đang xây dựng. Hình ảnh và mặt bằng mẫu nhà cấp 3 hay còn gọi là villa vườn trệt này như sau

- Xem thêm 18 kiểu mặt tiền nhà trệt đẹp đơn giản hơn và chi phí tiết kiệm hơn
Mặt bằng biệt nhà vườn trệt 220m2 ngang 9m có sảnh

Cần hồ sơ thiết kế nhà trệt hiện đại kiểu tân cổ điển châu âu này. Tối thiểu đất anh chị phải rộng ngang 15m dài 40m. Như thế mới thiết kế sân vườn đẹp được theo ý muốn. Anh chị xem thêm các mẫu biệt thự nhà vườn ở nông thôn rộng hơn tại đây mà chọn thêm 1 2 tầng đều có
Bản thiết kế nhà trệt 2 phòng ngủ 7x15m
Nếu đất anh chị chỉ 1 mặt tiền nhà ngang 8m dài 20 hoặc hơn. Đang tìm các mẫu nhà trệt ngang 7m dài 15m nóc Thái. Mình có bản thiết kế nhà trệt 7×15 xây cho chú Sáu. Mặt bằng và hình ảnh nhà trệt đơn giản nóc Thái như như sau


Mẫu nhà trệt hiện đại mái bằng chữ L đẹp
Đây là mẫu nhà trệt hiện đại mái bằng diện tích xây 150m2 chú Trí ở Đồng Tháp. Kiểu biệt thự trệt mini có bể bơi nhỏ. Thiết kế hiện đại ngang 7m dài 25m nhưng

Còn đây là bản vẽ thiết kế nhà hiện đại mái bằng rộng 300m2 chú Thạch. Cần xây biệt thự trệt nóc bằng này mình gửi thêm thông tin. Kiến trúc biệt thự 1 tầng ở nông thôn có 4 phòng ngủ rộng. Ý tưởng kiến trúc pha chút châu âu nhưng đã tinh giản chỉ phào cổ điển để kiến trúc nhà villa trệt sân vườn đẹp hơn


Các mẫu nhà vườn trệt mini đẹp ở nông thôn năm 2021
Ngoài ra còn có mẫu nhà trệt nông thông vừa vẽ tháng 3 và tháng 4 cũng HOT như nhà nóc Thái hướng Nam có 3 phòng ngủ. Kiến trúc và gam màu trắng nhẹ nhàng

Còn dưới đây là nhà vườn rộng 9m phía sau có gara ô tô anh Văn. Ở Kim Long Bà Rịa Vũng Tàu vừa vẽ xong kiến trúc tân cổ điển. Lưu ý đây là biệt thự 240m2 xây trên đất ngang 15m sâu tới 40m.


Mẫu nhà trệt mái Nhật này vẽ cho anh Tuấn ở Châu Pha. Trong đó anh thích nhà trệt 3 gian xây trên đất bề ngang ở nông thôn rộng. Không gian có 3 phòng ngủ.

Các kiến trúc nhà đẹp miền Tây Nam Bộ mới nhất 2021
Ngoài các căn nhà nóc Thái và nóc bằng trên. Còn có các mẫu nhà mini sân vườn trệt kiểu biệt thự. Anh em công ty cổ phần kiến trúc xây dựng Nhà Đẹp Mới vừa thực hiện trong tháng 1 năm 2021. Dự kiến qua tết khởi công. Trong đó các các mẫu nhà trệt kiểu Pháp cổ. Nhà 5 gian Nam Bộ hay nhà ba gian 2 chái cổ truyền xây gạch Đinh. Điển hình như nhà 670m2 anh Sang Long An


Mẫu nhà trệt nóc Thái ngang 18m 4 phòng ngủ anh Mạnh
Đây là ngôi nhà vườn nóc Thái hợp với đất rộng ở quê. Bề ngang phải 18m2 đến 20m mới chọn kiểu này được. Hồ sơ cất nhà đẹp 180m2 kiến trúc 4 gian hiện đại 1 thò 3 thụt. Có không gian bếp và bàn ăn 1 bên phải tách riêng có 2 cửa chính đi vào. Tối ưu màu sơn trắng chủ đạo mái lợp ngói Thái 15k/viên. Mặt bằng và phối cảnh như sau


Bản vẽ nhà trệt 5 mái ở quê nông thôn cô giáo Nhung
Kiểu nhà trệt 5 mái trau chuốt trang trí mặt tiền theo kiến trúc nhà đẹp miền Tây. Bề ngang 9m dài 16m của vợ chồng giáo viên anh Tư Bốn và chị Nhung. Mặt tiền phía ngoài thiết kế giật cấp 3 mái phía sau có 2 mái 2 chái vuông góc với ba mái trước. Đây cũng là bản vẽ cất nhà nóc Thái kiểu châu âu bên hông có hành lang thông thoáng và sân trước rộng. Bên trong mặt bằng tối ưu có 3 phòng ngủ gian bếp phái sau rất rộng có lối ra vườn nhà sau



Hồ sơ cất nhà trệt chữ L anh Tâm nông thôn Tiền Giang
Kiểu nhà đẹp Tiền Giang anh Tâm thiết kế theo kiến trúc nóc Thái hiện đại. Kích thước xây rộng 160m2 ngang 9m dài 18m trên đất tổng thể bề ngang 12m dài 40m. Căn nhà trệt mái thái 9×18 3 phòng ngủ 1 phòng thờ này đã cất xong. Hình ảnh 3D các góc nhìn như sau. Cần xem nhà cấp 4 kiểu Thái đẹp Tiền Giang mình gửi thêm

Kiến trúc nhà vườn hình chữ U kiểu Mỹ ở nông thôn chú Thành
Đây là 1 hình đại diện phối cảnh thiết kế nhà kiểu Mỹ villa sân vườn trệt hơn 200m2 xây dựng. Vẽ mới cho đại gia đình chú Thành ở Bạc Liêu. Muốn xây nhà biệt thự mini sân vườn có bể bơi gara 1 bên này. Đất anh chị phải rộng bề ngang 25m sâu vào tối thiểu 20m. Mẫu nhà vườn Nam Bộ là kiến trúc cấp 4 nhưng kiểu Villa hiện đại mái ngói. Anh chị tính xây nhà kiểu Mỹ tại các tỉnh miền Tây Nam Bộ thì alo giúp mình. Xem nhà chú Thành ở đây mà khám phá thêm sân vườn kiến trúc nhà kiểu Mỹ


Xem biệt thự trệt tân cổ điển 4 phòng ngủ nông thôn 2021
Ngoài ra còn có các kiểu nhà trệt nóc bằng 3 phòng ngủ có gara. Hay các kiến trúc biệt thự trệt tân cổ điển mái Nhật rộng 160m2 đến 250m2 khác. Tùy theo nhu cầu về tài chính cần xây biệt thự trệt ở quê kiểu cổ điển.. Kiến trúc sư NHÀ ĐẸP MỚI địa chỉ tại Sài Gòn sẽ về khảo sát tư vấn cho anh em

- Xem 50 bản vẽ thiết kế nhà vườn đẹp ở nông thôn như hình ảnh Huy & các kiểu khác
Mẫu nhà villa trệt có gara 300m2 sân vườn châu âu nông thôn
Đây là mẫu villa trệt trị giá 2 tỷ rộng tới 300m2 xây cho anh Hùng. Kiến trúc bán cổ điển mái ngói đổ sàn áp mái rộng rãi có nhà để xe gara 1 bên thích hợp với kiến trúc cảnh quan sinh thái biệt thự cao cấp miền Tây Nam Bộ. Đồng thời biệt thự trệt ở quê nghỉ dưỡng về hưu này ý thiết kế dành cho các anh chị cần xây nhà vườn đất rộng. Cũng như không thích leo lầu và cốt cách phóng khoáng trang nhã nhưng tinh tế. Nhà villa kiểu châu âu sân vườn không bao giờ lỗi thời



Cuối cùng không có gì hơn xin chân thành cám ơn anh Út. Cùng anh chị đã tin tưởng anh em KTS kỹ sư công ty cổ phần thiết kế xây dựng NHÀ ĐẸP MỚI minh trong 9 năm qua. Trên đây là các kiểu thiết kế nhà trệt mẫu mã đẹp hiện đại ở nông thôn. Mình cập nhật thêm phần 1 và trong phần 2 có video gửi anh chị xem thực tế còn nữa.. Chúc buổi tối an lành vui vẻ. Trân trọng.!