Cách xây nhà biệt thự phố đẹp 1 trệt 2 lầu rộng 7m anh Khách.
Mẫu nhà phố mặt tiền 7m này được chúng tôi xây dựng cho anh Kiến trúc mái thái lợp ngói phong cách tân cổ điển hướng Tây và Tây Nam. Với diện tích đất ngang 7m xây nhà hình chữ L có chỗ để xe với hành lang 2,8m là hợp lý. Mời các bạn tham khảo bản vẽ biệt thự cổ Hà Nội 1 trệt 2 lầu 7 × 18 này
- Mặt tiền nhà phố đẹp 7m 3 tầng bán kiểu pháp cổ điển đẹp
- Ngắm nhìn siêu biệt thự 3 tầng 2 mặt tiền 7m kiểu pháp đẹp tại Bình Định
Bản vẽ kiến trúc biệt thự nhà phố mặt tiền 7m 3 tầng chữ L
Hầu hết những ngôi biệt thự phố cổ đều có một hoặc hai mặt tiền xây theo hình chữ L. Gia chủ thường nhờ kiến trúc sư của một công ty xây dựng thiết kế nhà vừa để ở vừa kinh doanh. Thậm chí xây nhà trọ kinh doanh hoặc cho thuê. Nhưng với anh Guest thì khác. Anh ấy có nhu cầu xây dựng Nhà phố 3 tầng mặt tiền 7m giữ mát. Không gian có sân rộng để được 7 ô tô và nhiều ánh sáng giúp bên trong nhà có nhiều ánh sáng. Hướng nam hình chữ L vừa đúng phong thủy.

Thông tin mẫu nhà phố mặt tiền 7m mái thái
Sau khi nghe nhu 7m. thiết kế nhà phố rộng Rộng 25m và sâu 25m. Rất lý tưởng cho các phòng chức năng cần sử dụng và có ngân sách đầu tư. Các kiến trúc sư của công ty xây dựng Nhà Đẹp Mới chúng tôi đã lên phương án thiết kế nhà đẹp 3 tầng mặt tiền 7m. Mang kiến trúc biệt thự mini biệt thự pháp cổ phong cách tân cổ điển. Theo mặt bằng mẫu nhà đẹp 3 tầng hình chữ l hướng Tây Nam với những thông tin sau
- Dự án thiết kế nhà ngang 7m dài 25m 1 mặt tiền.
- Chủ đầu tư: Trương Văn Khách sinh năm 1968 Mậu Thân
- Phong thủy nhà hướng Tây Nam - Tây Tứ Trạch
- Diện tích lô đất hình chữ nhật 174m2
- Diện tích xây dựng 7 × 18
- Phong cách kiến trúc: Biệt thự mini 3 tầng kiểu Pháp
- Kinh phí đầu tư: 1,8 tỷ đồng
- Đơn giá cập nhật năm 2020

Nếu bạn không thích kiểu biệt thự phố cổ Hà Nội như anh Thì xem mẫu nhà 2 tấm rưỡi mặt tiền 7m trẻ trung, thoáng đãng chị Trinh NHƯ HÌNH dưới đây click để xem thêm

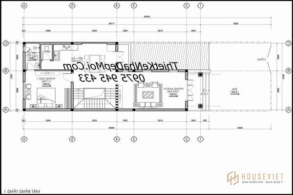
Mặt bằng thiết kế nhà phố đẹp 1 trệt 2 lầu 7 × 18
Mẫu t7m. thiết kế nhà ngang Kiến trúc biệt thự 3 tầng hình chữ l đẹp thiết kế theo hướng Tây Nam. Mạnh Thổ cung Phúc Vị hợp với tuổi Mậu Thân 1968 của gia chủ Quý Khách. Trong đó, do bố mẹ già năm nay gần 70 tuổi nên việc lên xuống cầu thang không được thuận tiện. Vì vậy anh yêu cầu thiết kế với 1 phòng ngủ ở tầng trệt. Có toilet chung trong phòng để tiện đi lại. Không gian còn lại thiết kế 1 phòng khách, bếp và 1 vệ sinh chung.
- Mẫu nhà phố mặt tiền 7m 2 tầng 1 tum sân thượng đẹp Cô Bé Sa Đéc
- Nhà ống 3 tầng mặt tiền 7m kiến trúc hiện đại chị Loan

Mặt bằng tầng 2 nhà phố 3 tầng mái thái anh Khánh
Tầng 2 phương án thiết kế nhà 7 × 18 anh Khánh thiết kế 3 phòng ngủ, mỗi phòng 14,5 trở lên. Sử dụng chung 1 phòng tắm và vệ sinh rộng 5,4m2. Gian còn lại bố trí phòng karaoke 18m2


- Ngắm nhìn mẫu biệt thự 1 trệt 2 lầu mặt phố 7m được báo chí nước ngoài khen ngợi như hình ảnh nhà anh Tuấn ở trên
Bản vẽ thiết kế biệt thự nhà phố 3 tầng mái thái mặt tiền 7m tầng 3
Tầng 2 trên cùng mẫu nhà đẹp 3 tầng mặt tiền 7m có 1 phòng thờ kết hợp thư viện. Ngoài ra, nếu cần phòng ngủ hoặc phòng tập thể dục, bạn cũng có thể thay thế cho các hoạt động chung. 2. Vì anh Khánh muốn có một phòng karaoke riêng để giải trí. Dù sao, đó là sở thích cá nhân của anh ấy.

Mặt bằng tầng 1 Mẫu nhà 3 tầng mặt tiền 7m Dài 18m thiết kế 3 phòng ngủ. Không gian còn có thêm 1 phòng sinh hoạt chung và 1 phòng vệ sinh chung. Không gian sống của anh và vợ và 2 con. Và trên tầng 2 cũng để trống diện tích phía sau làm sân thượng nhỏ phơi rau xanh. Mặt bằng công năng của ngôi biệt thự 3 tầng 7 × 18 còn được thiết kế 1 phòng thờ và 1 phòng karaoke gia đình. Như vậy bản vẽ mặt bằng nhà phố rộng 7m gồm 4 phòng ngủ, 1 phòng thờ và 1 phòng sinh hoạt chung, 1 phòng karaoke gia đình.
Kinh phí xây nhà phố mặt tiền 7m 3 tầng mái ngói
Vật mẫu Mẫu nhà đẹp 3 tầng hình chữ L mặt tiền 7m thiết kế chừa sân trước rộng làm cổng và hàng rào. Không gian có thể trồng thêm cây xanh hoặc chơi tiểu cảnh sân vườn. Hoặc hòn non bộ cho ông bà cũng như chỗ để ô tô. Chừa lại 2m sân phơi nắng. Bên hông có sảnh hình chữ L Tây Nam rộng 2,8m nên làm gara ô tô 7 chỗ bên ngoài. Nhưng nếu cần, có thể thiết kế thêm một mái vòm cong lợp ngói lưu ly. Hoặc nhựa poly carbon để che mưa nắng cho gara. Tùy theo nhu cầu sử dụng và độ sâu hẹp của mảnh đất của mỗi gia đình.

Mẫu thiết kế nhà phố rộng 7m 1 trệt 2 lầu tối ưu mặt tiền theo phong cách biệt thự tân cổ điển kiểu Pháp. Bản vẽ chi tiết cấu tạo có mũ tường mềm. Tường sơn trắng và ốp gạch Fuji Nhật Bản màu đỏ. Còn cổng chính thì dùng nhôm đúc chất liệu tốt hoặc cổng sắt mỹ thuật. xem thêm

Nếu bạn thích mẫu nhà mái thái bán cổ điển 1 trệt 2 lầu có sân thượng thì hãy xem hình nhà anh Thành ở trên TRONG BÀI NÀY và lựa chọn
Xem thêm các mẫu biệt thự 3 tầng tân cổ điển châu âu mặt tiền 7m đẹp khác
Mẫu nhà đẹp 3 tầng hình chữ l 7x18m là một trong những mẫu thiết kế nhà đẹp bán cổ điển có mặt tiền đẹp. Kiến trúc phong thủy nhà hướng Tây Nam có sân rộng. So với những mẫu nhà phố đẹp 3 tầng rộng 7m phong cách hiện đại đơn giản khác. Kinh phí xây dựng mẫu biệt thự mini kiểu Pháp đắt hơn. Cụ thể, giá hoàn thiện khoảng 5,8 triệu / m2 đến 6 triệu / m2 vào năm 2020. Do sử dụng cầu thang tay vịn gỗ. Trang thiết bị nội thất cao cấp nên giá xây dựng hiện tại hơn 1,8 tỷ đến 2 tỷ



= >> Xem thêm các mẫu khác biệt thự tân cổ điển Năm 2021 đẹp nhất của công ty chúng tôi
Trên đây là mẫu biệt thự phố đẹp mặt tiền 7m 1 trệt 2 lầu kiến trúc mái ngói. Có ban công tầng 3 hình bán nguyệt biệt thự mini đẹp mái thái. Chúng tôi cập nhật nhanh chóng để bạn tham khảo và lựa chọn. Xin cảm ơn gia đình Quý Khách đã vui vẻ hợp tác với công ty chúng tôi. Kết nối zalo 1800 6015 để gửi thêm các mẫu nhà mặt phố đẹp ngang 6m 7m 8m và báo giá. Chúc bạn và gia đình nhiều sức khỏe và thành công.