Chia sẻ bản vẽ cad nhà cấp 4 5x20m 400 triệu miễn phí NDNC4117
Xin chào các bạn, có một điểm mình nhận thấy là rất ít bài viết chia sẻ bản vẽ cad nhà cấp 4 5x20m. Chính vì vậy hôm nay tôi mới thực hiện một mẫu thiết kế nhà ống cấp 4 để chia sẻ đến các bạn. Nhớ lại gần 10 năm trước, tôi đã từng chia sẻ thiết kế và bản vẽ miễn phí với bạn. Những ngày đó các kiến trúc sư không mấy quan tâm đến những ngôi nhà cấp 4. Hồi đó nói đến thiết kế nhà cấp 4 hầu như không ai nghĩ đến thiết kế, nhưng bây giờ thì khác. Dù bạn đang xây nhà cấp 4 hay biệt thự thì việc thiết kế là một việc vô cùng cần thiết. Tuy nhiên, không phải ai cũng có nhiều tiền hay đầu tư chi phí để xây dựng ngôi nhà của mình. Chính vì lẽ đó mà tôi viết bài này với mục đích chia sẻ cho các bạn cùng tham khảo một mẫu bản vẽ cad nhà cấp 4 5x20m. Thực ra bản vẽ nhà cấp 4 này không được đầy đủ lắm, chỉ bao gồm những phần sau:
- Bản vẽ CAD mặt bằng nội thất nhà cấp 4
- Bản vẽ cad mặt bằng mái nhà
- Bản vẽ CAD mặt bằng nhà cấp 4
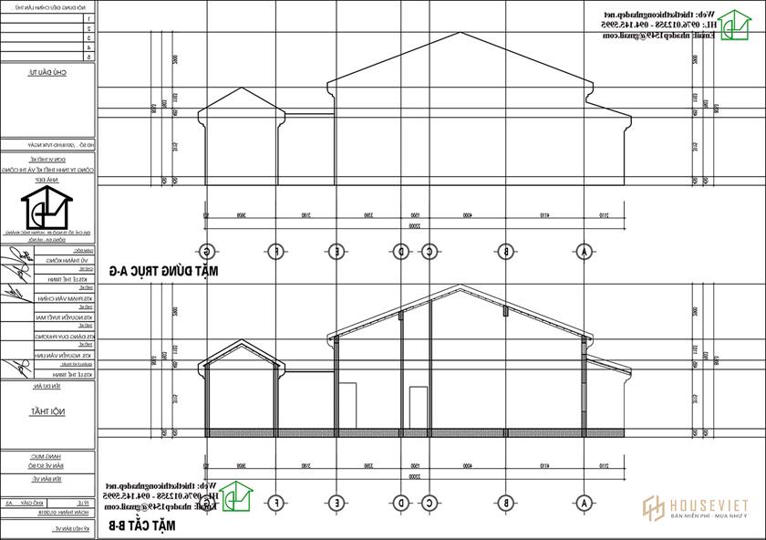
- Bản vẽ CAD mặt tiền công trình nhà cấp 4
- bản vẽ cad mặt cắt BB của 4. nhà ống
- bản vẽ cad móng băng và chi tiết móng băng
Vì không có nhiều thời gian nên em không vẽ chi tiết được phần này của bức vẽ. Tuy nhiên nếu bạn xây nhà thì mình nghĩ với bản vẽ trên bạn có thể xây thoải mái. Bạn có thể tải file bản vẽ, file dự toán mà chúng tôi chia sẻ ở cuối bài viết này.
Tiêu chí tôi đặt ra trong bản vẽ cad nhà cấp 4 5x20m này là tiết kiệm chi phí xây dựng cho gia đình bạn. Chính vì vậy, kết cấu cũng như kết cấu của ngôi nhà cấp 4 hoàn toàn được đơn giản hóa đi rất nhiều. Như phần móng bạn có thể bố trí làm móng gạch, phần mái bạn có thể tùy chọn lợp ngói hoặc lợp tôn tùy theo điều kiện của gia đình mình. Phần mái bên trên chúng tôi không lợp bằng mái bằng mà phần mái bạn chỉ đổ nẹp để hèm khóa tường và mái bằng ngói hoặc tôn. Dưới đây bạn có thể lựa chọn đóng trần bằng thạch cao hoặc trần nhựa tùy theo sở thích. Tuy nhiên về mặt thẩm mỹ, tôi nghĩ giải pháp trát tường là giải pháp được nhiều người lựa chọn, tuy hơi tốn kém nhưng về mặt thẩm mỹ thì rất đẹp. Trong bài viết này, tôi sẽ cố gắng chia sẻ với bạn nhiều thông tin nhất có thể để bạn tham khảo.
Thông tin mẫu nhà ống cấp 4 5x20m
- Diện tích đất: 5x26m
- Diện tích nhà: 5x20m
- DTXD: 100m2
- Tổng kinh phí xây dựng dự kiến: 400 triệu đồng
- Nội thất gồm: 1 phòng khách, 1 bếp, 2 phòng ngủ, 2 vệ sinh.
Thông tin này chỉ mang tính chất ước tính vì từng khu vực, giá nguyên vật liệu đầu vào và giá nhân công xây dựng có thể thay đổi. Do đó, mức giá có thể thay đổi theo từng khu vực.
Phối cảnh 3D bản vẽ cad nhà cấp 4 5x20m
Trong bài giới thiệu về 3D này, mình chia làm 2 phần trong đó 1 phần chỉnh sửa một chút về màu sắc của bức tường phía trước với màu cam. Bạn có thể thấy rõ hơn ở phần 3D.

Đây là phần thiết kế phối cảnh chính của mẫu bản vẽ cad nhà cấp 4 5x20m mời các bạn tham khảo. Về cơ bản, mẫu thiết kế này được chúng tôi thiết kế khá đơn giản như phần giới thiệu ở trên. Không biết các bạn thấy thế nào nhưng để tiết kiệm chi phí xây dựng thì chúng tôi không thể thiết kế quá cầu kỳ và phức tạp.



Đây là góc nhìn từ trên cao nhìn xuống sẽ giúp bạn hình dung được phần nào về kiến trúc cũng như phong cách của ngôi nhà này. Hai bên được xây tường bao và lợp mái tôn xuống để tránh nước mưa chảy sang nhà hàng xóm.

Với góc nhìn này chắc chắn bạn sẽ hình dung rõ nét hơn về mẫu thiết kế nhà cấp 4 của chúng tôi. Có thể thấy ngôi nhà khá dài và được chia thành 3 khối chính để đảm bảo tất cả các phòng trong nhà đều có ánh sáng tự nhiên.

Đây là phương án 2 khi bức tường phía trước của ngôi nhà được thiết kế cùng màu.
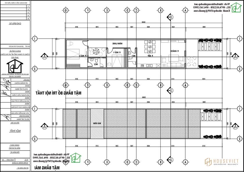
Mặt bằng bố trí nội thất và bản vẽ thiết kế nhà cấp 4. nhà ống

Bạn có thể tham khảo cách bố trí nội thất mặt bằng các tầng qua hình ảnh trên. Mẫu bản vẽ cad nhà cấp 4 5x20m này được tôi thiết kế từ kiến trúc của Hội An. Phần thân nhà khá dài lên tới 20m nên ở giữa được bố trí phần sân vườn và mái kính. Mái kính này có tác dụng lấy sáng cho phòng ngủ của con cái và phòng ngủ của bố mẹ ở cuối nhà. Bạn có thể không cần lợp phần đó, nhưng chúng ta sẽ phải làm thêm cửa ở phòng ngủ 1 để đi ra ngoài.

Trong bài viết này, tôi cũng chia sẻ với các bạn khá chi tiết về mẫu thiết kế nhà cấp 4 mái thái này. Về bản vẽ mặt bằng và cao độ, mặt cắt để các bạn hiểu rõ hơn về bản vẽ cad nhà cấp 4 5x20m này. Mọi thắc mắc vui lòng liên hệ với mình để được tư vấn thêm.

Bản vẽ mặt bằng nhà cấp 4

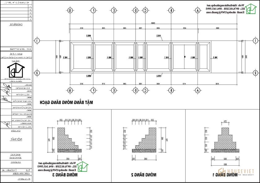
Đây là sơ đồ mặt bằng và chi tiết phần móng để các bạn tham khảo, phần móng được thiết kế hoàn toàn bằng móng gạch đảm bảo giảm thiểu chi phí xây dựng cho công trình. Lên đến cốt 0 thì đóng thêm 1 thanh đà chống thấm và trên mái cũng đóng thêm 1 thanh giằng để giữ tường vào khung và khối. Đối với một công trình thông thường, mẫu nhà cấp 4 này cũng được thiết kế và lược bỏ khá nhiều chi tiết để giảm thiểu chi phí xây dựng.
Bảng dự toán chi phí nhà ống cấp 4 mái thái 5x20m
Trong bài viết chia sẻ cad bản vẽ nhà cấp 4 5x20m chúng tôi sẽ cung cấp cho bạn bảng dự toán khối lượng xây dựng kèm theo bảng tổng hợp chi phí xây dựng nhà ống cấp 4 để bạn tham khảo. .
Tính toán khối lượng gạch xây
| Stt | Tên sản phẩm | Đơn vị | Khối lượng | Số lượng | thành khối lượng | Số lượng gạch 1m3 | Thành (gạch) |
| MB1 | Móng băng 1 | m3 | 1,07 | 6 | 6,40 | 550 | 3.522 |
| MB2 | Móng băng 2 | m3 | 5,22 | 2 | 10.44 | 550 | 5,742 |
| MB3 | Móng băng 3 | m3 | 0,96 | 2 | 1,92 | 550 | 1.057 |
| 2 bên tường | 2 bên tường | m3 | 28.07 | 2 | 56,14 | 550 | 30.877 |
| Vách ngăn 1 | Tường | m3 | 4,94 | Đầu tiên | 4,94 | 550 | 2.715 |
| Vách ngăn 2 | Tường | m3 | 2,47 | Đầu tiên | 2,47 | 550 | 1.357 |
| 3. tường ngăn | Tường | m3 | 7.25 | Đầu tiên | 7.25 | 550 | 3.990 won |
| Tổng số viên gạch | 49.259 |
Đây là bảng tính khối lượng gạch lát nền mà mình đã tính toán cho các bạn tham khảo. Đây không phải là dự toán mà chỉ là cẩm nang, nếu để lập dự toán chi tiết cho dự án này thì sẽ khác. Bạn có thể tham khảo bảng dự toán xây nhà để dễ so sánh hơn
Bảng tổng hợp chi phí xây nhà cấp 4 5x20m. những ngôi nhà
| Stt | Diện tích | Đơn giá | thành tiền |
| Đất tôn m3 | 150 | 120.000 won | 18.000.000 won |
| Công nhân xây dựng | 100 | 900.000 won | 90.000.000 |
| Thợ điện nước | 100 | 120.000 won | 12.000.000 won |
| Diện tích mái tôn | 99,77 | 400.000 yên | 39,908,000 won |
| Tiền xây gạch | 49259 | 1.200 | 59.110.800 |
| Tiền cửa nhôm việt pháp | 18,958 | 1.200.000 won | 22.749.600 |
| Tiền sơn tường | 684,77 | 60.000 won | 41.086.200 |
| Phân ban đêm | 2 | 1.000.000 won | 2.000.000 won |
| Chậu rửa mặt | 2 | 550.000 won | 1.100.000 won |
| Gương | 2 | 550.000 won | 1.100.000 won |
| Vòi hoa sen và vòi | 2 | 2.000.000 won | 4.000.000 won |
| Gạch | 100 | 180.000 won | 18.000.000 won |
| Gạch lát nhà vệ sinh | 40.128 | 180.000 won | 7.223.040 |
| Trần thạch cao | 100 | 220.000 won | 22.000.000 won |
| Tiền thép đổ móng dầm, giằng tường | Đầu tiên | 5.000.000 won | 5.000.000 won |
| Tiền cát xây dựng m3 | 95.8292 | 250.000 won | 23.957.300 |
| Tiền xi măng Hoàng Thạch xây tường (tấn) | 26.06196 | 1.270.000 won | 33.098.689 |
| Xi măng cho gạch lát nền và tường | 140 | 20.000 won | 2.800.000 won |
| Giá thành dây điện, bóng đèn, ống nước | Đầu tiên | 15.000.000 vnđ | 15.000.000 vnđ |
| Tổng chi phí xây dựng ước tính | 418.133.629 |
Đây là bảng dự toán chi phí xây dựng, về cơ bản chi phí xây dựng cho căn nhà này khoảng 400 - 500 triệu. Có thể thay đổi tùy theo đơn giá của từng khu vực. Bạn có thể lấy khối lượng này và áp giá khu vực của mình, chúng tôi sẽ có đơn giá chính xác hơn.
Và bản vẽ cad nhà cấp 4 5x20m cũng như bảng tổng hợp mình vừa làm xong mình xin chia sẻ để các bạn cùng tham khảo. Vui lòng tải về để sử dụng, đơn giá này chỉ mang tính chất tham khảo, không phải đơn giá nào cũng có thể áp dụng trong bảng này.
Link tải bản vẽ, dự toán khối lượng bản vẽ cad nhà cấp 4 5x20m đẹp: https://drive.google.com/file/d/1pbvjD2mk3oG4WeKZh2QN2FYyfiIWsuaY/view?usp=sharing
Mời các bạn xem qua các mẫu thiết kế nhà ống cấp 4 đẹp khác của chúng tôi:
- Nhà cấp 4 ở nông thôn, mẫu nhà cấp 4 đơn giản ở nông thôn
- Mẫu nhà cấp 4 7 × 15 nhỏ gọn và độc đáo tại Hà Nội
- Nhà cấp 4 gác lửng, mẫu nhà cấp 4 mái xéo ở Nam Định
- Mẫu nhà cấp 4 3 phòng ngủ 100m2 đẹp ở Thái Bình NDNC4121
- https://thietkethicongnhadep.net/mau-nha-dep/nha-cap-4-3-phong-ngu/
- Mẫu nhà cấp 4 hiện đại, nhà mái thái đẹp tại Hà Nam NDNC4118