Chia sẻ mẫu thiết kế nhà 2 tầng 4 phòng ngủ đẹp
Mẫu thiết kế nhà 2 tầng 4 phòng ngủ đẹp đa dạng phong cách tạo nên một không gian sống đẳng cấp và thời thượng. Việc sử dụng những đường nét cá tính kết hợp với cách phối màu hiện đại mang đến sức hút không thể chối từ. Bài viết dưới đây, House Viet muốn gửi đến quý khách hàng mẫu nhà 2 tầng 4 phòng ngủ được xây dựng mới nhất. Hãy nhanh tay để dành những mẫu nhà đẹp này nhé!
Mẫu nhà 2 tầng 4 phòng ngủ đẹp đa dạng phong cách
Mẫu nhà 2 tầng hình chữ L 4 phòng ngủ
Mẫu thiết kế nhà chữ L 2 tầng 1 tum thường ưu tiên sử dụng mái thái ấn tượng, đảm bảo phong thủy. Về công năng, mẫu nhà 2 tầng này được chia thành 4 phòng ngủ. Cảnh quan xanh mát bao quanh ngôi nhà tạo không gian thoải mái, dễ chịu cho ngôi nhà. Tông màu trắng - xanh tạo nên kiến trúc trang nhã nhưng không kém phần lịch sự.


Ngoài Thiết kế nhà 2 tầng 4 phòng ngủ 1 phòng thờ Nó có những đường nét vuông vắn nhưng rất hiện đại và tinh tế. Tông màu trắng xanh với thiết kế mái xanh gây ấn tượng. Thiết kế mái Thái được sử dụng phổ biến vừa tăng tính thẩm mỹ vừa đảm bảo yếu tố phong thủy.


Mẫu thiết kế nhà 2 tầng 4 phòng ngủ hiện đại
Mẫu nhà 2 tầng 4 phòng ngủ hiện đại này trông đơn giản nhưng không kém phần tinh tế. Điểm độc đáo của ngôi nhà là phần mái xéo trông bắt mắt, đồng thời tạo điểm nhấn cho tổng thể ngôi nhà. Sự kết hợp màu sắc tạo nên vẻ đẹp trang nhã, lịch sự đến từng chi tiết. Mái xéo kết hợp với cửa kính rộng thoáng mang đến cho khách hàng sự lựa chọn hoàn hảo.

Mẫu nhà 2 tầng 4 phòng ngủ Hiện đại này được xây dựng với cửa sổ kích thước lớn để lấy ánh sáng vào phòng. Thiết kế này còn tạo cảm giác rất gần gũi với thiên nhiên, tạo không gian thoáng đãng hơn. Mẫu nhà 2 tầng này hiện đang được rất nhiều gia đình lựa chọn để thiết kế cho ngôi nhà mới của mình.




Mẫu thiết kế nhà 2 tầng 4 phòng ngủ tân cổ điển
Mẫu nhà 2 tầng 4 phòng ngủ lựa chọn phong cách tân cổ điển với những đường nét sang trọng, cuốn hút. Họa tiết mái vòm trên từng ô cửa kết hợp với màu trắng tinh tế tạo nên sức hút riêng biệt. Cảnh quan cây xanh được phối hợp hài hòa mang đến không gian sống thoáng đãng, thoải mái.



Mẫu thiết kế nhà ống 2 tầng 4 phòng ngủ
Mẫu nhà ống 2 tầng 4 phòng ngủ được sử dụng nhiều kiểu mái thái mang đến kiến trúc ngôi nhà ấn tượng và độc đáo. Cách trang trí nhà bằng những tiểu cảnh xanh ấn tượng tạo không gian sống thoải mái, dễ chịu. Khu vực lan can được bố trí cây xanh tạo hiệu ứng màu sắc hài hòa, trang nhã.


Hiện nay rất nhiều gia đình lựa chọn thiết kế nhà 2 tầng 4 phòng ngủ đẹp bởi tính tiện ích và công năng vô cùng lớn. Mẫu nhà này phù hợp với diện tích mặt tiền hạn chế và có nhiều thành viên sinh sống. Phân bổ công năng hiệu quả mang đến môi trường sống tiện nghi, hiện đại.


Mẫu thiết kế nhà 2 tầng hoàn chỉnh sử dụng lối thiết kế đơn giản, hiện đại đến từng chi tiết. Sự phân bổ không gian được bố trí hài hòa, ấn tượng đến từng chi tiết. Phòng khách, phòng ngủ, phòng thờ của ngôi nhà được bố trí hợp lý tạo sự thuận tiện cho khách hàng trong quá trình sử dụng.



Mẫu nhà 2 tầng 4 phòng ngủ đẹp theo diện tích
Mẫu thiết kế nhà 2 tầng 4 phòng ngủ 80m2
Nhà 2 tầng 80m2 Được bố trí vô cùng thẩm mỹ và công năng với 4 phòng ngủ. Tầng 1 gồm phòng khách rộng rãi, bên cạnh bộ sofa là không gian để kệ trang trí. Tầng 2 bố trí phòng thờ rộng có hướng nhìn ra mặt tiền. Sân thượng rộng rãi để cả gia đình có thể thư giãn, quây quần bên nhau. Ngoài ra, không gian sân thượng còn có thể thiết kế thêm bàn trà, trồng rau, trồng hoa cho ngôi nhà của bạn thêm phong phú.



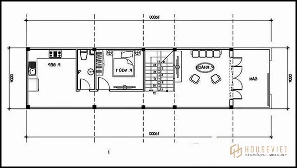
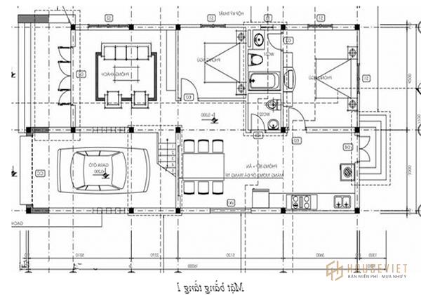
Mẫu nhà 2 tầng 100m2 4 phòng ngủ
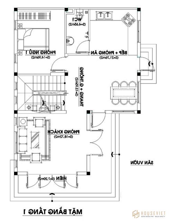
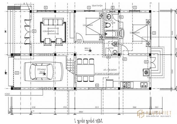
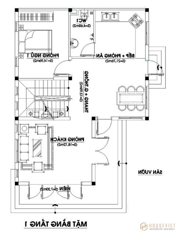
Bản vẽ mặt bằng mẫu nhà 2 tầng 100m2 được thiết kế và phân chia không gian ấn tượng và độc đáo. Bên phải là phòng khách hướng ra gara, phía sau thiết kế 2 phòng ngủ trong đó có 1 phòng ngủ có thêm 1 phòng vệ sinh. Mặt còn lại đối diện bếp liên thông với bàn ăn bằng cửa sổ hai bên và cửa sau thoáng mát. Ngoài ra còn có một phòng vệ sinh nhỏ chung cho cả tầng trệt.


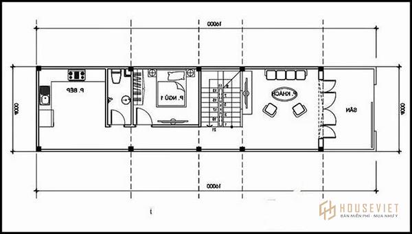
Mặt bằng tầng 2 với thiết kế phòng thờ liền kề phòng sinh hoạt chung, phòng giặt, vệ sinh và cuối cùng có cửa thông ra sân phơi tiện ích. Phía đối diện bên phải gara được thiết kế 2 phòng ngủ đẹp, giữa 2 phòng là lối lên cầu thang. Phía sau là giếng trời để lấy sáng cho cả gia đình.


Mẫu thiết kế nhà 2 tầng 4 phòng ngủ chắc chắn mang đến cho gia chủ một không gian sống hiệu quả và ấn tượng đến từng chi tiết. Việc sử dụng kiến trúc hiện đại giúp cho ngôi nhà đảm bảo được giá trị thẩm mỹ và sự tiện nghi. Đó là những gì House Viet mong muốn gửi đến quý khách hàng qua từng công trình. Bạn có thể liên hệ với họ Hotline tối qua 1800 6015 để được các kiến trúc sư tư vấn thiết kế và thi công công trình nhà ở hoàn hảo nhất.
Xem một số bài viết:
- Mẫu thiết kế nhà 2 tầng 50m2 3 phòng ngủ hiện đại với bản vẽ chi tiết
- Mẫu thiết kế nhà chữ L 2 tầng 1 tum hiện đại nhất hiện nay.
House Viet - Vững niềm tin