Conception d'ensemble d'une villa de jardin de 2 étages avec toit en tuiles
Modèles de conception Villa de jardin sur 2 étages avec toit en tuiles les deux répondent à l'espace de vie confortable, proche de la nature, montrant la classe et le goût esthétique impressionnant de l'investisseur. Cette conception de villa est devenue et devient le premier choix en matière de conception de maison au Vietnam. Avec la force de posséder un grand terrain et un paysage de jardin aéré, choisir un design qui a à la fois une apparence moderne et honore les caractéristiques de la culture asiatique est ce qui préoccupe le plus les investisseurs aujourd'hui. Anh Dung est également un tel investisseur. Sa famille travaille et vit actuellement à Hanoï, mais il souhaite investir dans la construction d'une maison de 2 étages dans sa ville natale de Nghe An - où il est né. La maison a été déployée par l'équipe d'architectes Wedo début 2021. Découvrons-en plus sur ce modèle de villa !

1. Perspective de l'architecture d'une villa de jardin de 2 étages avec toit en tuiles
Inspirées de l'architecture traditionnelle du Vietnam, les colonnes de l'architecture moderne sont généralement des piliers carrés qui montrent à la fois une certitude et sont extrêmement superficiels. Goûter Villa de jardin sur 2 étages avec toit en tuiles La famille de Dung possède une grande façade avec des piliers carrés dans le hall principal. Le pilier carré n'a pas besoin d'une décoration élaborée mais attire toujours le spectateur en créant des accents concaves profonds, peints en noir luxueux. La colonne de la maison est l'une des parties structurelles importantes dont le rôle est de supporter la pression au-dessus de la maison, en aidant à soutenir l'ensemble du bâtiment. Le pilier carré est coulé en béton armé, l'extérieur est peint en blanc et a des accents subtils. La méthode de construction de belles colonnes carrées est plus simple que les colonnes rondes, ne nécessite pas de compétences à long terme des travailleurs. Par ailleurs, la construction de colonnes carrées est également moins chère en matériaux que les colonnes rondes, du fait de l'architecture moderne, la tête et le pied de la colonne ne sont pas associés à des reliefs élaborés ou à des matériaux décoratifs comme l'architecture antique.

Dès la première rencontre avec la famille de M. Dung, nous nous sommes sentis extrêmement excités et impressionnés par l'amour sincère de la culture traditionnelle. Il a partagé que les images de maisons à 4 niveaux avec des toits de tuiles, des cuisines et de vieilles briques de ciment étaient toujours profondément ancrées dans son esprit. Pour cette raison, il a choisi de concevoir une maison de 3 pièces aux toits de tuiles, afin de conserver les caractéristiques de la famille vietnamienne, exprimant chaleur et proximité dans un espace moderne.

Concevoir Villa de jardin sur 2 étages avec toit en tuiles Cette propriété a une perspective extérieure qui convient à un style de vie moderne, plus précisément :
+ La tuile est conçue avec une pente raisonnable, adaptée au climat ensoleillé avec beaucoup de pluie de notre pays. Avec une grande pente de toit, il drainera facilement l'eau de pluie, de sorte qu'il ne stagnera pas ou n'absorbera pas l'eau de pluie à l'intérieur de la conception de la villa à 2 étages.
+ Disposition symétrique de la maison comprenant 1 compartiment central et 2 latéraux pour l'équilibre.
+ Maison moderne de 3 pièces avec jardin pour augmenter l'esthétique, créer des espaces verts, aider les propriétaires à se détendre de la manière la plus confortable.

La raison pour laquelle nous avons choisi le système de porte en verre pour tout l'espace de la maison est que le verre est connu comme un matériau moderne. Dans la maison, le propriétaire peut facilement observer toute la scène à l'extérieur ; tandis qu'à l'extérieur, regarder la maison donnera l'impression que l'espace est plus grand qu'il ne l'est réellement. Le verre est très facile à nettoyer sans se soucier d'être affecté par l'humidité, la pluie et le vent. De plus, le toit est large, à la fois aidant à couvrir le vent et la pluie et précieux en termes de création de blocs architecturaux pour la villa.

Qu'un bâtiment soit vraiment attrayant ou non, l'élément de couleur joue un rôle très important. Si la sélection de couleurs est trop faible, la villa ne pourra pas impressionner. Mais si vous choisissez une couleur trop vive, les gens se sentiront mal à l'aise. Par conséquent, la façon de coordonner les couleurs pour que la villa soit à la fois impressionnante et exceptionnelle attire beaucoup l'attention des propriétaires. Avec des dessins Villa de jardin sur 2 étages avec toit en tuiles, les architectes de Wedo ont choisi les tons blancs comme thème principal. Le premier étage est recouvert de pierres de base sombres, donnant à la villa un aspect solide et superficiel. Le blanc représente la pureté, la perfection, est une représentation de la foi, de l'espoir et du début du succès. Les couleurs simples et douces se combinent avec les tons exceptionnels du toit en tuiles, créant un ensemble très accrocheur.

Profitant de l'espace spacieux, l'architecte a eu l'idée de concevoir un jardin entourant la villa. Combiné avec garage extérieur, maisons auxiliaires et impressionnant lac écologique. De plus, le petit espace jardin est également aménagé par l'architecte en harmonie. Tous les détails de construction sont conçus en fonction du feng shui et des finances du propriétaire.

Peut être vu de la conception à la perspective du modèle Villa de jardin sur 2 étages avec toit en tuiles exprimer le caractère moderne, chic et unique d'un projet à valeur intemporelle. Il s'agit certainement d'un modèle de conception que vous ne pouvez pas ignorer lors de la planification de la conception d'un espace de vie pour votre famille.

Aujourd'hui, les conceptions de villas avec jardin ne se limitent plus à la banlieue ou à la campagne avec une grande surface. La villa de jardin de 2 étages est entrée dans la ville en raison de la capacité économique de la famille en développement, le propriétaire aime la tendance des espaces verts dans la maison. Les conceptions en harmonie avec la nature apportent une meilleure qualité de vie à tous les membres de la famille. En plus de belles villas de jardin à 2 étages, selon les besoins de chaque famille, vous pouvez également posséder des conceptions de villas à 1 étage, ou de villas à 3 étages avec jardin, si vous avez un grand espace, sont très populaires et "plus " par l'élément jardin.

2. Rez-de-chaussée d'une villa de jardin moderne de 2 étages
La famille de M. Dung possède un terrain rectangulaire avec une façade spacieuse. En raison de l'avantage que le terrain est très net et carré, lors du processus de consultation de conception, nous n'avons pas besoin d'enquêter directement sur l'état actuel, mais l'investisseur a fourni des informations complètes sur la taille du sol. En raison de la possession d'un grand terrain, l'architecte a conçu une maison auxiliaire ainsi qu'un parking extérieur (avec un toit) afin que le propriétaire puisse l'utiliser confortablement. Autour de la maison sont disposés plus d'arbres pour rendre la maison plus aérée et plus respectueuse de la nature.

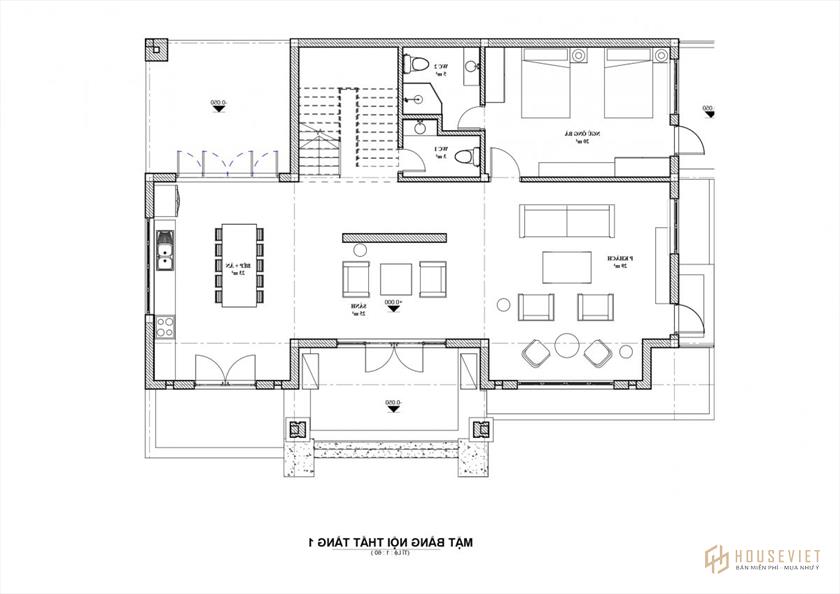
Fonctionnalité du premier étage de la conception Villa de jardin sur 2 étages avec toit en tuiles divisé en domaines fonctionnels distincts. Depuis le hall principal se trouve un grand hall central. Ici, le propriétaire accrochera des photos, des souvenirs de famille, précieux comme salle commémorative familiale. Sur le côté gauche se trouve un salon spacieux avec une grande capacité, afin que la famille de M. Dung puisse accueillir confortablement des invités dans la maison. À droite se trouve la salle à manger combinée avec la cuisine. C'est l'espace qui montre le confort, l'endroit où garder le feu pour la maison. A l'intérieur se trouve une chambre pour les grands-parents, assurant suffisamment de calme et de confort. Des escaliers sont situés dans le coin intérieur de la même maison pour monter à l'étage.

Au 2ème étage de la villa, vers la façade se trouve un digne lieu de culte à la fois calme et luxueux et assurant la ventilation. La superficie restante est priorisée pour 2 grandes chambres. Dans lequel chaque chambre a des fenêtres aérées et un chemin menant à un balcon privé. Outre l'optimisation de l'expérience de vie, l'architecte se concentre également sur la convection de l'air pour l'espace. La lumière naturelle et le vent sont toujours garantis pour chaque zone intérieure, contribuant à maintenir la conception de la maison aérée et propre, en évitant la moisissure et l'air stagnant.
Pour créer un modèle Villa de jardin sur 2 étages avec toit en tuiles Avec un coût d'investissement raisonnable, vous pouvez choisir des matériaux à un niveau assez moyen pour assurer la construction la plus économique du projet d'habitation de votre famille. Les coûts de construction dépendent également de nombreux facteurs tels que le style architectural, la superficie, la taille de la maison, le nombre d'étages, etc. De plus, ils sont également directement liés à la rareté des matériaux et aux coûts de main-d'œuvre selon les régions. Le niveau d'investissement de chaque propriétaire affecte également le coût de construction et de finition de la maison. Pour les familles qui investissent dans du matériel et des équipements à un niveau haut de gamme, cela coûtera plus cher que celles qui investissent dans le niveau de base moyen.
Noter:
+ Vous laissez des informations sur la région, la taille de la maison à construire et l'adresse e-mail en dessous du commentaire de chaque article.
+ Nous vous répondrons immédiatement et vous enverrons une estimation des coûts pour votre famille.
Si vous avez besoin de conseils sur la conception de maisons et de villas, veuillez nous contacter via Hotline 024.38 16 8888 pour l'échange le plus détaillé et le plus clair.