Dự án Trung tâm TMDV ô tô, khách sạn và văn phòng cho thuê Dũng Tiến do Sơn Hà Architecture thiết kế – SH KS 0062
Ngày 16/5/2018 tại thành phố Tuy Hòa (tỉnh Phú Yên) đã diễn ra lễ động thổ Trung tâm TMDV ô tô, khách sạn và văn phòng cho thuê Dũng Tiến với sự tham gia của cơ quan ban ngành và các đối tác, khách hàng. Công ty Cổ phần Tư vấn Xây dựng Sơn Hà (SHAC, Sơn Hà Architecture) tự hào là đơn vị thiết kế tổ hợp Trung tâm TTTM, khách sạn và văn phòng cho thuê này.
NỘI DUNG CHÍNH
- 1 THIẾT KẾ TỔ HỢP TT TMDV, KHÁCH SẠN VÀ VĂN PHÒNG CHO THUÊ KHẲNG ĐỊNH VỊ THẾ SƠN HÀ ARCHITECTURE
- 2 THIẾT KẾ TỔ HỢP TRUNG TÂM TMDV Ô TÔ, KHÁCH SẠN 5 SAO VÀ VĂN PHÒNG
- 3 LỄ ĐỘNG THỔ DỰ ÁN DŨNG TIẾN
- 4 MẶT BẰNG KHÁCH SẠ N TIÊU CHUẨN 5 SAO TÂN CỔ ĐIỂN TRONG TỔ HỢP DỰ ÁN
Dự án gồm các hạng mục cao cấp như: thiết kế showroom ô tô diện tích lớn, thiết kế khách sạn 5 sao, thiết kế văn phòng cho thuê, thiết kế khu cafe. Điều đặc biệt, từng phân khu của dự án lại mang phong cách khác nhau làm nên bức tranh toàn cảnh vô cùng hút mắt cho cả tổ hợp. Nếu như khách sạn tân cổ điển xuất hiện với diện mạo tinh tế đến từng tiểu tiết, showroom ô tô hiện đại với các hình khối mạch lạc thì khu cafe mang đến trải nghiệm bình yên với bố trí độc đáo. Với vai trò là mộ trong những dự án trọng điểm của tỉnh Phú Yên, tổ hợp Trung tâm TTTM, khách sạn và văn phòng cho thuê này đang được quan tâm đặc biệt nhằm tạo điều kiện thuận lợi nhất hoàn thiện thi công đúng tiến độ và sớm đi vào hoạt động.
Mời bạn cũng theo dõi chi tiết phương án thiết kế công trình trong bài viết hôm nay.
THIẾT KẾ TỔ HỢP TT TMDV, KHÁCH SẠN VÀ VĂN PHÒNG CHO THUÊ KHẲNG ĐỊNH VỊ THẾ SƠN HÀ ARCHITECTURE
Năng lực thực chiến trong những năm qua với các mẫu khách sạn đẹp, tòa nhà văn phòng, trung tâm thương mại, thiết kế nhà hàng,… “Độc đáo trong thiết kế – Chất lượng trong thi công” đã trở thành tiền đề quan trọng để Sơn Hà Architecture định vị hình ảnh mới – hình ảnh đơn vị thiết kế thi công công trình cao tầng bên cạnh các dịch vụ truyền thống. Việc trở thành đơn vị thiết kế tổ hợp này, một lần nữa Sơn Hà đã khẳng định vị thế của mình trong lĩnh vực thiết kế khách sạn tại Phú Yên, thiết kế showroom ô tô và cả thiết kế văn phòng cho thuê tại Phú Yên.
Đã có không ít thiết kế showroom ô tô tại Phú Yên làm nên tên tuổi nhà đầu tư. Tuy nhiên, tổ hợp khách sạn – showroom và tòa nhà văn phòng SH KS 0062 xuất hiện với phong cách riêng biệt đã mang đến những “ngôn ngữ thiết kế” mới, góp phần quan trọng làm thay đổi diện mạo đô thị.

Sau đây là thông tin chung nhất về dự án, mời bạn đọc cùng tham khảo:

THIẾT KẾ TỔ HỢP TRUNG TÂM TMDV Ô TÔ, KHÁCH SẠN 5 SAO VÀ VĂN PHÒNG
Phú Yên là tỉnh duyên hải Nam Trung bộ, có diện tích tự nhiên 5.023,4 km2, dân số trên 900 nghìn người, cộng đồng dân cư gồm nhiều dân tộc: Kinh, Ê Đê, Chăm, Ba Na,… Phú Yên có 9 đơn vị hành chính cấp huyện, 112 đơn vị hành chính cấp xã, phường, thị trấn. Đáng lưu ý là Phú Yên có vị trí địa lý thuận lợi, tài nguyên đa dạng, có biển, đồng bằng, trung du và miền núi tạo cho tỉnh nhiều lợi thế, đó cũng là nguồn lực cần thiết để phát triển kinh tế xã hội và thu hút đầu tư. Trong những năm gần đây, với sự năng động của lãnh đạo địa phương, của các nhà đầu tư cùng sự quan tâm của lãnh đạo Trung ương nên Phú Yên đã thực hiện thành công nhiều dự án quy mô.

Năm 2018, Tổ hợp Trung tâm TMDV ô tô, khách sạn 5 sao và văn phòng cho thuê do Công ty TNHH ô tô Dũng Tiến làm chủ đầu tư cùng với một số dự án khác nhờ nhận thấy các tiềm năng đối với sự phát triển kinh tế của địa phương đã được đánh giá là dự án trọng điểm và được quan tâm đặc biệt. Trước vai trò này, việc tìm đơn vị thiết kế công trình là một nhiệm vụ cấp bách của nhà đầu tư. Sau những phân tích kỹ lưỡng về năng lực và kinh nghiệm, Sơn Hà Architecture vượt qua các đối thủ và tự hào trở thành đơn vị tư vấn thiết kế cho dự án này.
Tổ hợp được quy hoạch trên khu đất có diện tích gần 6000m2 với các phân khu: khách sạn tiêu chuẩn 5 sao; showroom ô tô hiện đại; khu văn phòng cho thuê; khu cafe. Mời bạn tiếp tục chiêm ngưỡng những hình ảnh của tổ hợp này tại đây:
1, Thiết kế khách sạn 5 sao phong cách tân cổ điển đẹp nhất Phú Yên


Không chỉ nổi bật với việc đảm bảo tiêu chuẩn thiết kế khách sạn, thiết kế khách sạn đẹp tại Tuy Hòa còn hạ gục mọi ánh nhìn bởi phong cách thiết kế trang nhã và sang trọng từng tiểu tiết. Tọa lạc trên khu đất có những lợi thế độc đắc, công trình khách sạn 5 sao trong tổ hợp dự án bậc nhất nhì Phú Yên được vận dụng tốt nhất những tinh hoa kiến trúc để làm nên mẫu thiết kế khách sạn để đời và mang đến không gian nghỉ dưỡng xa hoa.
2, Thiết kế showroom hiện đại nổi bật nét mới lạ tại Tuy Hòa
Một phần đáng lưu ý trong dự án này chính là showroom ô tô quy mô được thiết kế mới lạ theo phong cách hiện đại diện tích lớn.


3, Thiết kế khu cafe độc đáo và ấn tượng
Mời bạn xem thêm phương án thiết kế được đánh giá cao của khu cafe độc đáo, ấn tượng bậc nhất thành phố Tuy Hòa xinh đẹp. Thiết kế khu cafe một lần nữa đã khẳng định chiến lược kinh doanh tài tình của nhà đầu tư, đồng thời thể hiện sự đa dạng phong cách của các kiến trúc sư công ty thiết kế nhà đẹp tại Phú Yên và toàn quốc (các kiến trúc sư Sơn Hà Architecture).

LỄ ĐỘNG THỔ DỰ ÁN DŨNG TIẾN
Đại diện Sơn Hà Architecture – đơn vị tư vấn thiết kế dự án cũng đã tham gia lễ động thổ diễn ra ngày 16/5/2018 cùng các vị quan khách. Lễ động thổ dự án thật sự là dấu mốc quan trọng đối với các bên tham gia.
Sau đây là một số hình ảnh ấn tượng về lễ động thổ chúng tôi ghi lại được:









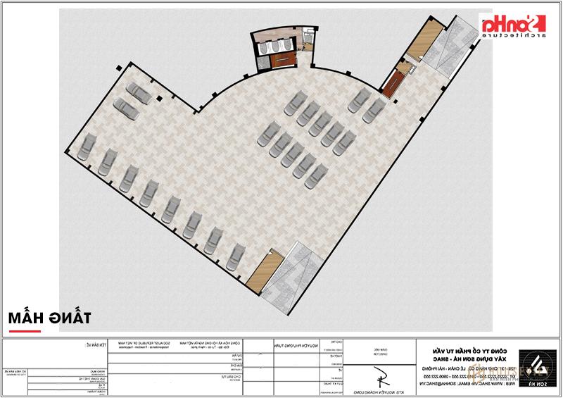
MẶT BẰNG KHÁCH SẠ N TIÊU CHUẨN 5 SAO TÂN CỔ ĐIỂN TRONG TỔ HỢP DỰ ÁN
Trong các nội dung của bài viết, chúng tôi mời bạn đọc tham khảo mặt bằng công năng khách sạn tân cổ điển 5 sao (một thành phần quan trọng trong dự án tổ hợp Trung tâm TMDV ô tô, khách sạn và văn phòng cho thuê Dũng Tiến) để thấy được sự khoa học trong cách bố trí các kiến trúc sư Sơn Hà Architecture đã thực hiện:





Trên đây là một số thông tin cơ bản về dự án thiết kế thi công Trung tâm TMDV ô tô, khách sạn và văn phòng cho thuê Dũng Tiến (một trong những dự án trọng điểm năm của Phú Yên đã được động thổ trung tuần tháng 5 vừa rồi). Trong các bài viết sau chúng tôi sẽ tiếp tục cập nhật các thông tin về dự án. Cảm ơn bạn đọc đã theo dõi bài viết.
Mọi chi tiết xin liên hệ:CÔNG TY CỔ PHẦN TƯ VẤN XÂY DỰNG SƠN HÀ (SHAC)Trụ sở chính: Số 318 – 319 HK3 đường Bùi Viện, Lê Chân, Hải Phòng
- Điện thoại: 0225 2222 555
- Hotline: 0906 222 555
- Email: sonha@shac.vn
Văn phòng đại diện
- Tại Hà Nội: Số 4/172, Ngọc Hồi, Huyện Thanh Trì, TP. Hà Nội
- Tại Quảng Ninh: Số 289 P. Giếng Đáy, TP. Hạ Long, Tỉnh. Quảng Ninh
- Tại Đà Nẵng: Số 51m đường Nguyễn Chí Thanh, P. Thạch Thang. Quận Hải Châu, TP. Đà Nẵng
- Tại Sài Gòn: Số 45 Đường 17 khu B, An Phú, Quận 2, TP. Hồ Chí Minh
- Xưởng nội thất: Số 45 Thống Trực, Nam Sơn. Kiến An, TP. Hải Phòng