Gợi ý mẫu thiết kế nhà 2 tầng 6x15m khiến cả xóm mê mẩn.
Mẫu thiết kế nhà 2 tầng 6x15m hiện đại và đầy đủ công năng sử dụng mang đến những giây phút thoải mái khi bước chân vào ngôi nhà của mình. Với không gian thoáng mát, thoải mái tạo cảm hứng cho gia chủ trong công việc và cuộc sống. Vậy mẫu thiết kế nhà 2 tầng diện tích 6x15m được bố trí công năng như thế nào? House Viet sẽ giúp khách hàng tìm ra câu trả lời cho vấn đề còn bỏ ngỏ này!
Mẫu nhà ống 2 tầng 6x15m thiết kế đơn giản
Thiết kế nhà đẹp 6x15m với tông màu xám kết hợp với màu trắng đơn giản nhưng vô cùng sang trọng. Với phong cách thiết kế hiện đại, các đường nét vuông vắn tạo sự chắc chắn nhưng không thô cứng. Các tiểu cảnh xanh được bố trí rộng rãi khắp ngôi nhà mang đến cảm giác thoải mái, dễ chịu.



Mẫu thiết kế nhà 2 tầng diện tích 6x15m đẹp
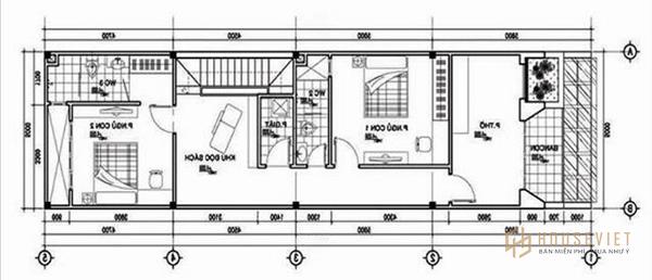
Thiết kế nhà 2 tầng sử dụng kiến trúc đơn giản có lợi cho công năng khi sử dụng. Tầng 1 với phòng khách được bố trí gần cửa ra vào thuận tiện cho việc di chuyển và quan sát bên ngoài. Tiếp đến là phòng ngủ nằm sau cầu thang lên tầng. Cuối cùng, phòng bếp và phòng ăn được đặt trong cùng một không gian tạo không gian ấm cúng cho mỗi bữa ăn.


Mặt bằng tầng 2 của mẫu nhà 2 tầng gồm 2 phòng ngủ, phòng thờ và sân thượng. Sân thượng rộng rãi, thoáng mát có thể đặt bàn trà hoặc trồng hoa, cây cảnh, tổ chức ăn uống cùng gia đình, bạn bè mỗi dịp nghỉ ngơi, xả stress.


Mẫu thiết kế nhà 2 tầng 6x15m mái bằng
Mẫu thiết kế nhà 2 tầng diện tích 6x15m sử dụng kiến trúc mái bằng hiện đại, chắc chắn. Mái bằng là một mô hình xây dựng quen thuộc với những ưu điểm về công năng và sự kết hợp màu sắc độc đáo. TRỰC TIẾP Mẫu nhà 2 tầng đẹp, hiện đại Chiếc xe này sử dụng tông màu trung tính làm màu sơn ngoại thất đi kèm với khu vực để xe rộng rãi.


Hầu hết các mẫu thiết kế nhà 6x15m 2 tầng đều sử dụng các đường nét rõ ràng, mạch lạc. Việc phân bổ công năng đảm bảo hợp lý giúp gia chủ thoải mái trong quá trình sinh hoạt.


Đơn vị thiết kế và thi công nhà 2 tầng uy tín
Các đơn vị thiết kế và thi công xuất hiện phổ biến khiến khách hàng hoang mang trong việc lựa chọn. Nếu bạn vẫn đang tìm một công ty xây dựng uy tín House Viet Chắc chắn là một địa chỉ mà bạn có thể tin tưởng. Các mẫu nhà 2 tầng mặt tiền 5m, 6m, 7m do chúng tôi thực hiện đều được đánh giá cao về giá trị thẩm mỹ và công năng sử dụng. Bên cạnh đó, chi phí tạo nên kiến trúc nhà 2 tầng phù hợp với điều kiện kinh tế gia đình.
House Viet là công ty hàng đầu trong lĩnh vực thiết kế kiến trúc, xây dựng, thiết kế nội thất. Với đội ngũ kiến trúc sư giàu kinh nghiệm, thợ thi công lành nghề đảm bảo mang đến cho khách hàng một không gian sống sang trọng và đẳng cấp nhất. Mẫu thiết kế nhà 2 tầng 6x15m đẹp và hiện đại mà chúng tôi mang đến sẽ khiến ngôi nhà của bạn trở nên thu hút hơn.
THÔNG TIN LIÊN HỆ NỘI THẤT AN LỘC:
- Công ty Cổ phần Kiến trúc, Xây dựng và House Viet
- Hotline: 1800 6015 - 0243 9999 839
- Trang web: https://anlocgroup.com
- Email: kientruc@anlocgroup.com
Bài viết liên quan:
- Tổng hợp mẫu nhà 2 tầng diện tích 100m2 sang trọng tiện nghi
- Mẫu thiết kế nhà 2 tầng mặt tiền 5m với kiến trúc ấn tượng và độc đáo
House Viet - Vững niềm tin