Hài lòng với mẫu thiết kế khách sạn 3 sao tân cổ điển 10mx35m tại Hải Phòng
Trong những năm gần đây, nhờ tốc độ phát triển kinh tế, ngành du lịch đã có những bước phát triển vượt bậc. Theo đó, nhu cầu đầu tư vào lĩnh vực cho thuê khách sạn cũng tăng lên rõ rệt. Nền tảng này tạo động lực mạnh mẽ cho việc mở rộng thị trường của các đơn vị hoạt động trong lĩnh vực thiết kế khách sạn.
NỘI DUNG CHÍNH
- Đầu tiên DỰ ÁN THIẾT KẾ KHÁCH SẠN TÂN CỔ ĐIỂN 3 SAO TẠI HẢI PHÒNG
 - 2 KIẾN TRÚC KHÁCH SẠN TIÊU CHUẨN 3 SAO TẠI CÁT BÀ (HẢI PHÒNG)
 - 3 Bố trí CHỨC NĂNG KHÁCH SẠN TIÊU CHUẨN 3 SAO 10MX35M
 
Trong dòng chảy này, mẫu Thiết kế khách sạn 3 sao tại Hải Phòng của chủ đầu tư Lê Thị Bảy đã xuất hiện và trở thành một trong những điểm nhấn đáng chú ý của bức tranh du lịch huyện đảo Cát Hải. Các kiến trúc sư của Công ty Cổ phần Tư vấn Xây dựng Sơn Hà (SHAC, Son Ha Architecture) đã tư vấn và đưa ra các phương án thiết kế kết hợp với ý tưởng của chủ đầu tư để đi đến thống nhất về mẫu khách sạn. 11 tầng tân cổ điển đẹp, đẳng cấp với chất lượng dịch vụ 3 sao.
Sau đây mời các bạn xem thêm các bài viết để biết thêm thông tin chi tiết về giải pháp thiết kế khách sạn tân cổ điển xếp hạng 3 sao nổi bật của thành phố Cảng.
DỰ ÁN THIẾT KẾ KHÁCH SẠN TÂN CỔ ĐIỂN 3 SAO TẠI HẢI PHÒNG
Khách sạn này được thiết kế với 1 tầng hầm, 1 tầng lửng và 10 tầng nổi trên diện tích 10mx35m tọa lạc tại vị trí đẹp của đảo Cát Bà giúp khách sạn tôn lên vẻ sang trọng uy nghi. Đặc biệt hơn, kiến trúc của khách sạn được thiết kế theo phong cách tân cổ điển, hài hòa với điểm nhấn là các đường gờ, ban công và vòm trang trí ở tầng tum cũng là quán cafe ngoài trời.
Lời đầu tiên, chúng tôi xin giới thiệu đến quý khách hàng những thông tin sơ lược nhất về dự án:

KIẾN TRÚC KHÁCH SẠN TIÊU CHUẨN 3 SAO TẠI CÁT BÀ (HẢI PHÒNG)
1. Thiết kế khách sạn 3 sao là gì?
Để hiểu rõ nhất về bất kỳ giải pháp thiết kế nào, chúng ta phải hiểu bản chất của nó. Áp dụng trong bài viết thiết kế khách sạn 3 sao là gì?
Các tài liệu chuyên ngành chỉ rõ, thiết kế khách sạn hạng sao là công trình kiến trúc được xây dựng độc lập, có quy mô từ 50 buồng (buồng) trở lên, đảm bảo chất lượng về cơ sở vật chất như trang thiết bị hiện hành. Tuyệt vời, thoải mái.
Thiết kế khách sạn 3 sao đẹp phải đáp ứng được các dịch vụ cần thiết cho nhu cầu sống và nghỉ dưỡng của du khách, đồng thời phải đáp ứng đầy đủ các tiêu chuẩn thiết kế của một khách sạn 3 sao đẹp và sang trọng. . Cũng giống như các công trình khách sạn quy mô lớn khác nói chung, khách sạn 3 sao thường được thiết kế với phong cách kiến trúc đẹp với các vật liệu cao cấp được sử dụng để xây dựng khách sạn mang đến sự sang trọng và bền vững. cho dự án. Cùng với đó, nội ngoại thất của khách sạn được thiết kế độc đáo, ấn tượng với nhiều view đẹp thu hút sự chú ý của du khách.
>> Tham khảo ngay tiêu chuẩn thiết kế khách sạn 3 sao
2. Thiết kế kiến trúc khách sạn tân cổ điển 3 sao tại Cát Bà (Hải Phòng)
Du lịch Cát Bà (Hải Phòng) hiện đang trên đà phát triển rất nhanh. Lượng khách quốc tế cũng như khách nội địa đến Cát Bà ngày càng đông. Với bãi biển đẹp, trải dài cùng với các khu du lịch có nhiều điều kiện thuận lợi để thu hút du khách. Đó là lý do nhiều nhà đầu tư đã không bỏ lỡ cơ hội đầu tư vào khách sạn tại Cát Bà. Hiểu được nhu cầu đó, SHAC cung cấp dịch vụ tư vấn thiết kế khách sạn 3 sao, thiết kế khách sạn 4 sao, thiết kế khách sạn 5 sao tại đây được nhiều chủ đầu tư tin tưởng và lựa chọn.
>> Xem thêm Mẫu khách sạn đẹp tiêu chuẩn 3 sao 7 tầng tại Hưng Yên
>> Tham khảo cách bố trí khách sạn 3 sao cổ điển tại Bến Tre
Từ mong muốn của chủ đầu tư về một khách sạn độc đáo trong thiết kế - chất lượng trong thi công, các kiến trúc sư SHAC đã tư vấn thiết kế khách sạn tiêu chuẩn 3 sao cho khách hàng theo phong cách tân cổ điển bởi phong cách tân cổ điển này vừa sang trọng, ấn tượng vừa giữ được giá trị bền vững. Cũng phải nói thêm rằng, việc giúp chủ đầu tư không tốn nhiều chi phí cho việc cải tạo sau này là một ưu điểm quan trọng của phương án thiết kế khách sạn tân cổ điển để chủ đầu tư đi đến lựa chọn.
Mời các bạn xem thêm phối cảnh dự án dưới góc nhìn khác:

Với vị trí ngay gần bãi biển, hầu hết các mặt tiền của tòa nhà đều có cửa kính thông thoáng để có view đẹp nhất hướng ra bãi biển, giúp du khách tận hưởng những khoảnh khắc đẹp nhất lúc bình minh và chiều tà. hôn ở đây. Mẫu thiết kế khách sạn 3 sao với tông màu chủ đạo nhẹ nhàng, trang nhã với những điểm nhấn nhá tinh tế là điều khiến bất cứ ai cũng phải rời mắt.
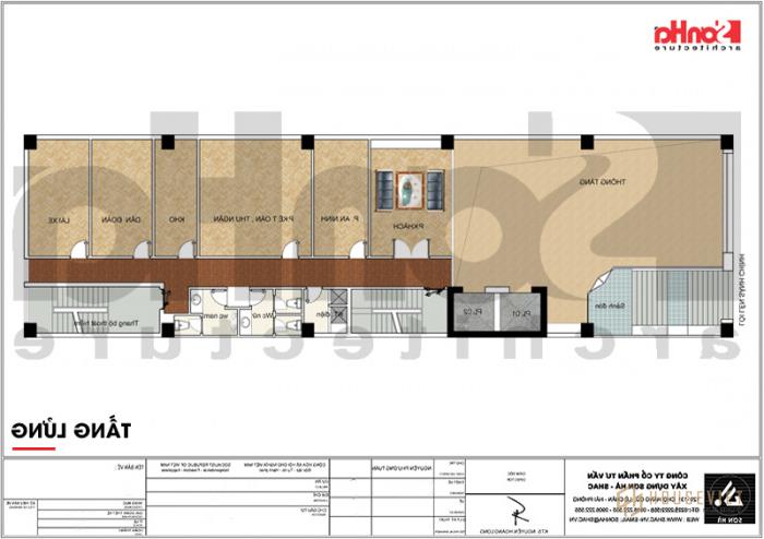
Bố trí CHỨC NĂNG KHÁCH SẠN TIÊU CHUẨN 3 SAO 10MX35M
Mời quý vị xem mặt bằng công năng sử dụng để hiểu rõ hơn về phương án thiết kế được đánh giá cao mà các kiến trúc sư SHAC đưa ra.







Cùng với bộ hồ sơ thiết kế khách sạn 3 sao của chủ đầu tư Vịnh tại Hải Phòng sẽ được chúng tôi tiếp tục cập nhật những thông tin mới nhất đến quý vị.
Quý vị cũng có thể xem thêm bộ sưu tập thiết kế nhà đẹp của SHAC tại đây:
- Phương án nhà ống cao 6 tầng hiện đại - SH NOD 0124
 - Mẫu thiết kế biệt thự Pháp mái ngói đơn giản tại Hải Phòng - SH BTP 0090
 - Mẫu thiết kế nhà phố 5 tầng tân cổ điển - NOP 0054
 - Tiết kiệm chi phí xây dựng với thiết kế biệt thự tại Hà Tĩnh
 - Mẫu thiết kế nhà phố 4 tầng hiện đại mới nhất tại Hà Nội - SH NOD 0164
 - 100+ Biệt thự đẹp 3 tầng tiện nghi tại Phú Yên
 - Thiết kế khách sạn tiêu chuẩn 2 sao cổ điển tiêu biểu cho xu hướng mới
 - Mẫu thiết kế nhà ống hiện đại mặt tiền 4m - NOD 0032
 - Mặt bằng công năng mẫu biệt thự 3 tầng kiểu pháp đẹp tại Hải Dương
 - Bảng tính vật tư dự kiến cho biệt thự mini kiểu mái thái diện tích dưới 200m2
 
Để biết thêm chi tiết vui lòng liên hệ:CÔNG TY CỔ PHẦN TƯ VẤN XÂY DỰNG SƠN HÀ (SHAC)Trụ sở chính: Số 318 - 319 HK3 Phố Bùi Viện, Lê Chân, Hải Phòng
- Điện thoại: 0225 2222 555
 - Hotline: 0906 222 555
 - Email: sonha@shac.vn
 
Văn phòng đại diện
- Tại hà nội: Số 4/172, Ngọc Hồi, Huyện Thanh Trì, TP. Hà nội
 - Ở quảng ninh: Số 289, Phường Giếng Đáy, TP. Hạ Long, Tỉnh. Quang ninh
 - Tại đà nẵng: Số 51m Đường Nguyễn Chí Thanh, Phường Thạch Thang. Q. Hải Châu, Tp. Đà Nẵng
 - Ở sài gòn: Số 45 Đường 17, Khu B, An Phú, Quận 2, TP. Hồ Chí Minh
 - Xưởng nội thất: Số 45 Thông Trực, Nam Sơn. Kiến An, Tp. Hải phòng