Hồ sơ thiết kế xây nhà vừa ở vừa làm văn phòng cho thuê anh Phương Tân Phú
Bài viết này tôi lấy mẫu nhà phố hiện đại 4 tầng mặt tiền 8m2 của anh Phương. Để minh họa cho bài báo thiết kế nhà kết hợp văn phòng cho thuê tại tân phú. Đây là một trong những bản vẽ thiết kế nhà phố kiểu biệt thự có tầng hầm sân thượng. Với các mảng vật liệu trang trí, bảng màu hài hòa nhiều ánh sáng. Hãy tham khảo bài viết của Nguyễn Thu về những lưu ý khi xây dựng cơ sở kinh doanh này nhé
Xu hướng thiết kế nhà ở, văn phòng cho thuê
Thiết kế nhà ở kết hợp văn phòng cho thuê đang là xu hướng trong nhà phố hiện đại. Đặc biệt là đối với những gia đình có số lượng thành viên ít. Sự kết hợp hợp lý giữa nhà ở - văn phòng mới. Sẽ đảm bảo đủ không gian sinh hoạt cho gia đình, tiện lợi. Nó cũng dễ dàng tạo ra lợi nhuận bổ sung hàng tháng. Góp phần vào kế hoạch tự do tài chính, giảm bớt áp lực kinh tế. Đặc biệt, có nhiều gia đình từ 3 đến 4 người sinh sống và quản lý. Việc kết hợp giữa nhà ở và văn phòng sẽ giúp không khí vui vẻ hơn nếu ít người. Tuy nhiên, thiết kế nhà phố như thế nào để hài hòa và hợp lý là một vấn đề cần được nghiên cứu

Phối cảnh nhà văn phòng cho thuê có tầng hầm
Khi nào thiết kế nhà ở cao tầng kết hợp văn phòng cho thuê đối với đất mặt phố. Điều quan trọng là ngôi nhà “tuy hai mà một”. Nó vẫn phải đầy đủ các phòng chức năng riêng biệt nhưng hài hòa trong một thể thống nhất. Hơn nữa, có những không gian đặc biệt cần sự riêng tư. Như phòng ngủ của vợ chồng, phòng của lãnh đạo… cần được bố trí và thiết kế sao cho hợp lý.

3 lưu ý khi thiết kế nhà ở kết hợp văn phòng cho thuê bất di bất dịch
Ngoài 3 lưu ý khi thiết kế tòa nhà văn phòng có tầng hầm và thang máy. Kiến trúc nhà ống 4 tầng hiện đại như biệt thự phố Anh Phương. Bạn cần lưu ý các điều kiện dưới đây. Và đây là bản vẽ thiết kế nhà phố có tầng hầm để xe 7m

- Xem ngay mẫu nhà vừa ở vừa cho thuê văn phòng 2 tầng chị Dung tại bài viết này
Mặt tiền nhà làm văn phòng cần đảm bảo thông thoáng, tầm nhìn tốt.
Với một ngôi nhà chỉ để ở thì mặt tiền không quá quan trọng. Nhưng nếu thiết kế nhà làm văn phòng cho thuê phải hợp lý và cân xứng với kiến trúc. Yếu tố quan trọng nhất cần chú ý là mặt tiền với các ô thoáng với ban công và các mảng khối trang trí. Bởi vì, mặt tiền sẽ là bộ mặt của văn phòng mở. Có ảnh hưởng rất lớn đến hiệu quả kinh doanh. Mặt tiền được thiết kế thông thoáng, có tầm nhìn tốt giúp khách hàng. Liên hệ với các đối tác có khả năng tiếp cận văn phòng dễ dàng hơn. Đồng thời giúp giảm thiểu căng thẳng, áp lực công việc cho người lao động. Ví dụ như ở tầng trệt - đó có thể là đội lễ tân, nhân viên trực điện thoại hoặc toàn bộ nhân viên trong công ty.

Thiết kế tránh cho mặt tiền nhà vừa ở vừa làm văn phòng không bị che khuất tầm nhìn.
Nếu văn phòng sử dụng biển quảng cáo thì không nên thiết kế biển hiệu quá lớn. Vì nó sẽ khiến không gian bên trong bị che khuất. Điều này dẫn đến mất thẩm mỹ chung cho cả ngôi nhà. Trường hợp nhà có mặt tiền nhỏ, tầm nhìn ra bên ngoài bị hạn chế. Bạn nên trang trí tiểu cảnh bằng cây xanh để không gian thêm ấn tượng. Nhân viên cũng có thể xem trong khi nghỉ ngơi thư giãn.

Bản vẽ tầng hầm vừa để ở vừa kinh doanh văn phòng tầng 1
Với những căn nhà phố có hệ thống thông thoáng và trần cao. Khi nào thiết kế nhà ở kết hợp văn phòng cho thuê, bạn có thể chủ động mở rộng không gian. Ở giữa là tầng lửng để có thêm phòng làm việc hoặc sinh hoạt cho gia đình. Tầng hầm để xe cũng là cách nới rộng không gian hiệu quả, đặc biệt phù hợp với nhà phố

Tuy nhiên, bản vẽ mặt bằng nhà phố 4 tầng anh Phương mặt tiền 8m rộng rãi. Nếu bạn có mảnh đất 2 mặt tiền 6m hãy xem bản vẽ kiến trúc nhà 5 tầng 115m2 anh Dũng như trong hình. Qua bài viết này
- Mẫu thiết kế nhà ở kết hợp văn phòng cho thuê giá rẻ anh Hùng

Ưu tiên chất liệu kính trong thiết kế nhà ở và văn phòng
Làm thiết kế nhà kết hợp văn phòng cho thuê có các đặc điểm sau: Vừa đảm bảo sự ngăn cách nhưng vẫn giữ được sự liên kết giữa các khu vực. Phải tạo không gian thoáng đãng, sang trọng. Vì vậy chất liệu kính sẽ là một lựa chọn thông minh. Bạn có thể sử dụng cửa nhôm kính hoặc inox 304 bền đẹp. Sử dụng kính cường lực nhà khung thép để ngăn cách các khu vực… Khi sử dụng cửa kính. Bạn nên chú ý đến hệ thống rèm, rèm để giảm bớt ánh nắng. Vừa gây khó chịu cho người lao động vừa tiêu tốn nhiều điện năng để làm mát (quạt, điều hòa ...).

Mẫu nhà phố có tầng hầm vừa ở vừa kinh doanh cho thuê mặt tiền 7m
Ngoài ra, bạn có thể sử dụng thêm các loại cửa cuốn hiện đại để tăng độ an toàn. Trang trí nội thất sử dụng gạch có cấu trúc linh hoạt và tiện dụng. Giúp bạn dễ dàng di chuyển và có thể thay đổi chức năng sử dụng sau này. Phần để phù hợp với nhiều điều kiện khác nhau. Đơn cử như nhà chị Dung mặt tiền 7m, dài gần 14m, sàn xây dựng khoảng 100m2. Xem bản vẽ nhà có tầng hầm thiết kế tầng trệt có mặt bằng kinh doanh cho thuê nơi đây nhưng hãy chọn nhiều hơn

Nên sử dụng các gam màu trung tính khi thiết kế nhà ở, văn phòng cho thuê
Sử dụng màu trung tính làm màu chủ đạo cho thiết kế nhà kết hợp văn phòng cho thuê là sự lựa chọn hợp lý, vừa an toàn vừa tạo cảm giác rộng rãi, hiện đại cho không gian. Để tạo điểm nhấn, bạn có thể thêm một chút màu đậm. Đối với văn phòng, một số gam màu như xanh lam, xanh lá cây,… sẽ mang lại cảm giác thư thái, nhẹ nhàng, gần gũi với thiên nhiên, giúp nhân viên thoải mái hơn, làm việc hiệu quả hơn và tăng khả năng làm việc. sự sáng tạo.

Các tiện ích khác khi thiết kế nhà để ở và làm văn phòng cho thuê
Gợi ý thêm cho bạn một số mẫu trang trí nội thất văn phòng hiện đại. Mời các bạn xem thêm ở 2 bài viết bên dưới để khám phá thêm

Tôi thích phong cách trang trí phòng giám đốc. Và nhân viên thích văn phòng hiện đại này, hãy tham khảo bài viết tư vấn thiết kế tại
- Thiết kế nội thất văn phòng giá rẻ tại tphcm của công ty Quang Minh
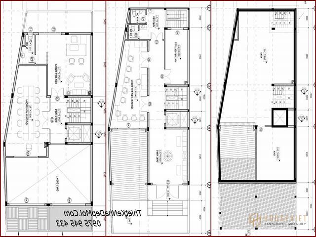
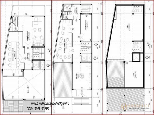
Cách bố trí mặt bằng nội thất nhà ở kết hợp văn phòng cho thuê anh Phương
Đây là bản vẽ mẫu nhà phố 9m2 1 hầm 1 trệt 1 lửng 2 lầu 1 tum anh Phương. Tôi sẽ mô tả thêm Thiết kế nhà mặt tiền kết hợp văn phòng cho thuê giống:
- Nhà có thang máy hoặc hầm (bãi đậu xe, kho, kỹ thuật)
- Tầng 1 có sảnh, văn phòng, cửa hàng văn phòng.
- Tầng lửng bố trí phòng giám đốc công ty, phòng họp quan trọng của giám đốc.
- Tầng 1 gồm phòng họp lớn và phòng giải trí.
- Tầng 2 có phòng ngủ chính, phòng khách, bếp, phòng ngủ cho khách
- Tầng tum bố trí phòng thờ, phòng tập, phơi + giặt…
- Mỗi tầng (từ tầng trệt trở lên) được thiết kế nhà vệ sinh riêng.

Và nếu bạn có nhu cầu thiết kế nội thất văn phòng với diện tích lớn như công ty cổ phần. Anh chị em xem thêm Đoạn văn này để tham khảo. Xin vui lòng liên hệ với chúng tôi.
Bản vẽ nhà ống mặt tiền 5m có tầng trệt kinh doanh khác
Trong thời gian qua đã gần 11 năm công ty tôi thiết kế các bản vẽ nhà phố lớn nhỏ. Trong đó có những mẫu nhà vừa ở vừa kinh doanh hoặc cho thuê tầng trệt. Dành cho những gia chủ có tài chính đầu tư vừa phải. Điển hình có thể kể đến 2 mẫu nhà chị Điệp và nhà chị Thủy 5 tầng.
Mời các bạn xem 2 bài viết về ống kinh doanh 4m 5m 6m năm 2022
- Mẫu nhà ống 2,5 tầng 5 × 17 vừa ở vừa kết hợp ở mặt tiền nhà chị Điệp
- Nhà ống 3 tầng kết hợp kinh doanh đơn giản mặt tiền đường 4,5m
- Ngắm nhìn mẫu nhà đẹp mặt phố kinh doanh anh Quang
- Mẫu nhà ống 5 tầng hiện đại mặt tiền đẹp chị Thụy Long Biên

Xem bản vẽ thiết kế biệt thự phố kinh doanh đẹp chú Hùng
Nói chung là kiểu nào cũng có nhưng điều quan trọng là bạn lựa chọn kiểu dáng phù hợp với sở thích của mình. Màu sơn hợp phong thủy cũng như mẫu thiết kế nhà mặt tiền 5m 6m 7m hoặc 10m. Khi khảo sát mảnh đất dài hay hẹp, kiến trúc sư Nhà Đẹp Mới sẽ lên phương án phân chia không gian nội thất văn phòng cho thuê. Hoặc thiết kế kinh doanh nhà cao tầng có thang máy, tầng hầm để xe .. Bạn cứ yên tâm là sẽ khoa học và hợp lý để tăng công việc kinh doanh.

- Truy cập để xem bản vẽ thiết kế nhà phố đẹp 4 tầng kết hợp kinh doanh văn phòng 2 tầng trên Chí Hùng
Bạn muốn được tư vấn chi tiết, tham khảo các mẫu thiết kế nhà kết hợp văn phòng cho thuê 3 4 tầng. Bạn muốn tạo ra một không gian nhà-văn phòng tiện lợi. Phù hợp với điều kiện thực tế với phong thủy và thế đất của mình. Hãy liên hệ với Nhà Đẹp Mới tại 1800 6015. Anh Ban phó giám đốc công ty luôn sẵn sàng phục vụ quý khách. Báo giá thiết kế và thi công thoải mái, hợp lý cho mọi mặt bằng thuê!