Kiểu nhà phố 1 trệt 2 lầu sân thượng sân vườn đẹp 7m chị Ngọc An
Cập nhật mẫu nhà phố mặt tiền 7m có sân vườn đẹp năm 2021. Do công ty cổ phần nhà đẹp mới nhà tôi An Bình Dương thiết kế. Nếu bạn thích phong cách biệt thự mini hiện đại này hãy tham khảo thêm nhé
Hình ảnh nhà phố mặt tiền 7m 3 tầng
Căn nhà phố hiện đại 3 tầng mặt tiền 7m này nằm trong khu quy hoạch khu đô thị mới. Tại Hiệp Thành 3 - Bình Dương. Với diện tích gần 175m2, trong đó gia đình gồm 4 thành viên. Vì vậy muốn thiết kế nhà phố đẹp 3 tầng 7x25m. Trong đó có không gian sân vườn mặt tiền 7,5m. Thiết kế giữa nhà với cầu thang kết hợp giếng trời. Quy định chỉ đi về phía sau và có nhiều không gian giải trí như phòng karaoke gia đình đẹp. Phòng sinh hoạt chung, ban công sân thượng để hóng mát. Bố trí tiểu cảnh thác nước tầng 3 ngoài trời để tiếp khách. Thông tin về mẫu thiết kế nhà phố 3 tầng 3 mặt tiền 7m hiện đại này như sau

Thông tin mẫu thiết kế nhà phố mặt tiền 7m 3 tầng
Dưới đây là thông tin về mẫu nhà phố 3 tầng hiện đại mặt tiền 7m của chị An
- Dự án: Thiết kế nhà phố đẹp 3 tầng 7x25m phong cách Châu Âu hiện đại kết hợp Á Đông
- Chủ đầu tư: Cô An
- Địa chỉ: Hiệp Thành 3 - Bình Dương
- Diện tích thiết kế: Đất hướng Tây rộng 175m2, MT 7m, sâu 25m, MT 7m.
- Diện tích thiết kế xây dựng: 7x16m = 110m2. Tổng diện tích xây dựng: 370m2
- Kiến trúc: Biệt thự mini Nhà phố 3 tầng hiện đại Phong cách châu á
- Phụ trách hồ sơ: KTS. Được
- Thiết kế: kiến trúc sư điển trai Ngọc Đức
- Năm thiết kế xây dựng và cập nhật 2021
- Diện tích sử dụng: 350m2
- Đơn vị thiết kế: Công ty cổ phần thiết kế nhà đẹp chi nhánh bình dương mới
- Công năng sử dụng: Gara, 4 phòng ngủ, 1 phòng khách, 1 phòng sinh hoạt chung
- Thiết kế phòng thờ, 6 wc. phòng làm việc, sân phơi, sân thượng ..
- Phong cách biệt thự mini diện tích 100m2 3 tầng mái thái đẹp
- Chi phí thiết kế và thi công dự kiến: 2,5 tỷ đồng
- Thời gian thiết kế và thi công: 6 tháng chìa khóa trao tay.

Tư vấn thiết kế nhà phố hiện đại mặt tiền 7m
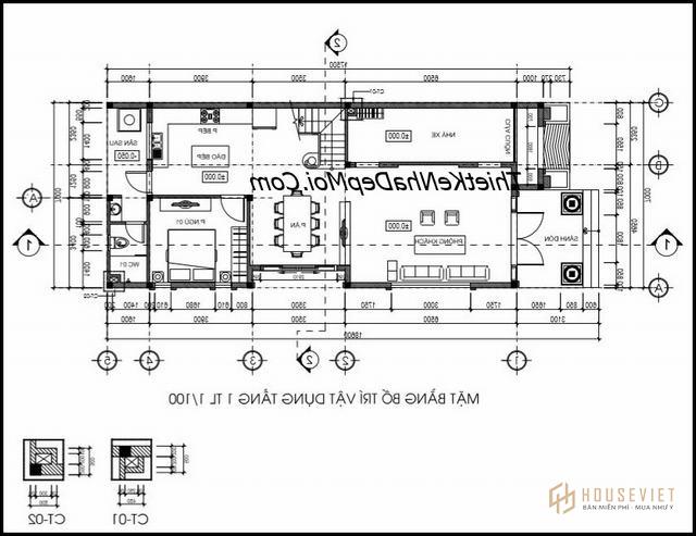
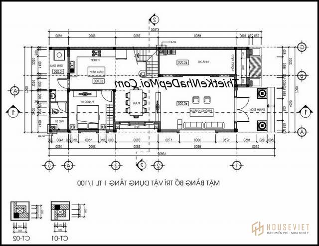
Mẫu nhà phố 3 tầng mặt tiền 7m Thiết kế này với gam màu tone trắng chủ đạo. Kết hợp với mảng xanh thiên nhiên thoáng mát có sân vườn cách cổng vào 7,5m. Kiến trúc biệt thự mái ngói kiểu nhật siêu nhẹ. Phía ngoài mặt tiền tầng 1 có ban công và sân thượng. Bên phải thiết kế sân thượng và thông gió, trên sân thượng phía sau nhà phố 7m có thể đặt thêm bình năng lượng và bồn nước. Đây là bản vẽ mặt bằng của ngôi biệt thự ở tầng trệt

Riêng về không gian nội thất bên trong mẫu nhà phố 3 tầng 7x16m hiện đại nhà chị An. Tầng trệt có gara ô tô bên trái lối đi dài 7,5m tính từ cổng vào. Để thêm ít xe máy cũng thoải mái. Phía sau thiết kế cầu thang vuông vắn ở giữa có giếng trời. Chân cầu thang được bố trí tiểu cảnh thác nước. Phía sau là phòng bếp có đảo. Bàn ăn của gia đình được thiết kế gần sảnh phụ để tạo sự thông thoáng. Ngoài ra, mẫu nhà phố 1 trệt 2 lầu có sân thượng 7m có sân sau và WC chung cho cả tầng. Ngoài ra, mẫu thiết kế nhà 3 tầng đẹp 7x16m này có 1 thiết kế nội thất phòng khách và gara. Bạn có thể tham khảo thêm mẫu nhà phố mặt tiền 7m ngắn hơn của chị Bé ở Sa Đéc, mái thái nếu để gara ô tô bên ngoài. nơi đây nhưng hãy chọn nhiều hơn

Bản vẽ mặt bằng biệt thự mái thái đẹp mặt tiền 7m tầng 1
Mô hình tầng 2 Biệt thự mái thái mặt tiền 7m Kiến trúc mini trên diện tích 110m2 do có ban công. Ý tưởng thiết kế chủ yếu dành cho không gian sinh hoạt chung của gia đình. Mặt bằng công năng thiết kế gồm 3 phòng ngủ, trong đó phòng ngủ chính của vợ chồng gia chủ là chị An. Thiết kế nội thất phòng ngủ master với bàn đọc sách, tủ tivi, phòng tắm, phòng xông hơi. Ngoài ra bên trong phòng ngủ còn có WC chung trong phòng kết hợp phòng thay đồ phía sau. Yêu cầu thiết kế tầng 2 còn có 1 phòng sinh hoạt chung và 1 phòng làm việc. Hai phòng ngủ dành cho con được bố trí thành 2 dãy trái và phải phía trước. Phía trước mặt tiền là ban công sân vườn tiểu cảnh tích hợp không gian xanh mát. Buổi tối có thể ngồi hóng gió mát và ngắm cảnh thiên nhiên trên tầng 1

Cách thiết kế nhà phố mặt tiền 7m theo phong thủy.
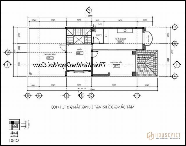
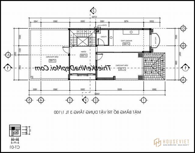
Đang vẽ Nhà phố 3 tầng mặt tiền 7m Đẹp ở tầng 3 là không gian ngồi ngoài trời. Với sân thượng rộng xung quanh thiết kế khung nhôm lõi thép không gỉ chắc chắn. Bố trí sân vườn cây xanh tiểu cảnh xung quanh. Khu vực này là không gian sinh hoạt ngoài trời chính của mô hình này. Riêng phía trước thiết kế phòng thờ theo hướng chính Bắc sinh Khí. Vì gia chủ mệnh Ly chọn hướng nhà là hướng Chấn rất hợp với người mệnh Ly (hành hỏa). Tang Thạch Mộc nghĩa là Dâu Gỗ - Đông tứ mệnh. Với không gian tầng 2 này, hãy thiết kế thêm một nội thất phòng ngủ cho khách nếu có nhu cầu. Phía sau có phòng giặt, sân trồng rau, sân vườn tiểu cảnh tầng 3.

Mẫu biệt thự 3 tầng mái thái hiện đại kiểu Nhật khác
Vật mẫu Nhà phố 2 tầng 1 tum mặt tiền 7m 3 phòng ngủ Gara mặt tiền 7m đẹp này. Về kiến trúc thì có thể sánh ngang với phong cách kiến trúc Châu Âu của mẫu biệt thự mini 1 trệt 2 lầu. Nhưng điểm khác biệt là phần mái được thiết kế theo kiểu mái ngói Nhật Bản. Thiên về kiến trúc Á Đông. Khác biệt hoàn toàn với những mẫu biệt thự 2 tầng hiện đại mái xéo đẹp hay rộng hơn là mái dốc. Nếu bạn cần xem các kiểu biệt thự hiện đại Thì bạn có thể xem thêm tại đây

Ngắm nhìn hình ảnh mặt tiền nhà phố hiện đại 7m x 16m 1 trệt 2 lầu
Một điều đáng nói nữa trong mẫu thiết kế nhà phố 3 tầng hiện đại mặt tiền 7m chị An. Ban đầu, yêu cầu của gia chủ là nữ nên đặc biệt yêu thích gam màu trắng. Phong cách tân cổ điển nhưng kiến trúc ngôi nhà theo không gian mở. Kết hợp với lan can và hệ lam sơn trắng. Khung kính cường lực giúp không gian trông rộng và thoáng hơn. Mặt tiền nhà phố hiện đại Mỗi tầng 7m x 16m được tích hợp không gian xanh bên cạnh những khối vuông vắn xen kẽ những ô kính xanh rất hiện đại và trang nhã, nhẹ nhàng, thanh thoát.

Hình ảnh cổng và sân vườn của nhà phố 7 tầng 3 mặt tiền 7m chị An
Vật mẫu Nhà phố hiện đại 3 tầng Tổng thể 7x25m phong cách hiện đại này do KTS Đạt phụ trách. Cùng các cộng sự công ty cổ phần thiết kế nhà ĐẸP MỚI năm 2020. Dưới đây là những hình ảnh về mẫu sân vườn đẹp mặt tiền 7m 1 trệt 2 lầu chị An.


Phối cảnh nhà vườn đẹp hiện đại mặt tiền 7x16m ngoại thất tại Bình Dương
Sở thích của các thành viên trong gia đình là gần gũi với thiên nhiên và môi trường. Vì vậy có nhiều khác biệt và hướng từ Bắc sang Tây nên mặt trời phải hướng mặt trời. Do khác với Nhà phố 3 tầng mặt tiền hướng nam hoặc hướng đông.


- Đừng bỏ lỡ bằng cách nhấp vào danh mục xem mẫu Trang Chủ Biệt thự mini 2 tầng đẹp 3 đến 4 phòng ngủ chị Mai
Những mẫu biệt thự mini 7m 2 mặt tiền 3 tầng đẹp nhất gần đây
Không chỉ ở chi nhánh Bình Dương. CÔNG TY CỔ PHẦN ĐẸP MỚI còn có chi nhánh tại Hà Nội và Đà Nẵng. Chi nhánh Biên Hòa Sài Gòn .. Bạn cần kiến trúc sư thiết kế nhà phố 2 3 tầng đẹp ở khu vực nào? Hay cần xây biệt thự mini 3 tầng mái thái chúng tôi đều đáp ứng nhu cầu của bạn khi xây nhà phố 1 trệt 2 lầu 7m 8m như thế này


Ngoài ra còn có mẫu nhà phố mặt tiền 7m hiện đại này

Nếu cần thêm thông tin về mẫu nhà phố mini mặt tiền 7m hiện đại chị An. Hay những ngôi nhà ống ba tầng rộng 7m, ngang 13m hoặc dài 15m. Vui lòng liên hệ 1800 6015 để gửi mẫu nhà đẹp. Đồng thời tư vấn thiết kế nhà phố hay các mẫu nhà phố đẹp khác. Chi phí hợp lý, nhiều ưu đãi, đặc biệt sau đại dịch Corona tại Việt Nam. Xem thêm các mẫu khác nhà phố hiện đại Năm 2020 có giếng trời cho đất ngang 6m hoặc 5m, năm 2020 kinh phí trên 1 tỷ.