Lộ diện biệt thự cổ điển 3 tầng diện tích 10,3×28,6m tại Cần Thơ – SH BTP 0120
Khi nhắc đến Pháp là người ta dễ dàng liên tưởng đến một đất nước đã gắn liền với những gì lãng mạn, quyến rũ. Thâm chí, những đặc trưng riêng biệt này cũng được thể hiện qua những thiết kế về kiến trúc của Pháp, điển hình là qua các mẫu biệt thự cổ điển toát lên sự sang trọng đến từ sự kết hợp của đường nét chi tiết phào chỉ phức tạp. Không riêng gì những mẫu biệt thự phố cổ điển mà những thiết kế biệt thự cổ điển nói chung đều đòi hỏi người thiết kế phải có chuyên môn cao và phông văn hóa giàu bản sắc, đậm chất riêng. Với đội ngũ kiến trúc sư dày dặn kinh nghiệm, đã từng trình làng hàng trăm mẫu thiết kế biệt thự đẹp “Độc đáo trong thiết kế – Chất lượng trọng thi công” trải khắp 3 miền đất nước, Công ty Cổ phần Tư vấn Xây dựng Sơn Hà (SHAC, Sơn Hà Architecture) tự hào mang đến khách hàng những giải pháp thiết kế và thi công nhà ở ấn tượng nhất. Trong đó phải kể đến biệt thự cổ điển 3 tầng 10,3×28,6m tại Cần Thơ thuộc sở hữu của chủ đầu tư Nguyễn Xuân Dắt.
>>>> XEM NGAY: Mẫu biệt thự 3 tầng hiện đại
NỘI DUNG CHÍNH
- 1 THIẾT KẾ BIỆT THỰ CỔ ĐIỂN TẠI CẦN THƠ DIỆN TÍCH 10,3X28,6M
- 2 THIẾT KẾ KIẾN TRÚC BIỆT THỰ CỔ ĐIỂN 300M2 TẠI CẦN THƠ
- 3 CÁCH BỐ TRÍ CÔNG NĂNG BIỆT THỰ CỔ ĐIỂN 3 TẦNG TẠI CẦN THƠ
- 4 THIẾT KẾ NỘI THẤT CỔ ĐIỂN BIỆT THỰ 3 TẦNG TẠI CẦN THƠ
Qua mẫu thiết kế biệt thự đẹp này, chúng ta có thể thấy gia chủ quả là giàu có và vương giả. Việc sở hữu ngôi biệt thự đẳng cấp (hễ ai nhắc đến cùng đều phải trầm trồ khen ngợi) đã khiến ông thêm khẳng định danh tiếng và thương hiệu cá nhân. Bên cạnh đó, mẫu thiết kế biệt thự cổ điển 3 tầng này cũng đã đánh dấu sự phát triển phong cách kiến trúc tại vùng đất mà ông đang sinh sống đồng thời cũng mang đến cho Cần Thơ một kiến trúc vô cùng độc đáo và ấn tượng.
THIẾT KẾ BIỆT THỰ CỔ ĐIỂN TẠI CẦN THƠ DIỆN TÍCH 10,3X28,6M
Có thể thấy mẫu thiết kế biệt thự cổ điển kiểu Pháp tại Cần Thơ của chủ đầu tư Dắt mang đến cho người nhìn một sự cảm nhận như quay lại thời kỳ phục hưng của pháp kiến trúc của sự hoàn hảo. Cách sử dụng màu sắc tinh tế chạy dài khắp hết phần mặt tiền tạo cảm giác vô cùng rộng rãi, sạch sẽ, sáng bóng và sang trọng. Thiết kế này đòi hỏi người thợ phải có tay nghề cao thì thi công mới đạt được sự tế và đẹp mắt.
Sau đây là các thông tin tóm tắt nhất về mẫu thiết kế biệt thự cổ điển tại Cần Thơ:

[embed]https://www.youtube.com/watch?v=OlU6pbmlwsg[/embed]
THIẾT KẾ KIẾN TRÚC BIỆT THỰ CỔ ĐIỂN 300M2 TẠI CẦN THƠ
Không gian ngôi biệt thự 3 tầng kiểu Pháp vô cùng rộng lớn, đẹp đẽ làm cho bất kỳ ai và người qua đường nào cũng phải đứng lại để ngắm nghía. Các kiến trúc sư SHAC cũng đã thiết kế kiến trúc công trình biệt thự kiểu Châu Âu với phần cổng và hàng rào rất thoáng đãng, đẹp mắt và cũng rất chắc chắn. Phần cổng và hàng rào được thiết kế để bảo vệ không gian, giúp không phận được bảo toàn, an ninh, mang lại sự an tâm cho chủ nhà. Theo lối thiết kế với phần hàng rào tinh tế thoáng đãng, giúp không gian biệt thự 3 tầng phong cách cổ điển Pháp lịch lãm được thoáng mát, đồng thời khoe được khuôn viên ra bên ngoài thu hút được sự chú ý của người qua lại.
Chúng tôi mời bạn đọc cùng chiêm ngưỡng các góc view của phối cảnh kiến trúc ngôi biệt thự 2 mặt tiền cổ điển đẹp mắt tại Cần Thơ:
Thiết kế kiến trúc biệt thự cổ điển Pháp 3 tầng diện tích gần 300m2 tại Cần Thơ

Bàn về kiến trúc công trình còn phải kể đến những điểm nhấn đáng trân quý đã được các kiến trúc sư SHAC tạo hình, cụ thể đó là nét năng động. Nét năng động và cá tính được mang đến qua những mảng tường bố trí hài hoa các vuông cửa. Kích thước của từng vuông cửa được cân nhắc để không tạo cảm giác tù túng và nhàm chán.

Nhiều khách hàng còn đồng nhận xét rằng mẫu thiết kế biệt thự pháp cổ được thiết kế độc đáo với những chi tiết phào chỉ được thiết kế rất tinh xảo, cột trụ vững chãi luôn làm cho các biệt thự cổ điển Pháp thương hiệu SHAC uy tín, giàu bản sắc thường nổi bật hơn so với kiến trúc thường thấy hiện nay.

Thật vậy, thiết kế của ngôi biệt thự 3 tầng 2 mặt tiền này thoát ra khỏi sự gò bó những khuôn khổ và khuôn mẫu vốn có của những ngôi nhà thường thấy. Qua đây có thể thấy kiến trúc sư SHAC đã liên tục trau dồi và đã cho ra đời những mẫu thiết kế biệt cổ kiểu pháp được chủ đầu tư và khách hàng đánh giá rất cao.
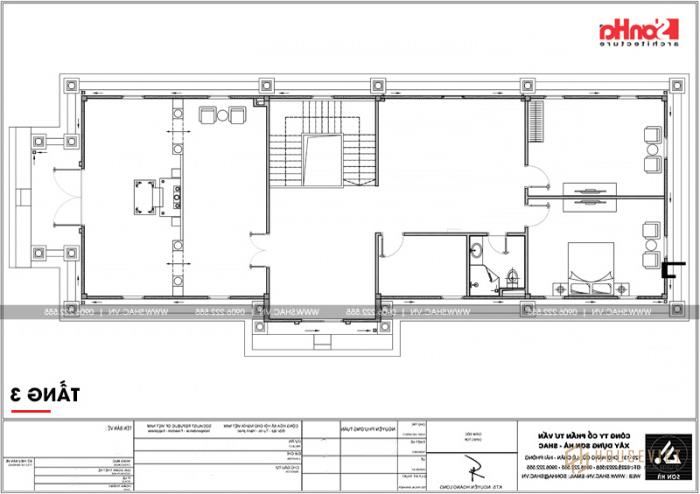
CÁCH BỐ TRÍ CÔNG NĂNG BIỆT THỰ CỔ ĐIỂN 3 TẦNG TẠI CẦN THƠ
Mẫu thiết kế biệt thự 3 tầng cổ điển được thiết kế với các không gian phòng khách, bếp ăn, phòng ngủ giúp việc, phòng sinh hoạt chung,… trong diện tích phù hợp nhất. Tổng thể các phòng chức năng được thiết kế nằm trong một không gian mở mang lại cảm giác sống giữa thiên nhiên. Trong đó, mỗi không gian nhà theo thiết kế đều ứng với mỗi khu vực chức năng khác nhau nhưng trên hết đều nhằm mục đích tạo sự thoải mái, linh hoạt khi sử dụng.
Chúng ta đều hiểu rằng chất lượng ánh sáng tốt nhất trên trái đất chính là ánh sáng mặt trời. Sống dưới ánh sáng có chất lượng không tốt sẽ bị tổn hại về sức khỏe và cảm giác. Hơn nữa, nguồn sáng nhân tạo có chất lượng cao luôn hướng đến các thông số của ánh sáng mặt trời để làm chuẩn mực. Vậy nên các không gian của ngôi biệt thự tại Cần Thơ đều được bố trí ánh sáng đầy đủ, và tiết kiệm được điện năng. Bạn đọc sẽ thấy rõ hơn cách bố trí hợp lý này sau khi xem thêm các bản vẽ mặt bằng biệt thự cổ điển pháp chúng tôi giới thiệu dưới đây:




THIẾT KẾ NỘI THẤT CỔ ĐIỂN BIỆT THỰ 3 TẦNG TẠI CẦN THƠ
Mỗi một màu sắc đều mang một ý nghĩa khác nhau và có từng cung bậc cảm xúc khác nhau, màu sắc đóng vai trò quan trọng trong đời sống mỗi con người mỗi người có một gu thẩm mỹ khác nhau. Và màu sắc trong nội thất cũng vậy gam màu góp phần làm thay đổi tư duy một cách tích cực khi nhìn vào một mẫu thiết kế nhà đẹp khi được sơn màu mà mình yêu thích cảm giác sẽ rất vui thích, và hưng phấn. Thấu hiểu điều này, trong thiết kế nội thất biệt thự cổ điển 3 tầng tại Cần Thơ, các kiến trúc sư SHAC đã rất “kỹ tính” trong việc lựa chọn màu sắc.
Ngắm nhìn không gian nội thất cổ điển kiểu pháp được thiết kế với tone sơn màu phù hợp giúp toát lên vẻ uy nghi và hoành tráng. Từ xưa, màu vàng kim là màu của hoàng gia, quý tộc màu không bao giờ bị lỗi mốt và cũ kỹ. Màu sáng được tôn lên sự nguy nga tráng lệ, tạo được thiện cảm cho người nhìn không bị chói mà ngược lại màu vàng tượng trưng cho sự hưng vượng, phú quý. Sự kết hợp của hai gam màu này quả thực là đáp án không thể tốt hơn cho ngôi nhà.













Cùng với hồ sơ thiết kế biệt thự cổ điển kiểu pháp 3 tầng SH BTP 0120, trong các bài viết sau của chuyên mục thiết kế nhà đẹp SHAC chúng tôi sẽ tiếp tục giới thiệu các mẫu thiết kế biệt thự nhà phố đẹp mới nhất của chúng tôi. Cảm ơn bạn đã theo dõi bài viết.
Quý vị cũng có thể xem thêm về bộ sưu tập thiết kế nhà đẹp của SHAC tại đây:
- Những mẫu thiết kế biệt thự Pháp mái dốc đẹp nhất Việt Nam
- Biệt thự 3 tầng thiết kế theo kiểu hiện đại – BTD 0024
- Thiết kế công năng phù hợp cho nhà ống 32m2 – SH NOP 0069
- Kiểu thiết kế nhà phố hiện đại và trẻ trung – SH NOD 0123
- Mẫu thiết kế biệt thự lâu đài 3 tầng mặt tiền rộng tại Quảng Ninh – SH BTLD 0027
- Thiết kế nội thất phòng ngủ biệt thự Pháp
- Thiết kế biệt thự hiện đại 3 tầng diện tích 312m2 tại Hải Dương
- Mẫu thiết kế biệt thự cổ điển đẹp và độc 3 tầng tiện nghi
- Thiết kế khách sạn cổ điển tiêu chuẩn 4 sao tại Bình Định
- Thiết kế biệt thự cổ điển Pháp đẹp và sang tại Khánh Hòa
Mọi chi tiết xin liên hệ:CÔNG TY CỔ PHẦN TƯ VẤN XÂY DỰNG SƠN HÀ (SHAC)Trụ sở chính: Số 318 – 319 HK3 đường Bùi Viện, Lê Chân, Hải Phòng
- Điện thoại: 0225 2222 555
- Hotline: 0906 222 555
- Email: sonha@shac.vn
Văn phòng đại diện
- Tại Hà Nội: Số 4/172, Ngọc Hồi, Huyện Thanh Trì, TP. Hà Nội
- Tại Quảng Ninh: Số 289 P. Giếng Đáy, TP. Hạ Long, Tỉnh. Quảng Ninh
- Tại Đà Nẵng: Số 51m đường Nguyễn Chí Thanh, P. Thạch Thang. Quận Hải Châu, TP. Đà Nẵng
- Tại Sài Gòn: Số 45 Đường 17 khu B, An Phú, Quận 2, TP. Hồ Chí Minh
- Xưởng nội thất: Số 45 Thống Trực, Nam Sơn. Kiến An, TP. Hải Phòng