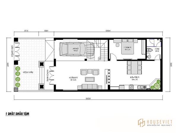
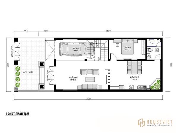
Mặt bằng 4 tầng của biệt thự hiện đại 2 tầng đầy đủ công năng
Bản vẽ biệt thự 2 tầng hiện đại được bố trí công năng khoa học mang đến không gian sống tiện nghi. Trong quá trình bố trí công năng phải kết hợp hài hòa giữa kiến trúc và nội thất để phục vụ cho công việc thi công được thuận tiện và dễ dàng. Trong bài viết này, House Viet muốn mang đến cho các bạn những phương án biệt thự 2 tầng đẹp được bố trí khoa học và tiện nghi. Cùng lưu lại bản vẽ mặt bằng dưới đây nhé!
Bản vẽ biệt thự 2 tầng mái thái
Mẫu biệt thự mái thái 2 tầng kết hợp cảnh quan sân vườn thoáng đãng tạo nên một ngôi nhà hiện đại, gần gũi với thiên nhiên. Kiến trúc mái thái giật cấp với tông màu nâu nhạt nhã nhặn hài hòa với màu sơn ngoại thất.
Mặt tiền mẫu nhà 2 tầng mái thái sử dụng màu sơn sáng với hệ thống cửa kính hiện đại. Trên mỗi đoạn trụ được bố trí đèn treo giúp chiếu sáng cho ngôi nhà vào ban đêm.



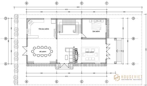
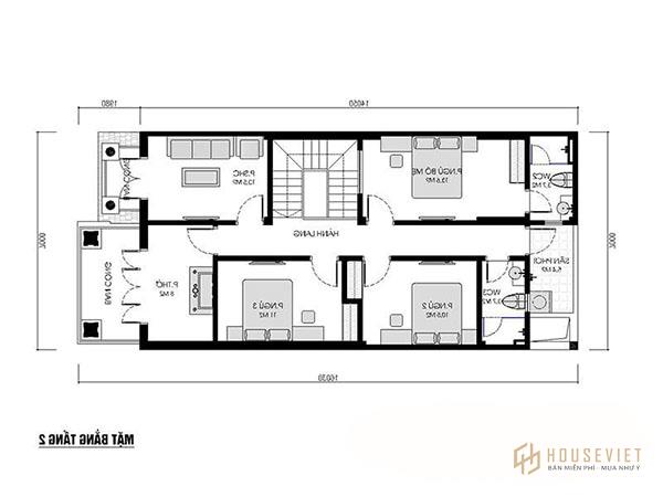
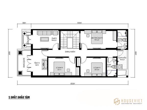
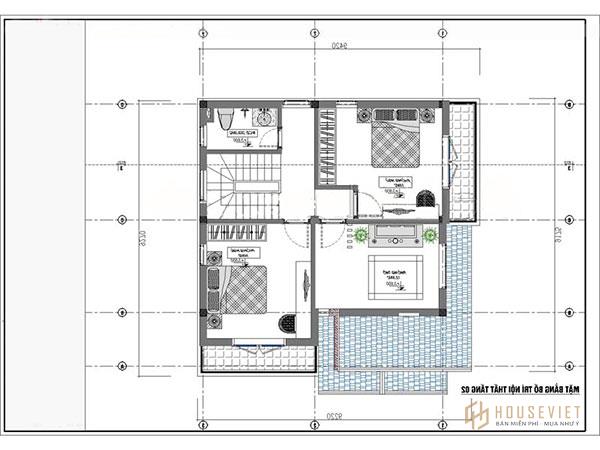
Bản vẽ biệt thự 2 tầng mái thái được trang bị các chức năng hiện đại và khoa học. Khuôn viên tầng 1 được bố trí phòng khách, bếp và khu nghỉ ngơi. Ngôi biệt thự đẹp có diện tích rộng nên các phòng được tách biệt với nhau tạo sự riêng tư trong sinh hoạt.
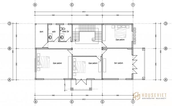
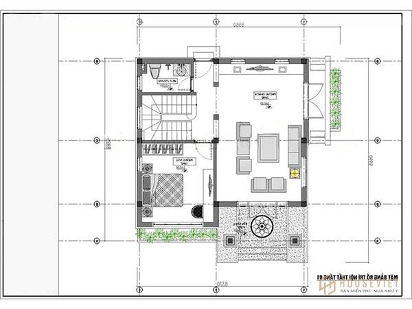
Mặt bằng tầng 2 gồm 3 phòng ngủ, 1 phòng thờ và khu sinh hoạt chung. Bản vẽ nhà mái thái 2 tầng có phòng ngủ cạnh cửa sổ tạo không gian gần gũi với thiên nhiên.


Bản vẽ thiết kế biệt thự vườn 2 tầng
Mẫu biệt thự vườn 2 tầng kết hợp kiến trúc đơn giản mang đến không gian gần gũi với thiên nhiên. Nhiều loại cây xanh được trồng ở phía trước và hai bên sân mang đến không gian thoải mái, dễ chịu. Đang vẽ Biệt thự 2 tầng đơn giản nghiêng về hướng thoáng với nhiều cửa sổ lớn biến ngôi nhà thành khu nghỉ dưỡng cao cấp.



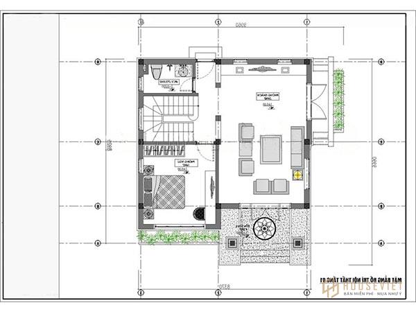
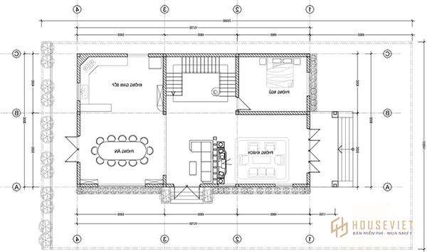
Bản vẽ biệt thự 2 tầng hiện đại được bố trí không gian sống khoa học và tiện nghi. Phòng khách được bố trí ngay cửa ra vào giúp không gian tiếp khách có tầm nhìn thoáng và tự do.
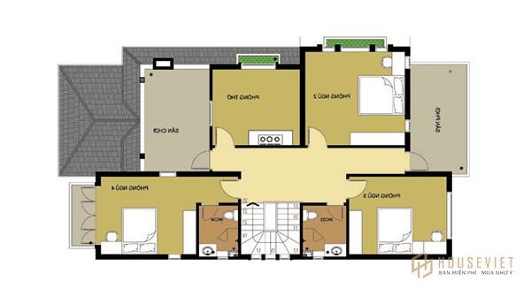
Tủ bếp chữ L tiết kiệm diện tích tối đa mà vẫn đảm bảo sinh hoạt tiện nghi, dễ dàng. Khu vực tầng 2 của ngôi biệt thự là hệ thống phòng ngủ, phòng thờ và khu sinh hoạt chung. Phòng chức năng được phân bổ hợp lý mang đến sự thoải mái và dễ dàng


Biệt thự 2 tầng đẹp hiện đại
Mẫu thiết kế biệt thự 2 tầng đơn giản và hiện đại sử dụng kiến trúc mái thái kiên cố và vững chãi. Kiến trúc mái bằng kết hợp những đường nét vuông vức của tường và cột tạo nên sự rộng rãi cho ngôi nhà.
Mặt tiền ngôi nhà rộng rãi sử dụng hệ thống cửa kính lớn mang đến sự thông thoáng và rộng mở. Việc sử dụng những gam màu trung tính ở mặt tiền ngôi nhà tạo nên vẻ đẹp trang nhã và sang trọng.




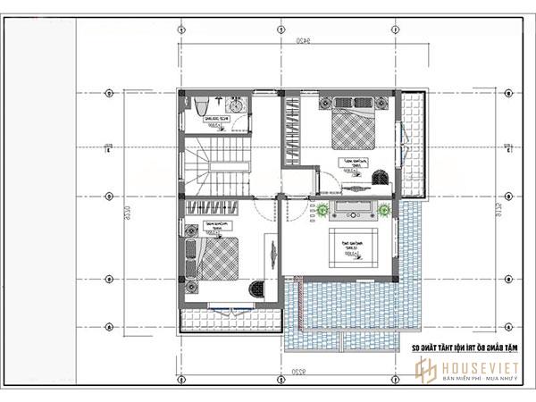
Bản vẽ biệt thự 2 tầng hiện đại Với 2 mặt tiền có tầm nhìn hướng về thiên nhiên giúp không gian sống trở nên thoải mái và dễ chịu. Việc sử dụng hệ thống cây xanh tươi mát bao quanh ngôi nhà khiến không gian nơi đây trở nên yên bình và thoáng mát. Mặt bằng công năng tầng 1 và tầng 2 được bố trí đơn giản nhưng đáp ứng được chất lượng cuộc sống của gia đình.



Bản vẽ thiết kế biệt thự mini 2 tầng
Mẫu biệt thự mini 2 tầng Được thiết kế kiến trúc, tiểu cảnh sân vườn đáp ứng đầy đủ các tiêu chí của biệt thự sang trọng. Các mẫu biệt thự sử dụng mái thái sang trọng, hiện đại, có giá trị thẩm mỹ cao. Mặt tiền biệt thự đẳng cấp với hệ thống đường gờ phào chỉ tinh tế kết hợp với những mái vòm đặc trưng của kiến trúc tân cổ điển. Khu vực ban công được bố trí những lan can uốn lượn, uyển chuyển tạo sức hút cho không gian sống.


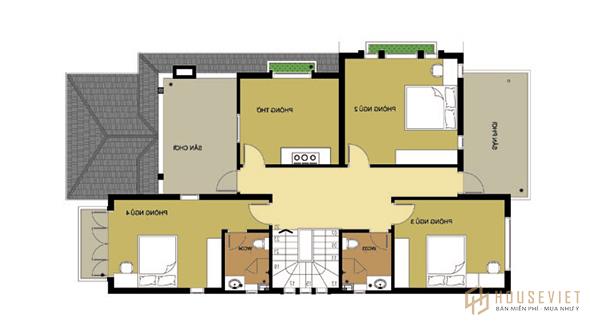
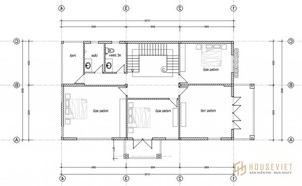
Bản vẽ mặt bằng biệt thự 2 tầng Đơn giản với công năng tầng 1, tầng 2 đầy đủ tiện nghi. Phòng khách được bố trí ngay cửa ra vào nhằm phục vụ quá trình tiếp đón khách hàng nhanh chóng và thuận tiện. Khu vực tầng 2 được bố trí chủ yếu giường ngủ và khu sinh hoạt chung mang đến sự thoải mái và dễ dàng trong sinh hoạt.
>>> Tham khảo thêm nhiều mẫu biệt thự mini sang trọng, tiện nghi tại đây: https://anlocgroup.com/thiet-ke-biet-thu-mini/


Bản vẽ biệt thự 2 tầng đầy đủ tiện nghi hứa hẹn sẽ mang đến một không gian sống tiện nghi. House Viet tin rằng với những ý kiến gợi ý trong bài đã giúp khách hàng có cái nhìn khách quan và cụ thể nhất. Nếu bạn cần KTS House Viet hỗ trợ thiết kế và thi công kiến trúc biệt thự, hãy liên hệ với chúng tôi 1800 6015. Chúng tôi chắc chắn sẽ mang đến cho bạn một công trình chất lượng, hoàn hảo nhất.
Các bài viết bạn có thể tham khảo:
- 15 mẫu biệt thự 2 tầng kiểu pháp đẹp phù hợp xu hướng phát triển
- Mẫu thiết kế biệt thự 2 tầng phong cách Châu Âu đẹp, hiện đại
- Các mẫu biệt thự 2 tầng hình chữ L đẹp và hiện đại
House Viet - Vững niềm tin