Mặt tiền nhà phố 3 tầng 5m ấn tượng tại Hưng Yên NDNP3T47
Với hơn 5m mặt tiền không phải là không gian lý tưởng để các kiến trúc sư có thể tự do thiết kế những ý tưởng mà mình muốn truyền tải. Vậy nếu bạn đang sở hữu một mẫu nhà phố mặt tiền 5m thì nên thiết kế như thế nào cho hợp lý? Hãy cùng Nhà Đẹp tìm hiểu thiết kế nhà phố mặt tiền 5m 3 tầng Hiện đại với kiến trúc ấn tượng tại Hưng Yên.
Không phải là mảnh đất vuông vắn, mảnh đất của chủ nhân ở Hưng Yên có đường vát chéo lớn ở phía trên và thu nhỏ dần ở phía dưới. Để thiết kế được công năng khoa học nhất cho gia chủ không phải là một điều dễ dàng. Tuy nhiên, với kinh nghiệm 10 năm trong nghề, chúng tôi đã lên phương án và đưa ra phương án hoàn hảo nhất cho mẫu thiết kế nhà phố 3 tầng đẹp này. Hãy cùng chúng tôi tìm hiểu thêm về mẫu thiết kế nhà phố đẹp này nhé.
Thông tin về mẫu thiết kế nhà phố mặt tiền 5m 3 tầng
Hà Nội dần chuyển lạnh, tiết trời đầu đông mát mẻ trong ngày anh Quỳnh đến làm việc với công ty chúng tôi. Sau khi tham khảo nhiều đơn vị khác nhau, anh quyết định đến trực tiếp văn phòng của Nhà Đẹp để trao đổi công việc. Với mong muốn thiết kế mẫu nhà trước tết để sau tết có thể triển khai nhanh nhất. Cùng xem thông tin về mẫu thiết kế nhà phố 3 tầng của chị Quỳnh nhé.
- Chủ đầu tư: Anh Quỳnh
- Vị trí: Văn Giang - Hưng Yên
- Diện tích nhà: 5,5mx 19,5m
- Diện tích sàn 1: 83m2
- Diện tích tầng 2: 73m2
- Diện tích tầng 3: 58m2
- Tổng diện tích xây dựng: 214m2
- Tổng kinh phí dự kiến: 1,2 tỷ đồng
Chi tiết mẫu thiết kế nhà phố mặt tiền 5m 3 tầng
Với phong cách thiết kế hiện đại, chúng tôi tận dụng mọi không gian để tạo nên một mặt tiền ấn tượng. Bạn có thể dễ dàng nhìn thấy điều này ngay lần đầu tiên. Bởi mặt tiền được thiết kế độc đáo với những đường nét phóng khoáng và không theo một khuôn khổ nhất định.
Công ty nhà đẹp đã phá bỏ những tiêu chuẩn cũ kỹ và nhàm chán để áp dụng lối kiến trúc hiện đại. Đây là một mẫu nhà phố khá kén người xem bởi không phải ai cũng thích những mẫu nhà độc đáo như vậy. Hầu hết mọi người đều có thiên hướng thiết kế nhà truyền thống.

Đặt thông gió lên hàng đầu. Thiết kế sử dụng toàn bộ vật liệu hiện đại hướng đến yếu tố này. Hệ kính cường lực khung nhôm cao cấp được ứng dụng cho cửa chính, cửa hành lang và lan can. Điều này không chỉ giúp ánh sáng dễ dàng tràn ngập không gian bên trong mà còn đảm bảo yếu tố thẩm mỹ cho ngôi nhà. Ngoài ra, sự kết hợp khéo léo này giúp ngoại thất trông rộng hơn so với thực tế.
Ngoài lan can kính, các nan ngang được sử dụng xen kẽ để không khí lưu thông thường xuyên. Nó cũng bổ sung ánh sáng mặt trời trực tiếp và hạn chế ánh sáng gay gắt chiếu trực tiếp vào nhà. Để tôn lên vẻ đẹp sang trọng, đá granite ốp tường với những đường vân rõ nét tạo điểm nhấn cho kiến trúc ngoại thất tầng 1 và dọc theo ống khói giả.

Ở mặt tiền, có thể thấy khối kiến trúc bên trái lùi vào trong với các mảng tường vát ngang. Không phải ngẫu nhiên mà chúng tôi thiết kế nó theo cách đó. Tất nhiên, yếu tố đầu tiên phải kể đến là tạo ra sự đột phá về kiến trúc và nét riêng biệt. Yếu tố thứ hai là tạo không gian mở cho ngôi nhà. Vách có tác dụng cản ánh sáng gay gắt và đón ánh sáng vừa phải cho khung cửa sổ của từng căn phòng.
Không thể thiếu sự kết hợp giữa không gian sống với không gian thiên nhiên. Mỗi hành lang được bố trí cây xanh với nhiều loại cây khác nhau tùy theo nhu cầu của gia chủ. Sơn tường màu trắng trung tính kết hợp với màu gỗ trầm tạo chiều sâu cuốn hút cho không gian. Sự tương phản này mang phong cách hiện đại, sang trọng và tinh tế.
Bạn có muốn xem: Mẫu nhà phố 2 tầng đẹp
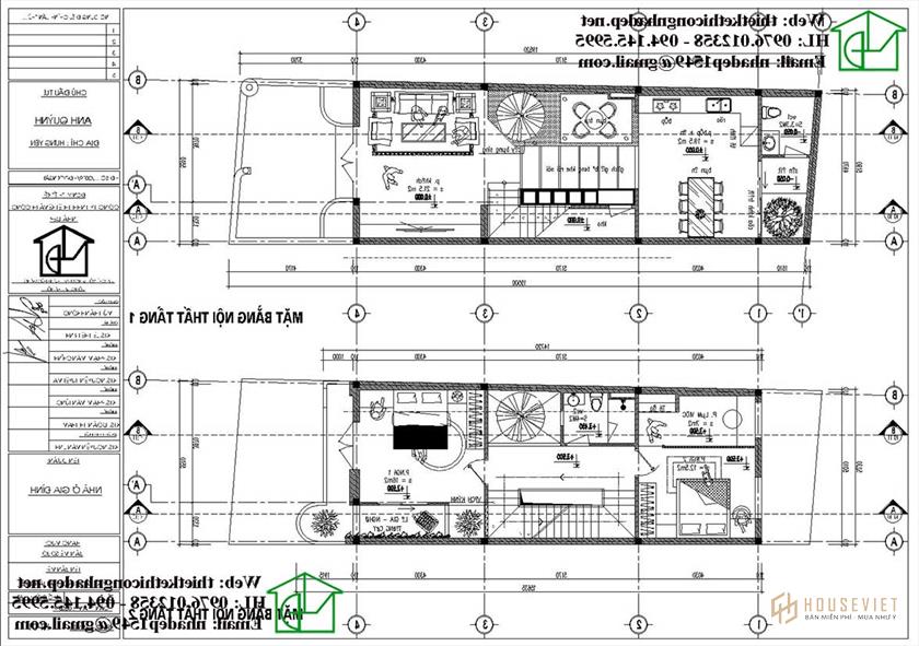
Công năng sử dụng của mẫu nhà phố 3 tầng đẹp

tầng 1: Dành một khoảng diện tích phía trước làm sân chơi và chỗ để xe. Bên trong bố trí phòng khách sang trọng, phòng bếp kết hợp phòng ăn tiện nghi, phòng vệ sinh chung và sân ướt sâu trong nhà. Gia chủ rất chú trọng đến việc kết hợp không gian xanh trong nhà nên đã thiết kế bàn trà cạnh giếng trời với cây xanh.
tầng 2: Thiết kế 2 phòng ngủ, trong đó 1 phòng ngủ master dành cho bố mẹ có phòng làm việc kết hợp bởi vách ngăn lịch sự. Phòng ngủ của con được đặt ở vị trí đẹp trong nhà vì có ban công thoáng mát. 1 phòng vệ sinh chung đối diện cầu thang và cạnh giếng trời.

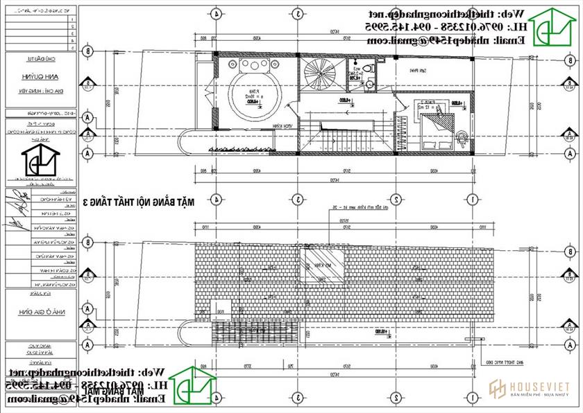
Tầng 3: Tầng 3 bố trí 1 phòng ngủ, 1 phòng vệ sinh và sân phơi ngoài ban công. Phòng thờ có diện tích rất rộng, lớn hơn cả phòng ngủ do gia chủ rất chú trọng đến việc thờ cúng. Anh đặt phòng thờ ở vị trí phong thủy đẹp cạnh ban công nơi luôn tràn ngập ánh sáng.
Kiểu dáng nhà phố mặt tiền 5m 3 tầng mang đến một làn gió mới cho kiến trúc khu vực, hứa hẹn sẽ trở thành tâm điểm của sự chú ý. Với công năng khoa học và kiến trúc ngoại thất ấn tượng, ngôi nhà phố 3 tầng này thuyết phục gia chủ ngay từ phương án đầu tiên. Nếu bạn muốn sở hữu một ngôi nhà tiện nghi, hiện đại và sang trọng hãy liên hệ ngay với công ty thiết kế nhà đẹp theo số 0339268288/0867783338.
- Tư vấn thiết kế nhà phố 4,5x15m 3 tầng hiện đại
- Nhà phố 3 tầng 4x18m 3 phòng ngủ tại Thái Bình
- Mẫu nhà ống 3 tầng 5x17m tiện nghi tại Hải Phòng
- Công năng thiết kế nhà 2 tầng 60m2 phong cách hiện đại
- https://thietkethicongnhadep.net/mau-nha-dep/biet-thu-2-tang/
- https://thietkethicongnhadep.net/mau-nha-dep/biet-thu-co-dien/
- Bộ sưu tập nhà phố 3 tầng dưới 1,5 tỷ đẹp nhất 2019