Mẫu biệt thự 2 tầng mái Nhật 8x14m tại Thanh Hóa NDBT2T138
Mẫu biệt thự 2 tầng đẹp 8x14m kiểu Nhật được thiết kế phù hợp với gia đình có đông thành viên cùng sinh sống. Bên cạnh những lâu đài nguy nga, tráng lệ thì những năm gần đây những ngôi biệt thự đẹp cũng trở nên sốt. Bởi các mẫu thiết kế biệt thự mang lại rất nhiều ưu điểm riêng như thời gian thi công nhanh, chi phí đầu tư thấp, công năng hài hòa, tiện nghi, đầy đủ ...
Để hiểu thêm về mẫu biệt thự 2 tầng kiểu Nhật đẹp này, mời quý vị và các bạn cùng theo dõi bài viết chi tiết dưới đây do Nhà Đẹp tổng hợp. Chắc chắn quý vị và các bạn sẽ không hối hận khi lựa chọn mẫu nhà này để khởi công xây dựng.
Thông tin mẫu biệt thự 2 tầng mái thái 8x14m hiện đại kiểu Nhật
- Chủ đầu tư: Chú Lưu
- Địa điểm xây dựng: Thanh Hóa
- Kích thước nhà: 8x14m
- Diện tích sàn 1: 105m2
- Diện tích tầng 2: 85m2
- Diện tích diềm mái tầng 2: 85 × 0,4 = 34m2
- Tổng diện tích mái bê tông: 105 + 85 + 34 = 224m2
- Tổng giá trị xây dựng nhà: 224 × 4.700.000 = 1.052.800.000 đồng
- Diện tích mái ngói: (85 + 34) x1,6 = 190,4m2
- Tổng giá trị xây dựng mái Nhật: 1.052.800.000 + 133.280.000 = 1.186.080.000 đồng
Phối cảnh 3D mẫu biệt thự 2 tầng sang trọng và đẳng cấp

Về hình khối kiến trúc, mẫu biệt thự 2 tầng đẹp 8x14m kiểu Nhật này có hình khối vuông vắn, góc cạnh. Các khối kiến trúc đua ra, thụt vào được tính toán tỉ mỉ tạo nên một công trình kiến trúc vô cùng độc đáo và tinh tế. Sảnh chính được thiết kế rộng rãi, thoáng mát với hệ thống cột trụ đỡ đối xứng mang đến sự bề thế. Chân cột, chân tường được ốp đá tự nhiên vừa giúp tăng tính thẩm mỹ cho không gian ngoại thất vừa có khả năng hạn chế ẩm mốc, nứt nẻ do thời tiết.

Bạn cũng có thể thấy, gam màu chủ đạo trong mẫu biệt thự 2 tầng đẹp 8x14m kiểu Nhật này là màu trắng tinh khôi, bền đẹp. Ngoài ra còn có sự xuất hiện của một số gam màu trang trí sinh động khác như màu đen của khung cửa, màu vàng nâu của đá ốp lát và màu xám của viền mái, tất cả được kết hợp hài hòa, gắn kết về mọi mặt. là hỗ trợ nhau nổi bật. Việc sử dụng những gam màu trung tính này đã góp phần không nhỏ trong việc mang đến cho không gian ngoại thất sự gần gũi, mới mẻ, trẻ trung và vô cùng khác biệt.

Các mặt tường của mẫu biệt thự 2 tầng 8x14m kiểu Nhật đẹp được trang trí bằng những đường chỉ lõm chạy ngang tạo nên sự khác biệt, làm nổi bật sự tinh tế, mới lạ. Tiếp đến, hệ thống cửa đi, cửa sổ, cửa phụ đều được sử dụng kính cường lực khung nhôm cao cấp mang đến sự gần gũi với thiên nhiên hơn, vừa đảm bảo yếu tố thẩm mỹ vừa mang lại vẻ đẹp. trong lành, thoáng mát và trong lành cho không gian nội ngoại thất cũng như thông gió và lấy sáng hiệu quả.

Ở tầng 2, chúng ta thấy khu vực ban công có mái che được làm từ những thanh lam bê tông mang đến sự lạ mắt. Cùng với đó, phần mái nổi bật bởi hệ thống cột chống sét cao chót vót, giúp bảo vệ ngôi nhà khỏi tác động của thiên nhiên.
Đặc biệt, ngoài ánh sáng tự nhiên, hệ thống ánh sáng từ đèn điện nhân tạo cũng được ưu tiên sử dụng ở không gian ngoài trời nhằm mang đến vẻ đẹp mới lạ, sang trọng và tạo điểm nhấn ngay cả trong bầu trời đêm. hãy hạ nó xuống.

Các kiến trúc sư đã tính toán vô cùng kỹ lưỡng khi sử dụng hệ thống mái thái Nhật Bản tông màu xanh than bắt mắt làm điểm nhấn cho mẫu nhà 2 tầng 8x14m kiểu Nhật hiện đại này. Với khí hậu nóng ẩm mưa nhiều như ở Việt Nam thì hệ mái thái là sự lựa chọn hoàn hảo khi sở hữu nhiều ưu điểm phù hợp là chống thấm tốt, không sợ bị thấm, thoát nước cực tốt. nhanh do dốc lớn. Ngoài ra, mái thái Nhật còn chống nóng rất hiệu quả, điều hòa không khí cho không gian nội thất luôn mát mẻ, trong lành về mùa hè, ấm áp về mùa đông.

Bao quanh mẫu biệt thự 2 tầng mái thái 8x14m hiện đại đẹp là hệ thống cổng tường rào kiên cố được ốp bằng gạch cao cấp. Hàng rào được thiết kế bằng những viên gạch bông gió vuông vắn chạy song song với nhau giúp cho cảnh quan sân vườn biệt thự đẹp luôn thoáng mát, trong lành, tràn ngập không khí tự nhiên.
Phương án 2 của mẫu biệt thự 2 tầng kiến trúc hiện đại

Nhìn chung, ở hai phương án của mẫu biệt thự 2 tầng 8x14m kiểu Nhật đẹp về bố cục hình khối, mặt bằng công năng là hoàn toàn giống nhau, chỉ khác nhau về một số chi tiết trang trí ở không gian ngoại thất, hệ thống tường rào, chòi cafe, ban công. lan can, mái sảnh chính, quầy bar ban công ...

Ở phương án 1, tại khu vực ban công tầng 2 có sự xuất hiện của lan can kính, song sắt, còn phần mái của sảnh chính là mái bằng rộng, khu sân vườn được tích hợp ô, bàn. Trà hiện đại. Ở phương án 2, lan can tầng 2 được làm bằng bê tông và không có sự xuất hiện của chấn song. Khu vực sảnh chính được thay bằng mái Nhật, sân vườn được tích hợp thêm chòi cafe lát gạch kiên cố.

Nhìn chung, cả hai lựa chọn đều có những nét đẹp và độc đáo riêng. Việc lựa chọn phương án nào chủ yếu dựa vào sở thích, cá tính của từng gia đình và chủ đầu tư lựa chọn.



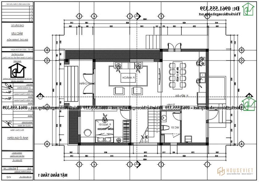
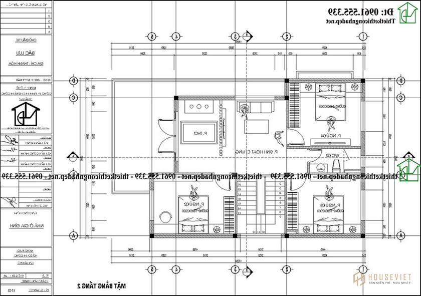
Mặt bằng công năng của mẫu biệt thự 2 tầng 4 phòng ngủ đẹp

Bước vào không gian tầng 1 của ngôi biệt thự đẹp là phòng khách rộng rãi và thoáng mát. Tiếp đến là khu bếp + ăn được trang bị đầy đủ các thiết bị hiện đại phục vụ cho công việc nấu nướng của các bà nội trợ. Cạnh cầu thang là khu vực phòng ngủ với diện tích vừa phải nhưng vô cùng yên tĩnh. Phòng vệ sinh chung được bố trí gần cửa phụ dẫn ra sau nhà.

Từ cầu thang đi lên là không gian tầng 2 gồm 1 phòng thờ trang nghiêm, 1 phòng sinh hoạt chung, 1 phòng vệ sinh chung và 3 phòng ngủ được bố trí khoa học với đầy đủ nội thất cao cấp, hiện đại. bậc nhất.
Biệt thự 2 tầng 8x14m kiểu Nhật đẹp, đẳng cấp ngày càng trở nên đa dạng và phong phú về phong cách thiết kế, được xây dựng theo phong cách hiện đại đã làm say lòng biết bao gia đình chủ đầu tư. Mong rằng mẫu thiết kế biệt thự đẹp và sang trọng mà chúng tôi vừa giới thiệu sẽ giúp quý vị và các bạn có thêm nhiều ý tưởng mới cho ngôi nhà mơ ước của gia đình mình.
- Mẫu biệt thự mái thái 2 tầng 10x13m tại Hà Nam NDBT2T137
- Biệt thự 2 tầng 4 phòng ngủ 8x14m tại Thái Nguyên NDBT2T136
- Biệt thự mái thái 2 tầng 13x20m ở Sài Gòn NDBT2T135
- Biệt thự 2 tầng hình chữ L mái bằng 13x12m ở Thái Bình NDBT2T139