Mẫu biệt thự 3 tầng mái nhật 11x19m tại Ninh Bình NDBT3T30
Đây là một trong những siêu phẩm mẫu biệt thự 3 tầng mái nhật 11x19m được công ty nhà đẹp thiết kế cho gia chủ có địa chỉ tại Ninh Bình. Vì sao lại là siêu phẩm vì với quy mô công trình rất rộng với kích thước 11x19m yêu cầu gia chủ phải có một mảnh đất đủ rộng và kinh phí xây dựng đủ nhiều mới có thể xây được. Không chỉ thế các bạn có thể thấy kiểu dáng và phong cách của mẫu biệt thự 3 tầng này cũng rất hiện đại, sang chảnh. Khoác trên mình chiếc áo của kiểu nhà mái nhật nên mẫu biệt thự 3 tầng này sẽ luôn thu hút được những bạn trẻ thích phong cách hiện đại. Trước mẫu siêu phẩm biệt thự 3 tầng này chúng tôi cũng đã thiết kế 1 công trình có kiểu dáng tương tự và có thể nói đây chính là anh em trong cùng 1 nhà. Nếu các bạn muốn so sánh hay đánh giá 2 sản phẩm này các bạn cũng có thể xem mẫu nhà đó tại: Mẫu biệt thự sân vườn 500m2 đẹp 12x18m mái Nhật NDBT3T22
Mang trong mình phong cách thiết kế kiến trúc hiện đại với các đường nét trang trí đơn giản nhưng đầy tinh tế, sang trọng. Mẫu biệt thự 3 tầng mái nhật 11x19m đã giúp cho không gian sống của gia đình anh Văn – Chị Yến thoát khỏi cảm giác ngột ngạt, ngộp thở, bức bí mà nhịp sống xô bồ, chen chúc của xã hội ngày càng trở nên chật hẹp đem đến. Khi đến với mẫu nhà biệt thự 3 tầng mái Nhật này thì các bạn hãy yên tâm là nó sẽ tạo ra cho các bạn một không gian vô cùng đáng sống cho gia đình của các bạn. Hãy cùng công ty nhà đẹp chúng tôi chiêm ngưỡng đầy đủ vẻ đẹp của mẫu nhà biệt thự 3 tầng này qua bài viết chi tiết dưới đây nhé!
Thông tin thiết kế mẫu biệt thự 3 tầng mái Nhật hiện đại
Để xây được căn nhà này chúng ta cần phải chuẩn bị khá nhiều tiền đó nhé, nhất là thời điểm hiện tại giá xây dựng đang tăng cao. Vì vậy xin mời các bạn hãy cùng chúng tôi đoán xem xây căn nhà này cần chuẩn bị bao nhiêu tiền nhé.
- Địa điểm xây dựng: Ninh Bình
- Chủ đầu tư: Anh Văn – Chị Yến
- Kích thước nhà: 11x19m
- Diện tích tầng 1: 136.5m2
- Diện tích tầng 2: 165m2
- Diện tích tầng 3: 121m2
- Diện tích riềm mái tầng 3: 121×0.5=60.5m2
- Tổng diện tích mái bê tông: 136.5+165+121+60.5=483 m2
- Tổng giá trị thi công nhà: 483×5.500.000 = 2.656.500.000 vnđ
- Diện tích mái ngói: (121+60.5)x1.6=290.4m2
- Tổng giá trị thi công phần mái nhật: 290.4X700.000= 203.280.000 vnđ
- Tổng giá trị hoàn thiện: 2.656.500.000+203.280.000=2.859.780.000
Để hoàn thiện căn nhà này chúng ta cần tới gần 3 tỉ mới có thể hoàn thiện đấy, xin mời các bạn cùng tham khảo và cân nhắc nhé. Đơn giá này cũng có thể áp dụng thi công trọn gói cho các khu vực Miền Bắc. Nếu các bạn có nhu cầu cần thi công trọn gói có thể liên hệ Nhà đẹp để được tham khảo chi tiết hơn nhé.
Phối cảnh 3D mẫu biệt thự 3 tầng mái Nhật 11x19m

Màu sơn được sử dụng trong mẫu biệt thự 3 tầng mái nhật 11x19m là gam màu trắng tươi sáng, trẻ trung và vô cùng hiện đại. Ngôi biệt thự còn độc đáo hơn là khi được kết hợp thêm điểm nhấn nổi bật là gam màu xám và nâu giả gỗ nhẹ nhàng trên bề mặt ngoại thất của ngôi nhà. Trong kiến trúc, với bất kỳ công trình được thiết kế theo thể loại kiến trúc hiện đại, tân cổ điển hay kiến trúc gì đi nữa thì màu trắng vẫn luôn là sự lựa chọn tốt nhất hàng đầu. Bên cạnh tông trắng chủ đạo của công trình, biệt thự 3 tầng mái nhật 11x19m còn trở nên sang trọng hơn với sắc màu đen mượt mà của hệ thống khung cửa vô cùng huyền bí, nổi bật và đẳng cấp.

Sự hiện đại và mới mẻ trong mẫu biệt thự 3 tầng mái nhật 11x19m được kiến trúc sư tài hoa khéo léo kết hợp đan xen những chi tiết trang trí như hệ cửa kính khung nhôm xingfa màu đen hay màu xanh lịch lãm thời thượng đến từ hệ mái ngói…Tất cả tưởng chừng hết sức đơn giản nhưng nó đều được lựa chọn tính toán rất tỉ mỉ và cân đối để đem vào bên trong mẫu thiết kế biệt thự 3 tầng đẹp này.
Hệ cửa được thiết kế dày đặc với chất liệu kính kết hợp với nhôm cao cấp xuyên suốt từ tầng 1 lên tầng 3 của công trình mang đến không gian bên trong nội thất vô cùng thông thoáng, mát vẻ, lộng lẫy cho toàn bộ các ngóc ngách của ngôi nhà. Ngoài ra với hệ cửa kính còn giúp kết nối không gian bên trong ngôi nhà biệt thự 3 tầng với môi trường xung quanh tạo ra 1 không gian mở vô cùng phù hợp với đặc trưng của khí hậu miền Bắc nước ta.


Mẫu biệt thự 3 tầng mái nhật 11x19m được xây dựng lùi vào bên trong một chút để tạo ra một khoảng sân nhỏ phía trước vừa xinh để trang trí cây xanh và không gian vui chơi, giải trí cho gia đình chủ đầu tư vào những ngày cuối tuần. Những hàng cây xanh, những loài hoa đầy sắc màu đẹp trải dài quanh không gian ngôi biệt thự 3 tầng mái Nhật như một khu nghỉ dưỡng cao cấp, lý tưởng mà bất cứ ai nhìn thấy cũng mong muốn có được.

Toàn bộ không gian ngoại thất tầng 1, một số chi tiết ở tầng 2 và 3 của mẫu biệt thự 3 tầng mái nhật 11x19m hiện đại được lựa chọn ốp đá màu xám cao cấp để mang đến nét sang – sạch – bền cho tổng thể công trình. Tác dụng của việc ốp đá trong những công trình thì công ty chúng tôi không cần phải nói nhiều. Nó có hiệu quả rất cao trong việc gìn giữ vẻ đẹp bền vững của ngôi nhà tránh được sự tác động của các yếu tố thiên nhiên và ngoại cảnh tác động đến ngôi nhà giúp cho ngôi nhà luôn bền đẹp, kiên cố theo năm tháng.

Đặc biệt để thể hiện được cốt cách văn hóa độc đáo cùng với nhu cầu phong thủy của gia đình chủ đầu tư. Thì với gam màu xanh của hệ thống mái ngói nổi bật trên nền trắng tinh khôi giúp ngôi biệt thự 3 tầng mái Nhật thêm phần quyến rũ và quý phái hơn. Sự hòa quyện tuyệt đỉnh giữa các tông màu từ màu trắng của sơn tường, màu đen của khung cửa kính đến màu xanh của mái ngói đã mang lại một vẻ đẹp cho công trình trở nên nổi bật hơn so với các công trình nhà ở xung quanh.

Với mỗi mẫu biệt thự 3 tầng mái nhật 11x19m tuyệt đẹp thì cổng rào và sân vườn không thể để sơ sài, nó phải được trang trí hài hòa để làm toát lên vẻ đẹp của toàn bộ công trình. Bố trí sân cỏ vô cùng bắt mắt kết hợp với chòi cafe lộng lẫy hết sức sinh động cũng là một điểm cộng cho nét cuốn hút của ngôi biệt thự.
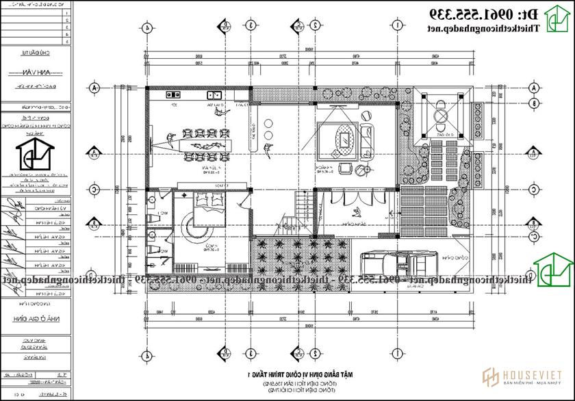
Mặt bằng công năng của mẫu biệt thự 3 tầng mái nhật 11x19m

Đến với không gian của mẫu biệt thự 3 tầng mái nhật 11x19m gồm có 1 phòng khách rộng rãi – nơi gia tiếp khách của gia đình chủ đầu tư. Tiếp theo là 1 phòng bếp + ăn sang trọng, thoáng mát được bố trí với rất nhiều hệ cửa giúp tránh được sự lưu mùi thức ăn khi nấu nướng. 1 phòng ngủ master và 1 phòng vệ sinh chung cạnh nhà bếp rất thuận tiện cho việc nghỉ ngơi và sinh hoạt của các thành viên.

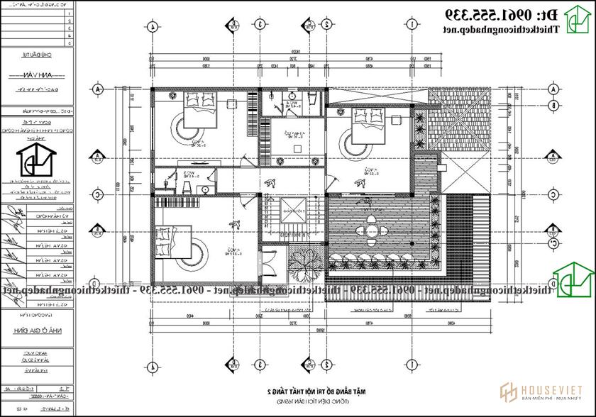
Từ cầu thang đi lên tầng 2 là nơi nghỉ ngơi thư giãn gồm có 3 phòng ngủ sang trọng và được thiết kế theo nhu cầu sở thích của từng thành viên trong gia đình. Trong đó có 1 phòng ngủ master tạo thuận tiện cho việc sinh hoạt riêng tư. Cuối cùng là 1 phòng vệ sinh chung được bố trí ở giữa 2 phòng ngủ rất tiện nghi.

Tầng 3 gồm có 1 phòng thờ trang nghiêm – nơi hội thụ vượng khí và mang lại những điều may mắn cho gia đình chủ đầu tư. 1 phòng tập gym – nơi giúp tăng cường và gìn giữ sức khỏe cho các thành viên. 1 phòng giặt và sân phơi lộng gió, thoáng mát – nơi giặt giũ và phơi phong đồ đạc.
Thiết kế nội thất mẫu biệt thự 3 tầng mái Nhật hiện đại
Nội thất phòng khách

Không gian phòng khách được trang trí với những món đồ nội thất đẹp hiện đại, tinh tế. Bộ ghế sofa hình vòng cung chân gỗ bọc nệm, cùng những chiếc gối ôm nhiều màu sắc, kết hợp bàn trà bằng gỗ hình tròn độc đáo, giúp tạo nên hiệu ứng cuốn hút và đẹp mắt hơn. Các đường nét phào chỉ đắp nổi trên mảng tường, hệ thống đèn thả trần, đèn âm tường và tủ kệ gỗ được phân chia một cách khoa học, tạo thuận tiện cho việc sử dụng cũng như làm tăng hiệu ứng thẩm mỹ chung.

Thiết kế nội thất phòng khách nhà biệt thự 3 tầng mái Nhật 11x19m được bố trí thêm hệ thống cửa kính rộng rãi, thoáng đãng. Cửa kính có tác dụng mang lại không gian mở, phá tan sự gò bó, bí bách, cũng như đem đến nguồn sinh khí tốt.
Thiết kế kệ tivi đơn giản được làm từ chất liệu gỗ tự nhiên màu nâu có độ bền với thời gian. Hơn nữa, tủ kệ tivi có nhiều ngăn hộc giúp gia đình chủ đầu tư có thêm không gian lưu trữ gọn gàng. Điểm xuyết thêm trên mảng tường phía sau kệ tivi là phần đá hoa cương vân mây sáng bóng ốp tường, có tác dụng làm nổi bật vẻ đẹp sinh động phóng khoáng và đáp ứng nhu cầu trang trí về mặt phong thủy.
Nội thất phòng bếp + ăn


Thiết kế phòng bếp nhỏ gọn đơn giản và liên thông với phòng ăn tạo không gian mở và thoáng đãng. Chiếc cửa sổ bằng kính hướng ra không gian bên ngoài tăng thêm ánh sáng, độ thông thoáng cũng như giúp đánh bay mùi thức ăn nhanh chóng.

Thiết kế tủ kệ bếp sử dụng gỗ tự nhiên kết hợp mặt bếp ốp đá tự nhiên có vân mây đáp ứng nhu cầu cần thiết về một không gian bếp sạch sẽ và tiện nghi. Thiết kế nội thất nhà biệt thự 3 tầng mái Nhật 11x19m đẹp với căn bếp có nhiều ngăn tủ để đồ, cộng thêm bồn rửa và hệ thống nấu nướng, đảm bảo sự tiện nghi và thoải mái cho người nội trợ.

Khu vực ăn uống được thiết kế khá sang trọng, khi sử dụng tông màu trắng chủ đạo kết hợp các họa tiết trang trí bắt mắt và những món đồ nội thất hiện đại đã góp phần làm nên những hiệu ứng thẩm mỹ cao. Thiết kế bàn ăn hình chữ nhật bo tròn 4 góc bằng gỗ, cùng với những ghế tựa bọc nệm màu nâu, đem đến những phút giây thoải mái cho gia đình trong mỗi bữa cơm. Không quá cầu kỳ, nhưng sự tinh tế và thiết kế mở đã phần đem đến sự ấm cúng, ấm áp, hạnh phúc và tràn đầy năng lượng cho không gian phòng ăn.

Tủ rượu và kệ trang trí trong phòng bếp được bố trí khoa học, thuận tiện cho việc sử dụng và cất giữ đồ đạc, từ đó mang lại một không gian vừa ấm cúng vừa sang trọng, tiện nghi…
Nội thất phòng ngủ 1

Phòng ngủ 1 được thiết kế rộng và thoáng, có hệ thống cửa ra ban công thoáng mát. Bố trí đồ nội thất đầy đủ, với gam màu trung tính, kết hợp giữa màu trắng, màu xám, màu nâu và màu đen. Chiếc giường nệm chân gỗ mềm mại cùng với tấm trải sàn, tab 2 bên đầu giường thiết kế tủ kệ nhỏ gọn, vừa tiết kiệm diện tích, vừa không phá vỡ bố cục chung của không gian căn phòng.

Tủ quần áo và bàn trang được thiết kế mới mẻ với chất liệu gỗ, đặt sát tường và cao sát trần nhà, vừa có thể giúp tối ưu diện tích, lại vừa giúp tăng không gian sử dụng. Thiết kế tủ nhiều cánh bằng kính cường lực trong suốt, tạo thêm phần độc đáo và mới mẻ cho phương án thiết kế nội thất của ngôi biệt thự hiện đại 3 tầng.


Nội thất phòng ngủ 2

Căn phòng ngủ 2 dành cho bé gái được thiết kế đơn giản với điểm nổi bật là sự phối hợp giữa các tông màu sắc từ sơn tường cho đền món đồ nội thất khá xinh xắn. Tông màu có sự chuyển đổi thích hợp với sở thích và tư duy thẩm mỹ. Mảng tường màu hồng phối cùng sơn trắng cùng vật liệu đồng màu sẽ giúp kích thích thị giác, tạo cảm giác trẻ trung, tươi sáng cho không gian.

Không gian học tập được thiết kế thông minh và thoáng mát, các vật dụng được bố trí khoa học là tiền đề giúp bé nâng cao hiệu quả trong học tập. Thiết kế màu sắc trẻ trung, tươi sáng cùng ánh sáng tự nhiên từ ngoài vào bằng cửa kính lớn, chậu cây xanh, giúp tô điểm một không gian tiện nghi và gần gũi.

Mẫu giường nhỏ thông minh tích hợp với tấm trải sàn, nhấn thêm bức tranh treo tường, thiết kế cửa kính rộng có rèm che phía đối diện, đảm bảo ánh sáng cũng như sự lưu thông khí. Căn phòng ngủ rộng rãi, thoáng mát, đáp ứng mọi nhu cầu sử dụng và tính thẩm mỹ cho bé gái.
Nội thất phòng ngủ 3

Từ góc nhìn này của căn phòng ngủ 3, các bạn có thể thấy góc bên trái giường được bố trí tủ kệ thông minh, cùng bức tranh treo tường đa màu sắc, tạo nên hiệu ứng thẩm mỹ nổi bật và giúp tăng thêm không gian sử dụng tiện nghi. Thêm vào đó sàn nhà được lát bằng gỗ tự nhiên màu nâu, chiếc giường nệm êm ái, hệ thống đèn sáng rọi, tạo sự sinh động.

Phòng ngủ 3 sở hữu các món đồ trang trí có tông màu trầm như màu nâu của gỗ kết hợp cùng tông màu trắng chủ đạo, tạo nên hiệu ứng phá cách cho không gian. Đặc biệt là cách thêm những vật dụng trang trí độc đáo có kích thước vừa phải, có tính toán để giúp cho từng góc nhỏ căn phòng đều đồng nhất và trở nên cuốn hút và sang trọng hơn.
Nội thất phòng ngủ 4

Không gian phòng ngủ 4 với các món đồ nội thất được bố trí thông minh, sử dụng góc tường để thiết kế tủ quần áo góp phần tạo sự mạch lạc, bằng phẳng, không chật chội, không chiếm quá nhiều không gian, tạo nên sự tiện nghi, đáp ứng các yêu cầu thư giãn và nghỉ ngơi của gia đình chủ đầu tư.


Không gian phòng ngủ còn được bố trí thêm một hệ thống cửa sổ 3 cánh bằng kính vô cùng thông thoáng, rộng rãi, đảm bảo ánh sáng đầy đủ, mang lại nguồn năng lượng dồi dào cho chủ nhân của căn phòng. Thiết kế phòng ngủ đơn giản, nhẹ nhàng nhưng lại vô cùng tinh tế và mới mẻ, đó là nhờ cách bố trí, sắp xếp khoa học các món đồ nội thất của các kiến trúc sư tài năng.
Nội thất phòng thờ

Phòng thờ được xem là nơi trang nghiêm, thể hiện văn hóa, truyền thống thờ cúng của người Việt, đồng thời cũng thể hiện lòng thành kính của con cháu đối với ông bà tổ tiên. Không gian được thiết kế rộng và thông thoáng, nội thất phòng thờ thì vô cùng đầy đủ,gồm có 2 chiếc lục bình lớn đặt hai bên, bàn thờ sử dụng vật liệu gỗ tự nhiên được chạm khắc hoa văn tỉ mỉ, mảng tường sử dụng gỗ ốp dày dặn, kết hợp với các chậu cây cảnh xanh mướt bên cạnh giúp không gian tâm linh trở lên hoàn hảo.
Hình ảnh thực tế mẫu biệt thự 3 tầng mái nhật 11x19m tại Ninh Bình
Đây là hình ảnh thực tế mà chúng tôi chụp lại khi công trình đang trong giai đoạn hoàn thiện nhé các bạn. Công trình này đang trong giai đoạn hoàn thiện cho nên sẽ chưa chuẩn theo 3D, còn có khá nhiều các chi tiết chưa làm xong. Chính vì vậy nếu các bạn quan tâm thì khi hoàn thiện hết chúng tôi sẽ quay lại và chụp hình cho các bạn cùng tham khảo nhé. Bây giờ chúng ta chỉ cần quan tâm tới những hình ảnh thực tế trước mà thôi.
Ngày cập nhật: 16.11.2021


Qua mẫu biệt thự 3 tầng mái nhật 11x19m của gia đình anh Văn – Chị Yến ở Ninh Bình. Đây là mẫu biệt thự vô cùng đẹp. Nếu quý vị và các bạn bị thu hút bởi mẫu thiết kế biệt thự 3 tầng này và đang tìm kiếm một đơn vị thiết kế và thi công trọn gói chuyên nghiệp thì công ty nhà đẹp rất hân hạnh được đồng hành. Hãy liên hệ với chúng tôi ngay để được tư vấn miễn phí và chu đáo nhé!
- Thiết kế biệt thự 3 tầng mái bằng 9x15m hiện đại NDBT3T29
- Biệt thự 3 tầng tân cổ điển 9x12m đẹp tại Vĩnh Phúc NDBT3T28
- Thiết kế biệt thự 3 tầng tân cổ điển 15x15m đẹp tại Thái Bình NDBT3T27
- Biệt thự 3 tầng mái bằng 15x12m phong cách hiện đại NDBT3T31